Baugrund 725m² mit altem Bauernhaus und schönem Ausblick in 7141 Podersdorf am See – Ihr Traumgrundstück!
Beschreibung
Traumhaftes Baugrundstück in Podersdorf am See – Ihr perfekter Platz für das Eigenheim am Wasser!
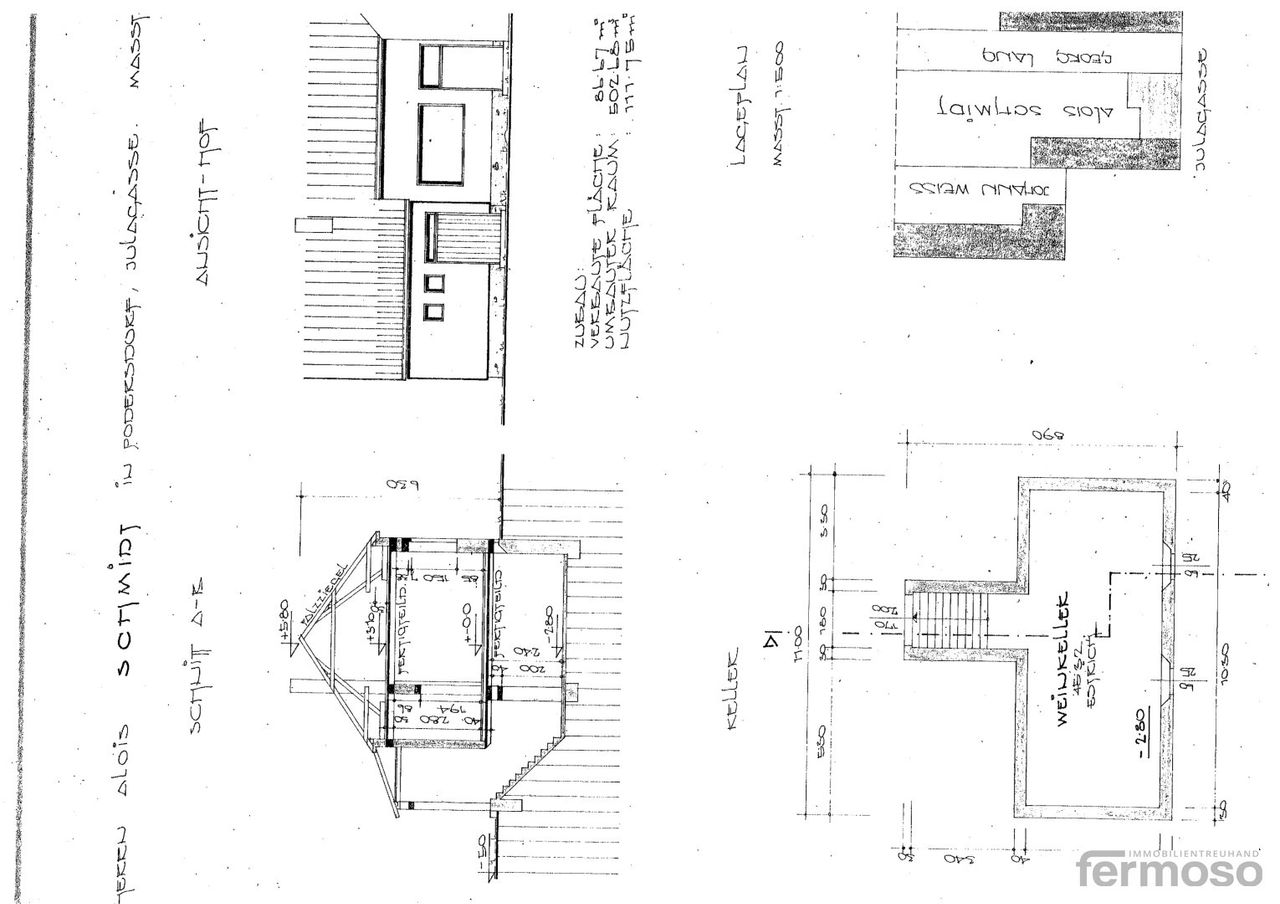
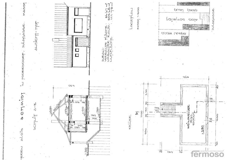
Auf dem Grundstück befindet sich noch ein altes Bauernhaus, benutzbar aber schon stark sanierungsbedürftig mit den Nebengebäuden, Kerngebiet Bauland, bebaubar zu 70% laut Verordnung.
Sie suchen einen idyllischen Ort, um Ihren Lebenstraum vom Eigenheim zu verwirklichen? Dieses großzügige Baugrundstück mit 725 m² in der begehrten Gemeinde Podersdorf am See im wunderschönen Burgenland bietet Ihnen genau das: Raum, Ruhe und einen unvergleichlichen Ausblick.
Stellen Sie sich vor, jeden Morgen mit dem sanften Glitzern des Neusiedler Sees aufzuwachen und den Tag mit einem Blick über das Wasser...
Traumhaftes Baugrundstück in Podersdorf am See – Ihr perfekter Platz für das Eigenheim am Wasser!
Auf dem Grundstück befindet sich noch ein altes Bauernhaus, benutzbar aber schon stark sanierungsbedürftig mit den Nebengebäuden, Kerngebiet Bauland, bebaubar zu 70% laut Verordnung.
Sie suchen einen idyllischen Ort, um Ihren Lebenstraum vom Eigenheim zu verwirklichen? Dieses großzügige Baugrundstück mit 725 m² in der begehrten Gemeinde Podersdorf am See im wunderschönen Burgenland bietet Ihnen genau das: Raum, Ruhe und einen unvergleichlichen Ausblick.
Stellen Sie sich vor, jeden Morgen mit dem sanften Glitzern des Neusiedler Sees aufzuwachen und den Tag mit einem Blick über das Wasser zu beginnen. Das Grundstück liegt in einer ruhigen und dennoch gut angebundenen Lage, sodass Sie die Vorzüge von Natur und urbaner Infrastruktur ideal kombinieren können.
Die Verkehrsanbindung ist optimal: Ein nahegelegener Bus hält direkt vor der Tür und bringt Sie mühelos in die Umgebung sowie in die regionalen Zentren. So sind Sie flexibel und unabhängig – ideal für Berufspendler oder Familien.
In unmittelbarer Nähe finden Sie alle wichtigen Einrichtungen des täglichen Lebens: Ärzte, Schulen, Supermärkte und eine Bäckerei sind bequem zu Fuß erreichbar. Das macht das Grundstück besonders attraktiv für Familien und Menschen, die Wert auf kurze Wege legen.
Nutzen Sie diese seltene Gelegenheit, ein Stück vom Paradies zu erwerben und Ihr neues Zuhause mnach Ihren Vorstellungen zu gestalten. Das großzügige Grundstück bietet genügend Platz für einen schönen Garten, eine Terrasse mit schönem Ausblick und eine individuelle Architektur, die Ihren Lebensstil perfekt ergänzt.
Podersdorf am See ist nicht nur wegen seines herrlichen Seeblicks und der Natur beliebt, sondern auch wegen seiner lebendigen Gemeinschaft und der vielfältigen Freizeitmöglichkeiten am Neusiedler See. Ob Wassersport, Radfahren oder gemütliche Spaziergänge – hier finden Sie für jeden Geschmack das Richtige.
Verwirklichen Sie Ihren Traum vom Eigenheim an einem der schönsten Plätze im Burgenland. Dieses Baugrundstück in Podersdorf am See wartet auf Sie! Kontaktieren Sie uns noch heute für weitere Informationen und sichern Sie sich diese einmalige Chance. Ihr neues Zuhause am Wasser könnte schon bald Wirklichkeit werden!
Noch nichts gefunden? Wir informieren Sie über geeignete Immobilienangebote noch vor allen anderen.
Legen Sie jetzt Ihren individuellen Suchagenten unter folgendem Link an. Wir schicken Ihnen passende Immobilien exklusiv vorab zu.
Suchagent anlegen - https://fermoso-immobilientreuhand.service.immo/registrieren/de
Wir weisen darauf hin, dass zwischen dem Vermittler und dem zu vermittelnden Dritten ein familiäres oder wirtschaftliches Naheverhältnis besteht.
Der Vermittler ist als Doppelmakler tätig.
Infrastruktur / Entfernungen
Gesundheit
Arzt <500m
Apotheke <7.000m
Klinik <6.500m
Krankenhaus <6.500m
Kinder & Schulen
Schule <1.000m
Kindergarten <7.500m
Nahversorgung
Supermarkt <500m
Bäckerei <500m
Sonstige
Geldautomat <1.000m
Bank <1.000m
Post <500m
Polizei <7.000m
Verkehr
Bus <500m
Bahnhof <6.000m
Angaben Entfernung Luftlinie / Quelle: OpenStreetMap
Objektdaten
Dokumente / Links
Zustand
- HWB
- 387.6 kWh/m² pro Jahr
- Klasse HWB
- G
- Klasse fGEE
- G
Flächen
- Grundstücksfläche
- 850m²
Kosten
- Kaufpreis Brutto
- € 349.000,00
Grundstücke zum Kaufen im Umkreis von Podersdorf am See
Grundstücke zum Kaufen im Umkreis von Podersdorf am See
Grundstücke zum Kaufen in Österreich
Andere Besucher suchen nach...
- Grundstücke kaufen in 3400 Weidlingbach
- Wohnungen kaufen in 4663 Laakirchen
- Häuser in 7471 Rechnitz
- Wohnungen in 2410 Hainburg an der Donau
- Häuser kaufen in 2432 Schwadorf
- Wohnungen kaufen in 3002 Purkersdorf
- Häuser in 3150 Wilhelmsburg
- Wohnungen kaufen in 3470 Engelmannsbrunn
- Grundstücke kaufen im Bezirk Mattersburg
- Grundstücke kaufen im Bezirk Gmunden