Baugrundstücke in Katsdorf / Ruhstetten – sonnige Lage, ideal für 1–3 Wohneinheiten je Parzelle
Beschreibung
""" WIEDER ZUM HABEN """
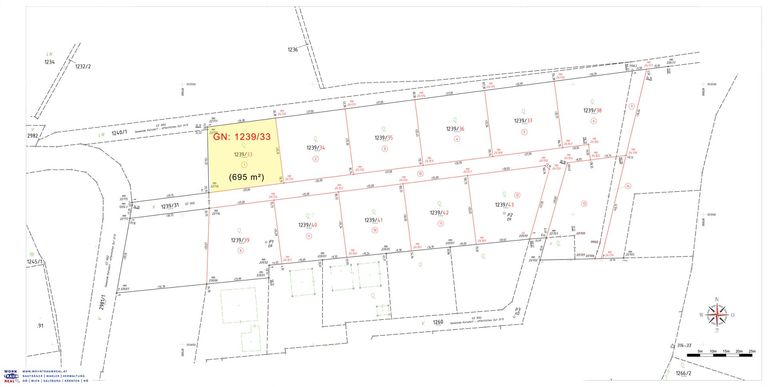
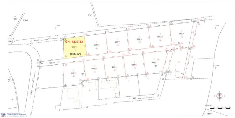
📍 Grundstücke 1239/33 sonnige Baugründe mit flexibler Bebauung in attraktiver Lage von Katsdorf
In der beliebten Wohnsiedlung Ruhstetten / Katsdorf stehen diese zwei hochwertigen Baugrundstücke zum Verkauf. Sie bieten den idealen Rahmen für ein modernes Einfamilienhaus, Doppelhaus oder ein Projekt mit bis zu drei Wohneinheiten, mit klar definierter Baufläche laut Bebauungsplan.
🔹 Grundstücksgrößen: 📌 1239/33: 695 m²
Baugrundstücke in Katsdorf / Ruhstetten Hier entsteht kein Wohnprojekt von der Stange – sondern Ihre individuelle Möglichkeit, ein Eigenheim oder ein kleines Wohnprojekt in einer der gefragtesten Lagen im...
""" WIEDER ZUM HABEN """
📍 Grundstücke 1239/33 sonnige Baugründe mit flexibler Bebauung in attraktiver Lage von Katsdorf
In der beliebten Wohnsiedlung Ruhstetten / Katsdorf stehen diese zwei hochwertigen Baugrundstücke zum Verkauf. Sie bieten den idealen Rahmen für ein modernes Einfamilienhaus, Doppelhaus oder ein Projekt mit bis zu drei Wohneinheiten, mit klar definierter Baufläche laut Bebauungsplan.
🔹 Grundstücksgrößen:
📌 1239/33: 695 m²
Baugrundstücke in Katsdorf / Ruhstetten
Hier entsteht kein Wohnprojekt von der Stange – sondern Ihre individuelle Möglichkeit, ein Eigenheim oder ein kleines Wohnprojekt in einer der gefragtesten Lagen im Zentralraum Oberösterreichs zu verwirklichen.
Die Grundstücke liegen in ruhiger Siedlungslage mit bester Ausrichtung, ca. 20 Minuten von Linz entfernt. Der Ortsteil Ruhstetten überzeugt durch Natur, Weitblick, Infrastruktur und sehr gute Verkehrsanbindung.
🧱 Bebauung laut Bebauungsplan Nr. 54 Ruhstetten:
Offene Bauweise
Bis zu 2 oberirdische Geschoße je Gebäude
Satteldach (25–35°) oder Pultdach (in begründeten Fällen)
Pro Grundstück: maximal 3 Wohneinheiten erlaubt
Bauverpflichtung & definierte Baugrenzen vorhanden
Erschließung in Vorbereitung
Die Grundstücke sind ideal für:
Familien mit individuellem Hauswunsch
Private Bauherrengemeinschaften
Bauträger oder Klein-Investoren für 2–3 Wohneinheiten je Parzelle
📍 Lagevorteile:
Naturnahe Ruhelage mit Süd- oder Westausrichtung
Nahversorgung, Kindergarten & Schule in kurzer Reichweite
Bahnanschluss in Katsdorf – schnell in Linz oder Perg
Freizeitmöglichkeiten im Grünen direkt vor der Haustür
📎 Verfügbare Parzellen & Größen auf Anfrage
Alle Grundstücke sind vermessen, Parzellierung abgeschlossen.
Der Vermittler ist als Doppelmakler tätig.
Infrastruktur / Entfernungen
Gesundheit
Arzt <500m
Apotheke <6.000m
Klinik <6.000m
Kinder & Schulen
Schule <500m
Kindergarten <500m
Höhere Schule <6.500m
Universität <6.500m
Nahversorgung
Supermarkt <500m
Bäckerei <500m
Einkaufszentrum <6.000m
Sonstige
Bank <500m
Geldautomat <500m
Post <500m
Polizei <5.500m
Verkehr
Bus <500m
Bahnhof <2.000m
Autobahnanschluss <3.500m
Angaben Entfernung Luftlinie / Quelle: OpenStreetMap
Objektdaten
Flächen
- Grundstücksfläche
- 695m²
Kosten
- Kaufpreis Brutto
- € 173.750,00
Grundstücke zum Kaufen im Umkreis von Katsdorf
Grundstücke zum Kaufen im Umkreis von Katsdorf
Grundstücke zum Kaufen in Österreich
Andere Besucher suchen nach...
- Grundstücke kaufen in 3400 Weidlingbach
- Wohnungen kaufen in 4663 Laakirchen
- Häuser in 7471 Rechnitz
- Wohnungen in 2410 Hainburg an der Donau
- Häuser kaufen in 2432 Schwadorf
- Wohnungen kaufen in 3002 Purkersdorf
- Häuser in 3150 Wilhelmsburg
- Wohnungen kaufen in 3470 Engelmannsbrunn
- Grundstücke kaufen im Bezirk Mattersburg
- Grundstücke kaufen im Bezirk Gmunden