Voll aufgeschlossenes Grundstück in Autobahnnähe - kein Bauzwang
€ 196.320
4975 Suben
Beschreibung
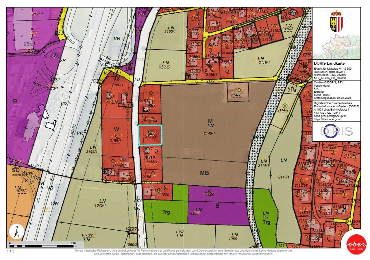
Zum Verkauf steht ein attraktives Baugrundstück mit einer Fläche von 1.636 m² in 4975 Suben. Das Grundstück überzeugt durch seine großzügige Fläche sowie die verkehrsgünstige Lage in unmittelbarer Nähe zur Autobahn. Dadurch eignet sich die Liegenschaft ideal für alle, die eine gute Anbindung schätzen und dennoch ausreichend Platz für ihr individuelles Bauvorhaben suchen. Besonders hervorzuheben ist, dass kein Bauzwang besteht – Sie entscheiden selbst, wann und in welchem Umfang Sie Ihr Bauprojekt realisieren möchten. Das Grundstück ist voll aufgeschlossen, sämtliche Anschlüsse wie Kanal, Wasser und Strom sind bereits vorhanden bzw. vorbereitet. Eckdaten - Grundstücksfläche: 1.636 m² - Lage: 4975 Suben...
Zum Verkauf steht ein attraktives Baugrundstück mit einer Fläche von 1.636 m² in 4975 Suben.
Das Grundstück überzeugt durch seine großzügige Fläche sowie die verkehrsgünstige Lage in unmittelbarer Nähe zur Autobahn. Dadurch eignet sich die Liegenschaft ideal für alle, die eine gute Anbindung schätzen und dennoch ausreichend Platz für ihr individuelles Bauvorhaben suchen.
Besonders hervorzuheben ist, dass kein Bauzwang besteht – Sie entscheiden selbst, wann und in welchem Umfang Sie Ihr Bauprojekt realisieren möchten.
Das Grundstück ist voll aufgeschlossen, sämtliche Anschlüsse wie Kanal, Wasser und Strom sind bereits vorhanden bzw. vorbereitet.
Eckdaten
- Grundstücksfläche: 1.636 m²
- Lage: 4975 Suben
- kein Bauzwang
- voll aufgeschlossen
- Nähe zur Autobahn
- gute Erreichbarkeit und vielseitige Nutzungsmöglichkeiten
Lagebeschreibung
Das Grundstück befindet sich in Suben, einer beliebten Gemeinde im Bezirk Schärding nahe der deutschen Grenze. Besonders hervorzuheben ist die hervorragende Verkehrsanbindung durch die unmittelbare Nähe zur Autobahn, wodurch umliegende Städte und Regionen schnell erreichbar sind.
Die Umgebung bietet eine angenehme Mischung aus ländlicher Ruhe und guter Infrastruktur. Einkaufsmöglichkeiten, Gastronomie sowie weitere Einrichtungen des täglichen Bedarfs befinden sich in den nahegelegenen Gemeinden und Städten.
Gerne können Sie online, telefonisch oder per E-Mail einen individuellen Besichtigungstermin vereinbaren. Wir freuen uns auf Ihre Anfrage!
Bitte beachten Sie, dass wir aus Nachweispflicht gegenüber dem Eigentümer nur Anfragen mit vollständigem Namen und Anschrift bearbeiten können. Gerne senden wir Ihnen ein kostenloses Detailangebot zu. Alle Angaben basieren auf Informationen des Eigentümers bzw. Dritter und erfolgen ohne Gewähr.
Das Grundstück überzeugt durch seine großzügige Fläche sowie die verkehrsgünstige Lage in unmittelbarer Nähe zur Autobahn. Dadurch eignet sich die Liegenschaft ideal für alle, die eine gute Anbindung schätzen und dennoch ausreichend Platz für ihr individuelles Bauvorhaben suchen.
Besonders hervorzuheben ist, dass kein Bauzwang besteht – Sie entscheiden selbst, wann und in welchem Umfang Sie Ihr Bauprojekt realisieren möchten.
Das Grundstück ist voll aufgeschlossen, sämtliche Anschlüsse wie Kanal, Wasser und Strom sind bereits vorhanden bzw. vorbereitet.
Eckdaten
- Grundstücksfläche: 1.636 m²
- Lage: 4975 Suben
- kein Bauzwang
- voll aufgeschlossen
- Nähe zur Autobahn
- gute Erreichbarkeit und vielseitige Nutzungsmöglichkeiten
Lagebeschreibung
Das Grundstück befindet sich in Suben, einer beliebten Gemeinde im Bezirk Schärding nahe der deutschen Grenze. Besonders hervorzuheben ist die hervorragende Verkehrsanbindung durch die unmittelbare Nähe zur Autobahn, wodurch umliegende Städte und Regionen schnell erreichbar sind.
Die Umgebung bietet eine angenehme Mischung aus ländlicher Ruhe und guter Infrastruktur. Einkaufsmöglichkeiten, Gastronomie sowie weitere Einrichtungen des täglichen Bedarfs befinden sich in den nahegelegenen Gemeinden und Städten.
Gerne können Sie online, telefonisch oder per E-Mail einen individuellen Besichtigungstermin vereinbaren. Wir freuen uns auf Ihre Anfrage!
Bitte beachten Sie, dass wir aus Nachweispflicht gegenüber dem Eigentümer nur Anfragen mit vollständigem Namen und Anschrift bearbeiten können. Gerne senden wir Ihnen ein kostenloses Detailangebot zu. Alle Angaben basieren auf Informationen des Eigentümers bzw. Dritter und erfolgen ohne Gewähr.
Objektdaten
Flächen
- Grundstücksfläche
- 1.636m²
Kosten
- Kaufpreis
- € 196.320,00
Grundstücke zum Kaufen in Österreich
Grundstücke zum Kaufen in Österreich
Grundstücke zum Kaufen in Österreich
Andere Besucher suchen nach...
- Grundstücke kaufen in 3400 Weidlingbach
- Wohnungen kaufen in 4663 Laakirchen
- Häuser in 7471 Rechnitz
- Wohnungen in 2410 Hainburg an der Donau
- Häuser kaufen in 2432 Schwadorf
- Wohnungen kaufen in 3002 Purkersdorf
- Häuser in 3150 Wilhelmsburg
- Wohnungen kaufen in 3470 Engelmannsbrunn
- Grundstücke kaufen im Bezirk Mattersburg
- Grundstücke kaufen im Bezirk Gmunden