++Baubewilligtes Projekt inkl. Planung & Grundstück für 6 Doppelhaushälften + 2.608m² großes Grundstück ++
Beschreibung
++Baubewilligtes Projekt inkl. Planung & Grundstück für 6 Doppelhaushälften + 2.608m² großes Grundstück ++ Langenlebarn ist ein Ort im Tullnerfeld an der Donau in Niederösterreich. Er besteht aus zwei Dörfern, Oberaigen und Unteraigen, die jeweils Ortschaften und Katastralgemeinden der Stadtgemeinde Tulln an der Donau im Bezirk Tulln sind. PROJEKT Baubewilligtes Projekt inkl. Planung & Grundstück für 6 Doppelhaushälften,insgesamt 9 Stellplätze mit zwei Zufahrtsstraßen Die Doppelhaushälften werden auf drei Ebenen geplant (EG, OG, DG ohne Keller) Raumaufteilung laut Einreichsplan mit insgesamt 5 Zimmern pro Doppelhaus mit jeweils 2 Bädern und 3 Toiletten Beiliegend finden Sie die Eiereichpläne und den rechtskräftigen...
++Baubewilligtes Projekt inkl. Planung & Grundstück für 6 Doppelhaushälften + 2.608m² großes Grundstück ++
Langenlebarn ist ein Ort im Tullnerfeld an der Donau in Niederösterreich. Er besteht aus zwei Dörfern, Oberaigen und Unteraigen, die jeweils Ortschaften und Katastralgemeinden der Stadtgemeinde Tulln an der Donau im Bezirk Tulln sind.
PROJEKT
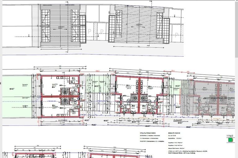
Baubewilligtes Projekt inkl. Planung & Grundstück für 6 Doppelhaushälften,insgesamt 9 Stellplätze mit zwei Zufahrtsstraßen
Die Doppelhaushälften werden auf drei Ebenen geplant (EG, OG, DG ohne Keller)
Raumaufteilung laut Einreichsplan mit insgesamt 5 Zimmern pro Doppelhaus mit jeweils 2 Bädern und 3 Toiletten
Beiliegend finden Sie die Eiereichpläne und den rechtskräftigen Baubescheid von 25.11.2022 in 3425 Langenlebarn-Oberaigen , Tullnerstrasse 111.
Die gesamte Gartenfläche beträgt 2608 m² und ist folgendermaßen aufgeteilt:
WNFL Terrasse Balkon Garten Garten
Doppelhaush. Top 1.1 143,55m² 12,97m² 13,12m² 21,19m² 126m²
Doppelhaush. Top 1.2 146,66m² 13,58m² 13,92m² 22,06m² 126m²
Doppelhaush. Top 2.1 130,68m² 20,88m² 09,03m² 204,75m²
Doppelhaush. Top 2.2 131,89m² 21,03m² 05,40m² 228,26m²
Doppelhaush. Top a/1 143,71m² 14,92m² ----------- 22,31m² 126m²
Doppelhaush. Top a/2 136,35m² 11,66m² 9,00m² 14,07m² 126m²
__________________________________________________________________________________________________________________________
gesamt 832,84m² 95,04m² 50,47m² 512,64m² 504m²
Grundfläche:2608m²
-WNFL: 832,84 m²
-Terrasse+Balkon: 145,51 m²
gesamter Garten: 1.016,64m²
INFRASTRUKTUR:
-Nur 2 km von der Messe Stadt Tulln entfernt! -
-Schnellbahn Verbindung nach Wien, Bahnhof ca. 1,5 km entfernt vom Grundstück!
-Schnellstraße(Krems) Anschluss an die Autobahn A22.-
-Radstrecke Passau/Wien/Bratislava
Die Liegenschaft besitzt über die Oberfeldstraße eine zweite Zufahrt und damit weitere Optionen.
-Abbruch ist genehmigt
-Gas (an der Grundstücksgrenze)
-Wasser (wahlweise Anschluss an öffentliche Wasserleitung)
-Wasser- und Kanalanschluss bereits am Grundstück
Haubenlokal Floh Gastwirt in der Nähe
Supermarkt 1500 m
Bäckerei 2000 m
Einkaufszentrum 6500 m
Post 1000 m
Arzt 1500 m
Krankenhaus 5500 m
Apotheke 5500 m
Autobahnanschluss 5000 m
Bahnhof 1500 m
Flughafen 2500 m
Schule 2000 m
Kaufpreis: € 850.000,-
Kaufnebenkosten:
3,5% Grunderwerbsteuer
1,1% Grundbucheintragungsgebühr
3,0% Maklerhonorar + 20 % MwSt.
?% Vertragserrichtungskosten + 20 % MwSt.
Für nähere Auskünfte steht Ihnen Frau Benes unter +4369911608706 , office@direktfinanzimmo.at jederzeit gerne zur Verfügung.
Firmenname: gb-direkt Finanzberatung & Immobilienhandel GmbH
Ansprechpartner: Frau Benes
Adresse: 1120 Wien, Aßmayergasse 60/1
Telefon: +43/1/81 00 733
Email: office@direktfinanzimmo.at
Mobil: +4369911608706
Fax: +43/1/81 00 733 DW 24
Web: www.direktfinanzimmo.at
Wir weisen darauf hin, dass alle Angaben, auf die sich das vorliegende Exposé/Inserat beziehen, sich ausschließlich auf Daten und Angaben von Verkäufern/Vermietern bzw. sachkundigen Dritten stützen und wir für diese keine, wie auch immer geartete, Haftung übernehmen. Desweiteren geben wir bekannt, dass zwischen den Verkäufern und gb-direkt Finanzberatung & Immobilienhandel GmbH, kein familiäres oder wirtschaftliches Naheverhältnis oder gesellschaftliche Verflechtung besteht. Irrtümer und Änderungen sowie Zwischenverkauf vorbehalten.
Infrastruktur / Entfernungen
Gesundheit
Arzt <1.500m
Apotheke <3.000m
Krankenhaus <3.000m
Klinik <9.000m
Kinder & Schulen
Kindergarten <1.000m
Schule <1.000m
Universität <3.000m
Höhere Schule <4.000m
Nahversorgung
Supermarkt <1.500m
Bäckerei <1.000m
Einkaufszentrum <4.000m
Sonstige
Bank <3.500m
Geldautomat <3.500m
Post <2.000m
Polizei <4.000m
Verkehr
Bus <500m
Autobahnanschluss <4.500m
Bahnhof <1.500m
Flughafen <1.500m
Angaben Entfernung Luftlinie / Quelle: OpenStreetMap
Objektdaten
Dokumente / Links
- J001-01_EI_SN_1102_B_2022-09-11
- J001-01_EI_LP_1000_B_2022-09-11
- J001-01_EI_SN_1002_B_2022-09-11
- J001-01_EI_AN_1003_B_2022-09-11
- 2022-11-25_Baubescheid_3425 Langenlebarn TU 111a -
- 21-08_Baubeschreibung Haus 1_2022-09-11
- J001-01_EI_GR_1101_B_2022-09-11
- J001-01_EI_AN_1103_B_2022-09-11
- J001-01_EI_LP_1100_B_2022-09-11
- J001-01_EI_GR_1101_B_2022-09-11
- J001-01_EI_GR_1001_B_2022-09-11
- 2022-11-25_Baubescheid_3425 Langenlebarn TU 111b -
- 21-08_Baubeschreibung_Haus2+3_2022-09-11
Flächen
- Grundstücksfläche
- 2.608m²
Kosten
- Kaufpreis Brutto
- € 850.000,00
Grundstücke zum Kaufen im Umkreis von Tulln an der Donau
Grundstücke zum Kaufen im Umkreis von Tulln an der Donau
Grundstücke zum Kaufen in Österreich
Andere Besucher suchen nach...
- Grundstücke kaufen in 3400 Weidlingbach
- Wohnungen kaufen in 4663 Laakirchen
- Häuser in 7471 Rechnitz
- Wohnungen in 2410 Hainburg an der Donau
- Häuser kaufen in 2432 Schwadorf
- Wohnungen kaufen in 3002 Purkersdorf
- Häuser in 3150 Wilhelmsburg
- Wohnungen kaufen in 3470 Engelmannsbrunn
- Grundstücke kaufen im Bezirk Mattersburg
- Grundstücke kaufen im Bezirk Gmunden