Grundstück in Altenberg bei Linz zu kaufen! Umwidmung bereits beantragt
€ 289.000
4203 Altenberg bei Linz
Beschreibung
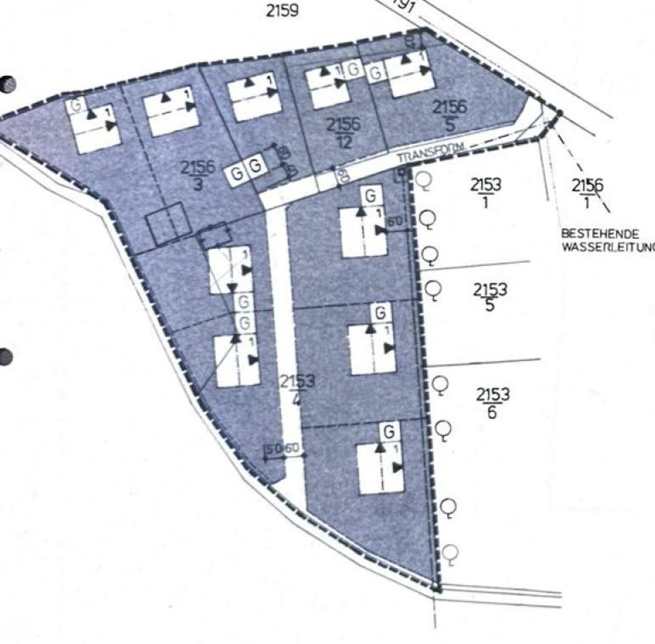
VERWIRKLICHEN SIE IHR TRAUMHAUS IN ALTENBERG BEI LINZ Nur 15 Autominuten von der Landeshauptstadt entfernt, steht dieses sonnige Grundstück in einer ruhigen, idyllischen Wohnsiedlung zum Verkauf. Eckdaten: Widmung: Umwidmung auf Bauland bereits angesucht Fläche: ca. 944 m² Bebauungsplan seitens der Gemeinde Altenberg liegt vor Hervorragende Infrastruktur Die Kosten für die Umwidmung werden vom Verkäufer getragen. Die zukünftigen Anschluss- bzw. Aufschliessungsgebühren (Wasser, Kanal und Verkehrsflächenbeitrag) seitens der Gemeinde (Beispiel Einfamilienhaus mit ca. 150 m² für das Jahr 2025) belaufen sich auf ca. 14.000.-. Gerne stehen wir Ihnen für Rückfragen oder zur Vereinbarung einer unverbindlichen Besichtigung vorort jederzeit zur Verfügung! Nähere Informationen...
VERWIRKLICHEN SIE IHR TRAUMHAUS IN ALTENBERG BEI LINZ
Nur 15 Autominuten von der Landeshauptstadt entfernt, steht dieses sonnige Grundstück in einer ruhigen, idyllischen Wohnsiedlung zum Verkauf.
Eckdaten:
Widmung: Umwidmung auf Bauland bereits angesucht
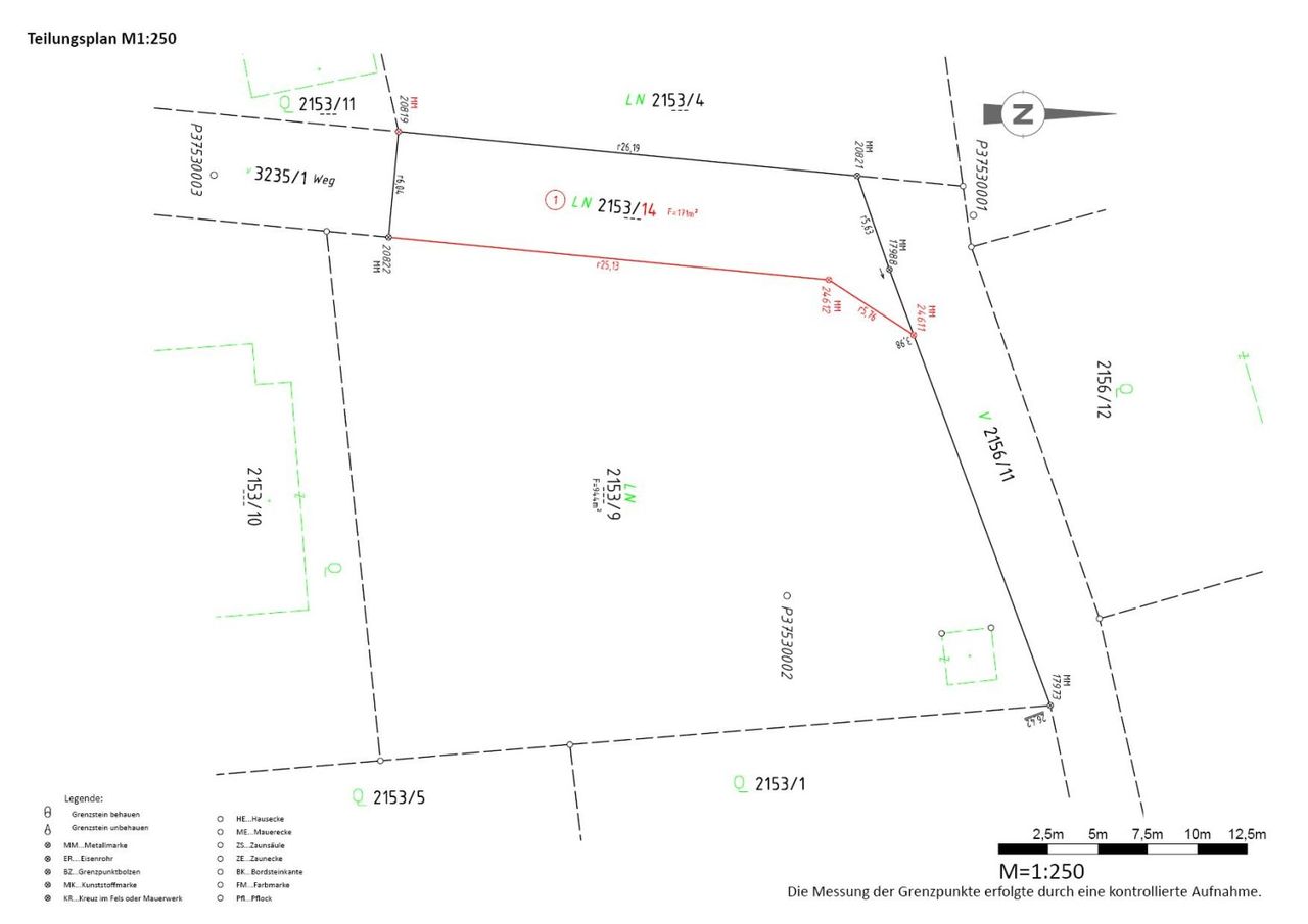
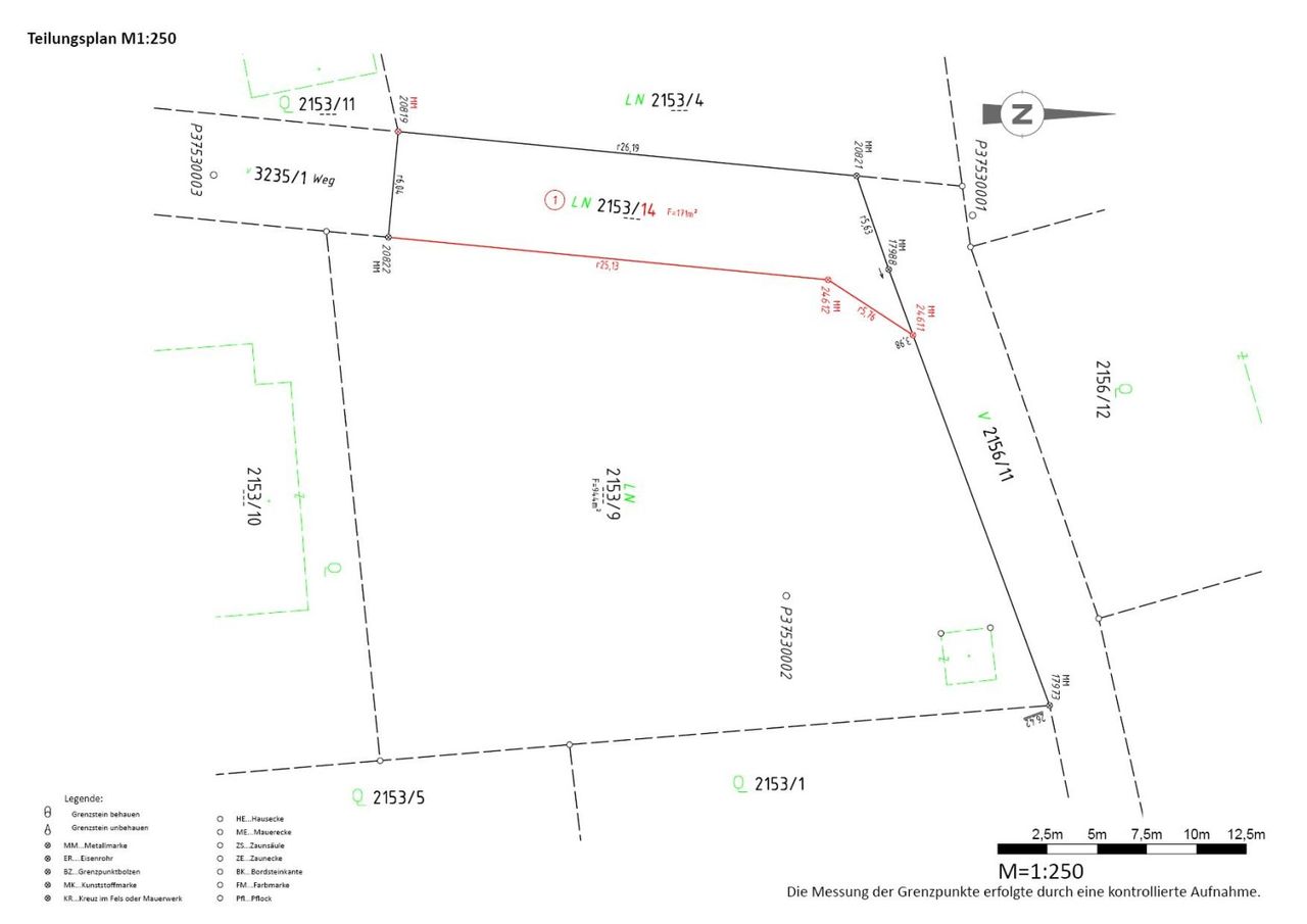
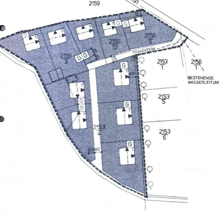
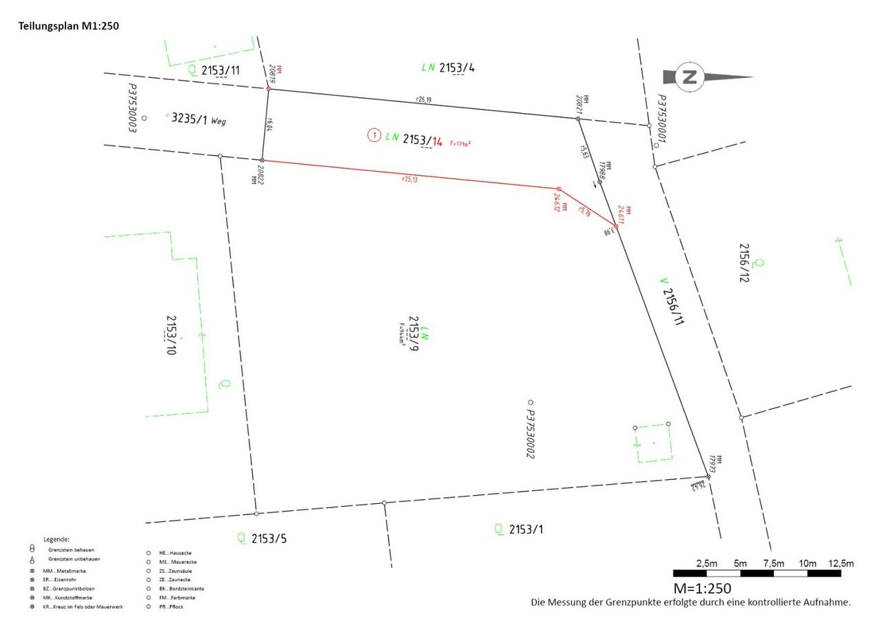
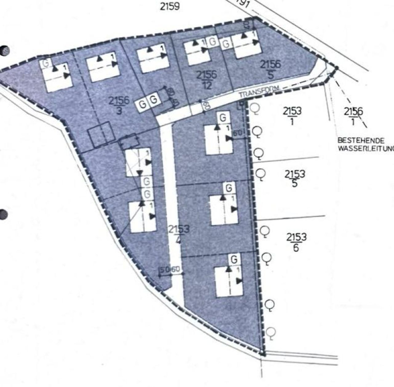
Fläche: ca. 944 m²
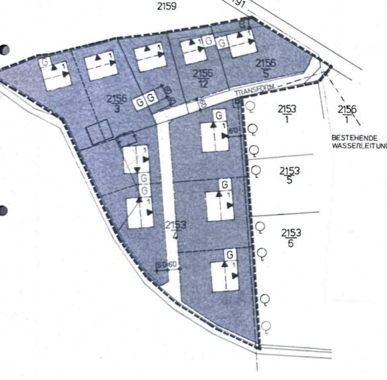
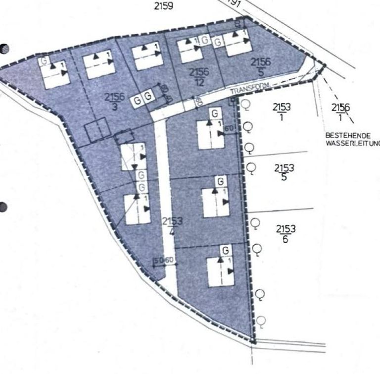
Bebauungsplan seitens der Gemeinde Altenberg liegt vor
Hervorragende Infrastruktur
Die Kosten für die Umwidmung werden vom Verkäufer getragen.
Die zukünftigen Anschluss- bzw. Aufschliessungsgebühren (Wasser, Kanal und Verkehrsflächenbeitrag) seitens der Gemeinde (Beispiel Einfamilienhaus mit ca. 150 m² für das Jahr 2025) belaufen sich auf ca. 14.000.-.
Gerne stehen wir Ihnen für Rückfragen oder zur Vereinbarung einer unverbindlichen Besichtigung vorort jederzeit zur Verfügung!
Nähere Informationen & Details erhalten Sie bei unserem zuständigen Makler
Mario Feistritzer, MBA (feistritzer@projektas.at - 0650 / 90 70 230)
Hinweis: Wir verarbeiten personenbezogene Daten zu geschäftlichen Zwecken. Nähere Informationen finden Sie unter www.projektas.at
Nur 15 Autominuten von der Landeshauptstadt entfernt, steht dieses sonnige Grundstück in einer ruhigen, idyllischen Wohnsiedlung zum Verkauf.
Eckdaten:
Widmung: Umwidmung auf Bauland bereits angesucht
Fläche: ca. 944 m²
Bebauungsplan seitens der Gemeinde Altenberg liegt vor
Hervorragende Infrastruktur
Die Kosten für die Umwidmung werden vom Verkäufer getragen.
Die zukünftigen Anschluss- bzw. Aufschliessungsgebühren (Wasser, Kanal und Verkehrsflächenbeitrag) seitens der Gemeinde (Beispiel Einfamilienhaus mit ca. 150 m² für das Jahr 2025) belaufen sich auf ca. 14.000.-.
Gerne stehen wir Ihnen für Rückfragen oder zur Vereinbarung einer unverbindlichen Besichtigung vorort jederzeit zur Verfügung!
Nähere Informationen & Details erhalten Sie bei unserem zuständigen Makler
Mario Feistritzer, MBA (feistritzer@projektas.at - 0650 / 90 70 230)
Hinweis: Wir verarbeiten personenbezogene Daten zu geschäftlichen Zwecken. Nähere Informationen finden Sie unter www.projektas.at
Objektdaten
Ausstattung
- Dorfrand
- Sonnige Lage
- Hanglage
Dokumente / Links
Flächen
- Grundstücksfläche
- 944m²
Kosten
- Kaufpreis
- € 289.000,00
Grundstücke zum Kaufen in Österreich
Grundstücke zum Kaufen in Österreich
Grundstücke zum Kaufen in Österreich
Andere Besucher suchen nach...
- Grundstücke kaufen in 3400 Weidlingbach
- Wohnungen kaufen in 4663 Laakirchen
- Häuser in 7471 Rechnitz
- Wohnungen in 2410 Hainburg an der Donau
- Häuser kaufen in 2432 Schwadorf
- Wohnungen kaufen in 3002 Purkersdorf
- Häuser in 3150 Wilhelmsburg
- Wohnungen kaufen in 3470 Engelmannsbrunn
- Grundstücke kaufen im Bezirk Mattersburg
- Grundstücke kaufen im Bezirk Gmunden