PROVISIONSFREIES Baugrundstück mit genehmigtem Villenprojekt in exklusiver Siedlungslage von Weißkirchen
€ 189.000
4616 Weißkirchen
Beschreibung
In einer der begehrtesten Wohnlagen von 4616 Weißkirchen, eingebettet in eine ruhige, hochwertige Siedlung, bietet sich hier eine seltene Gelegenheit: Ein 688 m² großes Baugrundstück in sonniger Lage, kombiniert mit einem bereits genehmigten Bauplan für eine moderne Villa – inklusive Pool und Doppelgarage. Dieses Grundstück vereint Ruhe, Privatsphäre und perfekte Anbindung und eignet sich ideal für all jene, die ihren Traum vom Eigenheim ohne Zeitverlust realisieren möchten. DAS GRUNDSTÜCK – SOFORT BAUBAR & PERFEKT VORBEREITET Das Grundstück liegt in einer sehr gepflegten Wohnsiedlung, geprägt von Einfamilienhäusern, viel Grün und einem angenehmen, familienfreundlichen Umfeld. Dank der bereits erledigten Vorarbeiten kann hier...
In einer der begehrtesten Wohnlagen von 4616 Weißkirchen, eingebettet in eine ruhige, hochwertige Siedlung, bietet sich hier eine seltene Gelegenheit:
Ein 688 m² großes Baugrundstück in sonniger Lage, kombiniert mit einem bereits genehmigten Bauplan für eine moderne Villa – inklusive Pool
und Doppelgarage.
Dieses Grundstück vereint Ruhe, Privatsphäre und perfekte Anbindung und eignet sich ideal für all jene, die ihren Traum vom Eigenheim ohne Zeitverlust realisieren möchten.
DAS GRUNDSTÜCK – SOFORT BAUBAR & PERFEKT VORBEREITET
Das Grundstück liegt in einer sehr gepflegten Wohnsiedlung, geprägt von Einfamilienhäusern, viel Grün und einem angenehmen, familienfreundlichen Umfeld.
Dank der bereits erledigten Vorarbeiten kann hier sofort mit dem Bau begonnen werden.
Alle Anschlusskosten wurden bereits vollständig bezahlt:
Kanal, Wasser sowie Verkehrsflächenbeitrag sind erledigt – ein großer finanzieller und organisatorischer Vorteil.
Mit 688 m² Grundstücksfläche bietet das Grundstück ausreichend Platz für großzügiges Wohnen, Gartenflächen, Terrasse und Pool – ohne Kompromisse.
GENEHMIGTER BAUPLAN – LUXUSVILLA MIT POOL
Ein besonderer Mehrwert dieses Angebots ist der bereits genehmigte Bauplan für eine moderne, stilvolle Villa.
Der Plan kann sofort umgesetzt werden und erspart Monate an Planungs- und Genehmigungszeit.
Geplantes Wohnkonzept:
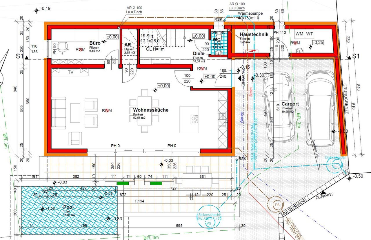
Die Villa verfügt über ca. 147 m² Wohnfläche und überzeugt durch eine klare, moderne Architektur.
Der offene Wohn-, Ess- und Kochbereich bildet das Herzstück des Hauses und öffnet sich über große Glasflächen direkt zur Terrasse, in den Garten und zum geplanten Pool.
Drei großzügige Schlafzimmer, eines davon mit eigenem Schrankraum, sowie stilvolle, großzügige Badezimmer schaffen ein hochwertiges Wohngefühl für die ganze Familie.
Eine Doppelgarage rundet das durchdachte Gesamtkonzept ab.
Ob Sie den bestehenden Plan übernehmen oder individuell anpassen möchten – die Basis für ein hochwertiges Zuhause ist bereits geschaffen.
LAGE – RUHIGE SIEDLUNGSLAGE MIT PERFEKTER ANBINDUNG
Mikrolage:
Das Grundstück befindet sich in einer absolut ruhigen Siedlungslage ohne Durchzugsverkehr.
Die Nachbarschaft ist geprägt von gepflegten Einfamilienhäusern, viel Grün und hoher Wohnqualität – ideal für Familien, Ruhesuchende und anspruchsvolle Bauherren.
Makrolage:
Weißkirchen überzeugt durch seine hervorragende Lage zwischen Wels und Linz.
Einkaufsmöglichkeiten, Schulen, Kindergärten, medizinische Versorgung und öffentliche Verkehrsanbindung sind rasch erreichbar.
Die Nähe zu den wirtschaftsstarken Zentren macht diesen Standort besonders attraktiv – sowohl für Eigennutzer als auch als langfristige Wertanlage.
FAZIT – BAUEN OHNE UMWEGE
Dieses Grundstück bietet eine Kombination, die nur selten am Markt zu finden ist:
Eine exklusive Siedlungslage, bereits bezahlte Anschlusskosten, ein genehmigter Bauplan und die Möglichkeit, sofort mit dem Bau zu starten.
Interesse? Dann schicken Sie uns bitte Ihren vollständigen Namen, Wohnadresse, Telefonnummer & Ihre E-Mailadresse und wir senden Ihnen ein aussagekräftiges Exposé mit allen relevanten Unterlagen. Bitte beachten Sie, dass wir aufgrund der Nachweispflicht gegenüber dem Eigentümer nur Anfragen mit allen Kontaktdaten bearbeiten können.
Gerne können wir im Anschluss eine unverbindliche und kostenlose Besichtigung vereinbaren. Danke!
Unser Tipp:
Sie sind auf der Suche nach einer passenden Immobilie?
Alle unsere Angebote finden Sie tagesaktuell im Internet unter www.toprealimmobilien.at
Teilen Sie uns Ihren Suchwunsch mit - dann werden Sie noch schneller & exklusiv über Ihre potentielle Wunschimmobilie informiert.
Überlegen Sie Ihre derzeitige Immobilie zu veräußern? Gerne können Sie Ihre Immobilie kostenlos über das TOP-REAL Team bewerten lassen.
Ein 688 m² großes Baugrundstück in sonniger Lage, kombiniert mit einem bereits genehmigten Bauplan für eine moderne Villa – inklusive Pool
und Doppelgarage.
Dieses Grundstück vereint Ruhe, Privatsphäre und perfekte Anbindung und eignet sich ideal für all jene, die ihren Traum vom Eigenheim ohne Zeitverlust realisieren möchten.
DAS GRUNDSTÜCK – SOFORT BAUBAR & PERFEKT VORBEREITET
Das Grundstück liegt in einer sehr gepflegten Wohnsiedlung, geprägt von Einfamilienhäusern, viel Grün und einem angenehmen, familienfreundlichen Umfeld.
Dank der bereits erledigten Vorarbeiten kann hier sofort mit dem Bau begonnen werden.
Alle Anschlusskosten wurden bereits vollständig bezahlt:
Kanal, Wasser sowie Verkehrsflächenbeitrag sind erledigt – ein großer finanzieller und organisatorischer Vorteil.
Mit 688 m² Grundstücksfläche bietet das Grundstück ausreichend Platz für großzügiges Wohnen, Gartenflächen, Terrasse und Pool – ohne Kompromisse.
GENEHMIGTER BAUPLAN – LUXUSVILLA MIT POOL
Ein besonderer Mehrwert dieses Angebots ist der bereits genehmigte Bauplan für eine moderne, stilvolle Villa.
Der Plan kann sofort umgesetzt werden und erspart Monate an Planungs- und Genehmigungszeit.
Geplantes Wohnkonzept:
Die Villa verfügt über ca. 147 m² Wohnfläche und überzeugt durch eine klare, moderne Architektur.
Der offene Wohn-, Ess- und Kochbereich bildet das Herzstück des Hauses und öffnet sich über große Glasflächen direkt zur Terrasse, in den Garten und zum geplanten Pool.
Drei großzügige Schlafzimmer, eines davon mit eigenem Schrankraum, sowie stilvolle, großzügige Badezimmer schaffen ein hochwertiges Wohngefühl für die ganze Familie.
Eine Doppelgarage rundet das durchdachte Gesamtkonzept ab.
Ob Sie den bestehenden Plan übernehmen oder individuell anpassen möchten – die Basis für ein hochwertiges Zuhause ist bereits geschaffen.
LAGE – RUHIGE SIEDLUNGSLAGE MIT PERFEKTER ANBINDUNG
Mikrolage:
Das Grundstück befindet sich in einer absolut ruhigen Siedlungslage ohne Durchzugsverkehr.
Die Nachbarschaft ist geprägt von gepflegten Einfamilienhäusern, viel Grün und hoher Wohnqualität – ideal für Familien, Ruhesuchende und anspruchsvolle Bauherren.
Makrolage:
Weißkirchen überzeugt durch seine hervorragende Lage zwischen Wels und Linz.
Einkaufsmöglichkeiten, Schulen, Kindergärten, medizinische Versorgung und öffentliche Verkehrsanbindung sind rasch erreichbar.
Die Nähe zu den wirtschaftsstarken Zentren macht diesen Standort besonders attraktiv – sowohl für Eigennutzer als auch als langfristige Wertanlage.
FAZIT – BAUEN OHNE UMWEGE
Dieses Grundstück bietet eine Kombination, die nur selten am Markt zu finden ist:
Eine exklusive Siedlungslage, bereits bezahlte Anschlusskosten, ein genehmigter Bauplan und die Möglichkeit, sofort mit dem Bau zu starten.
Interesse? Dann schicken Sie uns bitte Ihren vollständigen Namen, Wohnadresse, Telefonnummer & Ihre E-Mailadresse und wir senden Ihnen ein aussagekräftiges Exposé mit allen relevanten Unterlagen. Bitte beachten Sie, dass wir aufgrund der Nachweispflicht gegenüber dem Eigentümer nur Anfragen mit allen Kontaktdaten bearbeiten können.
Gerne können wir im Anschluss eine unverbindliche und kostenlose Besichtigung vereinbaren. Danke!
Unser Tipp:
Sie sind auf der Suche nach einer passenden Immobilie?
Alle unsere Angebote finden Sie tagesaktuell im Internet unter www.toprealimmobilien.at
Teilen Sie uns Ihren Suchwunsch mit - dann werden Sie noch schneller & exklusiv über Ihre potentielle Wunschimmobilie informiert.
Überlegen Sie Ihre derzeitige Immobilie zu veräußern? Gerne können Sie Ihre Immobilie kostenlos über das TOP-REAL Team bewerten lassen.
Objektdaten
Flächen
- Grundstücksfläche
- 688m²
Kosten
- Kaufpreis
- € 189.000,00
Grundstücke zum Kaufen in Österreich
Grundstücke zum Kaufen in Österreich
Grundstücke zum Kaufen in Österreich
Andere Besucher suchen nach...
- Grundstücke kaufen in 3400 Weidlingbach
- Wohnungen kaufen in 4663 Laakirchen
- Häuser in 7471 Rechnitz
- Wohnungen in 2410 Hainburg an der Donau
- Häuser kaufen in 2432 Schwadorf
- Wohnungen kaufen in 3002 Purkersdorf
- Häuser in 3150 Wilhelmsburg
- Wohnungen kaufen in 3470 Engelmannsbrunn
- Grundstücke kaufen im Bezirk Mattersburg
- Grundstücke kaufen im Bezirk Gmunden