Grundstück und Doppelhaus Krenglbach
€ 470.132
€ 3.918 / m²
4631 Krenglbach
Beschreibung
Die Lage spricht schon für sich. Die Ausrichtung der Gärten erfolgt großteils nach Süd. Die Häuser in vorderer Reihe haben einen unverbaubaren Ausblick Das Grundstück liegt an einer Siedlungsstraße die wenig befahren wird. Öffentliche Einrichtungen wie Arzt, Kindergarten und Schulen sowie Einkaufsmöglichkeiten findet man im Ort oder im nahem Wels. Wohnflächen sind ab 100 m2 möglich. Wahlweise kann mit oder ohne Keller gebaut werden. Ausgeführt werden die Häuser in Ziegelmassiv nach den aktuellen Energiestandards. Objektbeschreibung Doppelhaushälfte belagsfertige Ausstattung inclusive Grundanteil. Größen ab 100m2 Ziegelmassivbauweise Wärmepumpenheizung 3 Scheibenverglasung mit Sonnenschutz individuelle Raumaufteilung Sonstiges Kaufpreise brutto, in belagsfertiger Ausführung lt. Bau- und...
Die Lage spricht schon für sich. Die Ausrichtung der Gärten erfolgt großteils nach Süd. Die Häuser in vorderer Reihe haben einen unverbaubaren Ausblick
Das Grundstück liegt an einer Siedlungsstraße die wenig befahren wird.
Öffentliche Einrichtungen wie Arzt, Kindergarten und Schulen sowie Einkaufsmöglichkeiten findet man im Ort oder im nahem Wels.
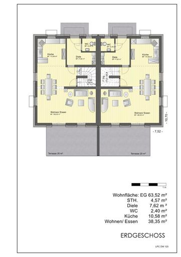
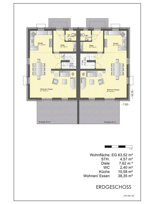
Wohnflächen sind ab 100 m2 möglich. Wahlweise kann mit oder ohne Keller gebaut werden.
Ausgeführt werden die Häuser in Ziegelmassiv nach den aktuellen Energiestandards.
Objektbeschreibung
Doppelhaushälfte belagsfertige Ausstattung inclusive Grundanteil. Größen ab 100m2
Ziegelmassivbauweise
Wärmepumpenheizung
3 Scheibenverglasung mit Sonnenschutz
individuelle Raumaufteilung
Sonstiges
Kaufpreise brutto, in belagsfertiger Ausführung lt. Bau- und Ausstattungsbeschreibung inkl. Grundanteil und Anschlusskosten
NICHT IM KAUFPREIS INKLUDIERT: Kaufnebenkosten (3,5% Grunderwerbssteuer, 1,1% Grundbucheintragungsgebühr, 1,2% Vertragserrichtungskosten zzgl. USt., Barauslagen und notarieller Beglaubigung), ev. Pfandrechtsgebühren bei Finanzierung
Das Grundstück liegt an einer Siedlungsstraße die wenig befahren wird.
Öffentliche Einrichtungen wie Arzt, Kindergarten und Schulen sowie Einkaufsmöglichkeiten findet man im Ort oder im nahem Wels.
Wohnflächen sind ab 100 m2 möglich. Wahlweise kann mit oder ohne Keller gebaut werden.
Ausgeführt werden die Häuser in Ziegelmassiv nach den aktuellen Energiestandards.
Objektbeschreibung
Doppelhaushälfte belagsfertige Ausstattung inclusive Grundanteil. Größen ab 100m2
Ziegelmassivbauweise
Wärmepumpenheizung
3 Scheibenverglasung mit Sonnenschutz
individuelle Raumaufteilung
Sonstiges
Kaufpreise brutto, in belagsfertiger Ausführung lt. Bau- und Ausstattungsbeschreibung inkl. Grundanteil und Anschlusskosten
NICHT IM KAUFPREIS INKLUDIERT: Kaufnebenkosten (3,5% Grunderwerbssteuer, 1,1% Grundbucheintragungsgebühr, 1,2% Vertragserrichtungskosten zzgl. USt., Barauslagen und notarieller Beglaubigung), ev. Pfandrechtsgebühren bei Finanzierung
Objektdaten
Ausstattung
- Aussichtslage
- Aussichtslage Unverbaubar
- Grüne Lage
Flächen
- Nutzfläche
- 120m²
- Grundstücksfläche
- 410m²
Kosten
- Kaufpreis
- € 470.132,00
Grundstücke zum Kaufen in Österreich
Grundstücke zum Kaufen in Österreich
Grundstücke zum Kaufen in Österreich
Andere Besucher suchen nach...
- Grundstücke kaufen in 3400 Weidlingbach
- Wohnungen kaufen in 4663 Laakirchen
- Häuser in 7471 Rechnitz
- Wohnungen in 2410 Hainburg an der Donau
- Häuser kaufen in 2432 Schwadorf
- Wohnungen kaufen in 3002 Purkersdorf
- Häuser in 3150 Wilhelmsburg
- Wohnungen kaufen in 3470 Engelmannsbrunn
- Grundstücke kaufen im Bezirk Mattersburg
- Grundstücke kaufen im Bezirk Gmunden