Vielseitige Gewerbeliegenschaft mit Ertragspotenzial
Beschreibung
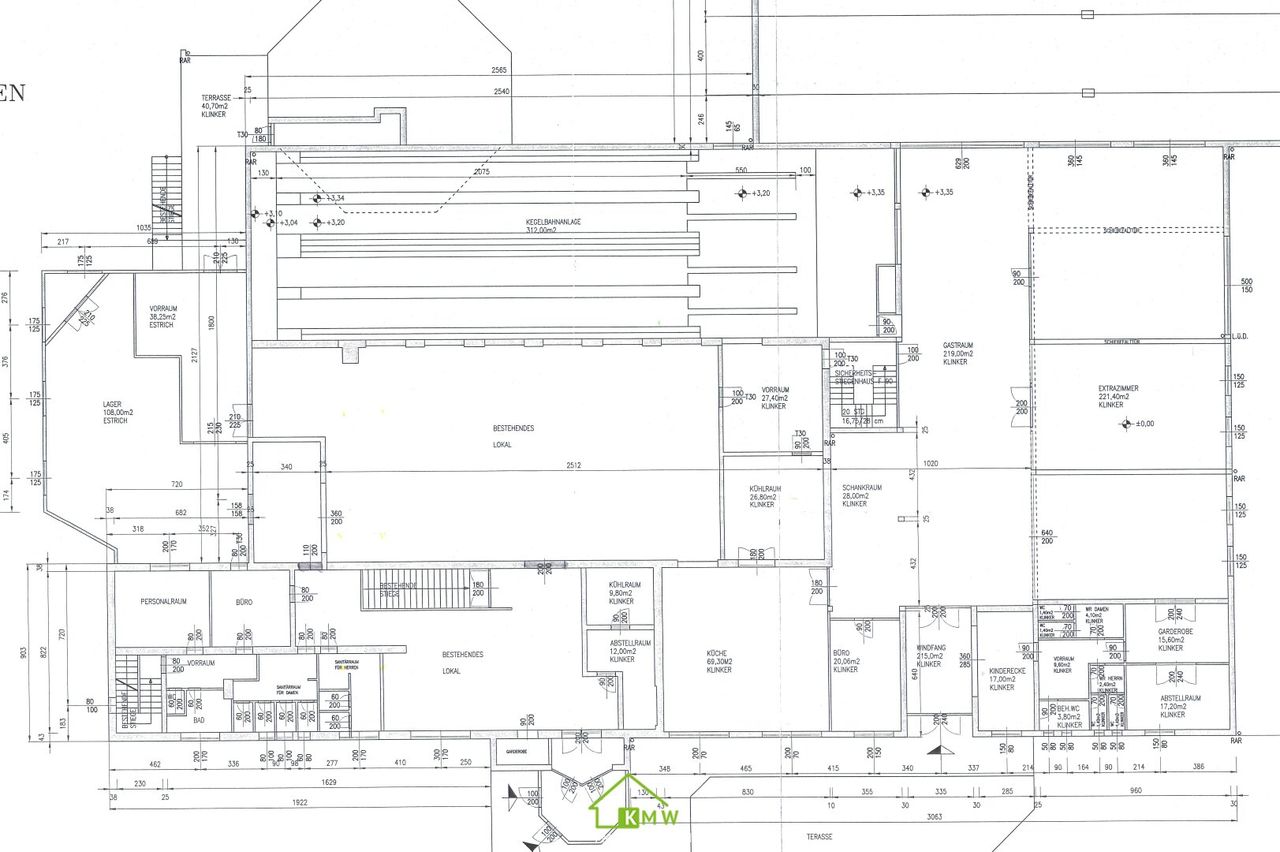
Diese großzügige Betriebsliegenschaft bietet auf rund 4.000 m² Nutzfläche eine seltene Kombination aus Freizeit-Infrastruktur, Gastronomieflächen und gewerblichem Potenzial. Gelegen im charmanten Hadersdorf am Kamp, besticht das Objekt durch seine flexiblen Nutzungsmöglichkeiten.
Das Areal gliedert sich in verschiedene Funktionsbereiche:
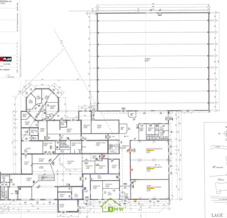
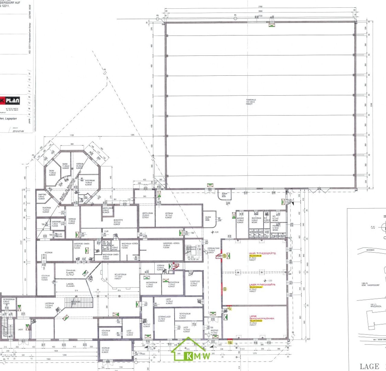
- Sport & Freizeit: Eine gepflegte Tennishalle mit zwei Spielfeldern sowie vermietete Flächen (Tanzstudio) mit Sanitärbereichen.
- Gastronomie & Event: Ein ehemaliges, weiträumiges Diskolokal sowie ein separater Gastronomiebereich, der sich ideal für Events, Systemgastronomie oder als Kantine eignet.
- Infrastruktur: Weitere Freiflächen sowie ausreichend Lager- und Nebenflächen.
Highlights & Potenzial
- Flexible Nutzung: Ob als Sportzentrum, moderner Gewerbebetrieb, Lagerstützpunkt oder Büro ...
Diese großzügige Betriebsliegenschaft bietet auf rund 4.000 m² Nutzfläche eine seltene Kombination aus Freizeit-Infrastruktur, Gastronomieflächen und gewerblichem Potenzial. Gelegen im charmanten Hadersdorf am Kamp, besticht das Objekt durch seine flexiblen Nutzungsmöglichkeiten.
Das Areal gliedert sich in verschiedene Funktionsbereiche:
- Sport & Freizeit: Eine gepflegte Tennishalle mit zwei Spielfeldern sowie vermietete Flächen (Tanzstudio) mit Sanitärbereichen.
- Gastronomie & Event: Ein ehemaliges, weiträumiges Diskolokal sowie ein separater Gastronomiebereich, der sich ideal für Events, Systemgastronomie oder als Kantine eignet.
- Infrastruktur: Weitere Freiflächen sowie ausreichend Lager- und Nebenflächen.
Highlights & Potenzial
- Flexible Nutzung: Ob als Sportzentrum, moderner Gewerbebetrieb, Lagerstützpunkt oder Büro
- Bestehende Erträge: Die Liegenschaft ist bereits teilweise vermietet, was von Tag eins an für einen stabilen Cashflow sorgt.
- Lage: Strategisch günstig im Kamptal gelegen, mit guter Anbindung an die Achse Krems – Stockerau (S5/S33).
- eigene Stromgewinnung: vorhandene PV-Anlage
- Parken: ausreichend Parkmöglichkeiten sind vor der Liegenschaft vorhanden
Bei gegenständlicher Liegenschaft handelt es sich um ein Superädifikat.
Weitere Informationen erhalten Sie gerne bei konkretem Interesse!
Ich freue mich auf Ihre Anfrage!
Infrastruktur / Entfernungen
Gesundheit
Arzt <3.000m
Apotheke <500m
Klinik <3.000m
Krankenhaus <9.000m
Kinder & Schulen
Schule <500m
Kindergarten <1.000m
Höhere Schule <9.000m
Universität <10.000m
Nahversorgung
Supermarkt <1.000m
Bäckerei <500m
Einkaufszentrum <8.500m
Sonstige
Bank <500m
Geldautomat <500m
Post <500m
Polizei <500m
Verkehr
Bus <500m
Autobahnanschluss <5.500m
Bahnhof <1.500m
Flughafen <6.500m
Angaben Entfernung Luftlinie / Quelle: OpenStreetMap
Objektdaten
Flächen
- Nutzfläche
- 4.000m²
Kosten
- Kaufpreis Brutto
- € 580.000,00
Hallen und Lager zum Kaufen im Umkreis von Hadersdorf-Kammern
Hallen und Lager zum Kaufen im Umkreis von Hadersdorf-Kammern
Hallen und Lager zum Kaufen in Österreich
Andere Besucher suchen nach...
- Grundstücke kaufen in 3400 Weidlingbach
- Wohnungen kaufen in 4663 Laakirchen
- Häuser in 7471 Rechnitz
- Wohnungen in 2410 Hainburg an der Donau
- Häuser kaufen in 2432 Schwadorf
- Wohnungen kaufen in 3002 Purkersdorf
- Häuser in 3150 Wilhelmsburg
- Wohnungen kaufen in 3470 Engelmannsbrunn
- Grundstücke kaufen im Bezirk Mattersburg
- Grundstücke kaufen im Bezirk Gmunden