Barrierefreie Gewerbefläche mit vielseitigen Nutzungsmöglichkeiten in Zeltweg – Bahnhofstraße 73
-
sofort
Beschreibung
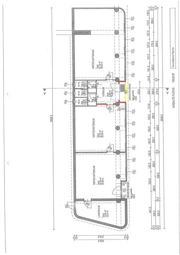
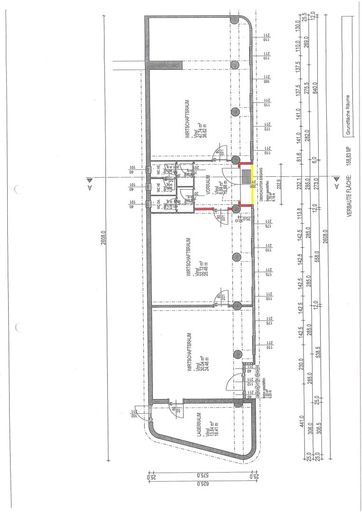
Zum Verkauf gelangt eine barrierefreie, modernisierungswürdige Gewerbefläche in der Bahnhofstraße 73 in Zeltweg, welche zuletzt als Eisdiele bzw. Gastrolokal genutzt wurde.
Die Liegenschaft bietet ideale Voraussetzungen für Käufer, die ihre eigene Vision und ein individuelles Nutzungskonzept umsetzen möchten.
Die Gesamtfläche beträgt ca. 151 m² und besteht aus zwei eigenständigen Einheiten: - Einheit 1: ca. 67 m² - Einheit 2: ca. 84 m²
Derzeit sind beide Einheiten zusammengelegt nutzbar, können jedoch bei Bedarf wieder getrennt werden, da es sich um zwei separate Einheiten handelt. Dadurch ergeben sich flexible Nutzungsmöglichkeiten, beispielsweise für unterschiedliche Konzepte oder eine Teilung in zwei Geschäftslokale.
Das...
Zum Verkauf gelangt eine barrierefreie, modernisierungswürdige Gewerbefläche in der Bahnhofstraße 73 in Zeltweg, welche zuletzt als Eisdiele bzw. Gastrolokal genutzt wurde.
Die Liegenschaft bietet ideale Voraussetzungen für Käufer, die ihre eigene Vision und ein individuelles Nutzungskonzept umsetzen möchten.
Die Gesamtfläche beträgt ca. 151 m² und besteht aus zwei eigenständigen Einheiten:
- Einheit 1: ca. 67 m²
- Einheit 2: ca. 84 m²
Derzeit sind beide Einheiten zusammengelegt nutzbar, können jedoch bei Bedarf wieder getrennt werden, da es sich um zwei separate Einheiten handelt. Dadurch ergeben sich flexible Nutzungsmöglichkeiten, beispielsweise für unterschiedliche Konzepte oder eine Teilung in zwei Geschäftslokale.
Das Objekt verfügt über zwei separate Eingänge – ein straßenseitiges Haupteingangsportal sowie einen weiteren Zugang – und ist ebenerdig begehbar.
Ob Gastronomie, Praxis oder Ordination, Büro, Studio oder Start-up – diese Gewerbefläche bietet vielfältige Gestaltungs- und Nutzungsmöglichkeiten.
Ich freue mich auf Ihre Anfragen und stehe Ihnen gerne für Besichtigungstermine zur Verfügung.
Hinweis: Bilder mit KI-bearbeitet
RE/MAX Life Knittelfeld seit 18 Jahren Ihr Immobilienpartner im Murtal!
Karriere als Immobilienexpert:in?
Wenn Arbeit Freiheit bedeutet und Erfolg kein Zufall ist.
Schnuppertag, Einblicke die man sonst nicht bekommt - Anmeldung unter 03512 600 11.
Der Vermittler ist als Doppelmakler tätig.
Infrastruktur / Entfernungen
Gesundheit
Arzt <500m
Apotheke <1.000m
Krankenhaus <1.000m
Kinder & Schulen
Schule <500m
Kindergarten <500m
Nahversorgung
Supermarkt <500m
Bäckerei <500m
Einkaufszentrum <500m
Sonstige
Bank <500m
Geldautomat <500m
Post <500m
Polizei <4.500m
Verkehr
Bus <500m
Autobahnanschluss <2.500m
Bahnhof <500m
Flughafen <2.000m
Angaben Entfernung Luftlinie / Quelle: OpenStreetMap
Objektdaten
Ausstattung
- Zentralheizung
- Befeuerung mit Gas
- Teilmöbliert
Dokumente / Links
Zustand
- Baujahr
- 1954
- HWB
- 44.8 kWh/m² pro Jahr
- Klasse HWB
- B
- fGEE
- 1.07
- Klasse fGEE
- C
Flächen
- Nutzfläche
- 151m²
Kosten
- Kaufpreis Brutto
- € 72.000,00
- Betriebskosten
- € 899,57
Verwaltung
- Verfügbar ab
- sofort
Hallen und Lager zum Kaufen im Umkreis von Zeltweg
Hallen und Lager zum Kaufen im Umkreis von Zeltweg
Hallen und Lager zum Kaufen in Österreich
Andere Besucher suchen nach...
- Grundstücke kaufen in 3400 Weidlingbach
- Wohnungen kaufen in 4663 Laakirchen
- Häuser in 7471 Rechnitz
- Wohnungen in 2410 Hainburg an der Donau
- Häuser kaufen in 2432 Schwadorf
- Wohnungen kaufen in 3002 Purkersdorf
- Häuser in 3150 Wilhelmsburg
- Wohnungen kaufen in 3470 Engelmannsbrunn
- Grundstücke kaufen im Bezirk Mattersburg
- Grundstücke kaufen im Bezirk Gmunden