TOP RENDITEOBJEKT - herrliches, branchenfreies Geschäftslokal in sehr begehrter und frequentierter Lage
€ 990.000
€ 9.000 / m²
1180 Wien, Währing
-
in Verhandlung
Beschreibung
TOP RENDITEOBJEKT- herrliches, branchenfreies Geschäftslokal in sehr begehrter und frequentierter Lage. Zum Verkauf gelangt ein sehr schickes, branchenfreies Geschäftslokal in einer sehr frequentierten Lage. Das Gewerbeobjekt wird derzeit als stylischer Friseursalon genutzt und soll als Renditeobjekt verkauft werden. Anbei die Fotos. Dieses herrliche Geschäftslokal befindet sich barrierefrei im Erdgeschoß in einer sehr ansprechenden Stil-Altbauliegenschaft und besticht durch ihre äußerst luxuriöse Ausstattung und die hervorragende, sehr beliebte Lage. Es erwartet Sie: Ein traumhaftes, ca.110 m2 großes Geschäftslokal, größtenteils offen, tolle Verglasung, diverse Nebenräume, 2 Toiletten, sowie einem Wirtschafts/Technikraum. Die Räumlichkeiten sind auf Grund edler Materialien sehr exklusiv und luxuriös ausgestattet mit...
TOP RENDITEOBJEKT- herrliches, branchenfreies Geschäftslokal in sehr begehrter und frequentierter Lage.
Zum Verkauf gelangt ein sehr schickes, branchenfreies Geschäftslokal in einer sehr frequentierten Lage. Das Gewerbeobjekt wird derzeit als stylischer Friseursalon genutzt und soll als Renditeobjekt verkauft werden. Anbei die Fotos.
Dieses herrliche Geschäftslokal befindet sich barrierefrei im Erdgeschoß in einer sehr ansprechenden Stil-Altbauliegenschaft und besticht durch ihre äußerst luxuriöse Ausstattung und die hervorragende, sehr beliebte Lage.
Es erwartet Sie:
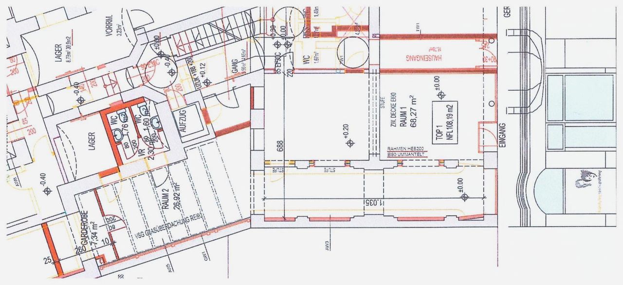
Ein traumhaftes, ca.110 m2 großes Geschäftslokal, größtenteils offen, tolle Verglasung, diverse Nebenräume, 2 Toiletten, sowie einem Wirtschafts/Technikraum.
Die Räumlichkeiten sind auf Grund edler Materialien sehr exklusiv und luxuriös ausgestattet mit wunderschönen Steinböden, geschmackvolle Steinfliesen, Deckenspots. Eine innovative und energieeffiziente Haustechnik überzeugen mit einer Etagenheizung und modernen Radiatoren, einer durchgehenden Lüftung, sowie einer Klimaanlage. Sehr gerne können bei Bedarf Garagenstellplätze in der näheren Umgebung angemietet werden.
Sehr gute Infrastruktur und öffentliche Verkehrsanbindung durch die Nähe zum Gersthofer Platzl sind gegeben. In unmittelbarer Umgebung befinden sich sehr viele Einkaufsmöglichkeiten, Banken, Schulen und Kinderbetreuungseinrichtungen. Die nahegelegenen Grünanlagen, der Türkenschanzpark, trendige Cafes und weitere tolle Geschäfte bieten zahlreiche Erholungs- und Freizeitmöglichkeiten und laden in Pausen zum Verweilen ein.
Sehr gerne steht Ihnen Herr Martin Wicho für weitere Informationen und einer Besichtigung unter 0660/160 60 00 oder unter wicho@dimagimmobilien.at zu Verfügung.
Fotos und Pläne übermitteln wir Ihnen sehr gerne auf Anfrage.
Vielen Dank.
Zum Verkauf gelangt ein sehr schickes, branchenfreies Geschäftslokal in einer sehr frequentierten Lage. Das Gewerbeobjekt wird derzeit als stylischer Friseursalon genutzt und soll als Renditeobjekt verkauft werden. Anbei die Fotos.
Dieses herrliche Geschäftslokal befindet sich barrierefrei im Erdgeschoß in einer sehr ansprechenden Stil-Altbauliegenschaft und besticht durch ihre äußerst luxuriöse Ausstattung und die hervorragende, sehr beliebte Lage.
Es erwartet Sie:
Ein traumhaftes, ca.110 m2 großes Geschäftslokal, größtenteils offen, tolle Verglasung, diverse Nebenräume, 2 Toiletten, sowie einem Wirtschafts/Technikraum.
Die Räumlichkeiten sind auf Grund edler Materialien sehr exklusiv und luxuriös ausgestattet mit wunderschönen Steinböden, geschmackvolle Steinfliesen, Deckenspots. Eine innovative und energieeffiziente Haustechnik überzeugen mit einer Etagenheizung und modernen Radiatoren, einer durchgehenden Lüftung, sowie einer Klimaanlage. Sehr gerne können bei Bedarf Garagenstellplätze in der näheren Umgebung angemietet werden.
Sehr gute Infrastruktur und öffentliche Verkehrsanbindung durch die Nähe zum Gersthofer Platzl sind gegeben. In unmittelbarer Umgebung befinden sich sehr viele Einkaufsmöglichkeiten, Banken, Schulen und Kinderbetreuungseinrichtungen. Die nahegelegenen Grünanlagen, der Türkenschanzpark, trendige Cafes und weitere tolle Geschäfte bieten zahlreiche Erholungs- und Freizeitmöglichkeiten und laden in Pausen zum Verweilen ein.
Sehr gerne steht Ihnen Herr Martin Wicho für weitere Informationen und einer Besichtigung unter 0660/160 60 00 oder unter wicho@dimagimmobilien.at zu Verfügung.
Fotos und Pläne übermitteln wir Ihnen sehr gerne auf Anfrage.
Vielen Dank.
| Angaben gemäß gesetzlichem Erfordernis: | |||
| Heizwärmebedarf: | 60.0 kWh/(m²a) | ||
| Klasse Heizwärmebedarf: | C | ||
Objektdaten
Ausstattung
- Klimatisiert
- Rollstuhlgerecht
- Kabel/SAT-TV
- Barrierefrei
- Teeküche
- Alarmanlage
- Neubaustandard
- Barrierefrei
- Bus
- Eisenbahn
- Kabel/SAT-TV
- Rollstuhlgerecht
- Schnellbahn
- Alarmanlage
- Sicherheitsdienst
- Sonnige Lage
- Stadtzentrum
- Straßenbahn
- Barrierefrei
- Kabel/SAT-TV
- Rollstuhlgerecht
- Alarmanlage
- Stadtrand
Zustand
- Zustand
- GEPFLEGT
- Baujahr
- ca. 1900
- Altlasten
- Keine Lasten, lastenfreie Übergabe garantiert
- Alter
- ALTBAU
Flächen
- Anzahl der Zimmer
- 2
- Nutzfläche
- 110m²
- Grundstücksfront
- 15m²
Kosten
- Kaufpreis
- € 990.000,00
- Nebenkosten
- € 313,20
- Betriebskosten Brutto
- € 313,20
Verwaltung
- Verfügbar ab
- in Verhandlung
Hallen und Lager zum Kaufen in Österreich
Hallen und Lager zum Kaufen in Österreich
Andere Besucher suchen nach...
- Immobilien kaufen in 2601 Sollenau
- Immobilien in 4951 Polling im Innkreis, Oberösterreich
- Immobilien in 4742 Pram, Oberösterreich kaufen oder mieten
- Häuser kaufen in 2340 Mödling, Niederösterreich
- Häuser kaufen in 9421 Gemmersdorf, Kärnten
- Wohnungen / Eigentumswohnungen kaufen in 9431 St. Stefan, Kärnten
- Häuser kaufen in Bruck an der Leitha, Niederösterreich
- Immobilien mieten in Krems an der Donau, Niederösterreich
- Häuser zum Kaufen im Bezirk St. Pölten Land, Niederösterreich
- Büro / Praxen mieten in Rohrbach, Oberösterreich