BAUTRÄGER AUFGEPASST! | Bewilligtes Wohnbauprojekt mit vier Doppelhaushälften | ca. 1.085 m² Grundstück
€ 419.000
€ 849 / m²
2440 Mitterndorf an der Fischa
-
sofort
Beschreibung
BAUTRÄGER AUFGEPASST! | Bewilligtes Wohnbauprojekt mit vier Doppelhaushälften | ca. 1.085 m² Grundstück" Objektbeschreibung In attraktiver Lage von Neumitterndorf erwartet Sie eines der letzten bereits bewilligten Wohnbauprojekte – ideal für Bauträger und Investoren. Das Projekt umfasst die Errichtung von zwei Doppelhäusern (vier Einheiten) mit einer Wohnnutzfläche von jeweils ca. 123,41 m², großzügigen Terrassen, Eigengärten sowie je zwei PKW-Stellplätzen pro Einheit. Ein Versickerungsgutachten und ein Energieausweis liegen bereits vor – somit kann das Projekt umgehend realisiert werden. Projektdetails - Grundstücksfläche: ca. 1.085 m² - 2 Doppelhäuser | 4 Doppelhaushälften - Je 123,41 m² Wohnnutzfläche - 3 Geschosse (EG, OG, DG) -...
BAUTRÄGER AUFGEPASST! | Bewilligtes Wohnbauprojekt mit vier Doppelhaushälften | ca. 1.085 m² Grundstück"
Objektbeschreibung
In attraktiver Lage von Neumitterndorf erwartet Sie eines der letzten bereits bewilligten Wohnbauprojekte – ideal für Bauträger und Investoren.
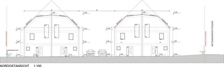
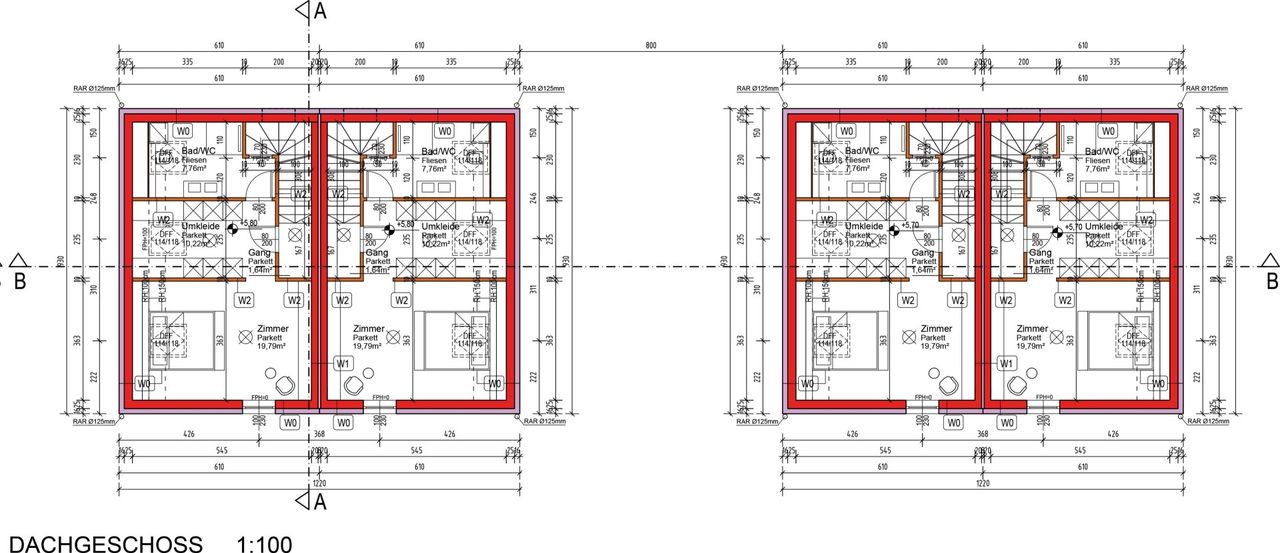
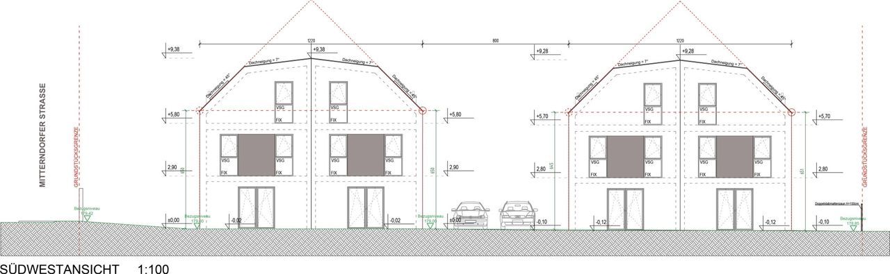
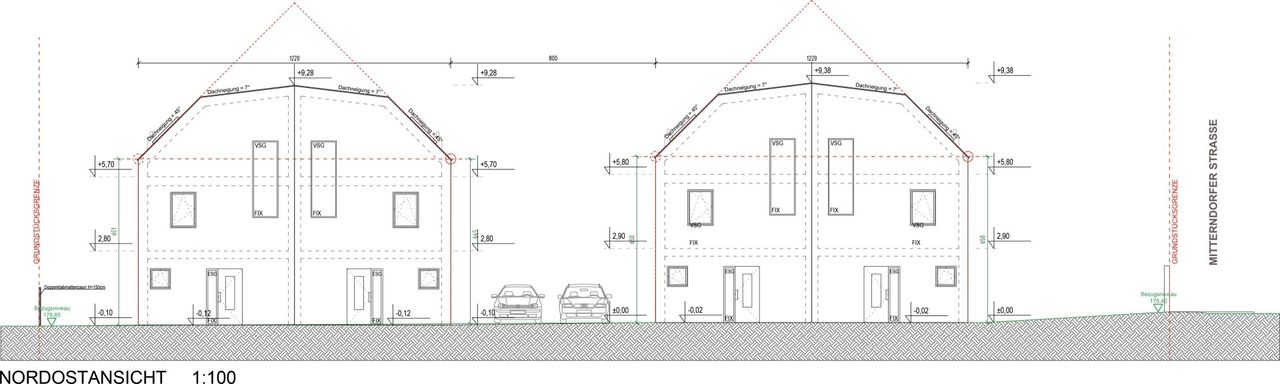
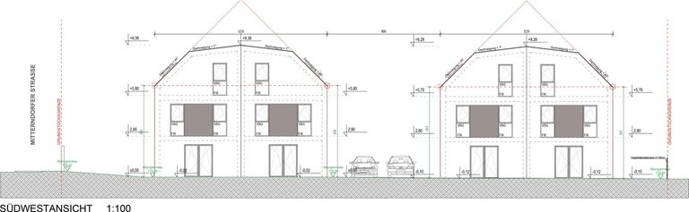
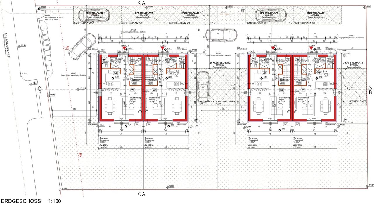
Das Projekt umfasst die Errichtung von zwei Doppelhäusern (vier Einheiten) mit einer Wohnnutzfläche von jeweils ca. 123,41 m², großzügigen Terrassen, Eigengärten sowie je zwei PKW-Stellplätzen pro Einheit.
Ein Versickerungsgutachten und ein Energieausweis liegen bereits vor – somit kann das Projekt umgehend realisiert werden.
Projektdetails
- Grundstücksfläche: ca. 1.085 m²
- 2 Doppelhäuser | 4 Doppelhaushälften
- Je 123,41 m² Wohnnutzfläche
- 3 Geschosse (EG, OG, DG)
- Eigengärten: ca. 95–133 m²
- 8 PKW-Stellplätze (2 pro Einheit)
- Baubewilligung und Zufahrt vorhanden
Lage
Das Projekt befindet sich in einer gefragten Wohnlage mit hohem Nachfragepotenzial. Einkaufsmöglichkeiten, Schulen, Ärzte und Freizeitangebote sind schnell erreichbar. Wien, Eisenstadt, Wr. Neustadt und der Flughafen Wien-Schwechat liegen nur rund 30 Autominuten entfernt.
Kaufpreis: € 419.000,--
Der Vermittler ist als Doppelmakler tätig.
Objektbeschreibung
In attraktiver Lage von Neumitterndorf erwartet Sie eines der letzten bereits bewilligten Wohnbauprojekte – ideal für Bauträger und Investoren.
Das Projekt umfasst die Errichtung von zwei Doppelhäusern (vier Einheiten) mit einer Wohnnutzfläche von jeweils ca. 123,41 m², großzügigen Terrassen, Eigengärten sowie je zwei PKW-Stellplätzen pro Einheit.
Ein Versickerungsgutachten und ein Energieausweis liegen bereits vor – somit kann das Projekt umgehend realisiert werden.
Projektdetails
- Grundstücksfläche: ca. 1.085 m²
- 2 Doppelhäuser | 4 Doppelhaushälften
- Je 123,41 m² Wohnnutzfläche
- 3 Geschosse (EG, OG, DG)
- Eigengärten: ca. 95–133 m²
- 8 PKW-Stellplätze (2 pro Einheit)
- Baubewilligung und Zufahrt vorhanden
Lage
Das Projekt befindet sich in einer gefragten Wohnlage mit hohem Nachfragepotenzial. Einkaufsmöglichkeiten, Schulen, Ärzte und Freizeitangebote sind schnell erreichbar. Wien, Eisenstadt, Wr. Neustadt und der Flughafen Wien-Schwechat liegen nur rund 30 Autominuten entfernt.
Kaufpreis: € 419.000,--
Der Vermittler ist als Doppelmakler tätig.
Objektdaten
Ausstattung
- Gartennutzung
- Massiv Bauweise
- Zeigelmassiv
- Grüne Lage
- Sonnige Lage
Flächen
- Anzahl der Zimmer
- 4
- Anzahl der Badezimmer
- 1
- Anzahl der sep. WCs
- 1
- Stellplätze
- 8
- Wohnfläche
- 494m²
- Grundstücksfläche
- 1.085m²
Kosten
- Kaufpreis
- € 419.000,00
Verwaltung
- Verfügbar ab
- sofort
Häuser zum Kaufen im Umkreis von Mitterndorf an der Fischa
Häuser zum Kaufen im Umkreis von Mitterndorf an der Fischa
Häuser zum Kaufen in Österreich
Andere Besucher suchen nach...
- Grundstücke kaufen in 3400 Weidlingbach
- Wohnungen kaufen in 4663 Laakirchen
- Häuser in 7471 Rechnitz
- Wohnungen in 2410 Hainburg an der Donau
- Häuser kaufen in 2432 Schwadorf
- Wohnungen kaufen in 3002 Purkersdorf
- Häuser in 3150 Wilhelmsburg
- Wohnungen kaufen in 3470 Engelmannsbrunn
- Grundstücke kaufen im Bezirk Mattersburg
- Grundstücke kaufen im Bezirk Gmunden