Energieeffiziente Doppelhaushälfte inkl. Photovoltaikanlage und Luftwärmepumpe – Haus links
Beschreibung
Ein durchdachter Hingucker: Ihre Freunde werden Sie beneiden! In rund 125 m² Wohnfläche können Sie sich ausbreiten und das moderne Wohngefühl und die lichtdurchfluteten Räume genießen. Lassen Sie sich durch die zahlreichen bereits gebauten Grundrisse inspirieren und passen Sie die Innenwände nach Ihren Wünschen und Bedürfnissen an. Der Blick in das Obergeschoss verrät, dass dieses ganz ohne Dachschrägen auskommt und dadurch in allen Räumen eine überdurchschnittliche Raumhöhe genutzt werden kann. Bei der Planung Ihres Niedrigenergiehauses achten wir, nicht nur auf die Energieeffizienz, um die Heizkosten gering zu halten, sondern auch darauf jeden Quadratmeter sinnvoll zu nutzen. Dadurch können wir unnötige...
Ein durchdachter Hingucker: Ihre Freunde werden Sie beneiden!
In rund 125 m² Wohnfläche können Sie sich ausbreiten und das moderne Wohngefühl und die lichtdurchfluteten Räume genießen. Lassen Sie sich durch die zahlreichen bereits gebauten Grundrisse inspirieren und passen Sie die Innenwände nach Ihren Wünschen und Bedürfnissen an. Der Blick in das Obergeschoss verrät, dass dieses ganz ohne Dachschrägen auskommt und dadurch in allen Räumen eine überdurchschnittliche Raumhöhe genutzt werden kann. Bei der Planung Ihres Niedrigenergiehauses achten wir, nicht nur auf die Energieeffizienz, um die Heizkosten gering zu halten, sondern auch darauf jeden Quadratmeter sinnvoll zu nutzen. Dadurch können wir unnötige Flächen und in weiterer Folge Baukosten verhindern und Ihnen im Alltag kurze Wege ermöglichen.
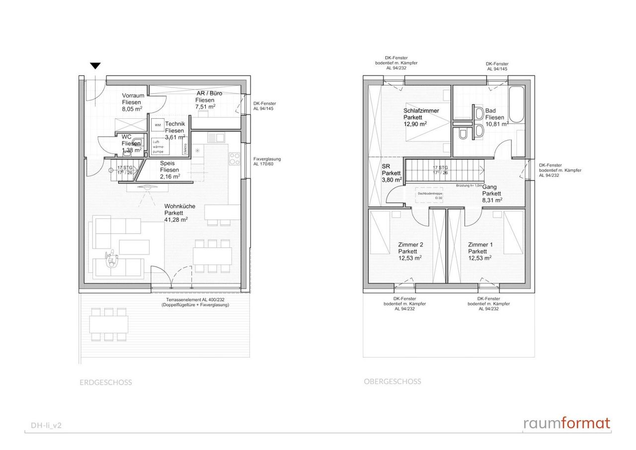
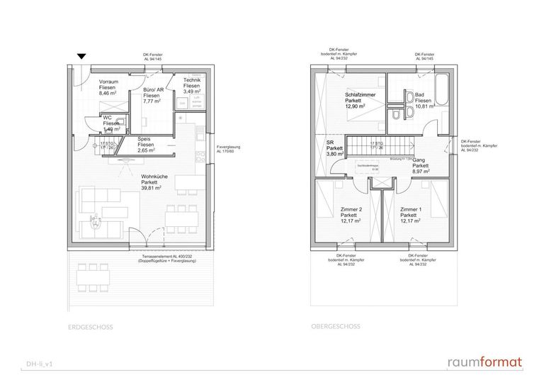
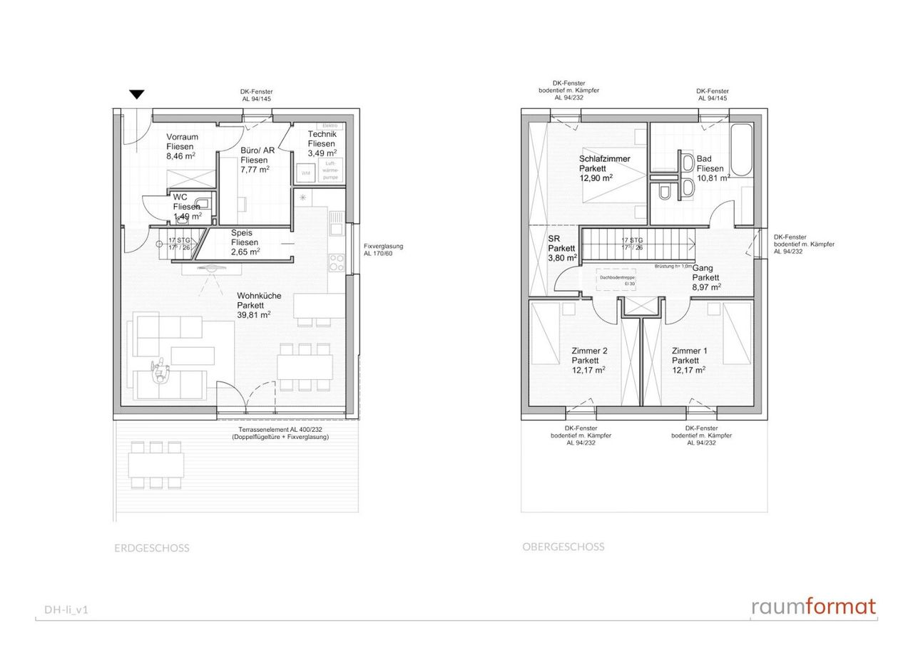
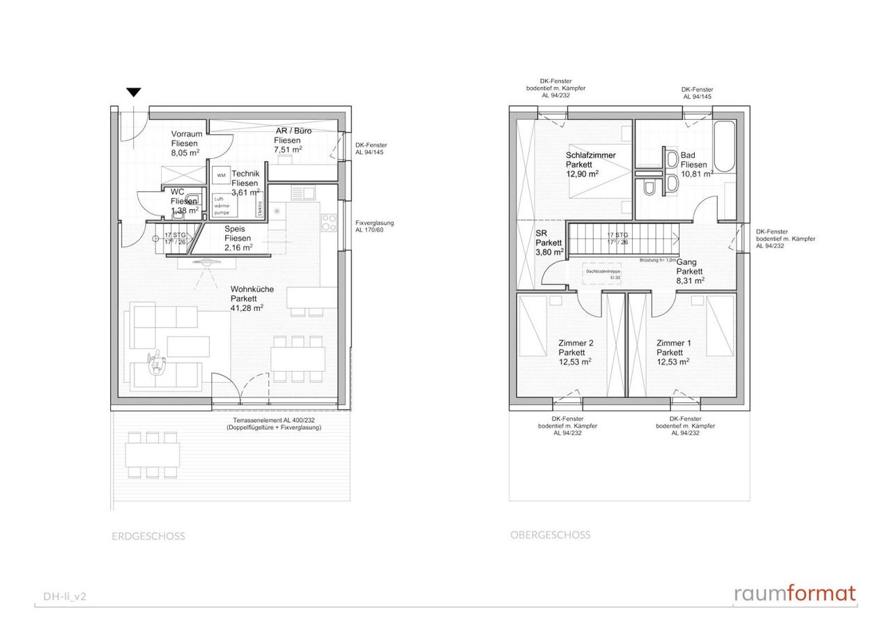
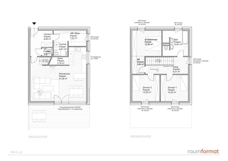
Ihr Haus im Überblick!
Grundstücksgröße: ca. 277 m² | Wohnfläche: ca. 125 m²
Erdgeschoss: großes Wohn- und Esszimmer mit offener Küche, Speis, Büro, Technikraum, WC, Vorraum
Obergeschoss: Schlafzimmer, zwei Kinderzimmer, Badezimmer inkl. WC
Heizung: Fußbodenheizung über Luftwärmepumpe | HWB: 35 kwh/m²a | fGEE: 0,60
Der Garten und die Terrasse bieten viel Platz für Spiel und Spaß. Entspannen Sie, lassen Sie die Seele baumeln und genießen Sie Ihr Paradies. Praktischerweise ist der Außenbereich von der Straße aus zugängig, wodurch Gartengeräte nicht durch das Wohnzimmer geschleppt werden müssen. Der Einkauf hingegen ist dank der Parkplätze neben dem Eingang im Handumdrehen hineingetragen.
Das ist drinnen: Damit können Sie rechnen!
Hier ein kleiner Einblick, alles weitere finden Sie in unserem Exposé beziehungsweise kann unser Projektleiter beantworten!
- Profitieren Sie dank der Qualitätsprodukte aus Österreich von einer hohen Produktqualität und einer hohen Lebensdauer!
- Bramac Markendach
- Josko Fenster 3-fach Verglasung (inkl. Spaltlüftung)
- Wienerberger Qualitätsziegel
- Ökologischer Baustoff
- Baumit Qualitätsfassadendämmung
- Viessmann Luftwärmepumpe
- Alles in Massivbauweise!
Ein Haus für Generationen! Sie profitieren, von einem hohen Werterhalt, ausgeglichenen Raumklima und einer hohen Energieeffizienz. - Doppelwandbauweise zum Nachbarn!
REGIOWERT Doppelhäuser werden, wie zwei eigenständige Gebäude errichtet. Sie genießen dadurch einen erhöhten Schallschutz. - Großzügige Elektroausstattung!
Ade lästige Suche nach Steckdosen und tapsen im Dunkeln! In Ihrem Haus sind die Lichtschalter und Steckdosen alle am richtigen Platz.
- Praktische Leerverrohrungen für die Zukunft!
Wir haben in die Zukunft gedacht! Es werden zahlreiche Leerverrohrungen zur nachträglichen Installation in Ihrem Haus eingebaut.
Zögern Sie nicht! Verschaffen Sie sich mit dem Exposé einen ersten Eindruck Ihres neuen Hauses und vereinbaren Sie anschließend ein unverbindliches Beratungsgespräch. Bereits über 30 Familien haben sich für unsere Häuser entschieden - werden Sie auch Teil der REGIOWERT Familie.
KAUFPREIS: EUR 499.000,00 belagsfertig
inklusive aller Anschlusskosten
Wir weisen darauf hin, dass zwischen dem Vermittler und dem zu vermittelnden Dritten ein familiäres oder wirtschaftliches Naheverhältnis besteht.
Der Vermittler ist als Doppelmakler tätig.
Infrastruktur / Entfernungen
Gesundheit
Arzt <750m
Apotheke <750m
Klinik <8.500m
Kinder & Schulen
Kindergarten <1.000m
Schule <1.250m
Nahversorgung
Supermarkt <1.000m
Bäckerei <3.000m
Sonstige
Bank <2.750m
Geldautomat <2.750m
Post <750m
Polizei <2.250m
Verkehr
Bus <250m
Bahnhof <500m
Autobahnanschluss <4.750m
Angaben Entfernung Luftlinie / Quelle: OpenStreetMap
Objektdaten
Ausstattung
- Fußbodenheizung
- Luftwärmepumpe
Zustand
- Alter
- NEUBAU
- HWB
- 35 kWh/m² pro Jahr
- fGEE
- 0.6
Flächen
- Wohnfläche
- 125m²
- Grundstücksfläche
- 277m²
Kosten
- Kaufpreis Brutto
- € 499.000,00
Häuser zum Kaufen im Umkreis von Ebreichsdorf
Häuser zum Kaufen im Umkreis von Ebreichsdorf
Häuser zum Kaufen in Österreich
Andere Besucher suchen nach...
- Grundstücke kaufen in 3400 Weidlingbach
- Wohnungen kaufen in 4663 Laakirchen
- Häuser in 7471 Rechnitz
- Wohnungen in 2410 Hainburg an der Donau
- Häuser kaufen in 2432 Schwadorf
- Wohnungen kaufen in 3002 Purkersdorf
- Häuser in 3150 Wilhelmsburg
- Wohnungen kaufen in 3470 Engelmannsbrunn
- Grundstücke kaufen im Bezirk Mattersburg
- Grundstücke kaufen im Bezirk Gmunden