EXKLUSIVE DOPPELHAUSHÄLFTE
-
Erstbezug
-
2023
-
ab sofort
Beschreibung
Highlights:
- Hochwertige Eichenparkettböden inkl. Fußbodenheizung
- Einbauküche inkl. aller Geräten
- Außenjalousien
- Moderne Fliesen, Wärmegedämmte Kunststoff-Isolierglasfenster Terrassen-/Balkontüren mit 3-Fach Isolierverglasung
- Schlüsselfertig inkl. Bäder
- Zwei PKW-Stellplätze
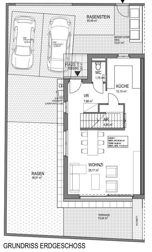
Der Grundrissplan verbunden mit modernsten Baumaterialien und hochwertigen Ausstattungsdetails wie eleganten Verfliesungen und Parkettböden, Sanitärgegenständen und Armaturen garantiert ein maximales Wohnvergnügen!
Kaufpreis: EUR 550.000,--
Nebenkosten:
- Grunderwerbssteuer: 3,50 % vom Kaufpreis
- Eintragungsgebühr: 1,10 % vom Kaufpreis
- Vertragserrichtungskosten und Treuhänderhonorar: % des Kaufpreises zzgl. 20% USt und Barauslagen
- Vermittlungsprovision: 3 % des Kaufpreises zzgl. 20% USt
Wir würden uns über ein persönliches Gespräch mit Ihnen sehr freuen!
Weitere verfügbare Wohneinheiten mit zahlreichen aktuellen TOP Projekten!...
Highlights:
- Hochwertige Eichenparkettböden inkl. Fußbodenheizung
- Einbauküche inkl. aller Geräten
- Außenjalousien
- Moderne Fliesen, Wärmegedämmte Kunststoff-Isolierglasfenster Terrassen-/Balkontüren mit 3-Fach Isolierverglasung
- Schlüsselfertig inkl. Bäder
- Zwei PKW-Stellplätze
Der Grundrissplan verbunden mit modernsten Baumaterialien und hochwertigen Ausstattungsdetails wie eleganten Verfliesungen und Parkettböden, Sanitärgegenständen und Armaturen garantiert ein maximales Wohnvergnügen!
Kaufpreis: EUR 550.000,--
Nebenkosten:
- Grunderwerbssteuer: 3,50 % vom Kaufpreis
- Eintragungsgebühr: 1,10 % vom Kaufpreis
- Vertragserrichtungskosten und Treuhänderhonorar: % des Kaufpreises zzgl. 20% USt und Barauslagen
- Vermittlungsprovision: 3 % des Kaufpreises zzgl. 20% USt
Wir würden uns über ein persönliches Gespräch mit Ihnen sehr freuen!
Weitere verfügbare Wohneinheiten mit zahlreichen aktuellen TOP Projekten! Mehr Details findet Sie auf unsere Homepage!
www.vigoimmobilien.at | +43 664 99 877 599
Wir weisen darauf hin, dass zwischen dem Vermittler und dem zu vermittelnden Dritten ein familiäres oder wirtschaftliches Naheverhältnis besteht.
Infrastruktur / Entfernungen
Gesundheit
Arzt <500m
Apotheke <1.000m
Klinik <5.000m
Krankenhaus <5.000m
Kinder & Schulen
Kindergarten <500m
Schule <1.000m
Nahversorgung
Supermarkt <500m
Bäckerei <500m
Einkaufszentrum <4.000m
Sonstige
Bank <500m
Geldautomat <500m
Post <500m
Polizei <1.000m
Verkehr
Bus <500m
Bahnhof <1.000m
Straßenbahn <5.000m
Autobahnanschluss <1.500m
Flughafen <3.000m
Angaben Entfernung Luftlinie / Quelle: OpenStreetMap
Objektdaten
Ausstattung
- Klimatisiert
- Bad mit Badewanne
- Offene Küche
- Steinboden
- Parkettboden
- Fußbodenheizung
- Luftwärmepumpe
- Personen Fahrstuhl
- Ausrichtung Balkon/Terrasse - West
- Ausrichtung Balkon/Terrasse - Südost
- Ausrichtung Balkon/Terrasse - Südwest
Zustand
- Zustand
- ERSTBEZUG
- Baujahr
- 2023
- Alter
- NEUBAU
- HWB
- 27.5 kWh/m² pro Jahr
- Klasse HWB
- B
- fGEE
- 0.62
- Klasse fGEE
- A+
Flächen
- Anzahl der Zimmer
- 4
- Anzahl der Badezimmer
- 1
- Anzahl der sep. WCs
- 2
- Stellplätze
- 2
- Wohnfläche
- 111m²
- Gartenfläche
- 37m²
Kosten
- Kaufpreis Brutto
- € 550.000,00
Verwaltung
- Verfügbar ab
- ab sofort
Häuser zum Kaufen im Umkreis von Bad Vöslau
Häuser zum Kaufen im Umkreis von Bad Vöslau
Häuser zum Kaufen in Österreich
Andere Besucher suchen nach...
- Grundstücke kaufen in 3400 Weidlingbach
- Wohnungen kaufen in 4663 Laakirchen
- Häuser in 7471 Rechnitz
- Wohnungen in 2410 Hainburg an der Donau
- Häuser kaufen in 2432 Schwadorf
- Wohnungen kaufen in 3002 Purkersdorf
- Häuser in 3150 Wilhelmsburg
- Wohnungen kaufen in 3470 Engelmannsbrunn
- Grundstücke kaufen im Bezirk Mattersburg
- Grundstücke kaufen im Bezirk Gmunden