Neuer Preis: einzigartige Stadtvilla in Seenähe
Beschreibung
Kmenta & Partner Immobilienmakler GmbH in Kooperation mit Perfekt Immo GmbH
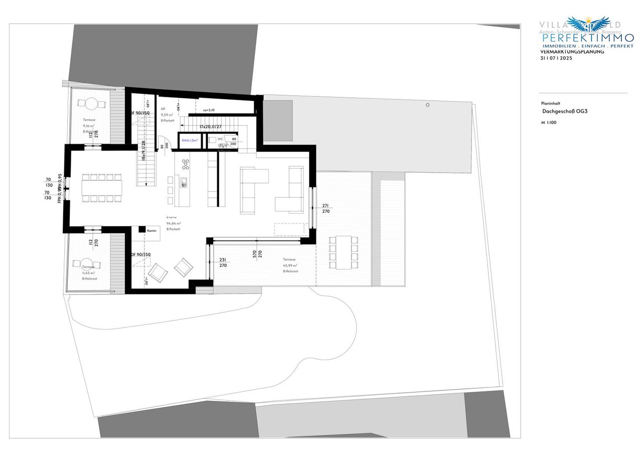
Potenzial liegt in der bereits mit der Stadt besprochenen Planung für den Um- und Ausbau der Liegenschaft. Mit dieser Planung kann die Nutzfläche von 593 m² reine Wohnfläche erweitert werden, und zusätzlich gibt es über 167 m² Terrassen, sowie Gartenflächen im EG und DG die genutzt werden können. Die Liegenschaft wird bestandsfrei und samt entsprechender Baugenehmigung veräußert.
Das macht diese Immobilie nicht nur attraktiv für Wohnzwecke, sondern bietet auch Potenzial für kommerzielle Nutzungsmöglichkeiten. Eine exklusivere und hochwertigere Lage in Bregenz ist kaum vorstellbar. Wenn Sie Interesse...
Kmenta & Partner Immobilienmakler GmbH in Kooperation mit Perfekt Immo GmbH
Potenzial liegt in der bereits mit der Stadt besprochenen Planung für den Um- und Ausbau der Liegenschaft. Mit dieser Planung kann die Nutzfläche von 593 m² reine Wohnfläche erweitert werden, und zusätzlich gibt es über 167 m² Terrassen, sowie Gartenflächen im EG und DG die genutzt werden können. Die Liegenschaft wird bestandsfrei und samt entsprechender Baugenehmigung veräußert.
Das macht diese Immobilie nicht nur attraktiv für Wohnzwecke, sondern bietet auch Potenzial für kommerzielle Nutzungsmöglichkeiten. Eine exklusivere und hochwertigere Lage in Bregenz ist kaum vorstellbar. Wenn Sie Interesse haben, die Möglichkeiten dieser einzigartigen Stadtvilla zu erkunden, stehe ich Ihnen gerne für weitere Informationen und Besichtigungen zur Verfügung.
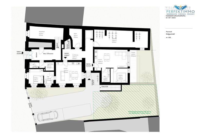
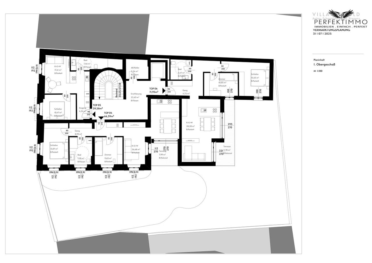
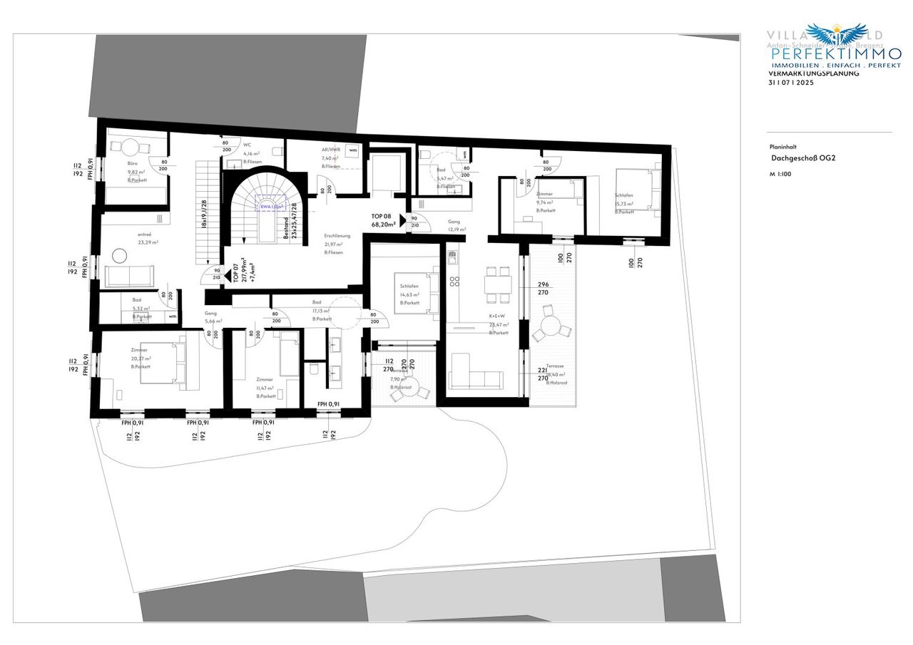
| Einheit | Wohnfläche | Terrasse | Zimmer |
|---|---|---|---|
| G01 | 43,07 | 2 | |
| W02 | 41,85 | 2 | |
| W03 | 44,13 | 10,43 | 2 |
| W04 | 66,39 | 7,99 | 3 |
| W05 | 39,58 | 2 | |
| W06 | 71,95 | 11,78 | 3 |
| W07 | 217,99 | 120,78 | 6 |
| W08 | 68,20 | 16,40 | 3 |
Wir weisen darauf hin, dass zwischen dem Vermittler und dem zu vermittelnden Dritten ein familiäres oder wirtschaftliches Naheverhältnis besteht.
Der Vermittler ist als Doppelmakler tätig.
Infrastruktur / Entfernungen
Gesundheit
Arzt <500m
Apotheke <500m
Krankenhaus <1.000m
Klinik <1.000m
Kinder & Schulen
Schule <500m
Kindergarten <1.000m
Höhere Schule <4.000m
Universität <500m
Nahversorgung
Supermarkt <500m
Bäckerei <500m
Einkaufszentrum <500m
Sonstige
Bank <500m
Geldautomat <500m
Post <500m
Polizei <1.000m
Verkehr
Bus <500m
Autobahnanschluss <2.000m
Bahnhof <500m
Angaben Entfernung Luftlinie / Quelle: OpenStreetMap
Objektdaten
Zustand
- Alter
- ALTBAU
Flächen
- Nutzfläche
- 576m²
Kosten
- Kaufpreis Brutto
- € 3.200.000,00
Häuser zum Kaufen im Umkreis von Bregenz
Häuser zum Kaufen im Umkreis von Bregenz
Häuser zum Kaufen in Österreich
Andere Besucher suchen nach...
- Grundstücke kaufen in 3400 Weidlingbach
- Wohnungen kaufen in 4663 Laakirchen
- Häuser in 7471 Rechnitz
- Wohnungen in 2410 Hainburg an der Donau
- Häuser kaufen in 2432 Schwadorf
- Wohnungen kaufen in 3002 Purkersdorf
- Häuser in 3150 Wilhelmsburg
- Wohnungen kaufen in 3470 Engelmannsbrunn
- Grundstücke kaufen im Bezirk Mattersburg
- Grundstücke kaufen im Bezirk Gmunden