Fernblick Refugium am Hexenberg – Exklusive Architektenvilla in Besthanglage mit Schwimmteich und Gästehaus
-
sofort
Beschreibung
Diese außergewöhnliche Architektenvilla vereint Panorama, Privatsphäre und Designqualität in einer der begehrtesten Hanglagen am Hexenberg in der Carnuntumstraße. Auf einem großzügigen, sonnigen Grundstück gelegen, bietet das Anwesen ein seltenes Gesamtpaket aus exklusiver Wohnarchitektur, hochwertiger Generalsanierung und einzigartiger Gartenlandschaft mit Schwimmteich und separatem Gästehaus.
Eine stimmige Gesamteinheit bilden die exklusive Hanglage, die besondere Lagequalität, die markante Architektur, die durchdachte Grundstücksinszenierung und das gehobene Ausstattungsniveau. Das Anwesen verbindet eindrucksvollen Fernblick, hohe Privatsphäre und ein klar strukturiertes Raumkonzept mit einer in den letzten Jahren umfassend durchgeführten Generalsanierung.
Auf rund 214 m² Wohnfläche entfaltet sich ein architektonisch prägnantes Wohnhaus mit großzügiger Raumwirkung und klarer...
Diese außergewöhnliche Architektenvilla vereint Panorama, Privatsphäre und Designqualität in einer der begehrtesten Hanglagen am Hexenberg in der Carnuntumstraße. Auf einem großzügigen, sonnigen Grundstück gelegen, bietet das Anwesen ein seltenes Gesamtpaket aus exklusiver Wohnarchitektur, hochwertiger Generalsanierung und einzigartiger Gartenlandschaft mit Schwimmteich und separatem Gästehaus.
Eine stimmige Gesamteinheit bilden die exklusive Hanglage, die besondere Lagequalität, die markante Architektur, die durchdachte Grundstücksinszenierung und das gehobene Ausstattungsniveau. Das Anwesen verbindet eindrucksvollen Fernblick, hohe Privatsphäre und ein klar strukturiertes Raumkonzept mit einer in den letzten Jahren umfassend durchgeführten Generalsanierung.
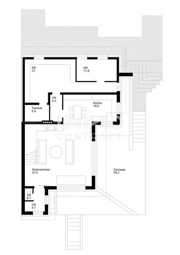
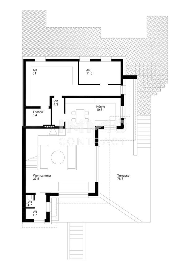
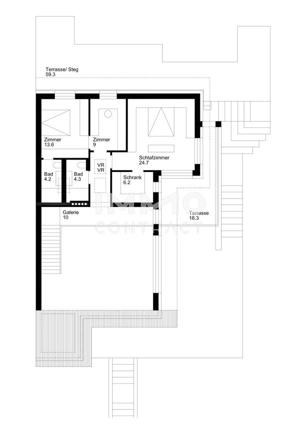
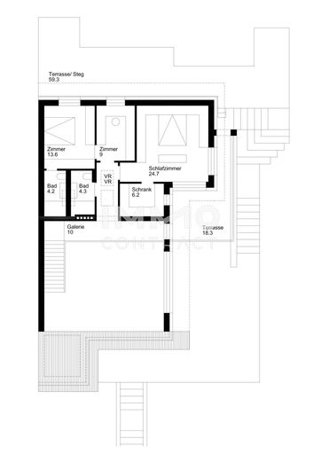
Auf rund 214 m² Wohnfläche entfaltet sich ein architektonisch prägnantes Wohnhaus mit großzügiger Raumwirkung und klarer Linienführung. Der offen gestaltete Wohn-Ess-Bereich mit überwiegend zweigeschossiger Raumhöhe (ca. 5m), Galerieebene und großflächigen Verglasungen bildet das repräsentative Zentrum des Hauses. Fließende Übergänge zu den Terrassenflächen erweitern den Wohnraum nach außen. Lichtführung, Blickachsen und Raumvolumen erzeugen ein außergewöhnlich freies und zugleich hochwertiges Wohngefühl.
Die Grundrissstruktur umfasst mehrere Schlafzimmer - eines davon mit begehbarem Kleiderschrank, Bäder, Galerie- und Arbeitsbereiche sowie zusätzliche Funktionsräume und erlaubt flexible Nutzungskonzepte — vom exklusiven Familiensitz bis zur kombinierten Wohn- und Arbeitssituation. Technisch präsentiert sich die Liegenschaft auf zeitgemäßem Niveau mit modernisierter Haustechnik, Smart-Home-Integration, kombinierter Heizlösung und hochwertiger Beschattungssteuerung.
Ein besonderes Qualitätsmerkmal ist das Außenensemble: Mehrere Terrassenebenen mit insgesamt rund 155 m² Fläche, hochwertige Natursteinbereiche und sorgfältig platzierte Aufenthaltszonen schaffen differenzierte Freiräume über den gesamten Tagesverlauf. Der großzügige Schwimmteich mit Holzdeck und Wasserfallanlage bildet das visuelle und funktionale Zentrum des Gartens. Ergänzt wird die Anlage durch Bachlauf, Feuerstelle, Natursteinwege sowie gewachsenen Baum- und Strauchbestand — eine Gartenkomposition mit hoher gestalterischer und atmosphärischer Qualität. Abgerundet werden die Außenflächen mit Anschlüssen für Whirlpool und Sauna.
Das separate Gästehaus mit eigener Ausstattung eröffnet zusätzliche Möglichkeiten für Besuch, Arbeiten, Atelier oder unabhängiges Wohnen. Ein weiteres Gartenhaus ergänzt die Nutzflächen sinnvoll.
Die erhöhte Position des Grundstücks ermöglicht eindrucksvolle Fernblicke über die Donauauen bis Richtung Wien und Bratislava. Gleichzeitig liegt das Anwesen geschützt, ruhig und weitgehend uneinsehbar. Die Kombination aus Rückzugslage und sehr guter internationaler Erreichbarkeit — Wien, Bratislava und beide Flughäfen in komfortabler Distanz — macht den Standort nachhaltig attraktiv.
Zusätzliche Standortaufwertung erfährt Hainburg durch den geplanten neuen Bildungscampus mit öffentlichem Gymnasium sowie einem FH-Standort mit biotechnologischem Schwerpunkt. Diese Entwicklung stärkt die Zukunftsqualität der Stadt und unterstreicht die langfristige Werthaltigkeit der Lage.
Diese Liegenschaft richtet sich an Käufer, die nicht nur hochwertige Fläche suchen, sondern ein durchkomponiertes Gesamtobjekt aus Architektur, Lage, Aussicht und Lebensqualität.
Der Vermittler ist als Doppelmakler tätig.
Infrastruktur / Entfernungen
Gesundheit
Arzt <1.500m
Apotheke <1.500m
Klinik <8.500m
Krankenhaus <2.500m
Kinder & Schulen
Kindergarten <1.500m
Schule <1.500m
Höhere Schule <10.000m
Universität <5.500m
Nahversorgung
Supermarkt <1.000m
Bäckerei <1.000m
Einkaufszentrum <1.000m
Sonstige
Bank <1.500m
Geldautomat <1.500m
Post <2.000m
Polizei <2.000m
Verkehr
Bus <1.000m
Bahnhof <1.000m
Straßenbahn <9.500m
Flughafen <4.500m
Autobahnanschluss <10.000m
Angaben Entfernung Luftlinie / Quelle: OpenStreetMap
Objektdaten
Ausstattung
- WG geeignet
- Räume veränderbar
- Kamin
- Gartennutzung
- Sauna
- Swimmingpool
- Wasch-/Trockenraum
- DV Verkabelung
- Wellnessbereich
- Gäste-WC
- Bad mit Dusche
- Bad mit Fenster
- Einbauküche
- Offene Küche
- Fliesenboden
- Parkettboden
- Fußbodenheizung
- Befeuerung mit Gas
- Elektrische Befeuerung
- Ausrichtung Balkon/Terrasse - West
- Ausrichtung Balkon/Terrasse - Südost
- Alarmanlage
- Kamera
- Satteldach
- Massiv Bauweise
- Schlüsselfertig mit Keller
- Neubaustandard
Zustand
- Zustand
- MODERNISIERT
- Baujahr
- 1995
- HWB
- 109.4 kWh/m² pro Jahr
- Klasse HWB
- D
- fGEE
- 2.59
- Klasse fGEE
- E
Flächen
- Anzahl der Zimmer
- 4.5
- Anzahl der Badezimmer
- 2
- Anzahl der sep. WCs
- 3
- Anzahl der Terrassen
- 4
- Wohnfläche
- 214m²
- Grundstücksfläche
- 1.678m²
- Gartenfläche
- 1.441m²
- Kellerfläche
- 53m²
- Terrassenfläche
- 4m²
Kosten
- Kaufpreis Brutto
- € 1.290.000,00
Verwaltung
- Verfügbar ab
- sofort
Häuser zum Kaufen in Österreich
Häuser zum Kaufen in Österreich
Häuser zum Kaufen in Österreich
Andere Besucher suchen nach...
- Grundstücke kaufen in 3400 Weidlingbach
- Wohnungen kaufen in 4663 Laakirchen
- Häuser in 7471 Rechnitz
- Wohnungen in 2410 Hainburg an der Donau
- Häuser kaufen in 2432 Schwadorf
- Wohnungen kaufen in 3002 Purkersdorf
- Häuser in 3150 Wilhelmsburg
- Wohnungen kaufen in 3470 Engelmannsbrunn
- Grundstücke kaufen im Bezirk Mattersburg
- Grundstücke kaufen im Bezirk Gmunden