Modernisiertes 4-Zi.-Reihenhaus in ruhiger Lage – mit Option auf Vergrößerung eines Zimmers und der Terrasse
Beschreibung
Willkommen in Ihrem neuen Zuhause in 2440 Moosbrunn, Niederösterreich!
Dieses charmante Reihenhaus bietet Ihnen auf 73 m² Nutzfläche alles, was Sie für ein komfortables und modernes Leben benötigen. Mit vier gut geschnittenen Zimmern ist das Haus ideal für Paare, kleine Familien oder alle, die Wert auf eine durchdachte Raumaufteilung legen.
Optional können Sie das Haus um ein 18 m² großes Zimmer sowie eine Terrasse 15 m² erweitern; auf Wunsch kann dies gegen einen Aufpreis vom Eigentümer übernommen werden.
Das Haus wurde kürzlich umfassend modernisiert und besticht durch zeitgemäßen Wohnkomfort. Besonders hervorzuheben ist die angenehme Fußbodenheizung, die für...
Willkommen in Ihrem neuen Zuhause in 2440 Moosbrunn, Niederösterreich!
Dieses charmante Reihenhaus bietet Ihnen auf 73 m² Nutzfläche alles, was Sie für ein komfortables und modernes Leben benötigen. Mit vier gut geschnittenen Zimmern ist das Haus ideal für Paare, kleine Familien oder alle, die Wert auf eine durchdachte Raumaufteilung legen.
Optional können Sie das Haus um ein 18 m² großes Zimmer sowie eine Terrasse 15 m² erweitern; auf Wunsch kann dies gegen einen Aufpreis vom Eigentümer übernommen werden.
Das Haus wurde kürzlich umfassend modernisiert und besticht durch zeitgemäßen Wohnkomfort. Besonders hervorzuheben ist die angenehme Fußbodenheizung, die für wohlige Wärme in allen Räumen sorgt. Die umweltfreundliche Luftwärmepumpe garantiert nicht nur effiziente Energieversorgung, sondern hilft auch, Heizkosten zu sparen und einen Beitrag zum Klimaschutz zu leisten.
Die Lage in Moosbrunn ist perfekt für Familien und Berufstätige. Eine gute Verkehrsanbindung durch den nahegelegenen Bus bringt Sie schnell und unkompliziert zu allen wichtigen Zielen in der Umgebung.
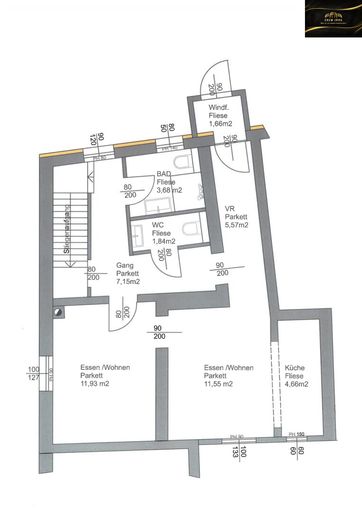
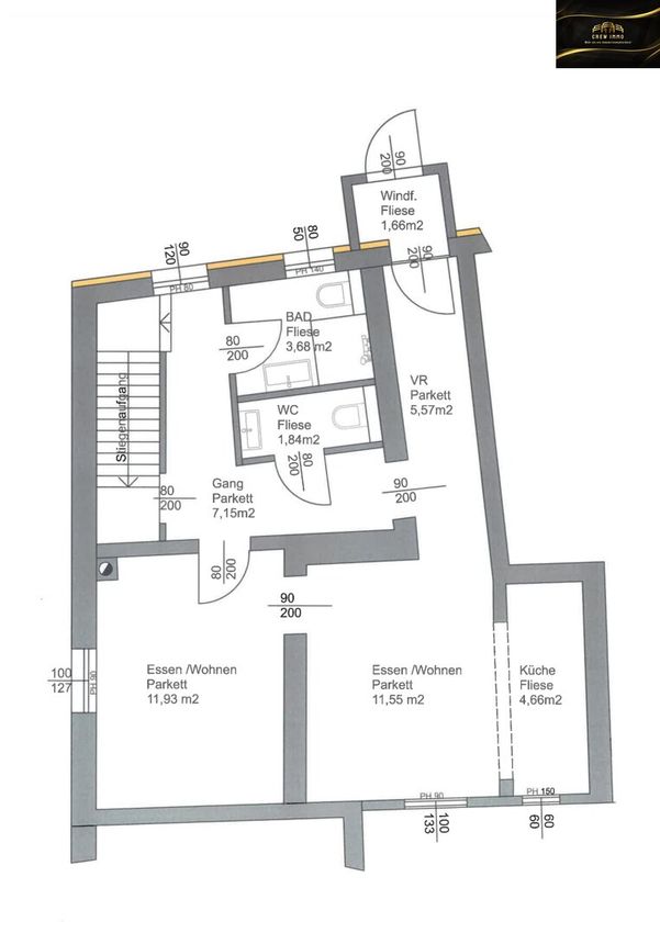
Das Haus verfügt über eine Nutzfläche von insgesamt ca. 73 m², aufgeteilt auf zwei Ebenen:
Erdgeschoss (ca. 51 m²):
Großzügiges Wohnzimmer, Küche mit Essbereich, Badezimmer sowie separates WC.
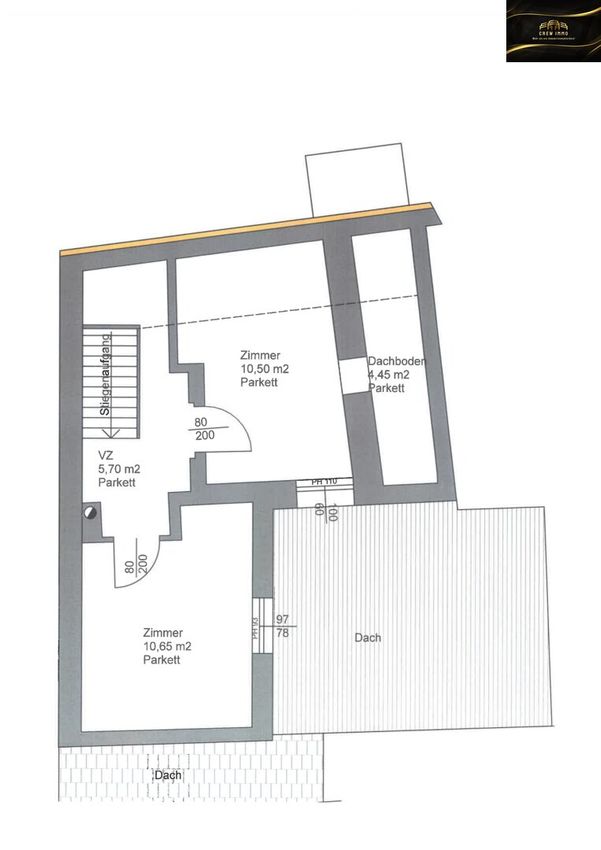
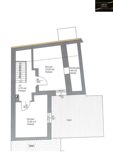
Dachgeschoss (ca. 22 m²):
Zwei Zimmer, ideal als Schlaf- und Arbeitsbereich nutzbar.
Das Haus eignet sich perfekt für Paare oder kleine Familien, die ruhiges Wohnen im Grünen mit guter Anbindung schätzen.
Für weitere Informationen oder einen Besichtigungstermin stehen wir Ihnen gerne zur Verfügung.
Hinweis gemäß Energieausweisvorlagegesetz: Ein Energieausweis wurde vom Eigentümer bzw. Verkäufer, nach unserer Aufklärung über die generell geltende Vorlagepflicht, sowie Aufforderung zu seiner Erstellung noch nicht vorgelegt. Daher gilt zumindest eine dem Alter und der Art des Gebäudes entsprechende Gesamtenergieeffizienz als vereinbart. Wir übernehmen keinerlei Gewähr oder Haftung für die tatsächliche Energieeffizienz der angebotenen Immobilie.
Der Vermittler ist als Doppelmakler tätig.
Infrastruktur / Entfernungen
Gesundheit
Arzt <2.500m
Apotheke <3.000m
Kinder & Schulen
Kindergarten <1.000m
Schule <1.000m
Nahversorgung
Supermarkt <1.000m
Bäckerei <3.000m
Einkaufszentrum <7.000m
Sonstige
Bank <3.000m
Geldautomat <6.000m
Post <2.500m
Polizei <3.000m
Verkehr
Bus <500m
Bahnhof <3.500m
Autobahnanschluss <6.500m
Angaben Entfernung Luftlinie / Quelle: OpenStreetMap
Objektdaten
Ausstattung
- Fußbodenheizung
- Luftwärmepumpe
Zustand
- Zustand
- MODERNISIERT
- Baujahr
- 1957
Flächen
- Anzahl der Zimmer
- 4
- Anzahl der Badezimmer
- 1
- Anzahl der sep. WCs
- 1
- Wohnfläche
- 51m²
- Nutzfläche
- 73m²
- Grundstücksfläche
- 117m²
Kosten
- Kaufpreis Brutto
- € 235.000,00
Häuser zum Kaufen im Umkreis von Moosbrunn
Häuser zum Kaufen in Österreich
Andere Besucher suchen nach...
- Immobilien kaufen in 2601 Sollenau
- Immobilien in 4951 Polling im Innkreis, Oberösterreich
- Immobilien in 4742 Pram, Oberösterreich kaufen oder mieten
- Häuser kaufen in 2340 Mödling, Niederösterreich
- Häuser kaufen in 9421 Gemmersdorf, Kärnten
- Wohnungen / Eigentumswohnungen kaufen in 9431 St. Stefan, Kärnten
- Häuser kaufen in Bruck an der Leitha, Niederösterreich
- Immobilien mieten in Krems an der Donau, Niederösterreich
- Häuser zum Kaufen im Bezirk St. Pölten Land, Niederösterreich
- Büro / Praxen mieten in Rohrbach, Oberösterreich