Provisionsfrei für Käufer – vielseitige Stadtvilla mit großem Potenzial in Bruck an der Mur!
Beschreibung
Diese charmante Stadtvilla am Fuße des Brucker Schlossbergs bietet Ihnen zahlreiche Nutzungsmöglichkeiten – ob als Einfamilienhaus, Zweifamilienhaus, Wohnen mit Büro oder Vermietung oder als Anlageobjekt. Hier können Sie Ihre Wohnträume nach Ihren eigenen Vorstellungen gestalten!
👉 Zum 3D-Rundgang: Hier klicken und virtuell besichtigen
Lage
In absoluter Ruhelage, direkt am Waldrand und dennoch zentrumsnah gelegen, verbindet dieses Objekt die Vorzüge von Stadt und Natur. Das Stadtzentrum von Bruck an der Mur, Einkaufsmöglichkeiten, Schulen und öffentliche Verkehrsmittel sind bequem zu Fuß erreichbar. Auch der Bahnhof liegt nur wenige Gehminuten entfernt – die Landeshauptstadt Graz erreichen Sie in ca. 30 Minuten...
Diese charmante Stadtvilla am Fuße des Brucker Schlossbergs bietet Ihnen zahlreiche Nutzungsmöglichkeiten – ob als Einfamilienhaus, Zweifamilienhaus, Wohnen mit Büro oder Vermietung oder als Anlageobjekt.
Hier können Sie Ihre Wohnträume nach Ihren eigenen Vorstellungen gestalten!
👉 Zum 3D-Rundgang:
Hier klicken und virtuell besichtigen
Lage
In absoluter Ruhelage, direkt am Waldrand und dennoch zentrumsnah gelegen, verbindet dieses Objekt die Vorzüge von Stadt und Natur.
Das Stadtzentrum von Bruck an der Mur, Einkaufsmöglichkeiten, Schulen und öffentliche Verkehrsmittel sind bequem zu Fuß erreichbar.
Auch der Bahnhof liegt nur wenige Gehminuten entfernt – die Landeshauptstadt Graz erreichen Sie in ca. 30 Minuten mit dem Auto oder Zug.
Ein idealer Standort für Familien, Pendler oder alle, die naturnah wohnen und dennoch gut angebunden sein möchten.
Ausstattung & Highlights
Großzügige Wohnfläche mit vielseitiger Nutzungsmöglichkeit
Gasheizung
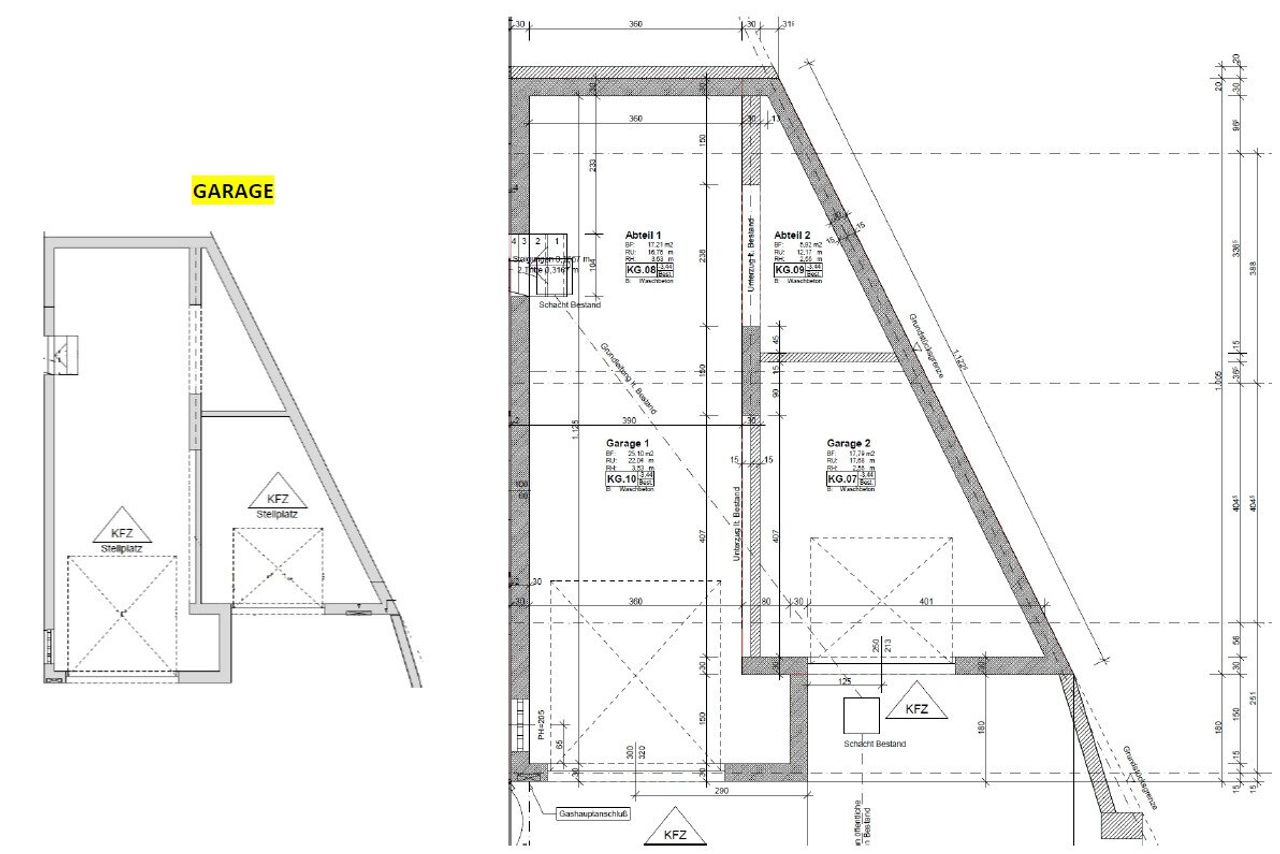
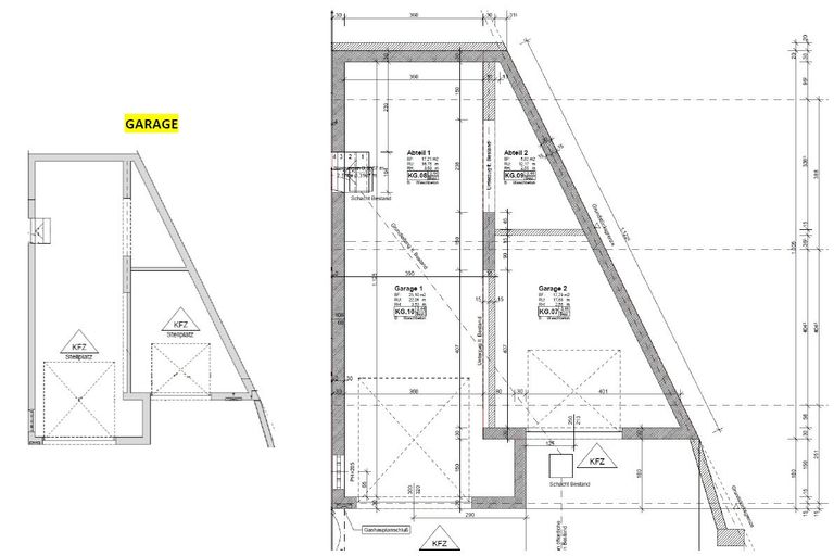
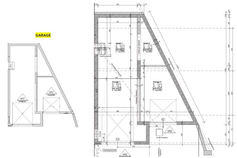
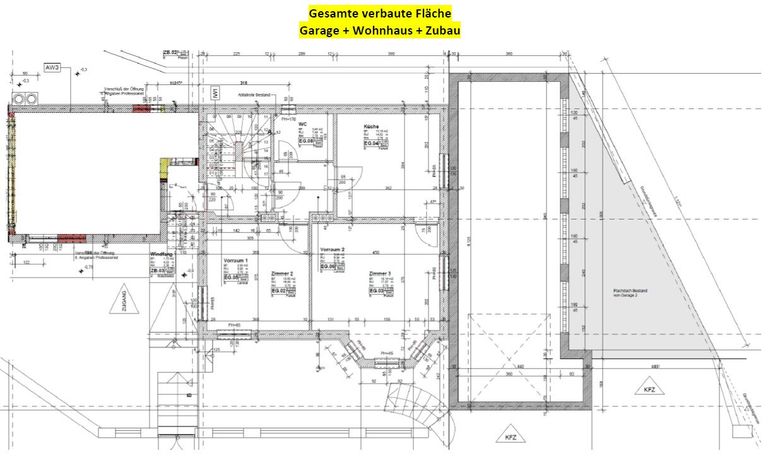
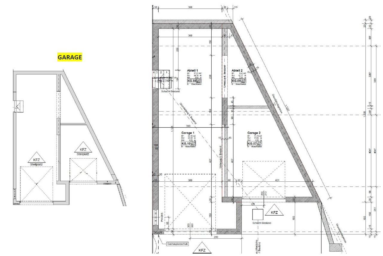
2 Garagen – eine davon auf Grund der Höhe auch für Wohnmobile und für 2 PKWs geeignet
Weitere Parkplätze vor dem Haus und zusätzliche verfügbar mittels Brucker Parkkarte
Gartenhaus und kleiner Gartenbereich für Ihre individuelle Gestaltung
Kunststofffenster mit Rollläden (2006)
Böden: Parkett, Teppich, Belag
Ausrichtung: Süd-West
Das Haus ist grundsätzlich bezugsbereit, benötigt jedoch Sanierungs- bzw. Modernisierungsarbeiten, um es auf den heutigen Standard zu bringen – ideal für alle, die ihr Zuhause nach eigenen Wünschen gestalten möchten.
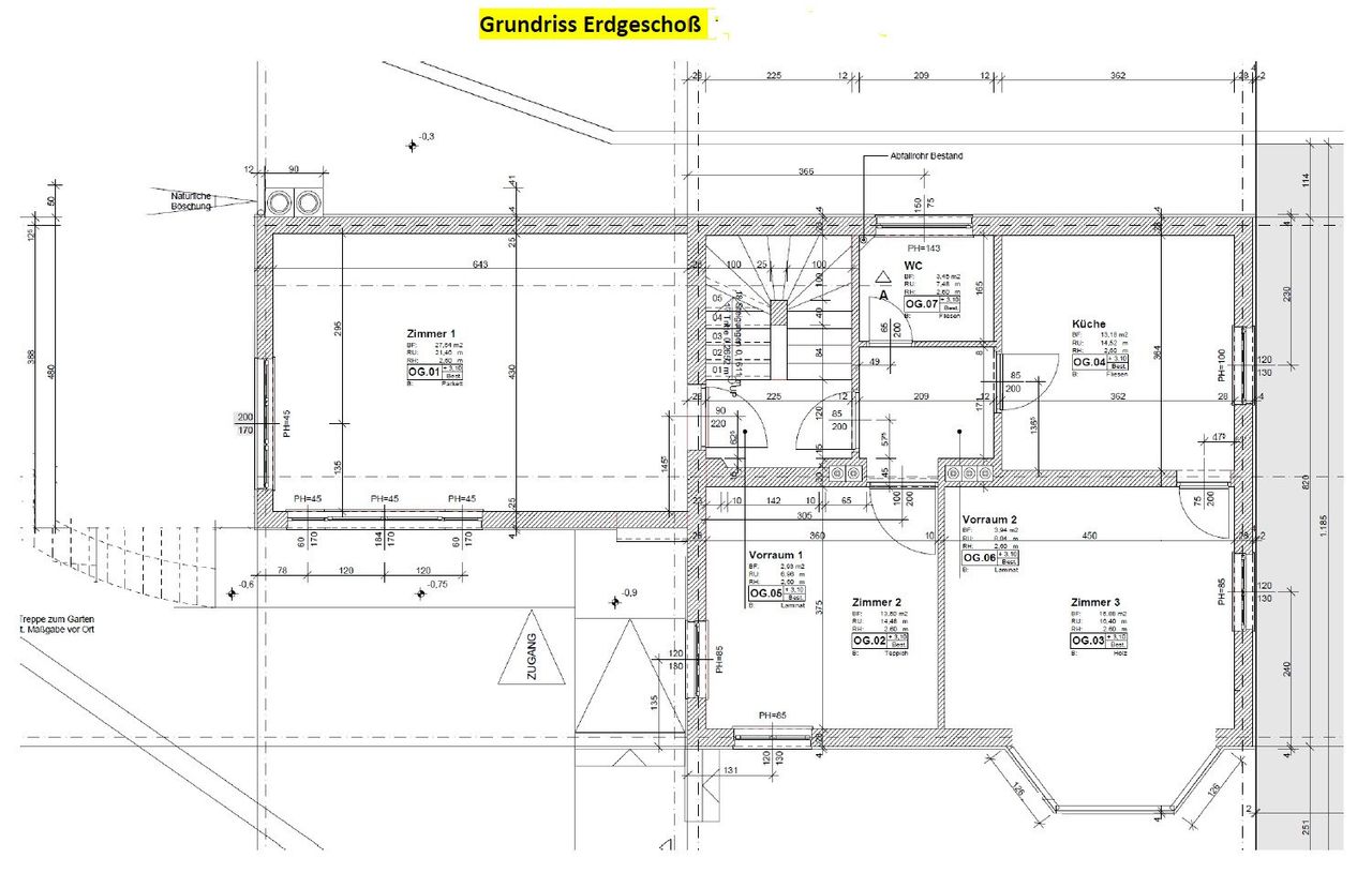
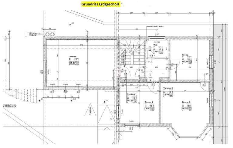
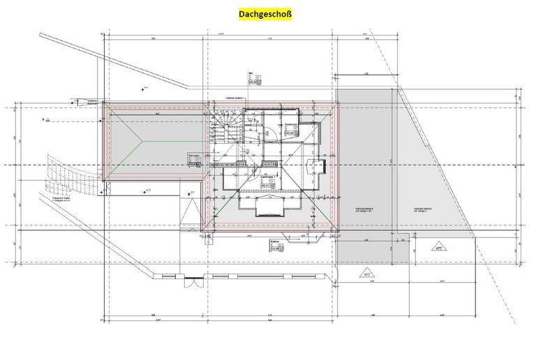
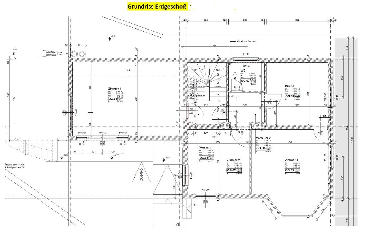
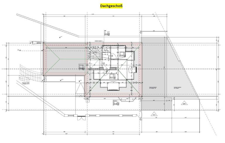
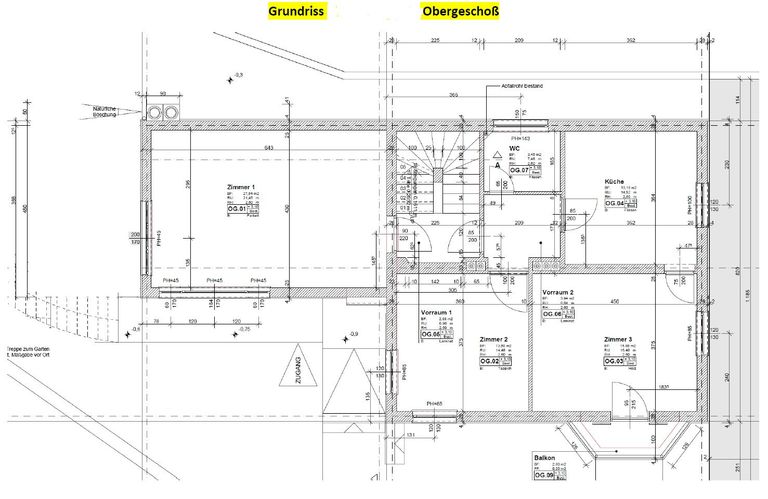
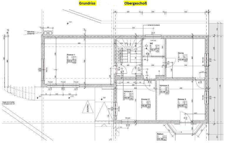
Raumaufteilung
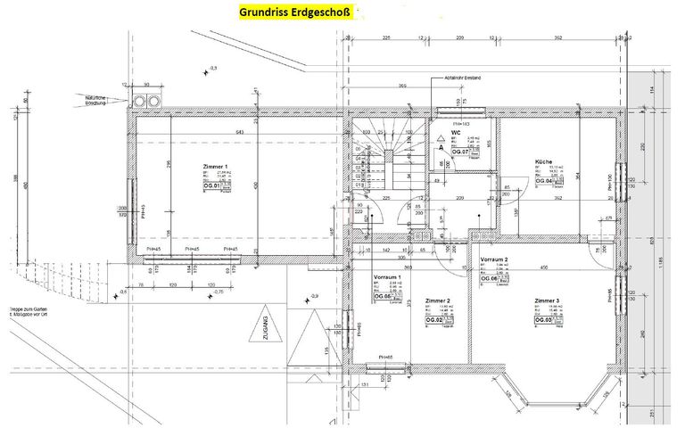
Erdgeschoss und Obergeschoss verfügen über eine nahezu identische Raumaufteilung, wodurch sich eine Nutzung als Zweifamilienhaus besonders anbietet.
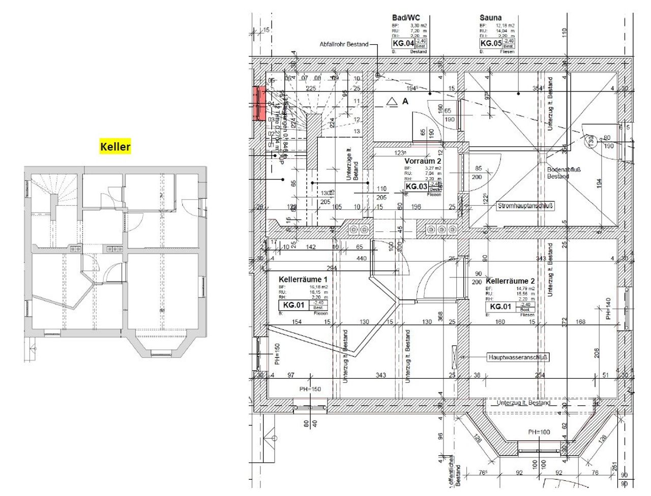
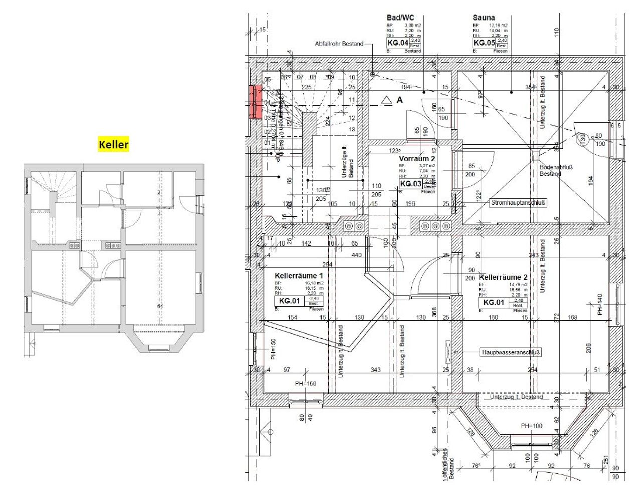
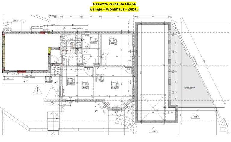
Zusätzlich gibt es eine kleine Dachgeschosswohnung sowie einen voll unterkellerten Altbau.
Die Erdgeschosswohnung ist möbliert und somit sofort bewohnbar.
(Die angegebene Wohnfläche ist eine Schätzung und beinhaltet den Zubau. Grundrisse siehe Plan.)
Bauzustand & Eckdaten
Baujahr: 1936
Zubau: 1955
Garagen- & Dachausbau: 1975
Erhöhung der Garage: 1986
Bauweise: Ziegelmassiv
Dach: Ziegeldach
Diese Immobilie überzeugt durch solide Substanz und ausgezeichnete Lage – perfekt geeignet als Renditeobjekt, Mehrgenerationenhaus oder Wohnhaus mit zusätzlicher Nutzungsmöglichkeit.
Fazit
Eine einzigartige Gelegenheit in Bruck an der Mur:
Diese Stadtvilla vereint Charme, Substanz und Gestaltungsspielraum – ideal für Familien, Unternehmer oder Investoren, die das Potenzial eines vielseitigen Hauses in bester Lage erkennen.
Mit etwas Kreativität und Renovierung entsteht hier ein Wohntraum mit Zukunft – provisionsfrei für Käufer!
Infos und Besichtigung: Christian Rossik 0664 43 17 853
Alle Angaben stammen vom Eigentümer oder der Behörde und wurden mit größter Sorgfalt erhoben.
Für Richtigkeit und Vollständigkeit wird keine Haftung übernommen.
Das Angebot ist freibleibend, Änderungen und Irrtümer vorbehalten.
Kaufpreise verstehen sich exklusive Nebenkosten, provisionsfrei für Käufer.
Pläne können von Originalen abweichen und sind nicht maßstabgetreu.
Die Firma C.R Immobilien GmbH ist gemäß §5 Abs. 3 Maklergesetz als Doppelmakler tätig.
Wir weisen darauf hin, dass zwischen dem Vermittler und dem zu vermittelnden Dritten ein familiäres oder wirtschaftliches Naheverhältnis besteht.
Infrastruktur / Entfernungen
Gesundheit
Arzt <500m
Apotheke <500m
Krankenhaus <1.500m
Kinder & Schulen
Schule <500m
Kindergarten <500m
Universität <4.000m
Nahversorgung
Supermarkt <500m
Bäckerei <500m
Einkaufszentrum <500m
Sonstige
Bank <500m
Geldautomat <500m
Post <500m
Polizei <3.500m
Verkehr
Bus <500m
Autobahnanschluss <1.500m
Bahnhof <1.000m
Flughafen <7.000m
Angaben Entfernung Luftlinie / Quelle: OpenStreetMap
Objektdaten
Ausstattung
- Massiv Bauweise
Dokumente / Links
Zustand
- Baujahr
- 1936
- Alter
- ALTBAU
- HWB
- 266.6 kWh/m² pro Jahr
- Klasse HWB
- G
- fGEE
- 3.57
- Klasse fGEE
- G
Flächen
- Anzahl der Badezimmer
- 3
- Anzahl der sep. WCs
- 3
- Stellplätze
- 1
- Wohnfläche
- 150m²
- Grundstücksfläche
- 695m²
Kosten
- Kaufpreis Brutto
- € 319.000,00
Häuser zum Kaufen im Umkreis von Bruck an der Mur
Häuser zum Kaufen im Umkreis von Bruck an der Mur
Häuser zum Kaufen in Österreich
Andere Besucher suchen nach...
- Grundstücke kaufen in 3400 Weidlingbach
- Wohnungen kaufen in 4663 Laakirchen
- Häuser in 7471 Rechnitz
- Wohnungen in 2410 Hainburg an der Donau
- Häuser kaufen in 2432 Schwadorf
- Wohnungen kaufen in 3002 Purkersdorf
- Häuser in 3150 Wilhelmsburg
- Wohnungen kaufen in 3470 Engelmannsbrunn
- Grundstücke kaufen im Bezirk Mattersburg
- Grundstücke kaufen im Bezirk Gmunden