teilsaniertes Wohnhaus mit 2 Wohneinheiten in attraktiver Lage und hervorragender Infrastruktur
Beschreibung
GRUNDSTÜCKSGRÖSSE: 360 m²
WOHNFLÄCHE: ca. 120 m²
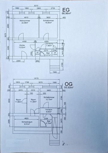
ERDGESCHOSS: Vorraum, Wohnzimmer mit Schwedenofen, möblierte Küche mit Ausgang in den Garten, Schlafzimmer, Bad mit WC, Abstellraum;
OBERGESCHOSS (separater Eingang): Vorraum, Schlafzimmer, 2 Zimmer, Schrankraum, Bad mit WC;
HEIZUNG: Elektroheizung und Schwedenofen HWB: 384 kwh/m²a fGEE: 5,26
Dieses gepflegte, teilsanierte Wohnhaus bietet Platz für zwei separate Wohneinheiten und befindet sich in guter Lage mit ausgezeichneter Infrastruktur. Einkaufsmöglichkeiten, Schulen, öffentliche Verkehrsmittel und Freizeiteinrichtungen sind bequem erreichbar.
Das Haus verfügt über eine solide Bausubstanz und wurde teilweise modernisiert – ideal für Eigennutzer Mehrgenerationenwohnen oder als Anlageobjekt.
Ein Nebengebäude bietet zusätzlichen Stauraum, eine...
GRUNDSTÜCKSGRÖSSE: 360 m²
WOHNFLÄCHE: ca. 120 m²
ERDGESCHOSS: Vorraum, Wohnzimmer mit Schwedenofen, möblierte Küche mit Ausgang in den Garten, Schlafzimmer, Bad mit WC, Abstellraum;
OBERGESCHOSS (separater Eingang): Vorraum, Schlafzimmer, 2 Zimmer, Schrankraum, Bad mit WC;
HEIZUNG: Elektroheizung und Schwedenofen HWB: 384 kwh/m²a fGEE: 5,26
Dieses gepflegte, teilsanierte Wohnhaus bietet Platz für zwei separate Wohneinheiten und befindet sich in guter Lage mit ausgezeichneter Infrastruktur. Einkaufsmöglichkeiten, Schulen, öffentliche Verkehrsmittel und Freizeiteinrichtungen sind bequem erreichbar.
Das Haus verfügt über eine solide Bausubstanz und wurde teilweise modernisiert – ideal für Eigennutzer Mehrgenerationenwohnen oder als Anlageobjekt.
Ein Nebengebäude bietet zusätzlichen Stauraum, eine Werkstatt oder Platz für Hobbys.
- Zwei eigenständige Wohneinheiten
- Teilweise modernisiert / sofort bewohnbar
- Gute Verkehrsanbindung und Infrastruktur
- Nebengebäude mit vielfältigen Nutzungsmöglichkeiten
KAUFPREIS: € 298.000,--
Der Vermittler ist als Doppelmakler tätig.
Infrastruktur / Entfernungen
Gesundheit
Arzt <500m
Apotheke <1.500m
Klinik <8.250m
Krankenhaus <2.000m
Kinder & Schulen
Schule <1.250m
Kindergarten <1.000m
Universität <750m
Höhere Schule <1.250m
Nahversorgung
Supermarkt <250m
Bäckerei <750m
Einkaufszentrum <250m
Sonstige
Bank <500m
Geldautomat <500m
Post <500m
Polizei <1.500m
Verkehr
Bus <250m
Autobahnanschluss <1.250m
Bahnhof <750m
Angaben Entfernung Luftlinie / Quelle: OpenStreetMap
Objektdaten
Ausstattung
- Elektrische Befeuerung
- Befeuerung mit Holz
Zustand
- HWB
- 384 kWh/m² pro Jahr
- Klasse HWB
- G
- fGEE
- 5.26
- Klasse fGEE
- G
Flächen
- Grundstücksfläche
- 360m²
Kosten
- Kaufpreis Brutto
- € 298.000,00
Häuser zum Kaufen im Umkreis von Eisenstadt
Häuser zum Kaufen im Umkreis von Eisenstadt
Häuser zum Kaufen in Österreich
Andere Besucher suchen nach...
- Grundstücke kaufen in 3400 Weidlingbach
- Wohnungen kaufen in 4663 Laakirchen
- Häuser in 7471 Rechnitz
- Wohnungen in 2410 Hainburg an der Donau
- Häuser kaufen in 2432 Schwadorf
- Wohnungen kaufen in 3002 Purkersdorf
- Häuser in 3150 Wilhelmsburg
- Wohnungen kaufen in 3470 Engelmannsbrunn
- Grundstücke kaufen im Bezirk Mattersburg
- Grundstücke kaufen im Bezirk Gmunden