Ein Haus, zwei Wohnbereiche – unzählige Möglichkeiten: perfekt für Familie, Gäste, Mieter oder als Bürofläche
-
01.02.2026
Beschreibung
Zweifamilienhaus in Röthis – zwei Wohneinheiten mit getrennten Eingängen
In der Walgaustraße in Röthis steht dieses vielseitige Zweifamilienhaus, das mit klarer Raumstruktur und flexiblen Nutzungsmöglichkeiten überzeugt.
Das Gebäude umfasst insgesamt rund 167 m² Wohnfläche, aufgeteilt in zwei Einheiten mit jeweils eigenem Eingang:
-
ca. 109,74 m² im 1. und 2. Obergeschoss – eine großzügige Wohnung mit klassischer Aufteilung, die viel Platz für Familie oder Paare bietet. Besonders charmant sind die sichtbaren Holzbalken im Dachgeschoss, die dem Wohnbereich eine warme und einladende Atmosphäre verleihen.
-
ca. 53,46 m² im Erdgeschoss – eine separate, kompakte...
Zweifamilienhaus in Röthis – zwei Wohneinheiten mit getrennten Eingängen
In der Walgaustraße in Röthis steht dieses vielseitige Zweifamilienhaus, das mit klarer Raumstruktur und flexiblen Nutzungsmöglichkeiten überzeugt.
Das Gebäude umfasst insgesamt rund 167 m² Wohnfläche, aufgeteilt in zwei Einheiten mit jeweils eigenem Eingang:
ca. 109,74 m² im 1. und 2. Obergeschoss – eine großzügige Wohnung mit klassischer Aufteilung, die viel Platz für Familie oder Paare bietet.
Besonders charmant sind die sichtbaren Holzbalken im Dachgeschoss, die dem Wohnbereich eine warme und einladende Atmosphäre verleihen.
ca. 53,46 m² im Erdgeschoss – eine separate, kompakte Wohnung, ideal für Angehörige, als Einliegerwohnung oder zur Vermietung. Selbst eine Nutzung als Geschäftsraum ist in dieser Einheit möglich.
Für Komfort im Alltag sorgen zwei Einzelgaragen sowie zusätzliche Außenstellplätze.
Die zentrale Lage in Röthis bietet kurze Wege: Einkaufsmöglichkeiten, Schulen, öffentliche Verkehrsmittel und die Rheintalautobahn sind in wenigen Minuten erreichbar. Gleichzeitig genießen Sie hier ein ruhiges Wohnumfeld mit hoher Lebensqualität.
Ob als Mehrgenerationenhaus, zur Kombination von Wohnen und Vermieten oder als Investment – dieses Haus eröffnet Ihnen zahlreiche Möglichkeiten.
GRUNDSTÜCKSDATEN
Grundstücksgröße: ca. 319 m²
Bauwidmung: Baufläche Mischgebiet
TECHNISCHE DATEN
Auf dem Grundstück befindet sich ein Zweifamilienhaus mit folgenden Eckdaten:
Baujahr der Immobilie | 1960 |
Heizungsart | Gastherme |
Anlage/Gesamteinheiten | 2 Wohneinheiten |
Autoabstellplätze
| 2 Garagenplätze 4 Stellplätze 1 Carport |
| DAS GEBÄUDE BESTEHT AUS | |
| Wohnfläche Gesamt | ca. 163,2 m² |
| Wohnung 1 2-Zimmer-Wohnung im Erdgeschoss | ca. 53,46 m² |
| Wohnraum | ca. 8,88 m² |
| Essküche | ca. 17,74 m² |
| Gang | ca. 7,43 m² |
| WC | ca. 1,27 m² |
| Bad | ca. 7,84 m² |
| Schlafzimmer | ca. 10,30 m² |
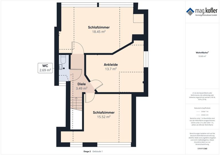
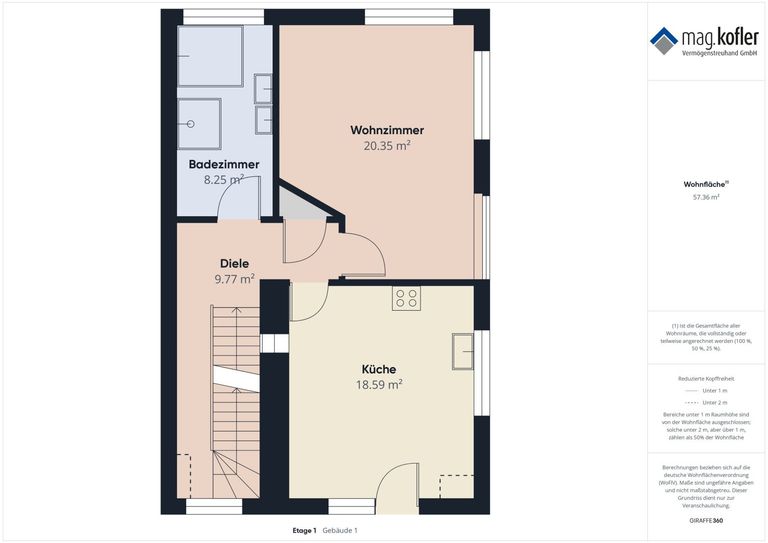
| Wohnung 2 5-Zimmer-Wohnung im 1. und 2. Obergeschoss | ca. 109,74 m² |
| EG | |
| Gang | ca. 3,57 m² |
| OG | |
| Essküche | ca. 18,59 m² |
| Bad / WC | ca. 8,25 m² |
| Wohnzimmer | ca. 20,35 m² |
| Gang | ca. 9,77 m² |
| Terrrasse | ca. 16,80 m² |
| DG | |
| Gang | ca. 3,49 m² |
| WC | ca. 2,69 m² |
| Elternschlafzimmer | ca. 16,60 m² |
| Kinderzimmer | ca. 12,53 m² |
| Kinderzimmer | ca. 13,90 m² |
| EG | |
| Zugang und Unterstellplatz | ca. 17,37 m² |
| Abstellraum | ca. 9,49 m² |
| Garage 1 | ca. 17,78 m² |
| Garage 2 | ca. 17,00 m² |
MODERNISIERUNGEN
Das Haus wurde in den vergangenen Jahren stetig modernisiert und technisch wie optisch aufgewertet.
Allgemeine Maßnahmen
- 2025: Garagen innen und außen neu gestrichen, Holzbalken am Carport aufgearbeitet
- 2024: Fassadenreinigung und Versiegelung durch die Firma Algenmax
- vor ca. 20 Jahren: Erneuerung aller Fenster, Terrassentüren, Heizung und Elektrik
Wohnung 1
2-Zimmer-Wohnung im Erdgeschoss
- 2011: Komplette Grundsanierung inkl. Badezimmer
- Neue hochwertige Haustüre
- Einbauküche vorhanden aus Vollholz mit Granitarbeitsplatte aus dem Jahr 2020
Wohnung 2
5-Zimmer-Wohnung im Obergeschoss/Dachgeschoss
- 2025: Terrassenboden erneuert (OG/RG)
- 2018: Komplette Grundsanierung inkl. Badezimmer
- Neue hochwertige Einbauküche
- Moderne Vinyl-Klickböden in allen Wohnräumen
- Sanierung der Toilette im Dachgeschoss
BESTANDSVERTRAG & MIETEINNAHMEN
Die Einliegerwohnung im Erdgeschoss ist derzeit noch vermietet. Die Maisonettewohnung ist sofort bezugsbereit.
Wohnung 1
2-Zimmer-Wohnung im Erdgeschoss
- Mietvertrag seit: 01.01.2022
- Aktuelle Laufzeit: 01.01.2025 – 31.09.2026
- Nettomiete p. m.: 603,- € ohne UST
- Betriebskosten p. m.: 125,- €
- Gesamtmieteinnahme p. a.: 7.236,- € netto ohne BK
- Kaution: 1.725, €
Gesamtobjekt
- Jahresnettomiete gesamt: 7.236,- € netto ohne BK
MONATLICHE AUSGABEN
Wasser- / Kanalabgabe: 42,14 €
Strom Wohnung 1: 33,00 €
Strom Wohnung 2: 70,00 €
NEBENKOSTENÜBERSICHT
- 3,5% Grunderwerbsteuer
- 1,1% Grundbucheintragung
- 3,6% Provision inklusive 20% Umsatzsteuer
- zuzüglich Rechtsanwalt- und Vertragserrichtungskosten zuzüglich Umsatzsteuer
- zuzüglich Barauslagen
HINWEIS ZU DEN NEBENKOSTEN:
Ab dem 01.04.2024 werden die Grundbucheintragungsgebühr von 1,1 % sowie die Pfandrechtseintragungsgebühr von 1,2 % des Kaufpreises unter bestimmten Voraussetzungen erlassen. Die neue Regelung gilt allerdings nur bis zu einem Freibetrag von 500.000,00 Euro und für Grundbucheintragungen ab dem 01.07.2024.
Von den Nebengebühren befreit ist nur der Kauf von Immobilien, die als Hauptwohnsitz dienen. Die Regelung ist außerdem auf zwei Jahre befristet und gilt bis Juni 2026. Für genaue Hinweise und ob diese Regelung für Sie anwendbar ist wenden Sie sich bitte an den Treuhänder / Vertragserrichter. Diese Zusammenfassung ist nur als Vorabinformation zu verstehen.
SONSTIGE INFORMATION
- sofort verfügbar
Alle Angaben sind nach bestem Wissen aufbereitet worden. Irrtum und Zwischenverkauf vorbehalten. Dieses Exposé ist eine Vorinformation, als Rechtsgrundlage gilt der abgeschlossene Kaufvertrag. Der angegebene Preis ist ein Richtpreis, der in etwa dem möglichen zukünftigen Kaufpreis entsprechen kann. Da der Preis vom Interessenten mit einem dafür ausgestellten Angebot definiert wird, kann er abhängig von der jeweiligen Nachfrage, auch über dem Richtpreis zu liegen kommen. Die Zustimmung erfolgt ausschließlich vom Abgeber durch Gegenzeichnung des gestellten Angebotes.
Vereinbaren Sie einen Besichtigungstermin und überzeugen Sie sich selbst von dieser einzigartigen Immobilie!
Noch nichts gefunden? Wir informieren Sie über geeignete Immobilienangebote noch vor allen anderen.
Legen Sie jetzt Ihren individuellen Suchagenten unter folgendem Link an. Wir schicken Ihnen passende Immobilien exklusiv vorab zu.
Suchagent anlegen - https://mag-kofler-vermoegenstreuhand.service.immo/registrieren/de
Wir weisen darauf hin, dass zwischen dem Vermittler und dem zu vermittelnden Dritten ein familiäres oder wirtschaftliches Naheverhältnis besteht.
Der Vermittler ist als Doppelmakler tätig.
Infrastruktur / Entfernungen
Gesundheit
Arzt <550m
Apotheke <525m
Krankenhaus <3.850m
Kinder & Schulen
Schule <475m
Kindergarten <500m
Höhere Schule <4.625m
Universität <7.900m
Nahversorgung
Supermarkt <700m
Bäckerei <900m
Einkaufszentrum <2.800m
Sonstige
Bank <625m
Geldautomat <625m
Post <1.175m
Polizei <775m
Verkehr
Bus <75m
Bahnhof <1.300m
Autobahnanschluss <1.950m
Angaben Entfernung Luftlinie / Quelle: OpenStreetMap
Objektdaten
Ausstattung
- Bad mit Dusche
- Bad mit Badewanne
- Bad mit Fenster
- Einbauküche
- Fliesenboden
- Kunststoffboden
- Zentralheizung
- Befeuerung mit Gas
- Ausrichtung Balkon/Terrasse - Ost
- Massiv Bauweise
Dokumente / Links
Zustand
- Zustand
- GEPFLEGT
- Baujahr
- 1960
- HWB
- 96 kWh/m² pro Jahr
- Klasse HWB
- C
- fGEE
- 1.37
- Klasse fGEE
- C
Flächen
- Anzahl der Zimmer
- 7
- Anzahl der Badezimmer
- 2
- Anzahl der sep. WCs
- 3
- Anzahl der Terrassen
- 1
- Stellplätze
- 3
- Wohnfläche
- 163m²
- Terrassenfläche
- 1m²
Kosten
- Kaufpreis Brutto
- € 625.000,00
Verwaltung
- Verfügbar ab
- 01.02.2026
Häuser zum Kaufen im Umkreis von Röthis
Häuser zum Kaufen im Umkreis von Röthis
Häuser zum Kaufen in Österreich
Andere Besucher suchen nach...
- Grundstücke kaufen in 3400 Weidlingbach
- Wohnungen kaufen in 4663 Laakirchen
- Häuser in 7471 Rechnitz
- Wohnungen in 2410 Hainburg an der Donau
- Häuser kaufen in 2432 Schwadorf
- Wohnungen kaufen in 3002 Purkersdorf
- Häuser in 3150 Wilhelmsburg
- Wohnungen kaufen in 3470 Engelmannsbrunn
- Grundstücke kaufen im Bezirk Mattersburg
- Grundstücke kaufen im Bezirk Gmunden