Haus und Atelier in Götzis zum kaufen
Beschreibung
CHARAKTEROBJEKT MIT VIEL PLATZ, GESCHICHTE & ENTWICKLUNGSPOTENZIAL
Ein Haus für Menschen, die Raum suchen. Für Familien mit Platzbedarf. Für Käufer mit Blick für Potenzial.
Baujahr vor 1900 – ein Objekt mit Geschichte. 1988 erfolgte eine umfassende Sanierung:
- Der südlichste Gebäudeteil wurde abgetragen und durch einen Neubau ersetzt (Garage mit aufgesetzter Pergola).
- Fassade, Fenster und Dacheindeckung wurden größtenteils erneuert.
Sanierungsbedarf besteht in folgenden Bereichen:
- Prüfung und ggf. Adaptierung des Dachbodenausbaus durch einen Althaussanierungsprofi
- Stabilisierung/Sanierungsmaßnahmen im Kellerbereich
Abgesehen davon präsentiert sich das Haus in gepflegtem und gutem Zustand.
Raumaufteilung mit außergewöhnlich viel Platz:
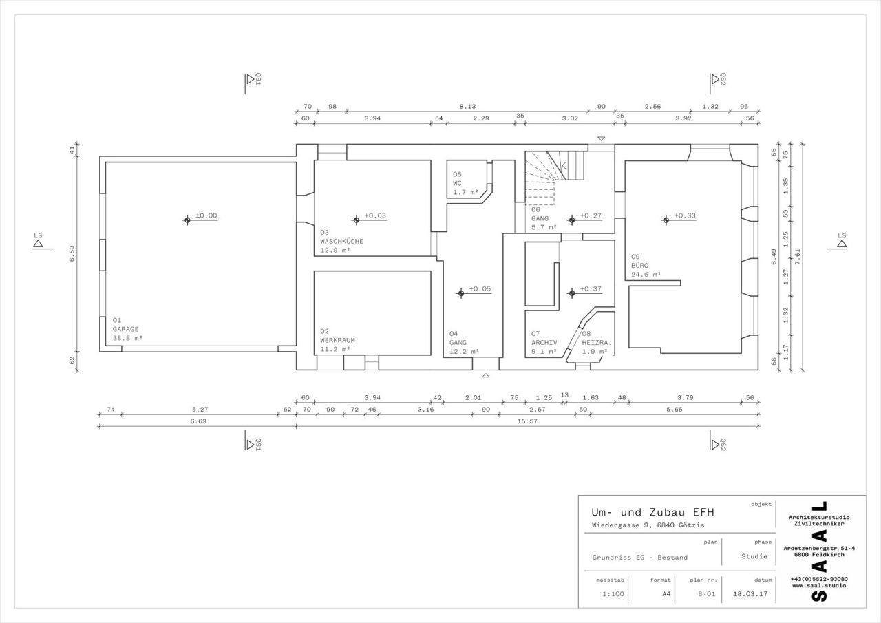
Erdgeschoss mit ca. 118,1 m²:
...CHARAKTEROBJEKT MIT VIEL PLATZ, GESCHICHTE & ENTWICKLUNGSPOTENZIAL
Ein Haus für Menschen, die Raum suchen. Für Familien mit Platzbedarf. Für Käufer mit Blick für Potenzial.
Baujahr vor 1900 – ein Objekt mit Geschichte.
1988 erfolgte eine umfassende Sanierung:
- Der südlichste Gebäudeteil wurde abgetragen und durch einen Neubau ersetzt (Garage mit aufgesetzter Pergola).
- Fassade, Fenster und Dacheindeckung wurden größtenteils erneuert.
Sanierungsbedarf besteht in folgenden Bereichen:
- Prüfung und ggf. Adaptierung des Dachbodenausbaus durch einen Althaussanierungsprofi
- Stabilisierung/Sanierungsmaßnahmen im Kellerbereich
Abgesehen davon präsentiert sich das Haus in gepflegtem und gutem Zustand.
Raumaufteilung mit außergewöhnlich viel Platz:
Erdgeschoss mit ca. 118,1 m²:
- Doppelgarage
- Waschküche
- Werkraum
- WC
- Eingangsbereich
- Archiv/Abstellraum
- Wohnraum (Wohnzimmer + Zimmer)
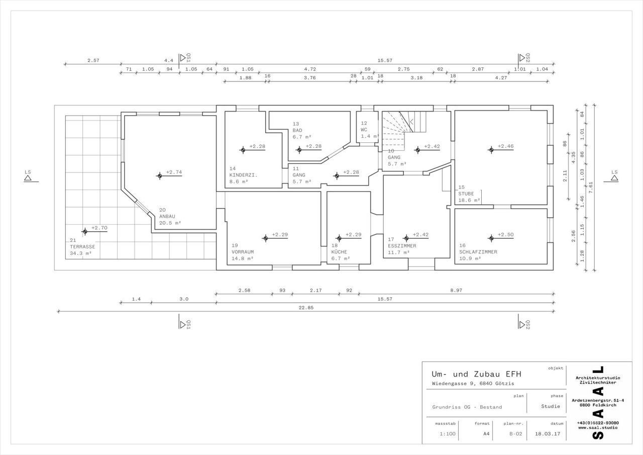
1. Obergeschoss mit ca. 144,2 m²:
- Stube/Wohnzimmer
- Schlafzimmer
- Esszimmer
- Einbauküche
- Vorraum mit Zugang zur Pergola & Terrasse
- Bad
- WC
- Kinderzimmer
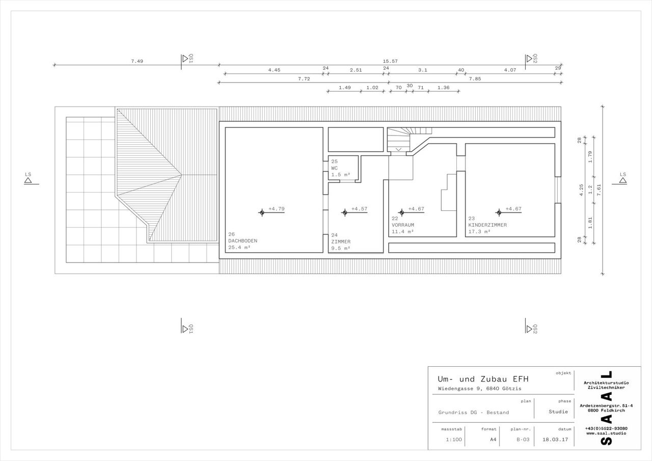
Dachgeschoss mit ca. 65,1 m²:
- Kinderzimmer
- Zimmer
- Vorraum
- WC
- Dachboden
Keller mit ca. 31,3 m² vorhanden
Zusätzliche Highlights:
- Atelier mit ca. 52 m² – ideal für Selbstständige, Hobby, Büro oder Studio
- Zusätzlicher KFZ-Stellplatz
- Carport (Erneuerung eventuell erforderlich)
- Kleiner Gartenanteil mit Gartenhaus
- Dienstbarkeitsrecht (Zufahrt) zwischen Atelier und Wohngebäude
Unsere Angaben beziehen sich auf die Auskünfte des Eigentümers. Irrtum und Änderungen vorbehalten.
Noch nichts gefunden? Wir informieren Sie über geeignete Immobilienangebote noch vor allen anderen.
Legen Sie jetzt kostenlos Ihren individuellen Suchagenten unter folgendem Link an. Wir schicken Ihnen passende Immobilien exklusiv vorab zu.
Suchagent anlegen
Hinweis gemäß Energieausweisvorlagegesetz: Ein Energieausweis wurde vom Eigentümer bzw. Verkäufer, nach unserer Aufklärung über die generell geltende Vorlagepflicht, sowie Aufforderung zu seiner Erstellung noch nicht vorgelegt. Daher gilt zumindest eine dem Alter und der Art des Gebäudes entsprechende Gesamtenergieeffizienz als vereinbart. Wir übernehmen keinerlei Gewähr oder Haftung für die tatsächliche Energieeffizienz der angebotenen Immobilie.
Der Vermittler ist als Doppelmakler tätig.
Infrastruktur / Entfernungen
Gesundheit
Arzt <550m
Apotheke <400m
Krankenhaus <4.700m
Kinder & Schulen
Schule <525m
Kindergarten <375m
Höhere Schule <775m
Nahversorgung
Supermarkt <225m
Bäckerei <250m
Einkaufszentrum <5.525m
Sonstige
Bank <250m
Geldautomat <250m
Post <800m
Polizei <725m
Verkehr
Bus <125m
Bahnhof <825m
Autobahnanschluss <1.125m
Flughafen <7.450m
Angaben Entfernung Luftlinie / Quelle: OpenStreetMap
Objektdaten
Ausstattung
- WG geeignet
- Kamin
- Gäste-WC
- Bad mit Dusche
- Bad mit Badewanne
- Bad mit Fenster
- Einbauküche
- Fliesenboden
- Steinboden
- Parkettboden
- Laminatboden
- Ofen
- Zentralheizung
- Befeuerung mit Gas
- Satteldach
- Massiv Bauweise
- Schlüsselfertig mit Keller
Dokumente / Links
Flächen
- Anzahl der Zimmer
- 8
- Anzahl der Badezimmer
- 1
- Anzahl der sep. WCs
- 3
- Anzahl der Terrassen
- 1
- Wohnfläche
- 264m²
- Nutzfläche
- 358m²
- Freifläche
- 52m²
- Kellerfläche
- 31m²
- Terrassenfläche
- 1m²
Kosten
- Kaufpreis Brutto
- € 740.000,00
Häuser zum Kaufen im Umkreis von Götzis
Häuser zum Kaufen im Umkreis von Götzis
Häuser zum Kaufen in Österreich
Andere Besucher suchen nach...
- Grundstücke kaufen in 3400 Weidlingbach
- Wohnungen kaufen in 4663 Laakirchen
- Häuser in 7471 Rechnitz
- Wohnungen in 2410 Hainburg an der Donau
- Häuser kaufen in 2432 Schwadorf
- Wohnungen kaufen in 3002 Purkersdorf
- Häuser in 3150 Wilhelmsburg
- Wohnungen kaufen in 3470 Engelmannsbrunn
- Grundstücke kaufen im Bezirk Mattersburg
- Grundstücke kaufen im Bezirk Gmunden