Studie: Reihenhäuser in attraktiver Lage von Götzis
-
Erstbezug
Beschreibung
Kornfeld 43 – Wohnen mit Garten und Lebensqualität
Projektstudie – modernes Wohnen mit Garten
Bei dem dargestellten Projekt handelt es sich derzeit um eine Studie. Die dargestellten Grundrisse sowie Visualisierungen dienen ausschließlich als Symbolbilder zur Veranschaulichung eines möglichen Bauprojektes und können sich im Zuge der weiteren Planung noch ändern.
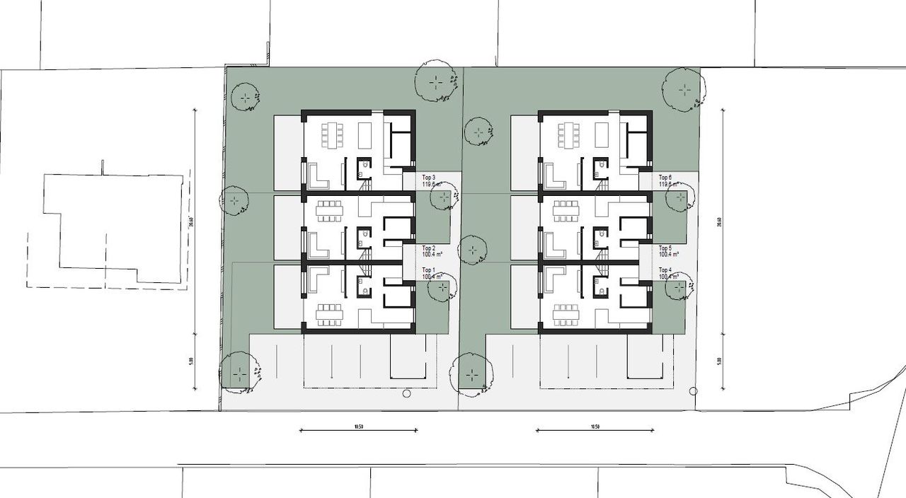
Die Studie sieht die Errichtung von insgesamt sechs Reihenhäusern vor, angeordnet in zwei Reihen mit jeweils drei Einheiten.
Die geplanten Reihenhäuser bieten Wohnflächen zwischen ca. 100 m² und 119 m² und verfügen über private Gärten in unterschiedlichen Größen. Das Konzept richtet sich insbesondere an Familien und Menschen mit Platzbedarf, die ein...
Kornfeld 43 – Wohnen mit Garten und Lebensqualität
Projektstudie – modernes Wohnen mit Garten
Bei dem dargestellten Projekt handelt es sich derzeit um eine Studie. Die dargestellten Grundrisse sowie Visualisierungen dienen ausschließlich als Symbolbilder zur Veranschaulichung eines möglichen Bauprojektes und können sich im Zuge der weiteren Planung noch ändern.
Die Studie sieht die Errichtung von insgesamt sechs Reihenhäusern vor, angeordnet in zwei Reihen mit jeweils drei Einheiten.
Die geplanten Reihenhäuser bieten Wohnflächen zwischen ca. 100 m² und 119 m² und verfügen über private Gärten in unterschiedlichen Größen. Das Konzept richtet sich insbesondere an Familien und Menschen mit Platzbedarf, die ein modernes Zuhause mit eigenem Garten suchen.
In der aktuellen Planung sind Carport-Stellplätze geplant.
Die Häuser können in verschiedenen Ausbaustufen übergeben werden. (Von Rohbau bis zu schlüsselfertigen Einheiten)
Der Kaufpreis für ein schlüsselfertiges Haus beginnt in der Studie mit € 739.000,- und kann sich je nach Ausbaustufe und Ausstattung ändern.
Richtpreise laut aktueller Projektstudie:
- Top 2 & Top 5 mit ca. 100,4 m² Wohnfläche, ca. 15 m² Terrasse, zw. 61 - 70 m² Gartenflächen: € 739.000,-
- Top 1 & Top 4 mit ca. 100,4 m² Wohnfläche, ca. 15 m² Terrasse, zw. 66 - 75 m² Gartenflächen: € 759.000,-
- Top 3 & Top 6 mit ca. 119,6 m² Wohnfläche, ca. 15 m² Terrasse, 161 m² Gartenflächen: € 859.000,-
Carportstellplatz: € 23.000,- pro Platz
Die angegebenen Preise verstehen sich als Richtpreise und können je nach Ausgestaltung, Baufortschritt sowie individueller Ausstattung variieren.
Ihrerseits wird das Grundstück erworben, die konkrete Ausführung und mögliche Ausbaustufen können anschließend in einem persönlichen Termin gemeinsam abgestimmt werden.
Bei Interesse, freuen wir uns über Ihre Anfrage.
Noch nichts gefunden? Wir informieren Sie über geeignete Immobilienangebote noch vor allen anderen.
Legen Sie jetzt kostenlos Ihren individuellen Suchagenten unter folgendem Link an. Wir schicken Ihnen passende Immobilien exklusiv vorab zu.
Suchagent anlegen
Wir weisen darauf hin, dass zwischen dem Vermittler und dem zu vermittelnden Dritten ein familiäres oder wirtschaftliches Naheverhältnis besteht.
Der Vermittler ist als Doppelmakler tätig.
Infrastruktur / Entfernungen
Gesundheit
Arzt <1.225m
Apotheke <1.075m
Krankenhaus <5.375m
Kinder & Schulen
Schule <1.175m
Kindergarten <650m
Höhere Schule <1.450m
Nahversorgung
Supermarkt <525m
Bäckerei <650m
Einkaufszentrum <6.025m
Sonstige
Bank <925m
Geldautomat <925m
Post <1.275m
Polizei <1.275m
Verkehr
Bus <400m
Bahnhof <1.250m
Autobahnanschluss <675m
Flughafen <8.125m
Angaben Entfernung Luftlinie / Quelle: OpenStreetMap
Objektdaten
Dokumente / Links
Zustand
- Zustand
- ERSTBEZUG
- Alter
- NEUBAU
Flächen
- Anzahl der Zimmer
- 4
- Anzahl der Badezimmer
- 1
- Anzahl der sep. WCs
- 1
- Anzahl der Terrassen
- 1
- Wohnfläche
- 100m²
- Terrassenfläche
- 1m²
Kosten
- Kaufpreis Brutto
- € 739.000,00
Häuser zum Kaufen im Umkreis von Götzis
Häuser zum Kaufen in Österreich
Andere Besucher suchen nach...
- Immobilien kaufen in 2601 Sollenau
- Immobilien in 4951 Polling im Innkreis, Oberösterreich
- Immobilien in 4742 Pram, Oberösterreich kaufen oder mieten
- Häuser kaufen in 2340 Mödling, Niederösterreich
- Häuser kaufen in 9421 Gemmersdorf, Kärnten
- Wohnungen / Eigentumswohnungen kaufen in 9431 St. Stefan, Kärnten
- Häuser kaufen in Bruck an der Leitha, Niederösterreich
- Immobilien mieten in Krems an der Donau, Niederösterreich
- Häuser zum Kaufen im Bezirk St. Pölten Land, Niederösterreich
- Büro / Praxen mieten in Rohrbach, Oberösterreich