Design trifft Tradition!
Beschreibung
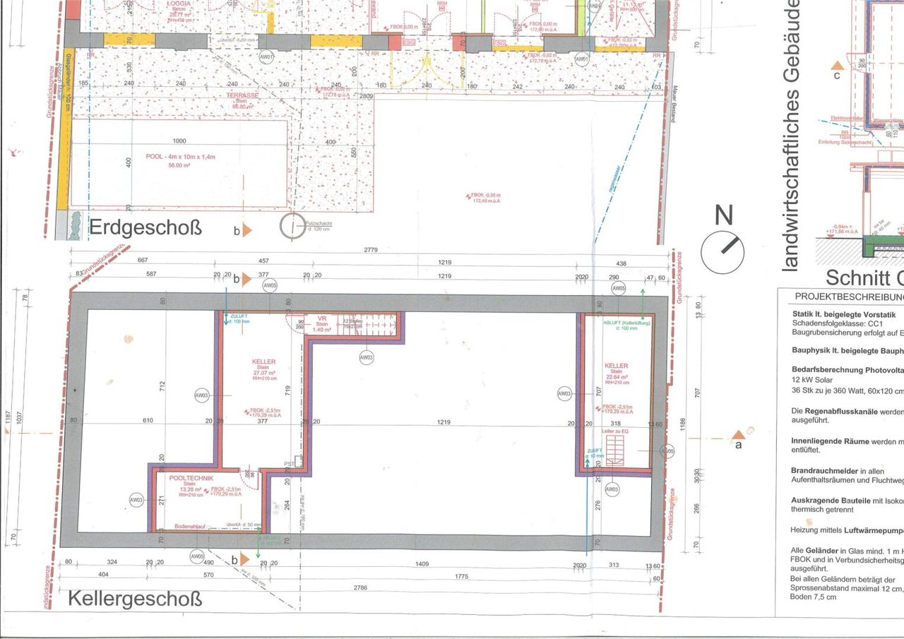
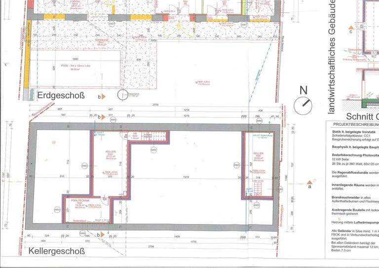
Es ist eine der raren wow Liegenschaften, wo ein tolles Designkonzept auf Tradition trifft. Die beeindruckende Raumhöhe des Reitstalls in Kombination mit den Stahlglasfronten, die licht und sichtdurchlässig und doch Geborgenheit bietend die Wohn/Essräume und die drei Schlafräume umfangen. Die davor liegenden Arkaden bieten bei Schlechtwetter oder im Sommer Schutz vor zu viel Sonne und öffnen den Blick auf den großzügigen Garten, der auf zwei Seiten von der ehemaligen Burgmauer ein gegrenzt ist und so einen erhabenen Ausblick über das Tal bietet. Der geplante Infinitypool hat einen Mauerdurchbruch erhalten, um auch beim Schwimmen diesen Ausblick zu bieten, ohne dass jemand...
Es ist eine der raren wow Liegenschaften, wo ein tolles Designkonzept auf Tradition trifft. Die beeindruckende Raumhöhe des Reitstalls in Kombination mit den Stahlglasfronten, die licht und sichtdurchlässig und doch Geborgenheit bietend die Wohn/Essräume und die drei Schlafräume umfangen. Die davor liegenden Arkaden bieten bei Schlechtwetter oder im Sommer Schutz vor zu viel Sonne und öffnen den Blick auf den großzügigen Garten, der auf zwei Seiten von der ehemaligen Burgmauer ein gegrenzt ist und so einen erhabenen Ausblick über das Tal bietet. Der geplante Infinitypool hat einen Mauerdurchbruch erhalten, um auch beim Schwimmen diesen Ausblick zu bieten, ohne dass jemand über die hohe Burgmauer allzu tief hineinschauen könnte. Richtung Westen ist noch eine frei schwebende Terrasse geplant, um gemütlich dem Sonnenuntergangschauspiel folgen zu können. Allein der offene Wohn\Ess\Küchenbereich hat über 80m² und durch die Raumhöhe wird der wow Effekt noch verstärkt. Auch die über 1700m² Grund geben die entsprechende Großzügigkeit und Weite, damit alles zur Geltung kommen kann.
Der Verkäufer hat diesen ehemaligen Reitstall trocken gelegt, wesentliche Teile saniert, geplant und eingereicht und auch schon die Stahlkonstruktion errichtet. Nun ist dies Paradies in der Umsetzungsphase so weit, dass der künftige Eigentümer noch dies Designstück genau auf seine Bedürfnisse hin schneidern kann. Derzeit ist eine rein ebenerdige Nutzung geplant. Durch die Raumhöhe könnte der Käufer aber noch ein Stockwerk ein ziehen, mit oder ohne Dachterrassen, weiteren Schlafzimmern, Büro, Ausstellungsraum, oder eben wie jetzt geplant eine großzügige Oase für eine 4-köpfige Familie schaffen. Auch von der Technik ist mit Solarzellen und Luft Wärmepumpe ein ganz zeitgemäßes Konzept vorgesehen. Der Kaufpreis von 470.000,- ist sehr fair bemessen. Je nachdem wie viel Eigenleistung man einbringen will und welchen Luxus man sich dann noch zusätzlich gönnen will sind die Fertigstellungskosten ebenso individuell, Dann hat man sein Paradies mit wirklichem wow Effekt und Einzigartigkeit. Alle Vorteile vom Landleben mit kurzem Weg in die Stadt. Klar kann sich nicht jeder so ein Schmuckstück leisten, doch wenn man in der glücklichen Lage ist sich so einen Familiensitz zu schaffen sollte man diese einmalige Chance nutzen.
Kaufpreis: € 425.000,-- - Finanzierungsbeispiel: angen. Eigenmittel € 85.000,00 ab mtl. € 1.507,--/420 Monate Laufzeit
WIKIFINIA Finanzmanagement GmbH
Mag. Wilhelm Kindlinger
Geschäftsführer
T: +43 676 6577064; E: wilhelm.kindlinger@wikifinia.at
B: Opernring 1 / E / 436-437, 1010 Wien; W: www.wikifinia.at
Der Vermittler ist als Doppelmakler tätig.
Infrastruktur / Entfernungen
Gesundheit
Arzt <275m
Apotheke <7.675m
Klinik <7.675m
Kinder & Schulen
Kindergarten <125m
Schule <2.675m
Nahversorgung
Supermarkt <2.775m
Bäckerei <2.725m
Sonstige
Geldautomat <2.750m
Bank <2.750m
Post <2.750m
Polizei <2.875m
Verkehr
Bus <175m
Bahnhof <950m
Autobahnanschluss <8.775m
Flughafen <9.200m
Angaben Entfernung Luftlinie / Quelle: OpenStreetMap
Objektdaten
Ausstattung
- Luftwärmepumpe
Zustand
- Zustand
- ENTKERNT
- Alter
- ALTBAU
- HWB
- 55.2 kWh/m² pro Jahr
- Klasse HWB
- C
- fGEE
- 0.98
- Klasse fGEE
- B
Flächen
- Anzahl der Zimmer
- 4
- Anzahl der Badezimmer
- 2
- Anzahl der Balkone
- 1
- Anzahl der Terrassen
- 1
- Stellplätze
- 2
- Wohnfläche
- 205m²
- Nutzfläche
- 307m²
- Grundstücksfläche
- 1.702m²
- Gartenfläche
- 1.400m²
- Kellerfläche
- 61m²
- Terrassenfläche
- 1m²
Kosten
- Kaufpreis Brutto
- € 425.000,00
Verwaltung
- Ferienimmobilie
- Ja
Häuser zum Kaufen im Umkreis von Matzen-Raggendorf
Häuser zum Kaufen in Österreich
Andere Besucher suchen nach...
- Immobilien kaufen in 2601 Sollenau
- Immobilien in 4951 Polling im Innkreis, Oberösterreich
- Immobilien in 4742 Pram, Oberösterreich kaufen oder mieten
- Häuser kaufen in 2340 Mödling, Niederösterreich
- Häuser kaufen in 9421 Gemmersdorf, Kärnten
- Wohnungen / Eigentumswohnungen kaufen in 9431 St. Stefan, Kärnten
- Häuser kaufen in Bruck an der Leitha, Niederösterreich
- Immobilien mieten in Krems an der Donau, Niederösterreich
- Häuser zum Kaufen im Bezirk St. Pölten Land, Niederösterreich
- Büro / Praxen mieten in Rohrbach, Oberösterreich