360° TOUR // EINFAMILIENHAUS in ruhiger COTTAGELAGE von STRASSHOF // FULLY FURNISHED DETACHED HOUSE in quiet COTTAGE AREA of "STRASSHOF"
-
sofort
Beschreibung
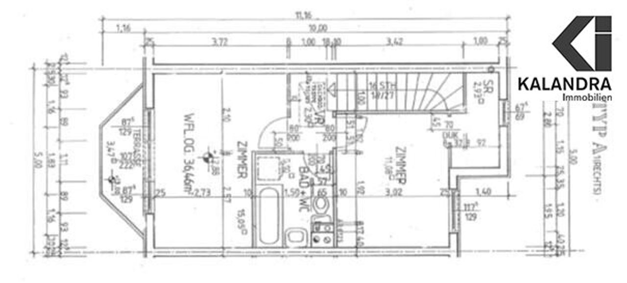
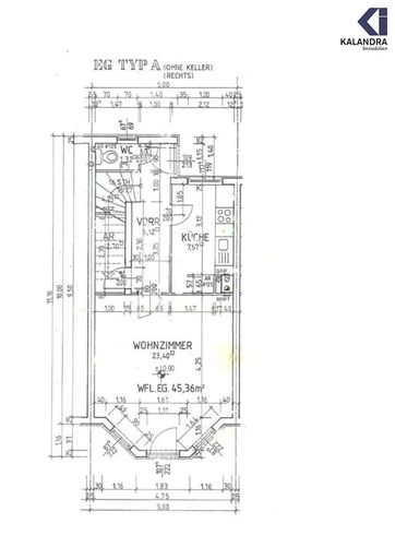
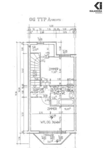
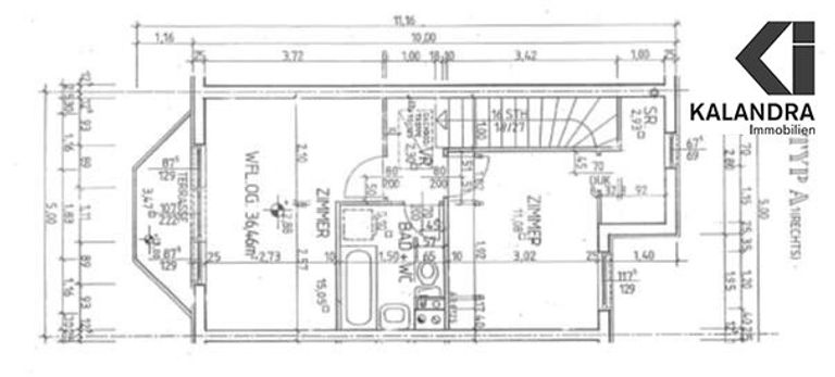
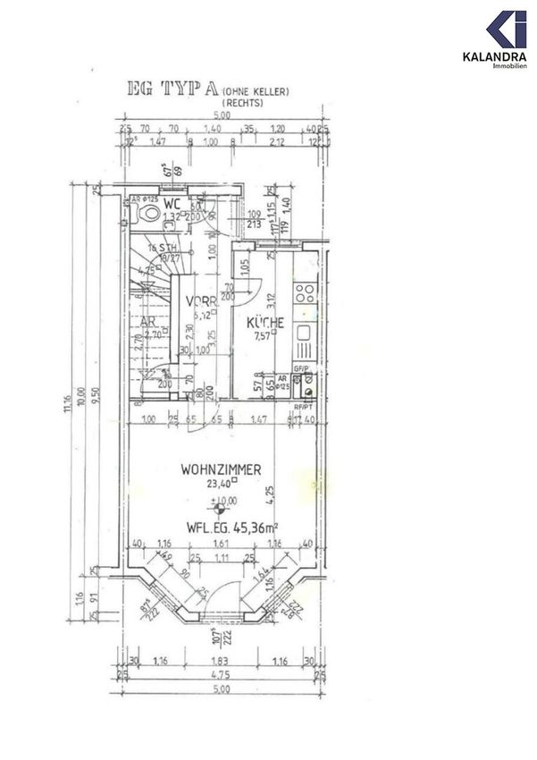
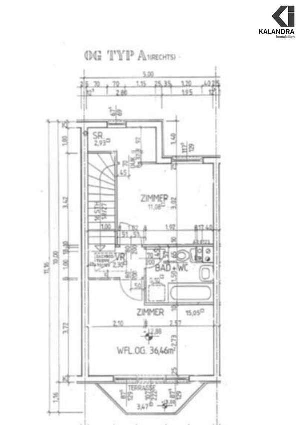
EINFAMILIENHAUS mit ruhigem und sonnigen GARTEN Das Haus mit idealer Ausrichtung nach Süd-Westen liegt in einer gepflegten Reihenhausanlage in der Gemeinde Strasshof. Raumaufteilung: Hochparterre: großzügiger Vorraum (ca. 5m²) mit Gäste-WC, Wohnzimmer (ca. 23,40m² ), Küche (ca. 8m²) vom Vorraum führt eine Innenstiege in den 1.Stock: Vorraum/ Diele (ca. 3m²), zwei Schlafzimmer (ca. 15m² & 11m²), Badezimmer mit Wanne, Dusche & WC (ca. 5m²) sowie ein begehbarer Schrankraum (ca. 3m²); Dachgeschoß: Studio im ausgebauten Dachboden (ca. 20m²) Ausstattung: - Wohnzimmer mit Fliesenboden, Schlafräumen mit Parkettboden ausgestattet
- Sanitärräume teilweise gemalt, teilweise mit weißen Wandfliesen
- Gas-Zentralheizung Lage & Infrastruktur: Das Haus...
EINFAMILIENHAUS mit ruhigem und sonnigen GARTEN
Das Haus mit idealer Ausrichtung nach Süd-Westen liegt in einer gepflegten Reihenhausanlage in der Gemeinde Strasshof.
Raumaufteilung:
Hochparterre:
großzügiger Vorraum (ca. 5m²) mit Gäste-WC, Wohnzimmer (ca. 23,40m² ), Küche (ca. 8m²)
vom Vorraum führt eine Innenstiege in den
1.Stock:
Vorraum/ Diele (ca. 3m²), zwei Schlafzimmer (ca. 15m² & 11m²), Badezimmer mit Wanne, Dusche & WC (ca. 5m²) sowie ein begehbarer Schrankraum (ca. 3m²);
Dachgeschoß:
Studio im ausgebauten Dachboden (ca. 20m²)
Ausstattung:
- Wohnzimmer mit Fliesenboden, Schlafräumen mit Parkettboden ausgestattet
- Sanitärräume teilweise gemalt, teilweise mit weißen Wandfliesen
- Gas-Zentralheizung
Lage & Infrastruktur:
Das Haus befindet sich in einem ruhigen Villen-Cottagegebiet von Strasshof, dennoch sind diverse Nahversorger & Einkaufsmöglichkeiten (Supermarkt, Bäckerei, Post, Bank, Apotheke), Kindergarten & Schule, Theater & Kulturzentrum, sowie Lokale und Restaurants in Fußgehdistanz erreichbar.
Die öffentliche Verkehrsanbindung ist durch den nahegelegenen Bahnhof Straßhof, über den der Wiener Verkehrsknotenpunkt Leopoldau oder Kagran (U-Bahn U1) und damit auch das Wiener Stadtzentrum in ca. 30-40 min erreichbar sind.
Mit dem PKW erreicht man in etwa 40-45 min den Wiener Stephansplatz.
360° Tour:
https://360.kalandra.at/view/fullscreen/id/VZ43P
Infrastruktur / Entfernungen
Gesundheit
Arzt <500m
Apotheke <500m
Klinik <6.000m
Kinder & Schulen
Kindergarten <500m
Schule <500m
Nahversorgung
Supermarkt <500m
Bäckerei <500m
Einkaufszentrum <9.000m
Sonstige
Bank <500m
Geldautomat <500m
Post <500m
Polizei <5.500m
Verkehr
Bus <500m
Bahnhof <500m
Autobahnanschluss <9.000m
Angaben Entfernung Luftlinie / Quelle: OpenStreetMap
Objektdaten
Ausstattung
- Zentralheizung
- Befeuerung mit Gas
Dokumente / Links
Zustand
- Zustand
- NEUWERTIG
- Baujahr
- 1994
- HWB
- 113.8 kWh/m² pro Jahr
- Klasse HWB
- D
- fGEE
- 1.6
- Klasse fGEE
- C
Flächen
- Anzahl der Zimmer
- 5
- Anzahl der Badezimmer
- 1
- Anzahl der sep. WCs
- 2
- Anzahl der Terrassen
- 1
- Stellplätze
- 1
- Wohnfläche
- 110m²
- Terrassenfläche
- 1m²
Kosten
- Kaufpreis Brutto
- € 300.000,00
- Betriebskosten
- € 189,00
Verwaltung
- Verfügbar ab
- sofort
Häuser zum Kaufen im Umkreis von Strasshof an der Nordbahn
- Bezirk Gänserndorf
- Bezirk Gänserndorf
- Bezirk Gemeindebezirk Donaustadt
- Bezirk Gemeindebezirk Donaustadt
- Bezirk Gemeindebezirk Donaustadt
- Bezirk Gemeindebezirk Floridsdorf
- Bezirk Gemeindebezirk Floridsdorf
- Bezirk Gemeindebezirk Floridsdorf
- Bezirk Gemeindebezirk Simmering
- Bezirk Gemeindebezirk Simmering
Häuser zum Kaufen im Umkreis von Strasshof an der Nordbahn
Häuser zum Kaufen in Österreich
Andere Besucher suchen nach...
- Grundstücke kaufen in 3400 Weidlingbach
- Wohnungen kaufen in 4663 Laakirchen
- Häuser in 7471 Rechnitz
- Wohnungen in 2410 Hainburg an der Donau
- Häuser kaufen in 2432 Schwadorf
- Wohnungen kaufen in 3002 Purkersdorf
- Häuser in 3150 Wilhelmsburg
- Wohnungen kaufen in 3470 Engelmannsbrunn
- Grundstücke kaufen im Bezirk Mattersburg
- Grundstücke kaufen im Bezirk Gmunden