Schlüsselfertig zum belagsfertigen Preis! Großzügiges Familiendomizil direkt am Nationalpark
-
Erstbezug
-
2025
-
nach Absprache
Beschreibung
Nur kurze Zeit: Kaufen Sie jetzt zum Kaufpreis "belagsfertig" und erhalten Sie die schlüsselfertige Endausstattung! Willkommen im Wohnpark Mühlleiten – Ihrem neuen Zuhause zwischen Natur und Stadt Träumen Sie von einem Zuhause, das Naturverbundenheit und Stadtnähe perfekt kombiniert? Im Wohnpark Mühlleiten finden Sie nicht nur moderne Architektur, sondern auch eine nachhaltige Bauweise, die auf die Bedürfnisse Ihrer Familie abgestimmt ist. Insgesamt entstehen hier 14 Doppel- und Reihenhäuser in hochwertiger VARIO-Fertigteilhaus-Bauweise. Die durchdachten Einheiten vereinen modernes Design mit ökologischen Bauweise und bieten eine stabile Grundlage für eine nachhaltige Zukunft. Dank der energieeffizienten Bauweise sparen Sie nicht nur langfristig Energiekosten, sondern genießen...
Nur kurze Zeit:
Kaufen Sie jetzt zum Kaufpreis "belagsfertig" und erhalten Sie die schlüsselfertige Endausstattung!
Willkommen im Wohnpark Mühlleiten – Ihrem neuen Zuhause zwischen Natur und Stadt
Träumen Sie von einem Zuhause, das Naturverbundenheit und Stadtnähe perfekt kombiniert? Im Wohnpark Mühlleiten finden Sie nicht nur moderne Architektur, sondern auch eine nachhaltige Bauweise, die auf die Bedürfnisse Ihrer Familie abgestimmt ist.
Insgesamt entstehen hier 14 Doppel- und Reihenhäuser in hochwertiger VARIO-Fertigteilhaus-Bauweise.
Die durchdachten Einheiten vereinen modernes Design mit ökologischen Bauweise und bieten eine stabile Grundlage für eine nachhaltige Zukunft. Dank der energieeffizienten Bauweise sparen Sie nicht nur langfristig Energiekosten, sondern genießen auch an kalten Tagen ein gemütliches Wohnklima.
Auf Wunsch werden die Hauser auch in Massivbauweise erreichtet - gerne geben wir bei näherem Interesse die entsprechenden Kosten bekannt.
Die durchdachte Ausrichtung aller Häuser sorgt dafür, dass Ihre Wohnräume stets von natürlichem Licht erfüllt sind - rein nordseitige Räume gibt es nicht – stattdessen erwarten Sie freundliche und helle Wohnbereiche.
Mit Wohnflächen von 88 m² bis 129 m² haben Sie die Wahl zwischen kompakten und großzügigen Grundrissen. 3, 4 oder 5 Zimmer – hier findet jede Familie ihr ideales Zuhause.
• Erdgeschoss: Die einladende Wohnküche bildet den Mittelpunkt Ihres Zuhauses. Von hier aus gelangen Sie direkt auf die Terrasse und in den privaten Garten, der reichlich Platz zum Spielen, Entspannen oder Gärtnern bietet. Ein Abstellraum, ein Gäste-WC und – je nach Größe – ein zusätzlicher Arbeits- oder Schlafraum runden das Erdgeschoss ab.
• Obergeschoss: Hier befinden sich die Schlafzimmer sowie ein modernes Badezimmer mit WC – perfekt für Privatsphäre und Ruhe.
Die Häuser werden nun schlüsselfertig übergeben.
Jedes Haus verfügt zusätzlich über zwei eigene PKW-Stellplätze.
Im Wohnpark Mühlleiten verbinden sich naturnahes Wohnen, moderne Architektur und nachhaltige Bauweise zu einem einzigartigen Wohngefühl – nur einen Steinwurf von Wien entfernt. Erfüllen Sie sich jetzt Ihren Traum vom perfekten Zuhause!
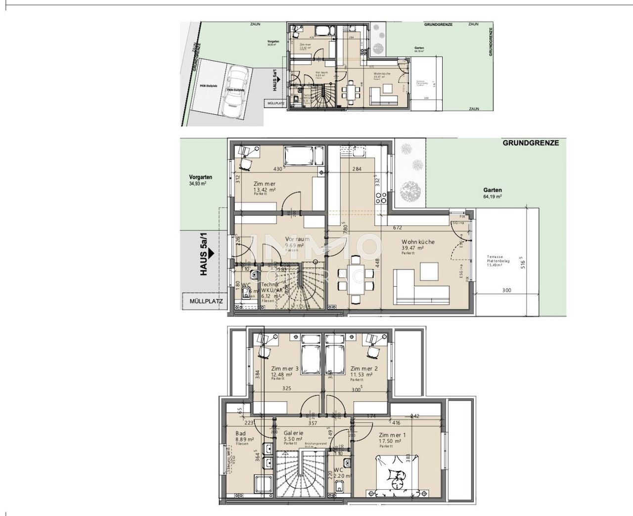
Reihenhaus 5a/1
hat eine Wohnfläche von ca. 128,56 m2 aufgeteilt auf zwei Etagen:
Erdgeschoss: Vorraum, große Wohnküche mit Ausgang auf die Terrasse, Gästezimmer, Abstellraum mit Haustechnik, sowie Gäste-WC.
Obergeschoß: großes Schlafzimmer, zwei Kinderzimmer, großes Badezimmer und separates WC.
Der Garten ist süd-/ostseitig ausgerichtet.
Infrastruktur / Entfernungen
Gesundheit
Arzt <3.500m
Apotheke <4.000m
Klinik <8.000m
Krankenhaus <5.500m
Kinder & Schulen
Schule <2.000m
Kindergarten <2.000m
Universität <3.500m
Höhere Schule <7.500m
Nahversorgung
Supermarkt <2.500m
Bäckerei <4.000m
Einkaufszentrum <4.500m
Sonstige
Bank <4.000m
Geldautomat <4.000m
Post <4.000m
Polizei <4.500m
Verkehr
Bus <500m
Straßenbahn <7.500m
U-Bahn <8.000m
Bahnhof <6.000m
Autobahnanschluss <5.000m
Flughafen <7.500m
Angaben Entfernung Luftlinie / Quelle: OpenStreetMap
Objektdaten
Ausstattung
- Gäste-WC
- Fußbodenheizung
- Luftwärmepumpe
- Schlüsselfertig mit Bodenplatte
Zustand
- Zustand
- ERSTBEZUG
- Baujahr
- 2025
- Alter
- NEUBAU
- HWB
- 38 kWh/m² pro Jahr
- Klasse HWB
- B
- fGEE
- 0.67
- Klasse fGEE
- A+
Flächen
- Anzahl der Zimmer
- 5
- Anzahl der Badezimmer
- 1
- Anzahl der sep. WCs
- 2
- Anzahl der Terrassen
- 1
- Wohnfläche
- 129m²
- Gartenfläche
- 99m²
- Terrassenfläche
- 1m²
Kosten
- Kaufpreis Brutto
- € 548.349,00
Verwaltung
- Verfügbar ab
- nach Absprache
Häuser zum Kaufen im Umkreis von Groß-Enzersdorf
- Bezirk Gemeindebezirk Donaustadt
- Bezirk Gemeindebezirk Donaustadt
- Bezirk Gemeindebezirk Donaustadt
- Bezirk Gemeindebezirk Simmering
- Bezirk Gemeindebezirk Simmering
- Bezirk Gemeindebezirk Simmering
- Bezirk Gemeindebezirk Favoriten
- Bezirk Gemeindebezirk Favoriten
- Bezirk Gemeindebezirk Favoriten
- Bezirk Gemeindebezirk Floridsdorf
Häuser zum Kaufen im Umkreis von Groß-Enzersdorf
Häuser zum Kaufen in Österreich
Andere Besucher suchen nach...
- Grundstücke kaufen in 3400 Weidlingbach
- Wohnungen kaufen in 4663 Laakirchen
- Häuser in 7471 Rechnitz
- Wohnungen in 2410 Hainburg an der Donau
- Häuser kaufen in 2432 Schwadorf
- Wohnungen kaufen in 3002 Purkersdorf
- Häuser in 3150 Wilhelmsburg
- Wohnungen kaufen in 3470 Engelmannsbrunn
- Grundstücke kaufen im Bezirk Mattersburg
- Grundstücke kaufen im Bezirk Gmunden