Außergewöhnlich großzügige Wohnung mit Pool – ruhig & perfekt angebunden
-
ab sofort
Beschreibung
Diese außergewöhnliche Wohnung mit Hauscharakter befindet sich in einem stilvoll sanierten Gebäude aus dem Baujahr ca. 1900, das vollständig entkernt und generalsaniert wurde. Die Sanierung sowie sämtliche Umbauarbeiten erfolgten unter architektonischer Planung und Bauaufsicht. Die letzte wesentliche Adaptierung wurde 2012 durchgeführt. Alle Maßnahmen sind vollständig dokumentiert.
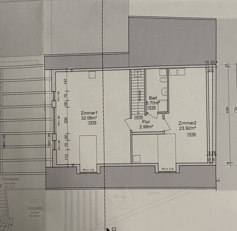
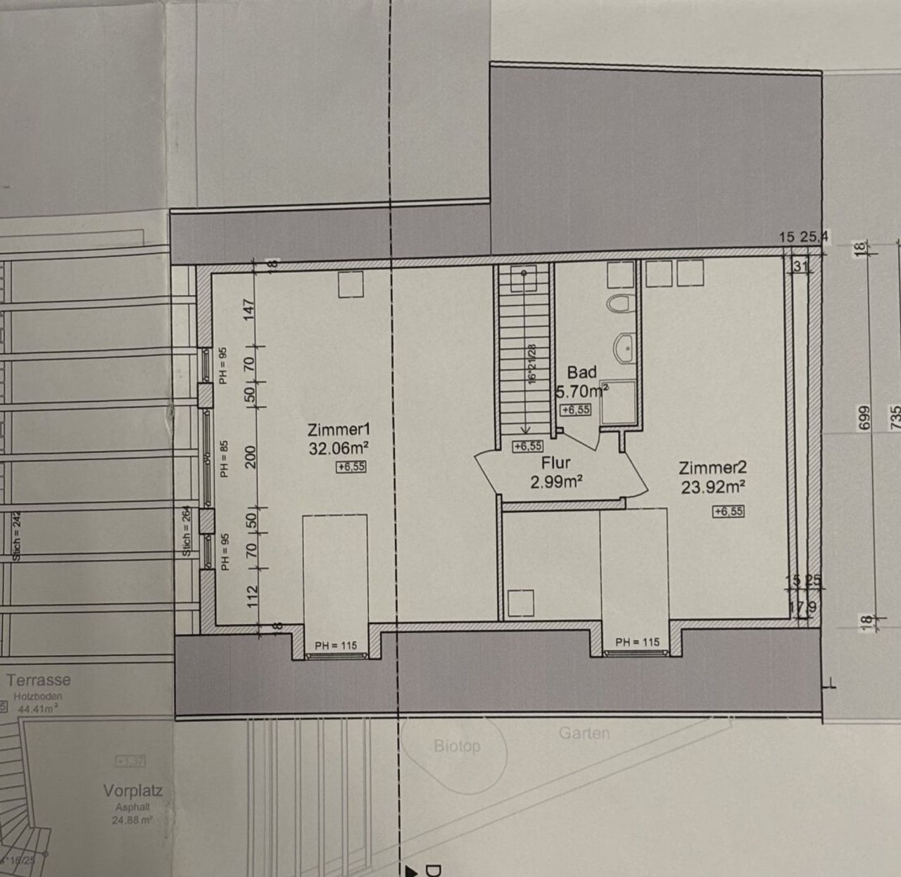
Die Wohnung überzeugt durch eine großzügige Raumaufteilung mit sechs Zimmern, weitläufige Fensterflächen für ein lichtdurchflutetes Wohnambiente sowie eine hochwertige Ausstattung. Durch ihre Aufteilung und Außenflächen bietet sie ein Wohngefühl, das eher an ein Einfamilienhaus erinnert als an eine klassische Wohnung.
Der Pool, die ruhige Lage, die Garage sowie die ausgezeichnete Anbindung machen dieses Objekt...
Diese außergewöhnliche Wohnung mit Hauscharakter befindet sich in einem stilvoll sanierten Gebäude aus dem Baujahr ca. 1900, das vollständig entkernt und generalsaniert wurde. Die Sanierung sowie sämtliche Umbauarbeiten erfolgten unter architektonischer Planung und Bauaufsicht. Die letzte wesentliche Adaptierung wurde 2012 durchgeführt. Alle Maßnahmen sind vollständig dokumentiert.
Die Wohnung überzeugt durch eine großzügige Raumaufteilung mit sechs Zimmern, weitläufige Fensterflächen für ein lichtdurchflutetes Wohnambiente sowie eine hochwertige Ausstattung. Durch ihre Aufteilung und Außenflächen bietet sie ein Wohngefühl, das eher an ein Einfamilienhaus erinnert als an eine klassische Wohnung.
Der Pool, die ruhige Lage, die Garage sowie die ausgezeichnete Anbindung machen dieses Objekt zu einer absoluten Rarität im Raum Hausmannstetten.
Wohnfläche & Raumangebot
- 6 Zimmer – flexibel nutzbar (Wohnen, Schlafen, Arbeiten, Gäste)
- Großzügige Wohn- und Aufenthaltsbereiche
- Große Fensterflächen für optimale Belichtung
- Zwei vollwertige Badezimmer inkl. WCs
- Durchdachte Grundrisslösung mit klarer Trennung von Wohn- und Rückzugsbereichen
Ausstattung & Highlights
- ✔ Moderne Einbauküche mit hochwertigen Geräten
- ✔ 2 Bäder + WCs, zeitlos und hochwertig ausgestattet
- ✔ Pool zur exklusiven Nutzung
- ✔ Garage
- ✔ Fernwärme-Heizung – effizient und nachhaltig
- ✔ Massivbauweise
- ✔ Ruhige Wohnlage mit hoher Lebensqualität
- ✔ Sehr guter, bezugsfertiger Gesamtzustand
Sanierung & Bauqualität
- Ursprüngliches Baujahr des Gebäudes: ca. 1900
- Komplette Entkernung & Generalsanierung
- Architektonisch geplant und umgesetzt
- Letzte größere Veränderungen: 2012
- Lückenlose Dokumentation aller Umbau- und Sanierungsmaßnahmen vorhanden
Die Wohnung befindet sich in einem ausgezeichneten Zustand, ohne Investitionsbedarf
Fazit
Diese Wohnung ist ein echtes Unikat:
Großzügig wie ein Haus, hochwertig saniert, mit Pool, Garage und bester Anbindung. Eine Immobilie für Menschen, die Raum, Qualität und Ruhe suchen – ohne auf Urbanität verzichten zu wollen.
Wir weisen darauf hin, dass zwischen dem Vermittler und dem zu vermittelnden Dritten ein familiäres oder wirtschaftliches Naheverhältnis besteht.
Der Vermittler ist als Doppelmakler tätig.
Infrastruktur / Entfernungen
Gesundheit
Arzt <250m
Apotheke <500m
Klinik <10.000m
Krankenhaus <8.750m
Kinder & Schulen
Schule <250m
Kindergarten <2.500m
Universität <8.500m
Höhere Schule <9.750m
Nahversorgung
Supermarkt <750m
Bäckerei <250m
Einkaufszentrum <5.500m
Sonstige
Geldautomat <250m
Bank <250m
Post <250m
Polizei <250m
Verkehr
Bus <250m
Straßenbahn <6.750m
Autobahnanschluss <3.750m
Bahnhof <4.250m
Flughafen <5.500m
Angaben Entfernung Luftlinie / Quelle: OpenStreetMap
Objektdaten
Ausstattung
- Gartennutzung
- Kabel/SAT-TV
- Swimmingpool
- Wintergarten
- Gäste-WC
- Bad mit Dusche
- Bad mit Badewanne
- Bad mit Fenster
- Einbauküche
- Fliesenboden
- Parkettboden
- Zentralheizung
- Fern Befeuerung
- Ausrichtung Balkon/Terrasse - West
- Ausrichtung Balkon/Terrasse - Südost
- Satteldach
- Massiv Bauweise
Zustand
- Zustand
- GEPFLEGT
- Baujahr
- 1900
- HWB
- 66 kWh/m² pro Jahr
- Klasse HWB
- C
- fGEE
- 1.36
- Klasse fGEE
- C
Flächen
- Anzahl der Zimmer
- 6
- Anzahl der Badezimmer
- 2
- Anzahl der sep. WCs
- 2
- Anzahl der Balkone
- 1
- Anzahl der Terrassen
- 2
- Wohnfläche
- 217m²
- Nutzfläche
- 264m²
- Kellerfläche
- 12m²
- Terrassenfläche
- 2m²
Kosten
- Kaufpreis Brutto
- € 679.000,00
- Betriebskosten
- € 350,00
- Heizkosten
- € 150,00
Verwaltung
- Verfügbar ab
- ab sofort
Häuser zum Kaufen im Umkreis von Hausmannstätten
Häuser zum Kaufen im Umkreis von Hausmannstätten
Häuser zum Kaufen in Österreich
Andere Besucher suchen nach...
- Grundstücke kaufen in 3400 Weidlingbach
- Wohnungen kaufen in 4663 Laakirchen
- Häuser in 7471 Rechnitz
- Wohnungen in 2410 Hainburg an der Donau
- Häuser kaufen in 2432 Schwadorf
- Wohnungen kaufen in 3002 Purkersdorf
- Häuser in 3150 Wilhelmsburg
- Wohnungen kaufen in 3470 Engelmannsbrunn
- Grundstücke kaufen im Bezirk Mattersburg
- Grundstücke kaufen im Bezirk Gmunden