Charmante Doppelhaushälfte mit hochwertiger Ausstattung!
Beschreibung
Willkommen in Ihrem neuen Zuhause – einer idyllischen Doppelhaushälfte in 8072 Fernitz-Mellach, die Wohnkomfort, moderne Ausstattung und naturnahes Lebensgefühl perfekt vereint.
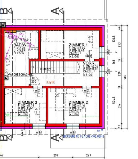
Diese liebevoll gepflegte Immobilie überzeugt mit 4 optimal geschnittenen Zimmer und bietet damit den idealen Lebensraum für Familien oder Paare mit Anspruch an Qualität und Komfort. Die durchdachte Raumaufteilung schafft eine helle, freundliche Wohnatmosphäre und lädt zum Wohlfühlen ein.
Ein besonderes Highlight ist der ausgebaute Dachboden, der zusätzlichen, vielseitig nutzbaren Raum bietet – ideal als Homeoffice, Hobbyraum oder Stauraum. Ergänzt wird dies durch einen praktischen Kellerersatzraum, der wertvollen zusätzlichen Platz schafft.
Der eingezäunte Garten mit Terrasse ist ein wahres...
Willkommen in Ihrem neuen Zuhause – einer idyllischen Doppelhaushälfte in 8072 Fernitz-Mellach, die Wohnkomfort, moderne Ausstattung und naturnahes Lebensgefühl perfekt vereint.
Diese liebevoll gepflegte Immobilie überzeugt mit 4 optimal geschnittenen Zimmer und bietet damit den idealen Lebensraum für Familien oder Paare mit Anspruch an Qualität und Komfort. Die durchdachte Raumaufteilung schafft eine helle, freundliche Wohnatmosphäre und lädt zum Wohlfühlen ein.
Ein besonderes Highlight ist der ausgebaute Dachboden, der zusätzlichen, vielseitig nutzbaren Raum bietet – ideal als Homeoffice, Hobbyraum oder Stauraum. Ergänzt wird dies durch einen praktischen Kellerersatzraum, der wertvollen zusätzlichen Platz schafft.
Der eingezäunte Garten mit Terrasse ist ein wahres Paradies für Groß und Klein. Genießen Sie sonnige Stunden im Freien, entspannte Grillabende mit Freunden oder einfach den beruhigenden Blick ins Grüne. Hier finden Kinder einen sicheren Platz zum Spielen und Erwachsene eine Oase der Erholung.
Auch die hochwertige Ausstattung lässt keine Wünsche offen:
Fußbodenheizung für behagliche Wärme
Edler Eichenparkett und hochwertige Fliesen
Moderne Einbauküche, funktional und stilvoll
Badezimmer mit Fenster und Badewanne – perfekt zum Entspannen
Zwei WCs für maximalen Alltagskomfort
Klimaanlage für angenehme Temperaturen an heißen Sommertagen
Wasser-Enthärtungsanlage für spürbar höhere Wasserqualität und Geräteschonung
Für Ihre Fahrzeuge stehen Ihnen drei Stellplätze zur Verfügung – ein klarer Mehrwert im täglichen Leben.
Die Lage überzeugt durch ihre ausgezeichnete Infrastruktur: Eine gute Busanbindung sorgt für schnelle Erreichbarkeit der umliegenden Orte, während Schule und Kindergarten in unmittelbarer Nähe besonders für Familien ideal sind.
📞 Vereinbaren Sie noch heute einen Besichtigungstermin und überzeugen Sie sich selbst von diesem besonderen Zuhause.
Ihr neues Lebenskapitel in Fernitz-Mellach wartet auf Sie!
Wir weisen darauf hin, dass zwischen dem Vermittler und dem zu vermittelnden Dritten ein familiäres oder wirtschaftliches Naheverhältnis besteht.
Der Vermittler ist als Doppelmakler tätig.
Infrastruktur / Entfernungen
Gesundheit
Arzt <3.500m
Apotheke <3.250m
Kinder & Schulen
Schule <1.000m
Kindergarten <1.000m
Nahversorgung
Supermarkt <3.250m
Bäckerei <4.500m
Sonstige
Geldautomat <3.250m
Bank <3.250m
Post <3.250m
Polizei <4.500m
Verkehr
Bus <500m
Autobahnanschluss <4.250m
Bahnhof <4.000m
Flughafen <8.500m
Angaben Entfernung Luftlinie / Quelle: OpenStreetMap
Objektdaten
Ausstattung
- Klimatisiert
- Gartennutzung
- Kabel/SAT-TV
- Rolladen
- Gäste-WC
- Bad mit Dusche
- Bad mit Badewanne
- Bad mit Fenster
- Einbauküche
- Fliesenboden
- Parkettboden
- Zentralheizung
- Fußbodenheizung
- Alternative Befeuerung
- Ausrichtung Balkon/Terrasse - Südwest
- Satteldach
- Massiv Bauweise
Zustand
- Zustand
- GEPFLEGT
- Baujahr
- 2019
- Alter
- NEUBAU
- HWB
- 33.8 kWh/m² pro Jahr
- Klasse HWB
- B
- fGEE
- 0.68
- Klasse fGEE
- A+
Flächen
- Anzahl der Zimmer
- 4
- Anzahl der Badezimmer
- 1
- Anzahl der sep. WCs
- 2
- Anzahl der Terrassen
- 1
- Stellplätze
- 3
- Wohnfläche
- 115m²
- Nutzfläche
- 135m²
- Gartenfläche
- 310m²
- Terrassenfläche
- 1m²
Kosten
- Kaufpreis Brutto
- € 499.000,00
- Betriebskosten
- € 165,71
- Heizkosten
- € 125,00
- Sonstige Kosten
- € 13,12
Verwaltung
- Verfügbar ab
- nach Vereinbarung
Häuser zum Kaufen im Umkreis von Fernitz-Mellach
Häuser zum Kaufen im Umkreis von Fernitz-Mellach
Häuser zum Kaufen in Österreich
Andere Besucher suchen nach...
- Grundstücke kaufen in 3400 Weidlingbach
- Wohnungen kaufen in 4663 Laakirchen
- Häuser in 7471 Rechnitz
- Wohnungen in 2410 Hainburg an der Donau
- Häuser kaufen in 2432 Schwadorf
- Wohnungen kaufen in 3002 Purkersdorf
- Häuser in 3150 Wilhelmsburg
- Wohnungen kaufen in 3470 Engelmannsbrunn
- Grundstücke kaufen im Bezirk Mattersburg
- Grundstücke kaufen im Bezirk Gmunden