Stadtvilla mit parkartigen Garten - 1953m² Grundstücksfläche - direkt am Bisamberg - privat Zugang zum Wald - Grünblick - Ruhelage
-
Erstbezug
Beschreibung
Dieses innovative Einfamilienhaus wird in der Villengegend „MyWay“ von Hagenbrunn errichtet. Es besticht durch seine moderne Architektur und die nachhaltige Bauweise. Ihnen ist hier höchste Lebensqualität garantiert, so schauen Sie aus einer absoluten Ruhelage ins sonnige Tal. Auf der Rückseite des Einfamilienhauses ist der parkartigen Gartenmit einer Gesamtgröße von ca. 1200m² und direkten Zugang zum Wald.
Kurzinfo Ausführung und Ausstattung
- 5-Zimmer mit Garten und Terrassen
- Ziegelmassiv
- Vollwärmeschutzfassade
- hochwertige Fenster mit 3-Schichtverglasung und Aussenjalousien
- Wärmeluftpumpe
- Fußbodenheizung
- Swimmingpool
- Gargenstellplatz
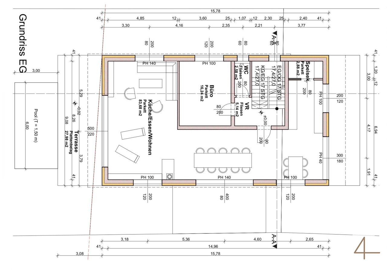
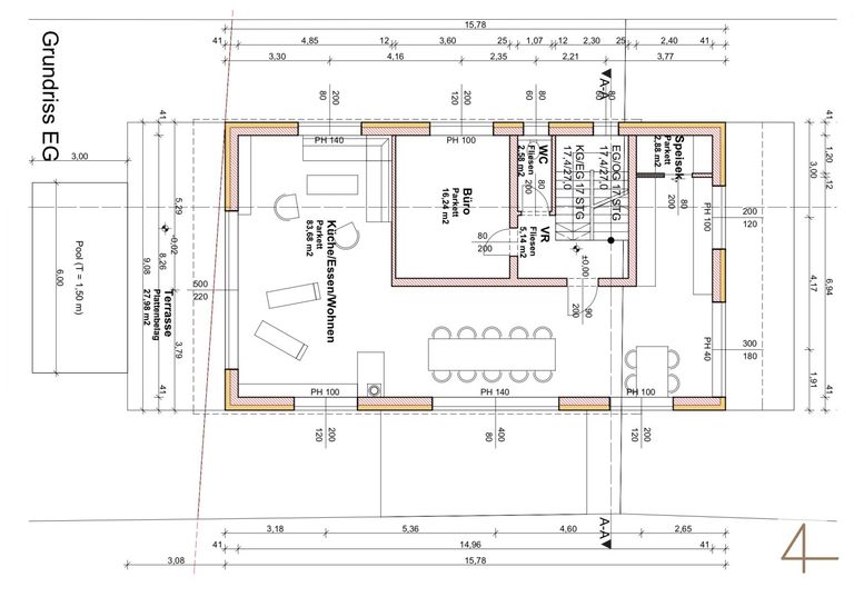
Raumaufteilung
- Vorzimmer 13,90m2
- Wohnküche 83,68m2
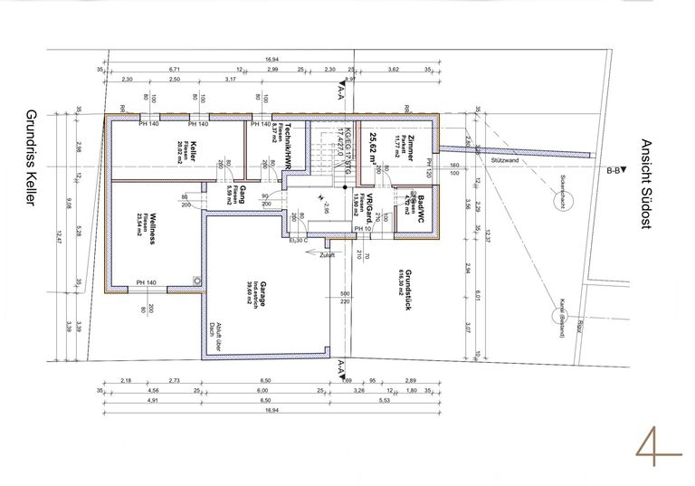
- Zimmer 11,77m2
- Bad/WC 4,12m2
- 1. Zimmer 18,85m2
- 2. Zimmer 18,18m2
- 3. Zimmer...
Dieses innovative Einfamilienhaus wird in der Villengegend „MyWay“ von Hagenbrunn errichtet. Es besticht durch seine moderne Architektur und die nachhaltige Bauweise. Ihnen ist hier höchste Lebensqualität garantiert, so schauen Sie aus einer absoluten Ruhelage ins sonnige Tal. Auf der Rückseite des Einfamilienhauses ist der parkartigen Gartenmit einer Gesamtgröße von ca. 1200m² und direkten Zugang zum Wald.
Kurzinfo Ausführung und Ausstattung
- 5-Zimmer mit Garten und Terrassen
- Ziegelmassiv
- Vollwärmeschutzfassade
- hochwertige Fenster mit 3-Schichtverglasung und Aussenjalousien
- Wärmeluftpumpe
- Fußbodenheizung
- Swimmingpool
- Gargenstellplatz
Raumaufteilung
- Vorzimmer 13,90m2
- Wohnküche 83,68m2
- Zimmer 11,77m2
- Bad/WC 4,12m2
- 1. Zimmer 18,85m2
- 2. Zimmer 18,18m2
- 3. Zimmer 17,95m2
- 1. Badezimmer 7,89m2
- 2. Badezimmer 6,70m2
- Balkon 17,55m2
- Gartenterrasse 27,98m2
- Garten 1.200m2
- Wellness 23,54m2
- Keller 20,02m2
Öffentliche Verkehrsmittel
900m zum Autobus 853 - "Hagenbrunn Abzweig Veiglbergsiedlung"
Die Lage besticht durch die Nahe zum Naturerholungsgebiet Bisamberg, ebenso erreichen Sie in wenigen Autominuten alle Nahversorger sowie Billa, Spar und Co.
Gerne steht Ihnen Herr Michael Hellebrand für weitere Fragen bzw. flexibel gestaltbare Besichtigungstermine unter 0664 75346995 zur Verfügung.
www.4immobilien.at
Wir weisen ausdrücklich auf unser wirtschaftliches Naheverhältnis mit dem Abgeber/der Abgeberin und auf unsere Vermittlungstätigkeit als Doppelmakler hin.
Irrtum und Änderungen vorbehalten!
Wir weisen darauf hin, dass zwischen dem Vermittler und dem zu vermittelnden Dritten ein familiäres oder wirtschaftliches Naheverhältnis besteht.
Der Vermittler ist als Doppelmakler tätig.
Objektdaten
Ausstattung
- Gartennutzung
- Swimmingpool
- Bad mit Dusche
- Bad mit Badewanne
- Bad mit Fenster
- Offene Küche
- Fußbodenheizung
- Luftwärmepumpe
- Ausrichtung Balkon/Terrasse - Süd
- Flachdach
- Massiv Bauweise
Zustand
- Zustand
- ERSTBEZUG
- Alter
- NEUBAU
- HWB
- 31.4 kWh/m² pro Jahr
- Klasse HWB
- B
- fGEE
- 0.67
- Klasse fGEE
- C
Flächen
- Anzahl der Zimmer
- 5
- Anzahl der Badezimmer
- 3
- Anzahl der sep. WCs
- 4
- Anzahl der Balkone
- 1
- Anzahl der Terrassen
- 1
- Wohnfläche
- 219m²
- Grundstücksfläche
- 1.953m²
- Gartenfläche
- 1.200m²
- Terrassenfläche
- 1m²
Kosten
- Kaufpreis Brutto
- € 2.780.000,00
Häuser zum Kaufen im Umkreis von Hagenbrunn
- Bezirk Gemeindebezirk Floridsdorf
- Bezirk Gemeindebezirk Floridsdorf
- Bezirk Gemeindebezirk Floridsdorf
- Bezirk Gemeindebezirk Döbling
- Bezirk Gemeindebezirk Döbling
- Bezirk Gemeindebezirk Döbling
- Bezirk Gemeindebezirk Währing
- Bezirk Gemeindebezirk Währing
- Bezirk Gemeindebezirk Währing
- Bezirk Gemeindebezirk Hernals
Häuser zum Kaufen im Umkreis von Hagenbrunn
Häuser zum Kaufen in Österreich
Andere Besucher suchen nach...
- Grundstücke kaufen in 3400 Weidlingbach
- Wohnungen kaufen in 4663 Laakirchen
- Häuser in 7471 Rechnitz
- Wohnungen in 2410 Hainburg an der Donau
- Häuser kaufen in 2432 Schwadorf
- Wohnungen kaufen in 3002 Purkersdorf
- Häuser in 3150 Wilhelmsburg
- Wohnungen kaufen in 3470 Engelmannsbrunn
- Grundstücke kaufen im Bezirk Mattersburg
- Grundstücke kaufen im Bezirk Gmunden