Holzblockhaus mit gemütlichem Kachelofen und herrlichem Bergpanorama!
Beschreibung
Lagebeschreibung
Dieses wunderschöne Holzblockhaus befindet sich in der malerischen Gemeinde Niederöblarn, in einer sonnigen und ruhigen Lage, die ein Höchstmaß an Natur und Erholung bietet. Umgeben von der beeindruckenden Bergwelt, eröffnet sich Ihnen hier ein Lebensraum, der Naturverbundenheit und Komfort in perfekter Harmonie vereint.
Objektbeschreibung
Das im Jahr 2018 erbaute Holzblockhaus präsentiert sich in einem ansprechenden Design! Mit einer großzügigen nord-ost-westseitigen Terrasse und einem überdachten Balkon genießen Sie einen atemberaubenden Weitblick auf den Grimming und die umliegenden Berge.
Stellplatz
Ein Doppelcarport bietet ausreichend Platz für Ihre Fahrzeuge und schützt diese vor Witterungseinflüssen.
Innenausstattung
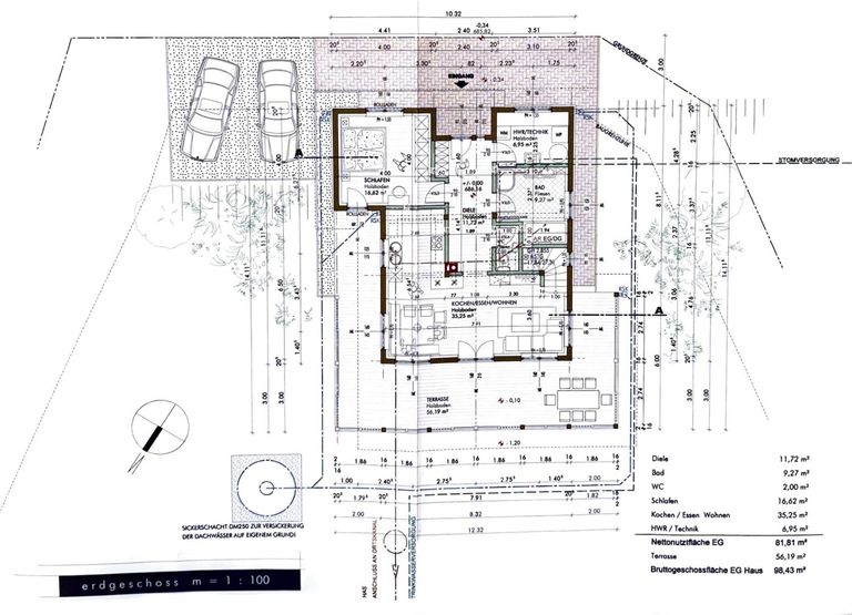
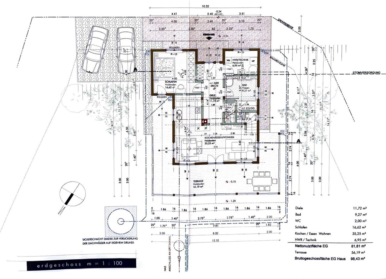
Erdgeschoss
- Windfang: Der geschützte...
Lagebeschreibung
Dieses wunderschöne Holzblockhaus befindet sich in der malerischen Gemeinde Niederöblarn, in einer sonnigen und ruhigen Lage, die ein Höchstmaß an Natur und Erholung bietet. Umgeben von der beeindruckenden Bergwelt, eröffnet sich Ihnen hier ein Lebensraum, der Naturverbundenheit und Komfort in perfekter Harmonie vereint.
Objektbeschreibung
Das im Jahr 2018 erbaute Holzblockhaus präsentiert sich in einem ansprechenden Design! Mit einer großzügigen nord-ost-westseitigen Terrasse und einem überdachten Balkon genießen Sie einen atemberaubenden Weitblick auf den Grimming und die umliegenden Berge.
Stellplatz
Ein Doppelcarport bietet ausreichend Platz für Ihre Fahrzeuge und schützt diese vor Witterungseinflüssen.
Innenausstattung
Erdgeschoss
- Windfang: Der geschützte Eingangsbereich, der Sie freundlich in Ihr neues Zuhause einführt.
- Diele: Geräumig und hell, sie verbindet die verschiedenen Bereiche des Erdgeschosses.
- Hauswirtschaftsraum: Praktisch für die Unterbringung von Geräten und Materialien.
- Badezimmer: Ausgestattet mit Dusche, Badewanne und einem Fenster für Tageslicht.
- WC: Separates WC für zusätzlichen Komfort.
- Schlafzimmer: Ruhiger Rückzugsort für erholsame Nächte mit Zugang zur Terrasse.
- Wohn-Ess-Küchenbereich (ca. 35 m²): Herzstück des Hauses, ausgestattet mit einem gemütlichen Kachelofen, der für wohlige Wärme sorgt, sowie einem Tischherd, der zum Kochen, Backen und Heizen verwendet wird und zusätzlich zur Gemütlichkeit beiträgt. Die offene Gestaltung schafft einen geselligen Raum für Familie und Freunde und ermöglicht den direkten Zugang zur Terrasse.
- Terrasse (ca. 56 m²): Diese großzügige Fläche bietet den perfekten Ort für entspannte Stunden im Freien und beeindruckende Ausblicke, die den Alltag vergessen lassen.
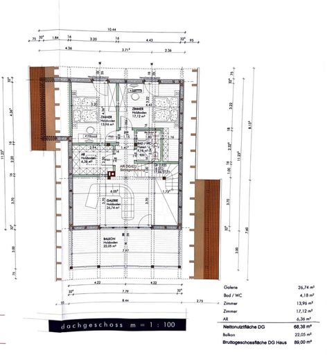
Obergeschoss
- Zimmer 1 und 2: Zwei weitere Zimmer, die vielseitig genutzt werden können – sei es als Schlafzimmer, Büro oder Gästezimmer.
- Abstellraum: Praktische Möglichkeit zur Unterbringung von Stauraum.
- Badezimmer mit Dusche und WC: Zweites Badezimmer mit Dusche und WC, das den Komfort eines modernen Wohnens unterstreicht.
- Galerie (ca. 27 m²): Offener Raum mit Zugang zum überdachten Balkon, der einen spektakulären Blick auf die umliegende Natur bietet.
Technische Ausstattung
- Energieversorgung: Eine Photovoltaikanlage mit 5,2 kWp in Kombination mit einem 15 kW Speicher sorgt für nachhaltige Energieversorgung.
- Warmwasser: Die Erwärmung des Wassers erfolgt über Erdwärme mit Flächenkollektoren, was zu einer umweltfreundlichen und effizienten Nutzung beiträgt.
Nutzungsmöglichkeiten
Die Immobilie ist zweitwohnsitzfähig, was sie sowohl für dauerhaften Wohnsitz als auch als Feriendomizil attraktiv macht.
Lage
- Für Wintersportbegeisterte, Wanderliebhaber, Mountainbiker, Golfer und Bergsteiger ist dieses Wohnhaus ein wahres Paradies. Die renommierten Skigebiete Hauser Kaibling, Familienskigebiet Galsterberg, die Dachstein-Tauern Region, Schladming, Planneralm, Riesneralm und die Tauplitz sind schnell erreichbar und bieten Ihnen erstklassige Pistenverhältnisse. Auch die nahegelegenen Skigebiete in Oberösterreich, wie Hinterstoder und Wurzeralm, laden zu unvergesslichen Skiabenteuern ein.
- Für Adrenalinjunkies bietet die Zipline - die größte Zipline in den Alpen - am Stoderzinken, ein unvergessliches Erlebnis mit atemberaubendem Blick über die Landschaft. Darüber hinaus bietet die Region zahlreiche Wanderwege, sowie verschiedene Touren für alle Schwierigkeitsgrade.
- Im Sommer laden die umliegenden Wander- und Klettergebiete zum Erkunden ein. Zudem laden der Golfclub Schladming-Dachstein, der Golf- und Landklub Ennstal in Weißenbach bei Liezen sowie der Golf- und Countryclub Schloss Pichlarn im nahen Irdning, zu sportlicher Betätigung und Erholung ein.
- Und für entspannende Ausflüge erreichen Sie das wunderschöne Salzkammergut mit seinen glitzernden Seen in ca. 35 Autominuten.
Weitere Ausflugsziele sind beispielsweise die Gesäuse Region, ein Paradies für Naturliebhaber. Hier erwarten Sie atemberaubende Landschaften des Nationalparks Gesäuse und das Stift Admont mit der größten Klosterbibliothek der Welt. - Kultur und Veranstaltungen: Öblarn ist auch bekannt für lokale Feste und kulturelle Veranstaltungen, die das Gemeinschaftsleben bereichern
Fazit
Dieses Holzblockhaus in Niederöblarn bietet einen idealen Rückzugsort inmitten der Natur. Die großzügige Terrasse und der Balkon, der Kachelofen und die durchdachte Raumaufteilung machen dieses Haus zu einem perfekten Zuhause für Familien oder als Feriendomizil. Nutzen Sie die Gelegenheit, in eine Immobilie zu investieren, die sowohl Komfort als auch Lebensqualität bietet. Vereinbaren Sie heute noch einen Besichtigungstermin, um Ihr neues Zuhause zu entdecken!
Der Vermittler ist als Doppelmakler tätig.
Infrastruktur / Entfernungen
Gesundheit
Arzt <3.000m
Apotheke <9.500m
Kinder & Schulen
Schule <2.500m
Kindergarten <3.000m
Nahversorgung
Supermarkt <3.000m
Bäckerei <3.000m
Sonstige
Bank <3.000m
Geldautomat <3.000m
Polizei <8.000m
Post <7.500m
Verkehr
Bus <500m
Bahnhof <1.000m
Flughafen <1.000m
Angaben Entfernung Luftlinie / Quelle: OpenStreetMap
Objektdaten
Ausstattung
- Kamin
- Bad mit Dusche
- Bad mit Badewanne
- Bad mit Fenster
- Offene Küche
- Befeuerung mit Holz
- Ausrichtung Balkon/Terrasse - Nordwest
- Holz Bauweise
Zustand
- Baujahr
- 2018
- Alter
- NEUBAU
- HWB
- 58 kWh/m² pro Jahr
- Klasse HWB
- C
- fGEE
- 0.69
- Klasse fGEE
- A+
Flächen
- Anzahl der Zimmer
- 4
- Anzahl der Badezimmer
- 2
- Anzahl der sep. WCs
- 2
- Anzahl der Balkone
- 1
- Anzahl der Terrassen
- 1
- Stellplätze
- 4
- Wohnfläche
- 148m²
- Grundstücksfläche
- 862m²
- Terrassenfläche
- 1m²
Kosten
Verwaltung
- Verfügbar ab
- Nach Vereinbarung
- Ferienimmobilie
- Ja
Häuser zum Kaufen im Umkreis von Öblarn
Häuser zum Kaufen in Österreich
Andere Besucher suchen nach...
- Immobilien kaufen in 2601 Sollenau
- Immobilien in 4951 Polling im Innkreis, Oberösterreich
- Immobilien in 4742 Pram, Oberösterreich kaufen oder mieten
- Häuser kaufen in 2340 Mödling, Niederösterreich
- Häuser kaufen in 9421 Gemmersdorf, Kärnten
- Wohnungen / Eigentumswohnungen kaufen in 9431 St. Stefan, Kärnten
- Häuser kaufen in Bruck an der Leitha, Niederösterreich
- Immobilien mieten in Krems an der Donau, Niederösterreich
- Häuser zum Kaufen im Bezirk St. Pölten Land, Niederösterreich
- Büro / Praxen mieten in Rohrbach, Oberösterreich