KÄUFERPROVISIONSFREI - Wolkersdorf - TOP Reihenhaus 6 mit herrlichem Garten - klimaaktiv GOLD-Haus
-
Erstbezug
-
2023
Beschreibung
Dieses Reihenhaus mit einer Wohnfläche von rund 126 m² bietet ein behagliches Zuhause. Die Immobilie wurde im Jahr 2021 bis 2023 mit einem durchdachten Grundriss errichtet und zeichnet sich durch eine nachhaltige Bauweise aus. Durch seine Zertifizierung als klimaaktiv GOLD-Haus und den Einsatz hochwertiger Materialien ist es eine langfristige Investition.
Highlights:
- Reihenhaus Neubau Erstbezug
- Wohnfläche von 126 m²
- Fußbodenheizung mit Parkettboden
- Effiziente Heizung mittels Vaillant Luft-Wärmepumpe und kontrollierter Wohnraumlüftung mit Wärmerückgewinnung von Marke Wernig
- Photovoltaik-Anlage mit einer Peakleistung von 2,4 kWh am Dach
- Großzügige Terrasse von etwa 37 m² mit überdachtem Bereich
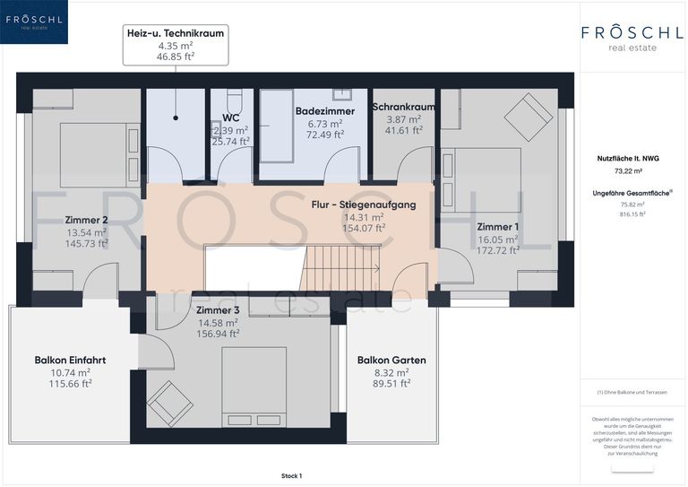
- Zusätzlich 17 m² Balkonfläche im 1. Obergeschoss ...
Dieses Reihenhaus mit einer Wohnfläche von rund 126 m² bietet ein behagliches Zuhause. Die Immobilie wurde im Jahr 2021 bis 2023 mit einem durchdachten Grundriss errichtet und zeichnet sich durch eine nachhaltige Bauweise aus. Durch seine Zertifizierung als klimaaktiv GOLD-Haus und den Einsatz hochwertiger Materialien ist es eine langfristige Investition.
Highlights:
- Reihenhaus Neubau Erstbezug
- Wohnfläche von 126 m²
- Fußbodenheizung mit Parkettboden
- Effiziente Heizung mittels Vaillant Luft-Wärmepumpe und kontrollierter Wohnraumlüftung mit Wärmerückgewinnung von Marke Wernig
- Photovoltaik-Anlage mit einer Peakleistung von 2,4 kWh am Dach
- Großzügige Terrasse von etwa 37 m² mit überdachtem Bereich
- Zusätzlich 17 m² Balkonfläche im 1. Obergeschoss
- Bebautes und unbebautes Grundstück von ca. 250 m²
- Integrierte Abstellfläche im Außenbereich
- Wohnungseigentümergemeinschaft mit Hausverwaltung
Besondere Merkmale:
- Geräumige Terrasse und Balkon für erholsame Stunden im Freien
- Nachhaltige Energieversorgung durch Wärmepumpe und Photovoltaik-Anlage
- Fußbodenheizung und kontrollierte Wohnraumlüftung für angenehmes Raumklima
- Bodentiefe Fenster für ausreichend Tageslicht
- Gerätehaus für zusätzlichen Stauraum, z. B. für Fahrräder
- Verkaufspreis Abstellplatz Top 6 - € 15.000,- - verpflichtend
Das Erdgeschoss betreten Sie stufenlos über einen großzügigen Vorplatz mit zwei Stellplätzen, davon einer überdacht. Der einladende Vorraum führt Sie zur großzügigen Wohnküche mit Blick in den Garten. Bodentiefe Fenster im Wohn-/Essbereich lassen viel Tageslicht herein und schaffen eine behagliche Atmosphäre. Eine geräumige Terrasse, teilweise überdacht, bietet Raum für Entspannung im Freien.
Im Erdgeschoss befindet sich auch ein vielseitig nutzbarer Mehrzweckraum mit Blick in den Vorgarten, der sich ideal als Home-Office oder zusätzliches Schlafzimmer eignet. Ein separates WC mit Waschtisch ist zentral gelegen.
Über eine gerade verlaufende Treppe gelangen Sie ins Obergeschoss. Hier finden Sie das Badezimmer mit Badewanne sowie die Schlafzimmer, von denen eines direkten Zugang zu einem Balkon bietet. Elektrisch gesteuerte Außenraffstores sorgen für Komfort im Sommer. Ein zusätzlicher Schrankraum und ein Technikraum im Obergeschoss bieten praktischen Stauraum.
Die gesamte Immobilie besticht durch hochwertige Ausstattungsdetails wie Feinsteinzeug-Fliesen in den Vorräumen und Echtholz-Parkett in Wohnküche und Zimmern. Die Internetverbindung am Standort ermöglicht Downloadgeschwindigkeiten von bis zu 250 Mbit/s und Uploadgeschwindigkeiten von bis zu 100 Mbit/s über den Anbieter A1. Das Reihenhaus verfügt über einen eigenen Kanal- und Stromanschluss.
Ergreifen Sie die Gelegenheit und werden Sie Eigentümer dieses nachhaltigen Reihenhaus.
Vereinbaren Sie noch heute einen Besichtigungstermin und lassen Sie sich von dieser tollen Immobilie überzeugen! Wir freuen uns darauf, Sie persönlich zu begrüßen. Bei weiteren Fragen stehe ich Ihnen jederzeit zur Verfügung unter: +43 664 1838 268 oder senden Sie mir eine E-Mail: christian@froeschl.estate
Besuchen Sie www.froeschl.estate und finden Sie weitere 360º Virtuelle Rundgänge und die neusten Objekte! Gerne unternehmen wir auch gemeinsam mit Ihnen geführte Virtuelle Besichtigungen!
Sie möchten den Wert einer Immobilie wissen? Bewertungen Professionell und präzise
FRÖSCHL real estate ermittelt den Verkehrswert Ihrer Liegenschaft. Das schriftliche Bewertungsgutachten ist ein umfangreiches Dokument aus dem dieser hervorgeht. Wir ermitteln abhängig von Ihrem Objekt über den Vergleichswert, den Sachwert oder den Ertragswert, unter Beachtung aller relevanten Unterlagen, den aktuellen Marktwert ihrer Immobilie. Gerne übernehmen wir Bewertungen auch aus anderen Anlässen wie innerfamiliären Angelegenheiten, Erbschaften oder steuerlichen Anforderungen und dergleichen.
Nebenkosten beim Erwerb dieser Immobilie:
3,50 % Grunderwerbsteuer
1,10 % Grundbucheintragungsgebühr - Vorbehaltlich Temporärer Entfall der Grundbuchseintragungsgebühren lt. den gesetzlichen Bedingungen
Vertragserrichtungskosten/Treuhändische Abwicklung (Notar oder Rechtsanwalt) Kosten Unterschriftenbeglaubigung und Barauslagen Kaufvertrag
3,00 % zzgl. 20,00 % USt. (ges. 3,60 %) Honorar für die erfolgreiche Vermittlung
Unsere Angaben beziehen sich auf die Auskünfte des Eigentümers, daher Änderungen und Irrtümer vorbehalten.
Wir weisen darauf hin, dass zwischen dem Vermittler und dem zu vermittelnden Dritten ein familiäres oder wirtschaftliches Naheverhältnis besteht.
Infrastruktur / Entfernungen
Gesundheit
Arzt <1.000m
Klinik <1.000m
Apotheke <1.000m
Kinder & Schulen
Kindergarten <1.000m
Schule <1.000m
Nahversorgung
Supermarkt <1.000m
Bäckerei <1.000m
Einkaufszentrum <7.000m
Sonstige
Bank <1.000m
Geldautomat <1.000m
Post <1.000m
Polizei <2.000m
Verkehr
Bus <500m
Autobahnanschluss <1.500m
Bahnhof <1.500m
Angaben Entfernung Luftlinie / Quelle: OpenStreetMap
Objektdaten
Ausstattung
- WG geeignet
- Gartennutzung
- Kabel/SAT-TV
- Fahrradraum
- Gäste-WC
- Bad mit Badewanne
- Fliesenboden
- Parkettboden
- Fußbodenheizung
- Solar
- Luftwärmepumpe
- Ausrichtung Balkon/Terrasse - Nordost
- Ausrichtung Balkon/Terrasse - Südwest
- Flachdach
- Massiv Bauweise
- Niedrigenergie
- Neubaustandard
Dokumente / Links
Zustand
- Zustand
- ERSTBEZUG
- Baujahr
- 2023
- Alter
- NEUBAU
- HWB
- 34 kWh/m² pro Jahr
- Klasse HWB
- B
- fGEE
- 0.41
- Klasse fGEE
- A++
Flächen
- Anzahl der Zimmer
- 5.5
- Anzahl der Badezimmer
- 1
- Anzahl der sep. WCs
- 2
- Anzahl der Balkone
- 2
- Anzahl der Terrassen
- 1
- Stellplätze
- 2
- Nutzfläche
- 126m²
- Lagerfläche
- 10m²
- Grundstücksfläche
- 250m²
- Gartenfläche
- 125m²
- Terrassenfläche
- 1m²
Kosten
- Kaufpreis Brutto
- € 599.000,00
Verwaltung
- Verfügbar ab
- nach Vereinbarung
Häuser zum Kaufen im Umkreis von Wolkersdorf im Weinviertel
Häuser zum Kaufen im Umkreis von Wolkersdorf im Weinviertel
Häuser zum Kaufen in Österreich
Andere Besucher suchen nach...
- Grundstücke kaufen in 3400 Weidlingbach
- Wohnungen kaufen in 4663 Laakirchen
- Häuser in 7471 Rechnitz
- Wohnungen in 2410 Hainburg an der Donau
- Häuser kaufen in 2432 Schwadorf
- Wohnungen kaufen in 3002 Purkersdorf
- Häuser in 3150 Wilhelmsburg
- Wohnungen kaufen in 3470 Engelmannsbrunn
- Grundstücke kaufen im Bezirk Mattersburg
- Grundstücke kaufen im Bezirk Gmunden