Doppelhaushälfte am Wasser in Gumpoldskirchen
€ 700.000
€ 6.250 / m²
2352 Gumpoldskirchen
Beschreibung
Dieses Angebot ist für eine Doppelhaushälfte die noch zu errichten ist! Sie kaufen das Grundstück und beauftragen den Generalunternehmer Ihres Vertrauens. Der angegebene Preis basiert auf einer Kalkulation eines Unternehmens mit dem der Eigentümer bereits positive Erfahrungen hat. Bauweise: ziegelmassiv, optional Holzfassade (burnt wood), Satteldach (Eternit), Fenster KU/Alu (Actual) 3fach Verglasung, nicht unterkellert Wärmeverteilung: Fussbodenheizung, optional Deckenkühlung Stellplatz: drei Stellplätze am Eigengrund vorgesehen Liegenschaft: Haus 1 - 374 m2 | Haus 2 - 406 m2 Energie: Primärversorgung Wärmepumpe mittels gem. Erdsonde, Wohnraumlüftung mit Wärmerückgewinnung, Kachelofen vorbereitet, Photovoltaik vorbereitet Für weitere Informationen oder zur Vereinbarung eines Besichtigungstermins stehen wir Ihnen gerne...
Dieses Angebot ist für eine Doppelhaushälfte die noch zu errichten ist!
Sie kaufen das Grundstück und beauftragen den Generalunternehmer Ihres Vertrauens. Der angegebene Preis basiert auf einer Kalkulation eines Unternehmens mit dem der Eigentümer bereits positive Erfahrungen hat.
Bauweise: ziegelmassiv, optional Holzfassade (burnt wood),
Satteldach (Eternit), Fenster KU/Alu (Actual) 3fach Verglasung,
nicht unterkellert
Wärmeverteilung: Fussbodenheizung, optional Deckenkühlung
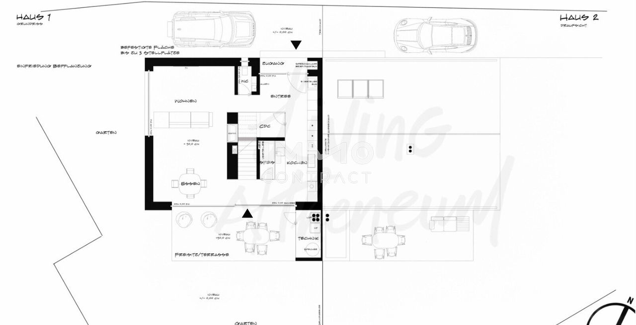
Stellplatz: drei Stellplätze am Eigengrund vorgesehen
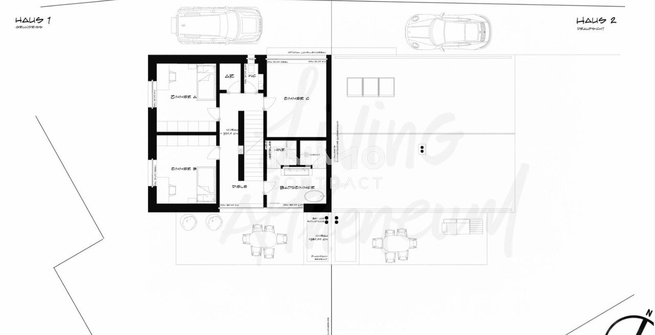
Liegenschaft: Haus 1 - 374 m2 | Haus 2 - 406 m2
Energie: Primärversorgung Wärmepumpe mittels gem.
Erdsonde, Wohnraumlüftung mit Wärmerückgewinnung,
Kachelofen vorbereitet, Photovoltaik vorbereitet
Für weitere Informationen oder zur Vereinbarung eines Besichtigungstermins stehen wir Ihnen gerne zur Verfügung.
Kontakt: Martin MELCHER 0677 617 324 39
Erfüllen Sie sich den Traum von einem Leben inmitten der Weinberge – wir freuen uns auf Ihre Anfrage!
Sie kaufen das Grundstück und beauftragen den Generalunternehmer Ihres Vertrauens. Der angegebene Preis basiert auf einer Kalkulation eines Unternehmens mit dem der Eigentümer bereits positive Erfahrungen hat.
Bauweise: ziegelmassiv, optional Holzfassade (burnt wood),
Satteldach (Eternit), Fenster KU/Alu (Actual) 3fach Verglasung,
nicht unterkellert
Wärmeverteilung: Fussbodenheizung, optional Deckenkühlung
Stellplatz: drei Stellplätze am Eigengrund vorgesehen
Liegenschaft: Haus 1 - 374 m2 | Haus 2 - 406 m2
Energie: Primärversorgung Wärmepumpe mittels gem.
Erdsonde, Wohnraumlüftung mit Wärmerückgewinnung,
Kachelofen vorbereitet, Photovoltaik vorbereitet
Für weitere Informationen oder zur Vereinbarung eines Besichtigungstermins stehen wir Ihnen gerne zur Verfügung.
Kontakt: Martin MELCHER 0677 617 324 39
Erfüllen Sie sich den Traum von einem Leben inmitten der Weinberge – wir freuen uns auf Ihre Anfrage!
Infrastruktur / Entfernungen
Gesundheit
Arzt <1.000m
Apotheke <2.000m
Klinik <2.000m
Krankenhaus <5.500m
Kinder & Schulen
Schule <1.500m
Kindergarten <1.000m
Höhere Schule <4.000m
Nahversorgung
Supermarkt <1.000m
Bäckerei <1.500m
Einkaufszentrum <2.000m
Sonstige
Bank <1.500m
Geldautomat <1.500m
Polizei <500m
Post <1.500m
Verkehr
Bus <500m
Autobahnanschluss <3.500m
Bahnhof <1.000m
Straßenbahn <1.500m
Flughafen <9.000m
Angaben Entfernung Luftlinie / Quelle: OpenStreetMap
Objektdaten
Ausstattung
- Fußbodenheizung
Flächen
- Anzahl der Zimmer
- 4
- Anzahl der Badezimmer
- 1
- Anzahl der sep. WCs
- 2
- Wohnfläche
- 112m²
- Grundstücksfläche
- 374m²
Kosten
- Kaufpreis Brutto
- € 700.000,00
Verwaltung
- Verfügbar ab
- Nach Vereinbarung
Häuser zum Kaufen im Umkreis von Gumpoldskirchen
Häuser zum Kaufen im Umkreis von Gumpoldskirchen
Häuser zum Kaufen in Österreich
Andere Besucher suchen nach...
- Grundstücke kaufen in 3400 Weidlingbach
- Wohnungen kaufen in 4663 Laakirchen
- Häuser in 7471 Rechnitz
- Wohnungen in 2410 Hainburg an der Donau
- Häuser kaufen in 2432 Schwadorf
- Wohnungen kaufen in 3002 Purkersdorf
- Häuser in 3150 Wilhelmsburg
- Wohnungen kaufen in 3470 Engelmannsbrunn
- Grundstücke kaufen im Bezirk Mattersburg
- Grundstücke kaufen im Bezirk Gmunden