Knittelfeld: Historische Stadtvilla mit Seltenheitswert – Repräsentatives Wohnen & Arbeiten im Stil der Jahrhundertwende
Beschreibung
Diese außergewöhnliche Stadtvilla aus dem Jahr 1901 zählt zu den architektonischen Highlights im Zentrum von Knittelfeld. Mit ihrer eindrucksvollen Fassade, dem stilprägenden Dachgiebel, der gegliederten Fensterstruktur und den liebevoll erhaltenen Details verkörpert sie den eleganten Stil der Jahrhundertwende – eine Epoche, in der Ästhetik, Raumgefühl und Handwerkskunst auf höchstem Niveau zusammentrafen.
Solche Gebäude mit dieser Substanz, dieser Größe und dieser Lage sind heute eine absolute Rarität. Ob als repräsentativer Firmen- und Wohnsitz, Praxiskanzlei mit Stil, Zuhause für eine große Familie oder als Mehrgenerationenhaus – hier eröffnen sich vielfältige Nutzungsmöglichkeiten mit historischem Flair und zeitgemäßer Ausstattung.
Stil & Substanz – harmonisch...
Diese außergewöhnliche Stadtvilla aus dem Jahr 1901 zählt zu den architektonischen Highlights im Zentrum von Knittelfeld. Mit ihrer eindrucksvollen Fassade, dem stilprägenden Dachgiebel, der gegliederten Fensterstruktur und den liebevoll erhaltenen Details verkörpert sie den eleganten Stil der Jahrhundertwende – eine Epoche, in der Ästhetik, Raumgefühl und Handwerkskunst auf höchstem Niveau zusammentrafen.
Solche Gebäude mit dieser Substanz, dieser Größe und dieser Lage sind heute eine absolute Rarität. Ob als repräsentativer Firmen- und Wohnsitz, Praxiskanzlei mit Stil, Zuhause für eine große Familie oder als Mehrgenerationenhaus – hier eröffnen sich vielfältige Nutzungsmöglichkeiten mit historischem Flair und zeitgemäßer Ausstattung.
Stil & Substanz – harmonisch vereint
Die Villa wurde von den jetzigen Eigentümern im Jahr 1988 übernommen und umfangreich saniert. Dabei wurden unter anderem folgende Maßnahmen gesetzt:
- Neueindeckung des Dachs
- Erneuerung der Sanitär-Installationen und Ausstattung
- Erneuerung der Heizungsverrohrung und Technik
- Neuinstallation der Elektroverkabelung inklusive Verteiler
- Austausch von zahlreichen Fenstern
- Teilweise neue Bodenbeläge und Verfliesungen
Dank dieser Investitionen wurde der Charakter des Hauses erhalten und gleichzeitig der technische Standard auf zeitgemäßes Niveau gebracht – eine ideale Verbindung von Tradition und Moderne.
Großzügigkeit in allen Ebenen – ca. 465 m² Nutzfläche
Die Immobilie bietet auf vier Etagen ausreichend Platz für unterschiedlichste Lebenskonzepte:
Kellergeschoss (ca. 102 m²): Lager-, Technik- und Nebenräume mit guter Belichtung und Funktionalität
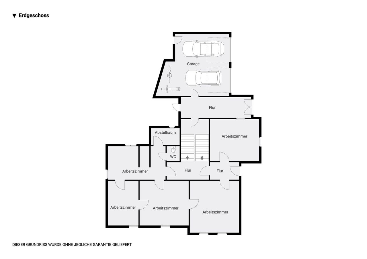
Erdgeschoss (ca. 120 m²): Jahrzehntelang als Arztpraxis genutzt – ideal für Ordination, Kanzlei oder Büronutzung. Eigener Zugang, Empfang, Wartezimmer, mehrere Behandlungsräume
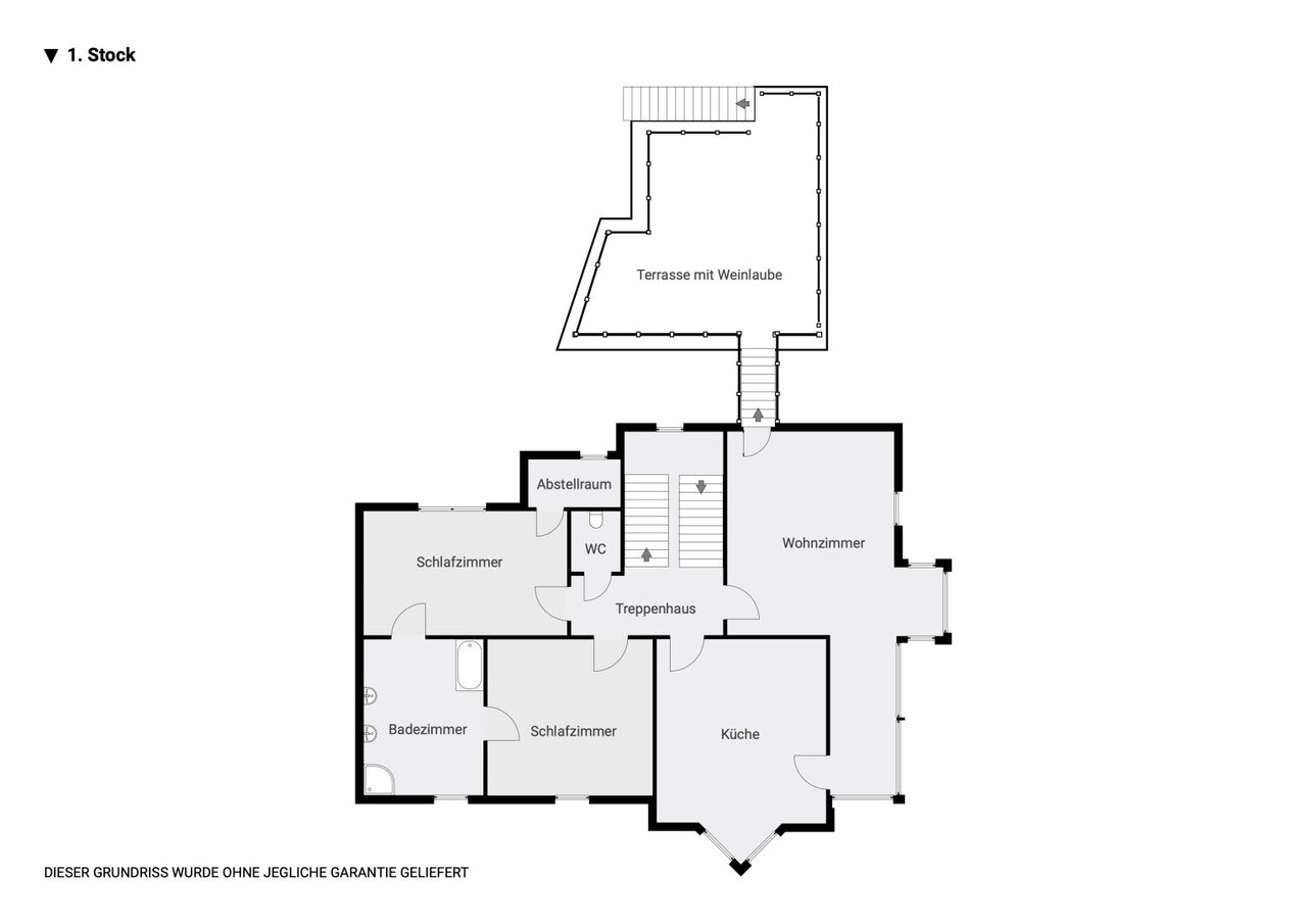
Obergeschoss (ca. 143 m²): Wohnbereich mit großzügigem Wohnzimmer, Küche, Essbereich, 2 Schlafzimmer, Bad mit Wanne und Dusche, WC und Zugang zur Terrasse
Dachgeschoss (ca. 100 m²): Ausgebauter, heller Wohnbereich mit mehreren Zimmern, Badezimmer und Saunabereich mit Dusche. Dieses Dachgeschoß hat vielseitige Nutzungsmöglichkeiten – etwa als Jugendbereich, Studio, Büro oder eigene Wohneinheit.
Viel Platz für Familie, Beruf und Freizeit
Diese Stadtvilla eignet sich nicht nur für beruflich genutzte Kombinationen – sie ist auch ein idealer Wohnsitz für größere Familien oder als Mehrgenerationenhaus, bei dem jede Generation ihren eigenen Rückzugsraum findet. Die klare Geschossstruktur, mehrere Badezimmer und ausreichend Zimmer bieten Privatsphäre und gemeinschaftliche Räume in harmonischem Gleichgewicht.
Außenbereich mit besonderen Extras
Das Grundstück ist ein echtes Refugium mitten in der Stadt – fast uneinsehbar, herrlich ruhig und mit viel gewachsenem Grün. Ein alter Baumbestand sorgt für natürlichen Schatten, während Rasenflächen und die großzügige Poolanlage (4 × 8 m) zum Verweilen einladen.
Ein besonderes Highlight ist die großzügige Dachterrasse über dem 1989 errichteten Garagengebäude. Die Terrasse ist sowohl über eine Außentreppe als auch direkt vom Wohnzimmer im Obergeschoss aus zugänglich. Eine üppig bewachsene Weinlaube sorgt für angenehmen Schatten – ideal für Frühstücke im Freien, Sommerabende mit Gästen oder ruhige Stunden mit Blick in den Garten.
Insgesamt stehen zwei Garagenplätze sowie fünf zusätzliche Kfz-Stellplätze zur Verfügung – ausreichend Raum für Eigennutzer:innen, Mitarbeiter:innen oder Gäste.
Kurz & bündig:
Baujahr: 1901 | Sanierung ab 1988
Stil: Jahrhundertwende, mit Jugendstil-Einflüssen
Gesamtnutzfläche: ca. 465 m² (Keller, EG, OG, DG)
Technik: Zentralheizung/Fernwärme, moderne Elektro- und Sanitärinstallationen
Nutzung: Wohnen & Arbeiten, Kanzlei, Praxis, Mehrgenerationenwohnen
Highlights: Swimmingpool, Dachterrasse mit Weinlaube, Garten mit Altbaumbestand
Parkplätze: 2 Garagen + 5 KFZ-Stellplätze
Lage: Knittelfeld – zentrale und doch ruhige Stadtlage
Fazit:
Solche Stadtvillen in dieser Qualität, Größe und Lage kommen nur äußerst selten auf den Markt. Diese Immobilie bietet eine einzigartige Gelegenheit für Menschen, die das Besondere suchen: Raum zum Leben, Raum zum Arbeiten und Raum für die ganze Familie – eingebettet in historische Architektur mit Herz und Geschichte.
Ein Energieausweis wurde in Auftrag gegeben
Hinweis gemäß Energieausweisvorlagegesetz: Ein Energieausweis wurde vom Eigentümer bzw. Verkäufer, nach unserer Aufklärung über die generell geltende Vorlagepflicht, sowie Aufforderung zu seiner Erstellung noch nicht vorgelegt. Daher gilt zumindest eine dem Alter und der Art des Gebäudes entsprechende Gesamtenergieeffizienz als vereinbart. Wir übernehmen keinerlei Gewähr oder Haftung für die tatsächliche Energieeffizienz der angebotenen Immobilie.
Der Vermittler ist als Doppelmakler tätig.
Infrastruktur / Entfernungen
Gesundheit
Arzt <500m
Apotheke <1.000m
Krankenhaus <750m
Kinder & Schulen
Schule <750m
Kindergarten <500m
Nahversorgung
Supermarkt <250m
Bäckerei <1.000m
Einkaufszentrum <5.500m
Sonstige
Bank <500m
Geldautomat <500m
Post <1.000m
Polizei <1.500m
Verkehr
Bus <250m
Autobahnanschluss <1.500m
Bahnhof <1.750m
Flughafen <5.750m
Angaben Entfernung Luftlinie / Quelle: OpenStreetMap
Objektdaten
Ausstattung
- Sauna
- Swimmingpool
- Gäste-WC
- Bad mit Dusche
- Bad mit Badewanne
- Bad mit Fenster
- Einbauküche
- Zentralheizung
- Fernwärme Heizung
- Alarmanlage
- Massiv Bauweise
Zustand
- Zustand
- GEPFLEGT
- Baujahr
- 1901
Flächen
- Anzahl der Zimmer
- 11
- Anzahl der Badezimmer
- 2
- Anzahl der sep. WCs
- 3
- Stellplätze
- 5
- Wohnfläche
- 363m²
- Grundstücksfläche
- 1.021m²
- Kellerfläche
- 101m²
Kosten
- Kaufpreis Brutto
- € 649.000,00
- Betriebskosten
- € 385,00
- Heizkosten
- € 452,00
Häuser zum Kaufen im Umkreis von Knittelfeld
Häuser zum Kaufen im Umkreis von Knittelfeld
Häuser zum Kaufen in Österreich
Andere Besucher suchen nach...
- Grundstücke kaufen in 3400 Weidlingbach
- Wohnungen kaufen in 4663 Laakirchen
- Häuser in 7471 Rechnitz
- Wohnungen in 2410 Hainburg an der Donau
- Häuser kaufen in 2432 Schwadorf
- Wohnungen kaufen in 3002 Purkersdorf
- Häuser in 3150 Wilhelmsburg
- Wohnungen kaufen in 3470 Engelmannsbrunn
- Grundstücke kaufen im Bezirk Mattersburg
- Grundstücke kaufen im Bezirk Gmunden