Doppelhaus Hälfte mit Garage
-
Erstbezug
-
2022
Beschreibung
****Neubau**** - Doppelhaushälfte – Erstbezug
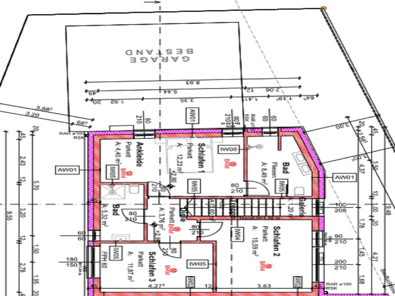
Wimpassing im Schwarzatale ist eine Marktgemeinde mit 1598 Einwohnern im Bezirk Neunkirchen in Niederösterreich. Wimpassing im Schwarzatale liegt im Industrieviertel in Niederösterreich. Erdgeschoss finden sich ca. 72 m² Wohnnutzfläche: • Vorraum und ein großer und schöner OPEN SPACE Raum, Wohn- Ess- Küchenbereich ist mit Ausgang auf die Terrasse / Garten, • Garderobe, • WC mit Waschbecken und Fenster • Abstellraum, Technikraum Obergeschoss finden sich ca. 62 m² Wohnnutzfläche: • Flur, • 2 Schlafzimmer, • 1 Elternschlafzimmer mit Garderobe und Badezimmer • Bad...
****Neubau**** - Doppelhaushälfte – Erstbezug
Wimpassing im Schwarzatale ist eine Marktgemeinde mit 1598 Einwohnern im Bezirk Neunkirchen in Niederösterreich. Wimpassing im Schwarzatale liegt im Industrieviertel in Niederösterreich.
Erdgeschoss finden sich ca. 72 m² Wohnnutzfläche:
• Vorraum und ein großer und schöner OPEN SPACE Raum, Wohn- Ess- Küchenbereich ist mit Ausgang auf die Terrasse / Garten,
• Garderobe,
• WC mit Waschbecken und Fenster
• Abstellraum, Technikraum
Obergeschoss finden sich ca. 62 m² Wohnnutzfläche:
• Flur,
• 2 Schlafzimmer,
• 1 Elternschlafzimmer mit Garderobe und Badezimmer
• Bad mit Wanne oder Dusche, Doppelwaschtisch und Fenster,
Außenbereich:
• Garten ca. 150 m² mit Rasen rollen
• Terrasse ca.22 m²
• Grund ca. 336 m²
• Doppelstabmattenzaun, Wasseranschluss im Garten
Fenster und Türen ab Belagsfertig Ausstattung:
• Kunststofffenster (dunkelbraun) mit Dreischeibenisolierverglasung
• Dreh-Kippbeschlag (dunkelbraun) eloxiert
• Elektrischen Außenjalousien und Insektenschutz
Ausstattung:
• Baujahr 2022,
• massive Bauweise,
• Strom-Wasser-Kanal-Anschluss Bereit bezahlt,
• Luftwärmeheizung - Fußbodenheizung
Belagsfertig Übergabe:
• Gartenanlage komplett, Einfriedung und Einzäunung komplett, Haus außen komplett, Zentralheizung (Luftwärme), alle Sanitäranschlüsse, alle Stromanschlüsse inkl. Stecker und Steckdosen, alle Estriche.
• Belagsfertig Preis: 380.000 €
Schlüsselfertige Übergabe:
- Gartenanlage komplett, Einfriedung und Einzäunung komplett, Haus außen komplett, Carport, Zentralheizung (Luftwärme), alle Sanitäranschlüsse, alle Stromanschlüsse inkl. Stecker und Steckdosen, alle Estriche, Fliesen- und Echtholzparkett im Erdgeschoss und Laminat in OG, Wände streichfertig, Holztreppe, Stiegen Geländer, alle Innentüren, Bad und WC-Ausstattung inklusive Armaturen, alle Bodenbeläge.
- Geplante Übergabe: Drei Monate nach Vertragsabschluss.
- Schlüsselfertige Preis: 410.000 €
Nachbargemeinden:
• Ternitz
• Grafenbach-St. Valentin
• Wartmannstetten
Kommunale Einrichtungen:
• Gemeindeamt, Kindergarten, Volksschule, Feuerwehrhaus, Kinderspielplatz.
Angebot Einsparung:
Bei diesem Angebot profitieren Sie von einer Ersparnis in Höhe von:
- 1,2 % temporäre Befreiung von den Gebühren Pfandrecht im Grundbuch bei Erwerb von Wohnraum. Die Gebührenbefreiung gilt bis zu einer Bemessungsgrundlage von 500.000 Euro. Für den Teil, der über 500.000 Euro hinausgeht, ist die Gebühr zu entrichten. (GGG-Richtlinie § 25a ― temporäre Befreiung)
- 1,1 % temporäre Befreiung von den Gebühren für die Eintragung von Eigentumsrecht im Grundbuch bei Erwerb von Wohnraum. Die Gebührenbefreiung gilt bis zu einer Bemessungsgrundlage von 500.000 Euro. Für den Teil, der über 500.000 Euro hinausgeht, ist die Gebühr zu entrichten. (GGG-Richtlinie § 25a ― temporäre Befreiung)
Ich ersuche um Verständnis, dass ich, aufgrund der Nachweispflicht gegenüber dem Auftraggeber und aus Sicherheitsgründen Unterlagen nur an Interessenten weiterleiten kann, die Ihre persönlichen Daten, d.h. Vor- und Familienname, Anschrift, Telefonnummer und E-Mail-Adresse, bekannt gegeben haben. Irrtümer und Änderungen vorbehalten!
Alle Angaben sind ohne Gewähr und basieren ausschließlich auf Informationen, die uns von dem Verkäufer übermittelt wurden. Eine Weitergabe der übermittelten Daten an Dritte ist nicht gestattet. Da wir diese Informationen nur weitergeben, wird unsererseits für die Richtigkeit, Vollständigkeit und Aktualität der Objektinformationen keinerlei Haftung übernommen.
In einem persönlichen und unverbindlichen & kostenlosen Termin können Sie sich einen Eindruck dieser außergewöhnlichen Liegenschaft machen. Ich freue mich auf Ihren Anruf!
Der Vermittler ist als Doppelmakler tätig.
Infrastruktur / Entfernungen
Gesundheit
Arzt <500m
Apotheke <500m
Krankenhaus <6.000m
Klinik <7.500m
Kinder & Schulen
Schule <500m
Kindergarten <500m
Nahversorgung
Supermarkt <1.000m
Bäckerei <500m
Einkaufszentrum <1.000m
Sonstige
Bank <500m
Geldautomat <500m
Polizei <1.000m
Post <500m
Verkehr
Bus <500m
Autobahnanschluss <4.500m
Bahnhof <1.500m
Angaben Entfernung Luftlinie / Quelle: OpenStreetMap
Objektdaten
Ausstattung
- Gartennutzung
- Kabel/SAT-TV
- DV Verkabelung
- Rolladen
- Kabelkanäle
- Bad mit Dusche
- Bad mit Badewanne
- Bad mit Fenster
- Offene Küche
- Estrichboden
- Zentralheizung
- Luftwärmepumpe
- Ausrichtung Balkon/Terrasse - Südwest
- Flachdach
- Massiv Bauweise
Dokumente / Links
Zustand
- Zustand
- ERSTBEZUG
- Baujahr
- 2022
- Alter
- NEUBAU
- HWB
- 28.4 kWh/m² pro Jahr
- Klasse HWB
- B
- fGEE
- 0.68
- Klasse fGEE
- A+
Flächen
- Anzahl der Zimmer
- 4
- Anzahl der Badezimmer
- 2
- Anzahl der sep. WCs
- 2
- Stellplätze
- 2
- Wohnfläche
- 120m²
- Grundstücksfläche
- 360m²
- Gartenfläche
- 150m²
Kosten
- Betriebskosten
- € 60,00
Häuser zum Kaufen im Umkreis von Wimpassing im Schwarzatale
Häuser zum Kaufen in Österreich
Andere Besucher suchen nach...
- Immobilien kaufen in 2601 Sollenau
- Immobilien in 4951 Polling im Innkreis, Oberösterreich
- Immobilien in 4742 Pram, Oberösterreich kaufen oder mieten
- Häuser kaufen in 2340 Mödling, Niederösterreich
- Häuser kaufen in 9421 Gemmersdorf, Kärnten
- Wohnungen / Eigentumswohnungen kaufen in 9431 St. Stefan, Kärnten
- Häuser kaufen in Bruck an der Leitha, Niederösterreich
- Immobilien mieten in Krems an der Donau, Niederösterreich
- Häuser zum Kaufen im Bezirk St. Pölten Land, Niederösterreich
- Büro / Praxen mieten in Rohrbach, Oberösterreich