REDUZIERT! Ideales Wohnhaus mit großem sonnigen Grund für Sie und Ihre Familie!
-
sofort
Beschreibung
Gols - Ideales Wohnhaus mit großem sonnigen Grund für Sie und Ihre Familie!
Hier können Sie Ihren Traum vom Eigenheim in der Weinbaugemeinde Gols verwirklichen.
Das Haus wurde im Jahr 1971 gebaut, liegt in einer ruhigen Seitenstraße und ist ideal für eine Familie.
Besonders die große Terrasse und der große sonnige Garten mit Obstbäumen bieten viel Platz.
Hier können Kinder ihre Kindheit in vollen Zügen beim Spielen, herumtollen usw. genießen
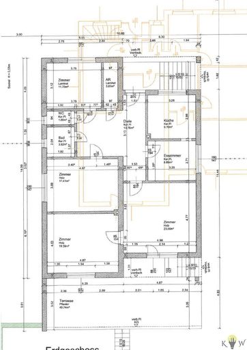
Das Erdgeschoß besteht aus:
* Vorraum
* Esszimmer
* Küche
* Wohnzimmer mit Zugang auf die Terrasse
* 3 Schlafzimmer
* Badezimmer
* WC
* Abstellraum
...Gols - Ideales Wohnhaus mit großem sonnigen Grund für Sie und Ihre Familie!
Hier können Sie Ihren Traum vom Eigenheim in der Weinbaugemeinde Gols verwirklichen.
Das Haus wurde im Jahr 1971 gebaut, liegt in einer ruhigen Seitenstraße und ist ideal für eine Familie.
Besonders die große Terrasse und der große sonnige Garten mit Obstbäumen bieten viel Platz.
Hier können Kinder ihre Kindheit in vollen Zügen beim Spielen, herumtollen usw. genießen
Das Erdgeschoß besteht aus:
* Vorraum
* Esszimmer
* Küche
* Wohnzimmer mit Zugang auf die Terrasse
* 3 Schlafzimmer
* Badezimmer
* WC
* Abstellraum
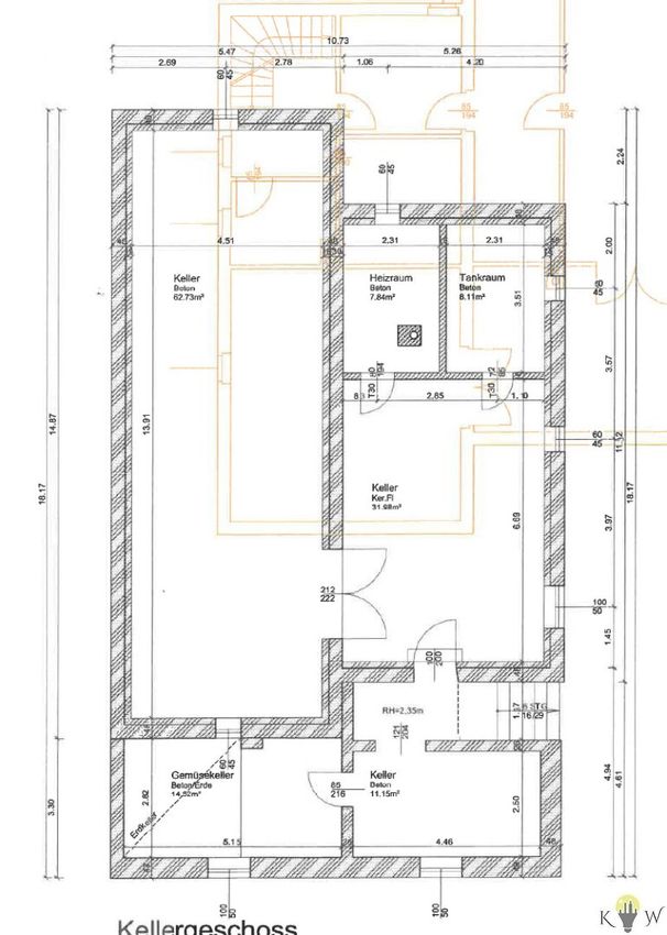
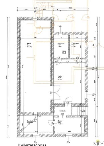
Das Haus ist voll unterkellert.
Im Keller befinden sich derzeit Lagerräume, ein Stüberl sowie ein Heizraum
Ein Geräteraum mit ca 45 m² und zwei Garagentore befindet sich am hinteren Teil des Grundstückes und ist auch von der hinteren Zufahrt begeh- und befahrbar.
Sammeln Sie Ihre eigenen Eindrücke von dieser wundervollen Immobilie. Ich führe Sie gerne durchs Haus und den Garten.
Einen ersten Eindruck können Sie sich bereits hier verschaffen:
https://youtu.be/sms09MHt4Vw
Der Vermittler ist als Doppelmakler tätig.
Objektdaten
Ausstattung
- Räume veränderbar
- Einbauküche
- Fliesenboden
- Parkettboden
- Zentralheizung
- Befeuerung mit Öl
- Ausrichtung Balkon/Terrasse - Südwest
- Satteldach
- Massiv Bauweise
Dokumente / Links
Zustand
- Zustand
- GEPFLEGT
- Baujahr
- 1971
- Alter
- NEUBAU
- HWB
- 507.2 kWh/m² pro Jahr
- Klasse HWB
- G
- fGEE
- 5.78
- Klasse fGEE
- G
Flächen
- Anzahl der Zimmer
- 5
- Anzahl der Badezimmer
- 1
- Anzahl der sep. WCs
- 1
- Anzahl der Terrassen
- 1
- Wohnfläche
- 118m²
- Lagerfläche
- 45m²
- Grundstücksfläche
- 1.246m²
- Kellerfläche
- 136m²
- Terrassenfläche
- 1m²
Kosten
- Kaufpreis Brutto
- € 429.000,00
Verwaltung
- Verfügbar ab
- sofort
Häuser zum Kaufen im Umkreis von Gols
Häuser zum Kaufen in Österreich
Andere Besucher suchen nach...
- Immobilien kaufen in 2601 Sollenau
- Immobilien in 4951 Polling im Innkreis, Oberösterreich
- Immobilien in 4742 Pram, Oberösterreich kaufen oder mieten
- Häuser kaufen in 2340 Mödling, Niederösterreich
- Häuser kaufen in 9421 Gemmersdorf, Kärnten
- Wohnungen / Eigentumswohnungen kaufen in 9431 St. Stefan, Kärnten
- Häuser kaufen in Bruck an der Leitha, Niederösterreich
- Immobilien mieten in Krems an der Donau, Niederösterreich
- Häuser zum Kaufen im Bezirk St. Pölten Land, Niederösterreich
- Büro / Praxen mieten in Rohrbach, Oberösterreich