Großzügige Haushälfte mit Garten, Balkonen, Garage und Carports nahe St. Pölten
Beschreibung
Großzügige Doppelhaushälfte mit 2 Loggien, Garten, Garage und Carports zwischen St. Pölten und Melk
Die Liegenschaft liegt am östlichen Rand von Prinzersdorf, die benachbarten Liegenschaften sind mit Einfamilienwohnhäusern bebaut. Der Anschluss an den öffentlichen Verkehr erfolgt in unmittelbarer Nähe am Bahnhof Prinzersdorf.
Prinzersdorf ist eine Marktgemeinde mit ca. 1600 Einwohnern im Bezirk St. Pölten-Land. Sie liegt zwischen St. Pölten und Melk. Die Marktgemeinde befindet sich unmittelbar an der Wiener Straße B1, sowie der Westbahn mit eigenem Bahnhof, so dass beste Verbindungen in die nahe gelegene Landeshauptstadt St. Pölten bestehen. Güter und Leistungen des täglichen Bedarfs können in Prinzersdorf und...
Großzügige Doppelhaushälfte mit 2 Loggien, Garten, Garage und Carports zwischen St. Pölten und Melk
Die Liegenschaft liegt am östlichen Rand von Prinzersdorf, die benachbarten Liegenschaften sind mit Einfamilienwohnhäusern bebaut. Der Anschluss an den öffentlichen Verkehr erfolgt in unmittelbarer Nähe am Bahnhof Prinzersdorf.
Prinzersdorf ist eine Marktgemeinde mit ca. 1600 Einwohnern im Bezirk St. Pölten-Land. Sie liegt zwischen St. Pölten und Melk. Die Marktgemeinde befindet sich unmittelbar an der Wiener Straße B1, sowie der Westbahn mit eigenem Bahnhof, so dass beste Verbindungen in die nahe gelegene Landeshauptstadt St. Pölten bestehen. Güter und Leistungen des täglichen Bedarfs können in Prinzersdorf und auch in der Landeshauptstadt bezogen werden. Kurzfristig zu erreichen sind der Kindergarten, die Mittelschule Prinzersdorf, die Apotheke und einige Nahversorger. Es ist auch nicht weit zur Westautobahn.
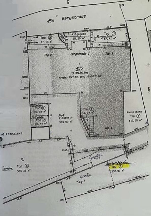
Das Objekt besteht aus der Top 2 (ca. 78m²) im Erdgeschoss, mit eine davor liegenden Garten (ca.47m²), diese wurde zuletzt gewerblich genutzt, kann aber jederzeit auf eine schöne 3 Zimmer Wohnung umgebaut werden.
Dahinter liegt die Top 3 (ca.37m²), hierbei handelt es sich um einen großen Lagerraum mit Gargentor, diese kann also auch als Garage genutzt werden.
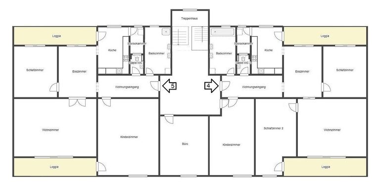
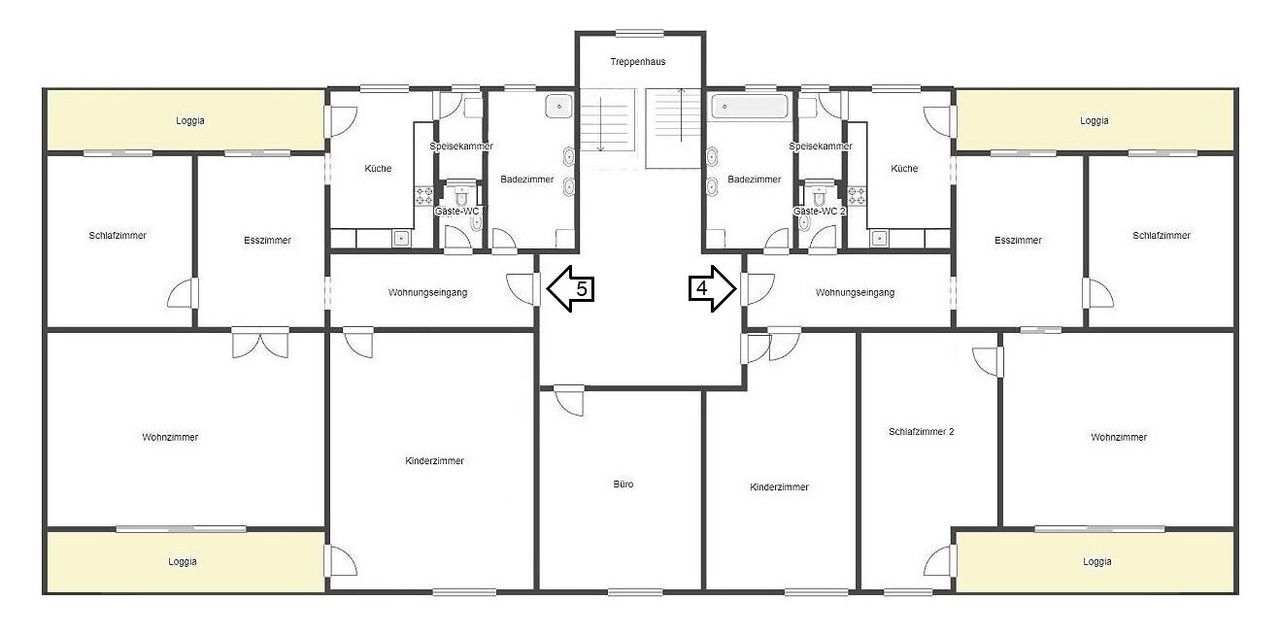
Im 1. und 2. Stock erstreckt sich die Top 5, diese besteht aus einer Wohnung im ersten Stock, mit ca.150m² und einem hohen Rohdachboden mit 180m², welcher auch noch ausgebaut werden könnte, außerdem gehört noch ein 510m² großer Garten an der Hinterseite des Gebäudes dazu und 2 Loggien mit ca. 27m². Die Wohnung besteht aus einem Vorraum, einem WC, einem großen Bad mit Doppelwaschbecken und Dusche, einem großen Wohnsalon, einem Esszimmer, 2 sehr geräumige Schlafzimmer mit Zugang zu jeweils einer Loggia und einer Küche, von der aus ein Abstellraum und auch die vordere Loggia erreichbar ist.
Im Innenhof befinden sich Carports mit den Stellplätzen Top 7 & 8 mit zusammen ca.44m², diese sind auch im Paket enthalten.
Das Gebäude wurde 1982-1984 mit 30cm Ziegel errichtet, die Benützungsbewilligung erfolgte dann 1986, die Fassade besteht aus Mineral- oder Edelputz.
Der Kaufpreis beträgt 285.500,- €
Kaufnebenkosten:
3,5 % Grunderwerbsteuer
1,1 % Grundbuchseintrag
1,0 % Kaufvertragserrichtung + Ust
3,6 % Provision inkl. 20 % Ust
Für Informationen und Besichtigungstermine stehe ich Ihnen jederzeit gerne zur Verfügung!
Termine sind auch am Wochenende möglich unter 0664 - 38 17 061, Anton Robert De Icco
Der Vermittler ist als Doppelmakler tätig.
Infrastruktur / Entfernungen
Gesundheit
Arzt <500m
Apotheke <500m
Klinik <8.000m
Krankenhaus <8.000m
Kinder & Schulen
Schule <500m
Kindergarten <500m
Universität <8.500m
Höhere Schule <7.500m
Nahversorgung
Supermarkt <1.000m
Bäckerei <6.500m
Einkaufszentrum <4.000m
Sonstige
Bank <500m
Geldautomat <500m
Polizei <1.000m
Post <5.000m
Verkehr
Bus <500m
Bahnhof <500m
Autobahnanschluss <3.500m
Flughafen <7.000m
Angaben Entfernung Luftlinie / Quelle: OpenStreetMap
Objektdaten
Ausstattung
- Fliesenboden
- Parkettboden
- Zentralheizung
- Befeuerung mit Öl
- Ausrichtung Balkon/Terrasse - Nord
- Ausrichtung Balkon/Terrasse - Süd
- Satteldach
Zustand
- Zustand
- MODERNISIERT
- Baujahr
- 1986
- Alter
- NEUBAU
- HWB
- 130.2 kWh/m² pro Jahr
- Klasse HWB
- D
- fGEE
- 2.33
- Klasse fGEE
- D
Flächen
- Anzahl der Badezimmer
- 1
- Anzahl der sep. WCs
- 1
- Anzahl der Logia
- 2
- Stellplätze
- 2
- Wohnfläche
- 254m²
- Nutzfläche
- 290m²
- Gesamtfläche
- 470m²
- Grundstücksfläche
- 2.190m²
- Gartenfläche
- 557m²
Kosten
- Kaufpreis Brutto
- € 285.500,00
Häuser zum Kaufen im Umkreis von Prinzersdorf
Häuser zum Kaufen im Umkreis von Prinzersdorf
Häuser zum Kaufen in Österreich
Andere Besucher suchen nach...
- Grundstücke kaufen in 3400 Weidlingbach
- Wohnungen kaufen in 4663 Laakirchen
- Häuser in 7471 Rechnitz
- Wohnungen in 2410 Hainburg an der Donau
- Häuser kaufen in 2432 Schwadorf
- Wohnungen kaufen in 3002 Purkersdorf
- Häuser in 3150 Wilhelmsburg
- Wohnungen kaufen in 3470 Engelmannsbrunn
- Grundstücke kaufen im Bezirk Mattersburg
- Grundstücke kaufen im Bezirk Gmunden