Exklusiver Bungalow mit Pool – modernes Neubauprojekt in Raab zu kaufen
-
Erstbezug
-
2026
Beschreibung
Exklusiver Bungalow mit Pool – modernes Neubauprojekt in Raab zu kaufen
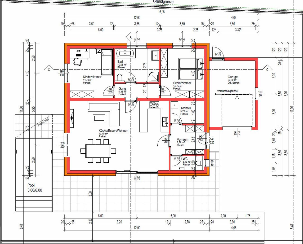
Dieser moderne Bungalow überzeugt durch seine klare Architektur, eine durchdachte Raumaufteilung und komfortables Wohnen auf einer Ebene. Das Haus wird nach einem architektonisch abgestimmten Konzept neu errichtet und bietet eine Wohnfläche von rund 106 m². Der Grundriss umfasst eine großzügige, offene Wohnküche mit Wohn- und Essbereich von ca. 47 m². Große Fensterflächen sorgen für viel Tageslicht und ermöglichen einen direkten Zugang zur Terrasse. Der offen gestaltete Wohnbereich bildet das Herzstück des Hauses und schafft eine helle und freundliche Wohnatmosphäre. Das Raumangebot wird durch ein Schlafzimmer, ein Kinderzimmer, ein Badezimmer,...
Exklusiver Bungalow mit Pool – modernes Neubauprojekt in Raab zu kaufen
Dieser moderne Bungalow überzeugt durch seine klare Architektur, eine durchdachte Raumaufteilung und komfortables Wohnen auf einer Ebene. Das Haus wird nach einem architektonisch abgestimmten Konzept neu errichtet und bietet eine Wohnfläche von rund 106 m². Der Grundriss umfasst eine großzügige, offene Wohnküche mit Wohn- und Essbereich von ca. 47 m². Große Fensterflächen sorgen für viel Tageslicht und ermöglichen einen direkten Zugang zur Terrasse. Der offen gestaltete Wohnbereich bildet das Herzstück des Hauses und schafft eine helle und freundliche Wohnatmosphäre. Das Raumangebot wird durch ein Schlafzimmer, ein Kinderzimmer, ein Badezimmer, ein separates WC, einen Technikraum sowie einen Vorraum mit Gang, der alle Räume optimal verbindet, ergänzt. Zusätzlich verfügt der Bungalow über eine direkt angeschlossene Garage mit rund 21 m², die einen komfortablen Zugang zum Haus bietet. Im Gartenbereich besteht die Möglichkeit zur Errichtung eines Pools (ca. 3 x 6 m), der gegen Aufpreis ausgeführt werden kann. Der Bungalow kann wahlweise auch schlüsselfertig ausgeführt werden. Für die schlüsselfertige Ausführung fällt ein Aufpreis von EUR 55.000,- an. Der Entwurf überzeugt durch eine klare, moderne Architektur und eine funktionale Raumaufteilung und eignet sich ideal für komfortables Wohnen auf einer Ebene. Hinweis: Bei den dargestellten Bildern handelt es sich um Visualisierungen eines möglichen Bauprojekts. Änderungen in Planung, Ausführung und Ausstattung sind möglich. Auf dem Grundstück ist die Errichtung von zwei modernen Bungalows vorgesehen. Der Grundriss kann individuell an die Bedürfnisse der Käufer angepasst werden. So besteht beispielsweise die Möglichkeit, zusätzliche Schlafzimmer zu realisieren oder die Raumaufteilung flexibel zu gestalten. Auch eine Erweiterung des Gebäudes ist – vorbehaltlich behördlicher Genehmigung – grundsätzlich möglich.
Lage
In nur 5 Minuten erreichen Sie das Ortszentrum, dort finden Sie alles was Sie für ihren Alltag brauchen (Schule, Kindergarten, Lebensmittelhändler, Ärzte, ...)
Sie haben Interesse?
Ansehen lohnt sich - wir freuen uns über Ihr Interesse! Für weitere Fragen stehen wir Ihnen gerne unter der Rufnummer 0664 398 34 62 zur Verfügung. Auf Wunsch stellen wir gerne einen Kontakt zu Finanzierungsexperten her.
Rechtliche Informationen
Bitte beachten Sie, dass wir aufgrund unserer ALLEINBEAUFTRAGUNG und Nachweispflicht für den Abgeber ausschließlich Anfragen unter Angabe Ihrer VOLLSTÄNDIGEN DATEN bearbeiten können (NAME, ANSCHRIFT, E-MAIL, TELEFONNUMMER). Explizit weisen wir darauf hin, dass alle Angaben nach bestem Wissen erstellt wurden. Irrtümer, Druckfehler und Änderungen vorbehalten. Für Auskünfte und Angaben, die uns von Seiten der Eigentümer und Dritten zur Verfügung gestellt wurden, können wir keine Haftung übernehmen.
Haben Sie die richtige Immobilie noch nicht gefunden?
Dann registriere dich hier: https://girkinger-immobilien.at/suchagent/#section-2-113717
Infrastruktur / Entfernungen
Gesundheit
Arzt <5.500m
Apotheke <500m
Kinder & Schulen
Schule <4.500m
Kindergarten <500m
Nahversorgung
Supermarkt <500m
Bäckerei <500m
Einkaufszentrum <10.000m
Sonstige
Bank <500m
Geldautomat <500m
Post <4.500m
Polizei <5.500m
Verkehr
Bus <500m
Bahnhof <4.500m
Flughafen <7.000m
Angaben Entfernung Luftlinie / Quelle: OpenStreetMap
Objektdaten
Ausstattung
- Gartennutzung
- Swimmingpool
- Gäste-WC
- Bad mit Dusche
- Bad mit Fenster
- Fußbodenheizung
- Luftwärmepumpe
- Walmdach
Dokumente / Links
Zustand
- Zustand
- ERSTBEZUG
- Baujahr
- 2026
- Alter
- NEUBAU
Flächen
- Anzahl der Zimmer
- 3
- Anzahl der Badezimmer
- 1
- Anzahl der sep. WCs
- 2
- Wohnfläche
- 106m²
- Grundstücksfläche
- 500m²
Kosten
- Kaufpreis Brutto
- € 395.000,00
- Betriebskosten
- € 150,00
Häuser zum Kaufen im Umkreis von Raab
Häuser zum Kaufen in Österreich
Andere Besucher suchen nach...
- Immobilien kaufen in 2601 Sollenau
- Immobilien in 4951 Polling im Innkreis, Oberösterreich
- Immobilien in 4742 Pram, Oberösterreich kaufen oder mieten
- Häuser kaufen in 2340 Mödling, Niederösterreich
- Häuser kaufen in 9421 Gemmersdorf, Kärnten
- Wohnungen / Eigentumswohnungen kaufen in 9431 St. Stefan, Kärnten
- Häuser kaufen in Bruck an der Leitha, Niederösterreich
- Immobilien mieten in Krems an der Donau, Niederösterreich
- Häuser zum Kaufen im Bezirk St. Pölten Land, Niederösterreich
- Büro / Praxen mieten in Rohrbach, Oberösterreich