Wohnlage im Süden von Amstetten. - Vermietete 3-Zi. Wohnung. - Zwei Balkone und großer Gemeinschaftsgarten.
Beschreibung
Diese 3-Zimmer Wohnung befindet sich in ruhiger Wohnlage im Süden von Amstetten. Die Wohnung im 1. OG ist aktuell befristet vermietet und bietet so Mieterlöse ab dem ersten Tag.
Die Vorteile dieser Wohnung auf einen Blick:
- Ruhige Wohnlage im Süden von Amstetten.
- Wohnung vermietet - Erträge ab dem 1. Tag.
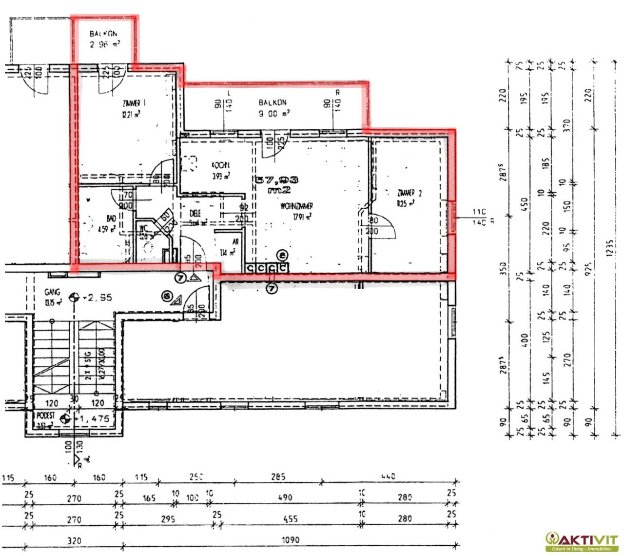
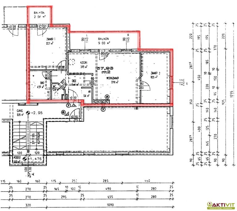
- 2 Schlafzimmer und großes Wohn- & Esszimmer auf rund 58 m² Wohnfläche.
- Nachhaltiger Grundriss - Bad und getrenntes WC, Abstellraum in der Wohnung.
- Zwei Balkone mit insgesamt rund 12 m² Balkonfläche
- Eigenes Kellerabteil (ca. 6 m²) und eigener KFZ-Platz inklusive.
- Großer Gemeinschaftsgarten inkl. Natur-Badeteich zur Nutzung.
- Viele Allgemeinflächen (Radkeller,...
Diese 3-Zimmer Wohnung befindet sich in ruhiger Wohnlage im Süden von Amstetten.
Die Wohnung im 1. OG ist aktuell befristet vermietet und bietet so Mieterlöse ab dem ersten Tag.
Die Vorteile dieser Wohnung auf einen Blick:
- Ruhige Wohnlage im Süden von Amstetten.
- Wohnung vermietet - Erträge ab dem 1. Tag.
- 2 Schlafzimmer und großes Wohn- & Esszimmer auf rund 58 m² Wohnfläche.
- Nachhaltiger Grundriss - Bad und getrenntes WC, Abstellraum in der Wohnung.
- Zwei Balkone mit insgesamt rund 12 m² Balkonfläche
- Eigenes Kellerabteil (ca. 6 m²) und eigener KFZ-Platz inklusive.
- Großer Gemeinschaftsgarten inkl. Natur-Badeteich zur Nutzung.
- Viele Allgemeinflächen (Radkeller, Wäscheraum).
DIE WOHNUNG.
Die Wohnung befindet sich im 1. Obergeschoß und hat insgesamt ca. 58 m² Wohnnutzfläche.
Die Fläche verteilt sich auf: Vorraum, zwei Schlafzimmer, Wohn- und Esszimmer mit Küchenbereich, Abstellnische sowie Bad und getrenntes WC.
Von einem der Schlafzimmer sowie vom Wohnzimmer sind die Zugänge zu den Balkonen gegeben.
Insgesamt haben diese rund 12 m² Balkonfläche mit Grünblick.
Die Wohnung verfügt über ein eigenes zugehöriges Kellerabteil mit ca. 6 m² Nutzfläche.
Dieses bringt weitere umfassende Stauraum-Fläche.
ZUSTAND UND AUSTATTUNG.
Die Wohnanlage wurde 2000 errichtet und fertiggestellt.
Die Wohnung ist in gepflegtem Zustand und wird inklusive einem zugehörigen KFZ-Stellplatz verkauft.
Ein großzügiger Gemeinschaftsgarten mit Spazierwegen und Natur-Badeteich steht zur Allgemeinnutzung zur Verfügung.
Weiters gibt es umfassende allgemeine Nutzflächen wie einen Wäsche- sowie einen Fahrrad-Raum.
Die Beheizung erfolgt mittels Zentralheizung und Wärmepumpe.
Warmwasser-Aufbereitung mittels ökologischer und günstiger Solar-Anlage.
DIE VERMIETUNG.
Die Wohnung ist aktuell bis 31.12.2023 befristet vermietet.
Durch die Vermietung werden aktuelle Netto-Mieterlöse von rund € 5.600,- jährlich erzielt.
Dies entspricht einer bestehenden Netto-Rendite von rund 2,5 %.
Der Mietvertrag ist voll indexgebunden (indexiert).
DIE BETRIEBSKOSTEN.
Die Betriebskosten betragen aktuell ca. € 147,- brutto monatlich.
Hinzu kommen die Rücklagen mit rund € 29,- monatlich.
Die monatlichen Kosten für Heizung und Warmwasser zusammen betrugen zuletzt rund € 35,- brutto monatlich.
Zur Beantwortung weiterer Fragen sowie für Besichtigungstermine stehe ich Ihnen gerne täglich - auch am Wochenende - von 08:00 bis 22:00 Uhr zur Verfügung.
Ich freue mich über Ihre Kontaktaufnahme,
Moritz Höslinger
+43 664 217 16 78
m.hoeslinger@aktivit.org
Erteilen Sie uns ihren Suchauftrag und profitieren Sie von vielen Vorteilen und exklusiven Angeboten!
Ganz einfach und kostenlos unter: Jetzt Suchauftrag eingeben.
Infrastruktur / Entfernungen
Gesundheit
Arzt <1.000m
Apotheke <1.500m
Klinik <2.500m
Krankenhaus <2.500m
Kinder & Schulen
Schule <1.000m
Kindergarten <1.000m
Nahversorgung
Supermarkt <1.500m
Bäckerei <1.000m
Einkaufszentrum <2.000m
Sonstige
Bank <1.000m
Geldautomat <1.000m
Post <2.000m
Polizei <2.000m
Verkehr
Bus <500m
Bahnhof <2.000m
Autobahnanschluss <4.500m
Flughafen <5.500m
Angaben Entfernung Luftlinie / Quelle: OpenStreetMap
Objektdaten
Ausstattung
- Gartennutzung
- Teilmöbliert
- Kabel/SAT-TV
- Wasch-/Trockenraum
- UMTS Empfang
- Fahrradraum
- Gäste-WC
- Bad mit Badewanne
- Einbauküche
- Offene Küche
- Fliesenboden
- Laminatboden
- Zentralheizung
- Luftwärmepumpe
- Ausrichtung Balkon/Terrasse - Nord
- Satteldach
- Massiv Bauweise
- Schlüsselfertig mit Keller
Zustand
- Zustand
- GEPFLEGT
- Baujahr
- 2000
- Alter
- NEUBAU
- HWB
- 104 kWh/m² pro Jahr
- Klasse HWB
- E
Flächen
- Anzahl der Zimmer
- 3
- Anzahl der Badezimmer
- 1
- Anzahl der sep. WCs
- 1
- Anzahl der Balkone
- 2
- Stellplätze
- 1
- Wohnfläche
- 58m²
- Nutzfläche
- 58m²
- Kellerfläche
- 6m²
Kosten
- Kaufpreis Brutto
- € 229.000,00
- Betriebskosten
- € 133,59
- Heizkosten
- € 30,00
- Sonstige Kosten
- € 28,96
Wohnungen zum Kaufen im Umkreis von Amstetten
Wohnungen zum Kaufen im Umkreis von Amstetten
Wohnungen zum Kaufen in Österreich
Andere Besucher suchen nach...
- Grundstücke kaufen in 3400 Weidlingbach
- Wohnungen kaufen in 4663 Laakirchen
- Häuser in 7471 Rechnitz
- Wohnungen in 2410 Hainburg an der Donau
- Häuser kaufen in 2432 Schwadorf
- Wohnungen kaufen in 3002 Purkersdorf
- Häuser in 3150 Wilhelmsburg
- Wohnungen kaufen in 3470 Engelmannsbrunn
- Grundstücke kaufen im Bezirk Mattersburg
- Grundstücke kaufen im Bezirk Gmunden