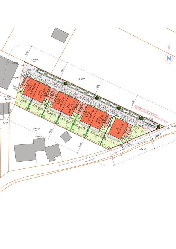
Top 3: Abbruch bereits erfolgt! Schlüsselfertige Doppelhaushälfte mit 5 Zimmern, Carport, Terrasse, Eigengarten!
-
2026
-
Herbst/Winter 2026/27
Beschreibung
Dieses moderne Haus ist ein Ort, an dem Sie sich wie zu Hause fühlen. Es bietet Ihnen ein komfortables Leben in der Stadt Steyr. Mit 5 Zimmern, Terrasse und Eigengarten ist dieses Haus ein perfekter Ort, um sich Ihr eigenes Zuhause zu schaffen.
Ihre Vorteile im Überblick
- Massivbauweise
- Zentralheizung mittels eigener VAILLANT Wärmepumpe mit Kühlfunktion inkl. 160 l Warmwasserspeicher
- Fußbodenheizung im gesamten Haus
- Elektrische Rollläden (bzw. Raffstore bei der Terrassentüre) sind bei allen Fenstern im Wohn- und Schlafbereich enthalten
- Beim WC im OG und im Bad kommt ein satiniertes Glas ohne Rollläden
- Kunststoff-Alu Fenster von Josko mit Hebeschiebetüre...
Dieses moderne Haus ist ein Ort, an dem Sie sich wie zu Hause fühlen. Es bietet Ihnen ein komfortables Leben in der Stadt Steyr. Mit 5 Zimmern, Terrasse und Eigengarten ist dieses Haus ein perfekter Ort, um sich Ihr eigenes Zuhause zu schaffen.
Ihre Vorteile im Überblick
- Massivbauweise
- Zentralheizung mittels eigener VAILLANT Wärmepumpe mit Kühlfunktion inkl. 160 l Warmwasserspeicher
- Fußbodenheizung im gesamten Haus
- Elektrische Rollläden (bzw. Raffstore bei der Terrassentüre) sind bei allen Fenstern im Wohn- und Schlafbereich enthalten
- Beim WC im OG und im Bad kommt ein satiniertes Glas ohne Rollläden
- Kunststoff-Alu Fenster von Josko mit Hebeschiebetüre im Wohnbereich
- Helle Räume und große Fensterflächen im Wohnbereich
- Eigengarten
- Hochwertige Elektroausstattung mit dem Schaltersystem Busch und Jäger future linear
- Leerverrohrung für Internet in den Verteiler
- Jedes Zimmer ist mit einem Leerrohr für Internet oder SAT ausgestattet (5 Stk. insgesamt)
- Waschmaschinenanschluss im Bad oder Technikraum
- Frostsicherer Wasseranschluss bei der Terrasse im Außenbereich
- Eigener Wasser- und Stromanschluss
- Günstige Betriebs- und Heizkosten
- Die allgemeinen Außenanlagen werden vom Bauträger fertig gestellt
- Der Eigengarten wird vom Bauträger mit dem Mutterboden planiert, humusiert und angesät
- Die Terrasse wird mittels Rollierung übergeben (ohne Unterbeton und ohne Terrassenbelag)
- Ortswasser
- Öffentlicher Kanal
Nicht im Kaufpreis enthalten sind:
- Anschlusskosten für Strom, Kanal, Wasser, Verkehrsflächenbeitrag und die dazugehörigen Aufschließungsarbeiten. Diese betragen € 16.000,-/Doppelhaushälfte und € 19.000,- beim Einfamilienhaus und sind nach Erhalt der Rechnung an den Bauträger zu entrichten.
Bei der Angabe der Wohnfläche ist der Abstellraum unter der Stiege im Ausmaß von ca. 3,04 m² und das Stiegenhaus mit ca. 1,6 m² (Maßangabe lt. Nutzwertgutachten, im Plan nicht ersichtlich) miteingerechnet.
Sonstiges:
- Der Abbruch des Bestandsgebäudes ist bereits erfolgt
- Der Baubeginn ist im Frühjahr 2026
- Die Fertigstellung ist im Herbst/Winter 2026/27
- Der Eingangsbereich, die Abtrennung zwischen den Terrassen, der Abstellraum beim Carport und das Carport werden in Beton ausgeführt.
- Änderungen, Druckfehler und Irrtümer sind vorbehalten
Die schlüsselfertige Ausführung beinhaltet:
- Terrasse: Estrichplatten in Splitt verlegt
- Bodenlegerarbeiten: Fertigklebeparkett Eiche 2-Stab inkl. Sockelleisten (Schweizerleiste).
- Stiege: Die Trittstufe der Stiege wird mit dem gleichen Parkettboden belegt. Die Setzstufe wird weiß beschichtet.
- Handlauf: Handlauf aus Eiche lackiert inkl. Edelstahlkonsolen
- Innentüren: Dana Standardtüre weiß mit Holzumfassungszarge
- Fliesenlegerarbeiten:
- Bodenfliesen: Feinsteinzeug, Format: 60/30 inkl. Sockelfliesen, Höhe ca. 7cm aus Bodenfliesen. Der obere Abschluss der Sockelfliesen und Wandfliesen erfolgt mit einer Acryl-Fuge.
- Wandfliesen: Steingut, Format: 60/30 cm, Farbe Weiß matt. Die Wände im Bad und WC werden zum Teil auf eine Höhe von ca. 1,20 m verfliest. Teilweise werden Wände nicht verfliest. Im Bereich der Dusche wird auf eine Höhe von ca. 2,10 m gefliest. Siehe Skizze. Der obere Abschluss der Wandfliesen erfolgt mit einer Acryl-Fuge.
- Abstellraumtüren: Brandschutztüre zum Carport und Nebeneingangstüre zum Garten.
- Sanitär Bad: Laufen Pro Waschtisch, 60 cm breit mit Grohe oder Hansa Armatur bzw. gleichwertiges, mit Kalt- und Warmwasseranschluss
- Hansa Armatur inkl. Duschhalterung und Hansa Handdusche
- Dusche mit Fliese und Rinne im Gefälle ca. 100 x 100 cm mit Glaswand (Walk in Dusche, ohne Türe)
- Sanitär WC EG und OG: Laufen Pro Handwaschbecken mit Grohe oder Hansa Armatur bzw. gleichwertiges, mit Kalt- und Warmwasseranschluss
- Hänge WC Tiefspüler Laufen Pro mit Geberit Drückerplatte
Die Anschlusskosten sind auch bei der schlüsselfertigen Ausführung nicht enthalten.
Wir weisen darauf hin, dass zwischen dem Vermittler und dem zu vermittelnden Dritten ein familiäres oder wirtschaftliches Naheverhältnis besteht.
Der Vermittler ist als Doppelmakler tätig.
Objektdaten
Ausstattung
- Rolladen
- Bad mit Dusche
- Bad mit Fenster
- Zentralheizung
- Luftwärmepumpe
- Flachdach
- Massiv Bauweise
Zustand
- Baujahr
- 2026
- Alter
- NEUBAU
- HWB
- 46 kWh/m² pro Jahr
- Klasse HWB
- B
- fGEE
- 0.66
- Klasse fGEE
- A+
Flächen
- Anzahl der Zimmer
- 5
- Anzahl der Badezimmer
- 1
- Anzahl der sep. WCs
- 2
- Anzahl der Terrassen
- 1
- Stellplätze
- 2
- Wohnfläche
- 100m²
- Gartenfläche
- 73m²
- Terrassenfläche
- 1m²
Kosten
- Kaufpreis Brutto
- € 399.000,00
Verwaltung
- Verfügbar ab
- Herbst/Winter 2026/27
Häuser zum Kaufen in Österreich
Häuser zum Kaufen in Österreich
Häuser zum Kaufen in Österreich
Andere Besucher suchen nach...
- Grundstücke kaufen in 3400 Weidlingbach
- Wohnungen kaufen in 4663 Laakirchen
- Häuser in 7471 Rechnitz
- Wohnungen in 2410 Hainburg an der Donau
- Häuser kaufen in 2432 Schwadorf
- Wohnungen kaufen in 3002 Purkersdorf
- Häuser in 3150 Wilhelmsburg
- Wohnungen kaufen in 3470 Engelmannsbrunn
- Grundstücke kaufen im Bezirk Mattersburg
- Grundstücke kaufen im Bezirk Gmunden