NEUBAU ***** KOFFER packen und einziehen! Schlüsselfertig******
-
Erstbezug
-
2022
-
sofort
Beschreibung
Willkommen in Ihrem neuen Zuhause in 3200 Grub, einer idyllischen Gemeinde in Niederösterreich, wo sich modernes Wohnen mit der Schönheit der Natur vereint. Dieses Einfamilienhaus ist nicht nur ein Ort zum Leben, sondern ein Rückzugsort, der Ihnen einen atemberaubenden Fernblick und einen beruhigenden Grünblick bietet. Hier können Sie die Hektik des Alltags hinter sich lassen und die Ruhe der Umgebung in vollen Zügen genießen.
Das Haus besticht durch seine durchdachte Architektur und hochwertige Ausstattung. Treten Sie ein und lassen Sie sich von den eleganten Fliesen und dem stilvollen Laminat begeistern, die jedem Raum eine warme und einladende Atmosphäre verleihen. Die...
Willkommen in Ihrem neuen Zuhause in 3200 Grub, einer idyllischen Gemeinde in Niederösterreich, wo sich modernes Wohnen mit der Schönheit der Natur vereint. Dieses Einfamilienhaus ist nicht nur ein Ort zum Leben, sondern ein Rückzugsort, der Ihnen einen atemberaubenden Fernblick und einen beruhigenden Grünblick bietet. Hier können Sie die Hektik des Alltags hinter sich lassen und die Ruhe der Umgebung in vollen Zügen genießen.
Das Haus besticht durch seine durchdachte Architektur und hochwertige Ausstattung. Treten Sie ein und lassen Sie sich von den eleganten Fliesen und dem stilvollen Laminat begeistern, die jedem Raum eine warme und einladende Atmosphäre verleihen. Die Fußbodenheizung sorgt dafür, dass Sie auch an kalten Tagen behagliche Wärme erleben – ein Komfort, den Sie nicht mehr missen möchten.
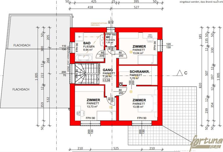
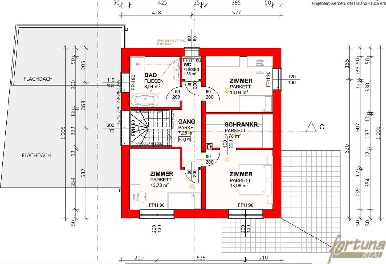
Das Badezimmer, ausgestattet mit einem Fenster, bietet nicht nur ausreichend Licht, sondern auch eine erfrischende Dusche, die Ihr tägliches Ritual zu einem echten Wohlfühlmoment werden lässt. Die Möglichkeit, die Räume nach Ihren Wünschen zu gestalten, eröffnet Ihnen unzählige Optionen, um Ihre persönlichen Vorstellungen zu verwirklichen. Ob ein zusätzliches Schlafzimmer, ein Arbeitszimmer oder ein Hobbyraum – hier können Sie Ihre Träume wahr werden lassen.
Ein weiterer Vorteil dieser Immobilie ist die umweltfreundliche Luftwärmepumpe, die für eine nachhaltige und kosteneffiziente Beheizung sorgt. Damit wohnen Sie nicht nur komfortabel, sondern auch umweltbewusst.
Die Verkehrsanbindung könnte nicht besser sein: Mit einer nahegelegenen Bushaltestelle sind Sie schnell und bequem mit der Umgebung verbunden. So erreichen Sie die wichtigsten Punkte in der Region mühelos, egal ob für den täglichen Arbeitsweg oder für Ausflüge in die umliegenden Städte.
Das Einfamilienhaus in Grub ist mehr als nur ein Gebäude – es ist ein Ort, an dem Sie Erinnerungen schaffen, Ihre Familie zusammenbringen und Ihr Leben in vollen Zügen genießen können. Lassen Sie sich von der einzigartigen Kombination aus modernem Wohnkomfort und unvergleichlicher Naturschönheit begeistern.
Ergreifen Sie die Chance, Teil dieser wunderbaren Gemeinschaft zu werden. Ihr neues Zuhause wartet auf Sie!
Der Vermittler ist als Doppelmakler tätig.
Infrastruktur / Entfernungen
Gesundheit
Arzt <4.500m
Apotheke <2.000m
Klinik <9.000m
Kinder & Schulen
Schule <2.000m
Kindergarten <2.000m
Höhere Schule <8.500m
Nahversorgung
Supermarkt <1.500m
Bäckerei <2.000m
Einkaufszentrum <4.000m
Sonstige
Bank <2.000m
Geldautomat <2.000m
Post <2.000m
Polizei <2.000m
Verkehr
Bus <500m
Bahnhof <1.500m
Autobahnanschluss <4.000m
Flughafen <5.000m
Angaben Entfernung Luftlinie / Quelle: OpenStreetMap
Objektdaten
Ausstattung
- Räume veränderbar
- Barrierefrei
- Gäste-WC
- Bad mit Dusche
- Bad mit Fenster
- Fliesenboden
- Laminatboden
- Fußbodenheizung
- Luftwärmepumpe
- Massiv Bauweise
Zustand
- Zustand
- ERSTBEZUG
- Baujahr
- 2022
- Alter
- NEUBAU
- HWB
- 39.9 kWh/m² pro Jahr
- Klasse HWB
- B
- fGEE
- 0.73
Flächen
- Anzahl der Zimmer
- 5
- Anzahl der Badezimmer
- 2
- Anzahl der sep. WCs
- 2
- Anzahl der Terrassen
- 2
- Stellplätze
- 4
- Wohnfläche
- 133m²
- Grundstücksfläche
- 642m²
- Terrassenfläche
- 2m²
Kosten
- Kaufpreis Brutto
- € 450.000,00
Verwaltung
- Verfügbar ab
- sofort
Häuser zum Kaufen im Umkreis von Ober-Grafendorf
Häuser zum Kaufen im Umkreis von Ober-Grafendorf
Häuser zum Kaufen in Österreich
Andere Besucher suchen nach...
- Grundstücke kaufen in 3400 Weidlingbach
- Wohnungen kaufen in 4663 Laakirchen
- Häuser in 7471 Rechnitz
- Wohnungen in 2410 Hainburg an der Donau
- Häuser kaufen in 2432 Schwadorf
- Wohnungen kaufen in 3002 Purkersdorf
- Häuser in 3150 Wilhelmsburg
- Wohnungen kaufen in 3470 Engelmannsbrunn
- Grundstücke kaufen im Bezirk Mattersburg
- Grundstücke kaufen im Bezirk Gmunden