Gründerzeithaus mit Garten und Stellplatz
€ 720.000
€ 2.769 / m²
3340 Waidhofen an der Ybbs
Beschreibung
Das Jahrhundertwendehaus (Baujahr 1904) wurde im Jahre 2015 generalsaniert. Dachgeschoss-Ausbau mit Gaupen und südwestseitigem Sonnenschutz, Dacheindeckung mit Isolierung, Holz-Alufenster, Heizungsanlage, Elektroanlage, Vollwärmeschutz auf der Hinterseite des Hauses, Innendämmungen. Hierbei wurde besonderes Augenmerk auf die Erhaltung der historischen, erhaltenswerten Bauteile gelegt und mit Liebe zum Detail renoviert. (Fischgrätböden aus Holz, Fliesen, 2,20 m hohe Friesfüllungstüren mit Messingbeschlägen, Jugendstilkamine, Veranda) Das bequem gelegene Objekt befindet sich nur wenige Gehminuten vom Stadtzentrum Waidhofen/Ybbs entfernt. Es besteht aus 2 separaten Wohneinheiten, sprich einer Wohnung im Erdgeschoss und einer darüberliegenden Einheit, welche sich über das Obergeschoss und das Dachgeschoss erstreckt. Die Wohneinheiten sind jeweils durch...
Das Jahrhundertwendehaus (Baujahr 1904) wurde im Jahre 2015 generalsaniert.
Dachgeschoss-Ausbau mit Gaupen und südwestseitigem Sonnenschutz, Dacheindeckung mit Isolierung, Holz-Alufenster, Heizungsanlage, Elektroanlage, Vollwärmeschutz auf der Hinterseite des Hauses, Innendämmungen.
Hierbei wurde besonderes Augenmerk auf die Erhaltung der historischen, erhaltenswerten Bauteile gelegt und mit Liebe zum Detail renoviert.
(Fischgrätböden aus Holz, Fliesen, 2,20 m hohe Friesfüllungstüren mit Messingbeschlägen, Jugendstilkamine, Veranda)
Das bequem gelegene Objekt befindet sich nur wenige Gehminuten vom Stadtzentrum Waidhofen/Ybbs entfernt.
Es besteht aus 2 separaten Wohneinheiten, sprich einer Wohnung im Erdgeschoss und einer darüberliegenden Einheit, welche sich über das Obergeschoss und das Dachgeschoss erstreckt.
Die Wohneinheiten sind jeweils durch ein eigenes Stiegenhaus erschlossen und wie folgt eingeteilt:
Wohnung Top 1 (Erdgeschoss) – ca. 85 m² Wohnfläche:
Vorraum, Küche, 3 Zimmer, Bad, WC, Veranda. (derzeit nicht bestandsfrei)
Wohnung Top 2 (Oberschoss mit Dachgeschoss) – ca. 175 m² Wohnfläche:
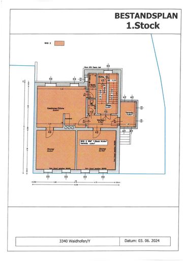
Obergeschoss: Vorraum, Küche mit Tischherd und Essbereich, Speis, Wohnraum mit Jungendstil-Kachelofen, Zimmer, WC, Veranda.
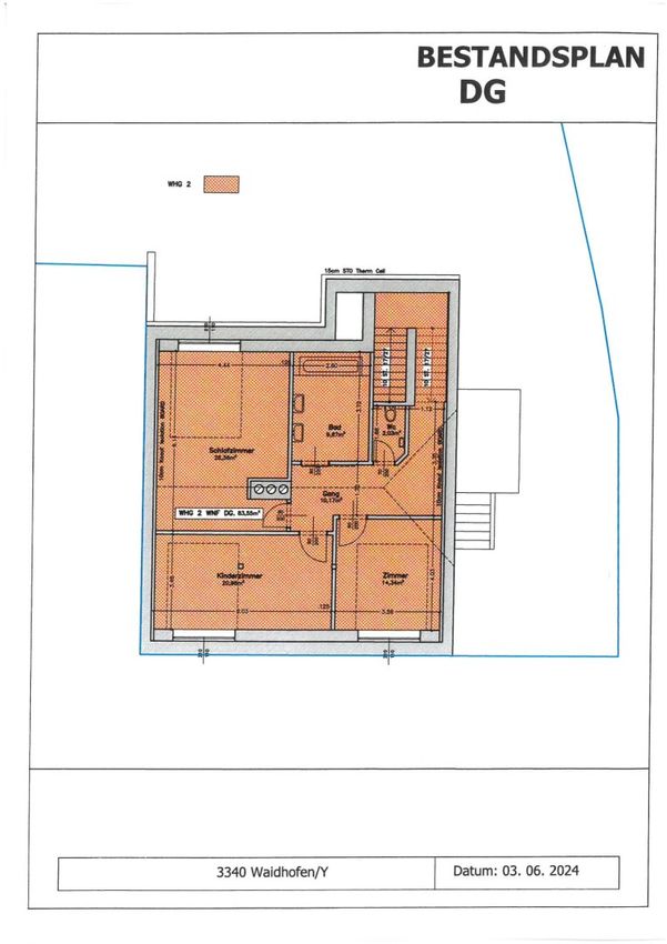
Dachgeschoss: Vorraum, 3 Zimmer, Bad, WC.
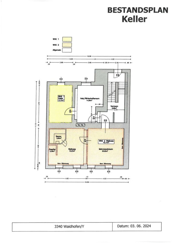
Keller: Wellness-Sauna-Duschbereich, Abstellraum, Heizung/Wirtschaftsraum.
Am Grundstück findet man neben dem PKW-Stellplatz auch einen schön bepflanzten Gartenbereich (alter Apfelbaum, Trompetenbaum, Weinrebe, Marillenbäumchen) mit einer Gartenhütte aus Aluminium, ein Holzbadefass, ein Glashaus und ein Hochbeet. Als Sichtschutz zum Nachbarn fungieren kesseldruckimprägnierte Holzwände sowie Elefantengras und Bambus.
Weiters zu erwähnen:
Terrassenheizung an Wand und Fußboden solargesteuert, elektrisches Einfahrtstor, elektrische Hundetüre im EG, Sonnenuhr aus Mosaiksteinen (Muranoglas) an der Südostfassade, Mosaike im Zugang und Terrassenbelag außen.
Heizung:
Beheizt wird das Objekt mittels einer Gas-Zentralheizung (Brennwerttherme aus dem Jahr 2015).
Ein Tischherd sowie ein Jugendstilkamin bieten ebenfalls eine angenehme Wärme und Atmosphäre.
Solaranlage (12 m²) mit Warmwasseraufbereitung u. Überschuss an Heizung.
HWB: 58,9 kWh/m²a
öffentliche Anschlüsse: Strom, Kanal, Gas, Wasser
*** Kaufvariante – geteiltes Objekt:
Es besteht auch die Möglichkeit, die Liegenschaft getrennt zu erwerben.
Top 1 inkl. Kellerabteil und Grundanteil: € 205.000,--
Top 2 inkl. Wellnessbereich im Keller und Grundanteil: € 515.000,--
Bei näherem Interesse informieren wir Sie gerne in einem persönlichen Gespräch bzw. im Rahmen einer Besichtigung.
Im Falle eines Kaufabschlusses gilt das tarifmäßige Maklerhonorar in der Höhe von 3 % des Kaufpreises plus der gesetzlichen MwSt. Diese Provisionspflicht bleibt auch aufrecht bei Weitergabe der Adresse an dritte Personen. Alle Angaben stammen vom Eigentümer. Für die Richtigkeit wird keine Haftung übernommen. Diverse Planabweichungen sind möglich. Im Rahmen unserer Geschäftsbeziehung verarbeiten wir Ihre personenbezogenen Daten im Einklang mit den datenschutzrechtlichen Bestimmungen.
Dachgeschoss-Ausbau mit Gaupen und südwestseitigem Sonnenschutz, Dacheindeckung mit Isolierung, Holz-Alufenster, Heizungsanlage, Elektroanlage, Vollwärmeschutz auf der Hinterseite des Hauses, Innendämmungen.
Hierbei wurde besonderes Augenmerk auf die Erhaltung der historischen, erhaltenswerten Bauteile gelegt und mit Liebe zum Detail renoviert.
(Fischgrätböden aus Holz, Fliesen, 2,20 m hohe Friesfüllungstüren mit Messingbeschlägen, Jugendstilkamine, Veranda)
Das bequem gelegene Objekt befindet sich nur wenige Gehminuten vom Stadtzentrum Waidhofen/Ybbs entfernt.
Es besteht aus 2 separaten Wohneinheiten, sprich einer Wohnung im Erdgeschoss und einer darüberliegenden Einheit, welche sich über das Obergeschoss und das Dachgeschoss erstreckt.
Die Wohneinheiten sind jeweils durch ein eigenes Stiegenhaus erschlossen und wie folgt eingeteilt:
Wohnung Top 1 (Erdgeschoss) – ca. 85 m² Wohnfläche:
Vorraum, Küche, 3 Zimmer, Bad, WC, Veranda. (derzeit nicht bestandsfrei)
Wohnung Top 2 (Oberschoss mit Dachgeschoss) – ca. 175 m² Wohnfläche:
Obergeschoss: Vorraum, Küche mit Tischherd und Essbereich, Speis, Wohnraum mit Jungendstil-Kachelofen, Zimmer, WC, Veranda.
Dachgeschoss: Vorraum, 3 Zimmer, Bad, WC.
Keller: Wellness-Sauna-Duschbereich, Abstellraum, Heizung/Wirtschaftsraum.
Am Grundstück findet man neben dem PKW-Stellplatz auch einen schön bepflanzten Gartenbereich (alter Apfelbaum, Trompetenbaum, Weinrebe, Marillenbäumchen) mit einer Gartenhütte aus Aluminium, ein Holzbadefass, ein Glashaus und ein Hochbeet. Als Sichtschutz zum Nachbarn fungieren kesseldruckimprägnierte Holzwände sowie Elefantengras und Bambus.
Weiters zu erwähnen:
Terrassenheizung an Wand und Fußboden solargesteuert, elektrisches Einfahrtstor, elektrische Hundetüre im EG, Sonnenuhr aus Mosaiksteinen (Muranoglas) an der Südostfassade, Mosaike im Zugang und Terrassenbelag außen.
Heizung:
Beheizt wird das Objekt mittels einer Gas-Zentralheizung (Brennwerttherme aus dem Jahr 2015).
Ein Tischherd sowie ein Jugendstilkamin bieten ebenfalls eine angenehme Wärme und Atmosphäre.
Solaranlage (12 m²) mit Warmwasseraufbereitung u. Überschuss an Heizung.
HWB: 58,9 kWh/m²a
öffentliche Anschlüsse: Strom, Kanal, Gas, Wasser
*** Kaufvariante – geteiltes Objekt:
Es besteht auch die Möglichkeit, die Liegenschaft getrennt zu erwerben.
Top 1 inkl. Kellerabteil und Grundanteil: € 205.000,--
Top 2 inkl. Wellnessbereich im Keller und Grundanteil: € 515.000,--
Bei näherem Interesse informieren wir Sie gerne in einem persönlichen Gespräch bzw. im Rahmen einer Besichtigung.
Im Falle eines Kaufabschlusses gilt das tarifmäßige Maklerhonorar in der Höhe von 3 % des Kaufpreises plus der gesetzlichen MwSt. Diese Provisionspflicht bleibt auch aufrecht bei Weitergabe der Adresse an dritte Personen. Alle Angaben stammen vom Eigentümer. Für die Richtigkeit wird keine Haftung übernommen. Diverse Planabweichungen sind möglich. Im Rahmen unserer Geschäftsbeziehung verarbeiten wir Ihre personenbezogenen Daten im Einklang mit den datenschutzrechtlichen Bestimmungen.
Objektdaten
Ausstattung
- Zentralheizung
- Befeuerung mit Gas
- Zentralheizung mit Gas
Flächen
- Anzahl der Zimmer
- 8
- Anzahl der Badezimmer
- 2
- Anzahl der sep. WCs
- 3
- Stellplätze
- 1
- Wohnfläche
- 260m²
- Grundstücksfläche
- 463m²
Kosten
- Kaufpreis
- € 720.000,00
Häuser zum Kaufen in Österreich
Häuser zum Kaufen in Österreich
Häuser zum Kaufen in Österreich
Andere Besucher suchen nach...
- Grundstücke kaufen in 3400 Weidlingbach
- Wohnungen kaufen in 4663 Laakirchen
- Häuser in 7471 Rechnitz
- Wohnungen in 2410 Hainburg an der Donau
- Häuser kaufen in 2432 Schwadorf
- Wohnungen kaufen in 3002 Purkersdorf
- Häuser in 3150 Wilhelmsburg
- Wohnungen kaufen in 3470 Engelmannsbrunn
- Grundstücke kaufen im Bezirk Mattersburg
- Grundstücke kaufen im Bezirk Gmunden