LETZTES Neubau Einfamilienhaus! Neubau Marchtrenk 114m² | Größter Garten 142m² | Landesförderung möglich! I Keller möglich!
-
Erstbezug
Beschreibung
TOP 1 – Premium-Einfamilienhaus in Marchtrenk | Das Flaggschiff der Anlage
Ihr exklusives Neubau-Eigenheim mit maximalem Platzangebot
Sichern Sie sich das größte und begehrteste Einfamilienhaus in unserem hochwertigen Neubauprojekt! Als Teil einer sorgfältig geplanten Wohnanlage mit nur 6 Einheiten genießen Sie die perfekte Balance zwischen privatem Wohnen und einer gepflegten Nachbarschaft.
Objektdetails TOP 1:
- Wohnfläche: 114,18 m² auf zwei Ebenen
- Garage: Großzügige 31,61 m² (als Doppelgarage nutzbar)
- Terrasse: 12,50 m² mit Südausrichtung
- Garten: 142 m² – der größte Garten der gesamten Anlage!
- Preis belagsfertig: 440.000 € (inkl. Anschlusskosten, exkl. Garage)
Ihre Wohnräume im Detail:
Erdgeschoss: Empfangen Sie Ihre...
TOP 1 – Premium-Einfamilienhaus in Marchtrenk | Das Flaggschiff der Anlage
Ihr exklusives Neubau-Eigenheim mit maximalem Platzangebot
Sichern Sie sich das größte und begehrteste Einfamilienhaus in unserem hochwertigen Neubauprojekt! Als Teil einer sorgfältig geplanten Wohnanlage mit nur 6 Einheiten genießen Sie die perfekte Balance zwischen privatem Wohnen und einer gepflegten Nachbarschaft.
Objektdetails TOP 1:
- Wohnfläche: 114,18 m² auf zwei Ebenen
- Garage: Großzügige 31,61 m² (als Doppelgarage nutzbar)
- Terrasse: 12,50 m² mit Südausrichtung
- Garten: 142 m² – der größte Garten der gesamten Anlage!
- Preis belagsfertig: 440.000 € (inkl. Anschlusskosten, exkl. Garage)
Ihre Wohnräume im Detail:
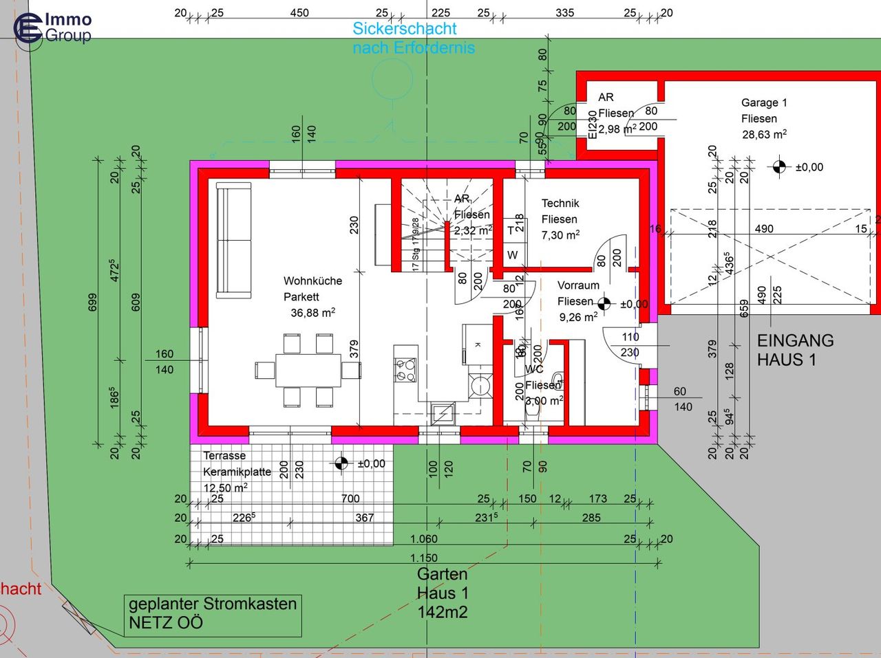
Erdgeschoss: Empfangen Sie Ihre Gäste in einem lichtdurchfluteten, offenen Wohn- und Essbereich mit direktem Zugang zur südlich ausgerichteten Terrasse und Ihrem großzügigen Privatgarten. Die intelligente Raumaufteilung bietet Platz für eine moderne Wohnküche, ein zusätzliches Gästezimmer, ein Gäste-WC sowie einen praktischen Technikraum.
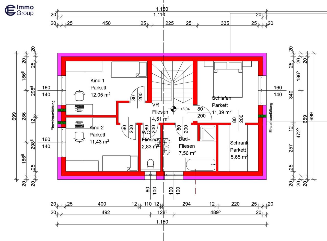
Obergeschoss: Der private Rückzugsbereich im Obergeschoss überzeugt mit einem großzügigen Hauptschlafzimmer inklusive begehbarem Schrankraum, zwei weiteren flexibel nutzbaren Zimmern (ideal als Kinderzimmer, Homeoffice oder Hobbyraum) sowie einem modernen Tageslichtbad mit Dusche, Badewanne, Doppelwaschbecken und separater Toilette.
Premium-Ausstattung für höchsten Wohnkomfort:
- Fußbodenheizung mit Kühlfunktion für ganzjährig perfektes Raumklima
- Hochwertige Schallschutzfenster (Rw 38dB) für ruhiges Wohnen
- Energieeffiziente Bauweise nach modernsten Standards
- Einzelraumlüftung für gesunde Raumluft
- Zeitgemäße Architektur mit hochwertiger Fassadengestaltung
- Private Erschließungsstraße für die gesamte Anlage
Finanzierung leicht gemacht – Landesförderung möglich!
Ein besonderer Vorteil dieses Projekts: Für dieses Objekt kann ein Landesdarlehen des Landes Oberösterreich in Anspruch genommen werden. Diese attraktive Förderung macht Ihren Traum vom Eigenheim noch erschwinglicher durch:
- Deutlich niedrigere Zinsen als bei herkömmlichen Bankkrediten
- Günstige Rückzahlungskonditionen
- Erhebliche finanzielle Entlastung über die gesamte Laufzeit
Sie möchten wissen, ob Sie förderberechtigt sind und wie viel Sie durch die Landesförderung konkret sparen können? Kontaktieren Sie uns jetzt – wir beraten Sie gerne unverbindlich zu allen Fördermöglichkeiten und erstellen Ihnen eine individuelle Finanzierungsberechnung!
Ihre Gestaltungsfreiheit: Da der Baubeginn für 2026 geplant ist, haben Sie noch die einzigartige Möglichkeit, Ihre individuellen Wünsche bei der Ausstattung und Innengestaltung einzubringen. Realisieren Sie Ihr persönliches Traumhaus nach Ihren Vorstellungen!
Zusätzliche Ausbaustufen:
- Aufpreis Garage belagsfertig: 40.000 €
- Aufpreis schlüsselfertig: 40.000 €
Sie brauchen mehr Fläche? - Keller kostengünstig möglich, 56 m² - 58 m² mehr Fläche ab 52.000 €
Die Lage – Zentral zwischen Linz und Wels: Als Teil einer modernen Wohnanlage in Marchtrenk profitieren Sie von der optimalen Verkehrsanbindung an die Autobahnen A1 und A25. In wenigen Minuten erreichen Sie die Städte Linz und Wels mit allen Einkaufsmöglichkeiten, Schulen und Freizeiteinrichtungen.
Perfekt für:
- Familien, die Platz zum Wachsen und den größten Garten der Anlage suchen
- Anspruchsvolle Käufer, die Wert auf Premium-Qualität legen
- Alle, die von attraktiven Förderungen profitieren möchten
Jetzt aktiv werden und Fördermöglichkeiten sichern!
Dieses exklusive Einfamilienhaus ist das letzte seiner Art in der Anlage. Nutzen Sie die Chance auf Landesförderung und vereinbaren Sie noch heute einen unverbindlichen Beratungstermin!
Kontaktieren Sie uns für:
- Detaillierte Informationen zur Landesförderung
- Persönliche Finanzierungsberechnung
- Besichtigungstermin vor Ort
- Individuelle Gestaltungsmöglichkeiten
Wir freuen uns auf Ihre Kontaktaufnahme!
Schauen Sie vorbei - unsere Immobilien sind vonhausausbesser.at
Der Vermittler ist als Doppelmakler tätig.
Infrastruktur / Entfernungen
Gesundheit
Arzt <1.500m
Apotheke <2.000m
Klinik <2.000m
Krankenhaus <5.500m
Kinder & Schulen
Schule <1.500m
Kindergarten <2.000m
Universität <6.000m
Nahversorgung
Supermarkt <1.500m
Bäckerei <2.000m
Einkaufszentrum <2.500m
Sonstige
Bank <2.000m
Geldautomat <2.000m
Post <2.000m
Polizei <2.000m
Verkehr
Bus <500m
Autobahnanschluss <500m
Bahnhof <2.000m
Flughafen <4.000m
Angaben Entfernung Luftlinie / Quelle: OpenStreetMap
Objektdaten
Ausstattung
- Gäste-WC
- Bad mit Dusche
- Bad mit Badewanne
- Bad mit Fenster
- Fußbodenheizung
Zustand
- Zustand
- ERSTBEZUG
- Alter
- NEUBAU
- HWB
- 40 kWh/m² pro Jahr
- Klasse HWB
- B
- fGEE
- 0.67
- Klasse fGEE
- A+
Flächen
- Anzahl der Zimmer
- 4
- Anzahl der Badezimmer
- 1
- Anzahl der sep. WCs
- 2
- Anzahl der Terrassen
- 1
- Stellplätze
- 2
- Wohnfläche
- 114m²
- Gartenfläche
- 142m²
- Terrassenfläche
- 1m²
Kosten
- Kaufpreis Brutto
- € 447.000,00
Häuser zum Kaufen im Umkreis von Marchtrenk
Häuser zum Kaufen im Umkreis von Marchtrenk
Häuser zum Kaufen in Österreich
Andere Besucher suchen nach...
- Grundstücke kaufen in 3400 Weidlingbach
- Wohnungen kaufen in 4663 Laakirchen
- Häuser in 7471 Rechnitz
- Wohnungen in 2410 Hainburg an der Donau
- Häuser kaufen in 2432 Schwadorf
- Wohnungen kaufen in 3002 Purkersdorf
- Häuser in 3150 Wilhelmsburg
- Wohnungen kaufen in 3470 Engelmannsbrunn
- Grundstücke kaufen im Bezirk Mattersburg
- Grundstücke kaufen im Bezirk Gmunden