Familienwohntraum am See - Alleineigentum mit 155 m2 Wohnfläche, Garten und 2 Stellplätzen
-
Erstbezug
-
2025
Beschreibung
In gefragter Lage in Breitenlee entsteht dieses exklusive Einfamilienhaus in hochwertiger Ausführung. Die familienfreundliche und zentrale Lage mit guter Anbindung an den öffentlichen Verkehr sowie einer Vielzahl an Erholungsgebieten in unmittelbarer Umgebung erweist sich als optimal!
Sie erwerben Ihr Haus im EIGENTUM als eigenes Grundstück und eigener EZ mit ca. 320 m² - kein Wohnungseigentum!
Dieses naturnahe Resort stellt einen außergewöhnlichen Rückzugsort dar, wo Sie der Hektik des Alltags entfliehen können. Der herrliche See lädt ein zum schwimmen und verweilen am Wasser. Ebenso das Fischen ist erlaubt.
Die Wohneinheit, welche sich über zwei Etagen erstrecket und...
In gefragter Lage in Breitenlee entsteht dieses exklusive Einfamilienhaus in hochwertiger Ausführung. Die familienfreundliche und zentrale Lage mit guter Anbindung an den öffentlichen Verkehr sowie einer Vielzahl an Erholungsgebieten in unmittelbarer Umgebung erweist sich als optimal!
Sie erwerben Ihr Haus im EIGENTUM als eigenes Grundstück und eigener EZ mit ca. 320 m² - kein Wohnungseigentum!
Dieses naturnahe Resort stellt einen außergewöhnlichen Rückzugsort dar, wo Sie der Hektik des Alltags entfliehen können. Der herrliche See lädt ein zum schwimmen und verweilen am Wasser. Ebenso das Fischen ist erlaubt.
Die Wohneinheit, welche sich über zwei Etagen erstrecket und über 5x lichtdurchflutete Zimmer verfügt, haben eine Wohnfläche von zirka 155 m2. Dazu kommen südseitig ausgerichtete Terrasse und sowie der Garten. Besonders Augenmerk liegt im durchdachten Raumkonzept mit einer Speis bei der Küche und einen begehbaren Schrank im Masterschlafzimmer.
Erdgeschoss:
Bereits beim Betreten des Vorzimmers, spürt man direkt die außergewöhnliche Architektur und offene Gestaltung des Hauses. Das Vorzimmer bietet reichlich Platz für Abstellmöglichkeiten und einen Zugang zum Badezimmer mit Dusche und WC. Vom Eingangsbereich geht es linker Hand ins Arbeitszimmer und weiter in den Technikraum. Auf der rechten Seite geht es in die offene Wohnküche mit Ausgang auf die Terrasse. Auch dieser Raum punktet durch die offene Gestaltung, da der Wohnbereich mit dem Küchen- sowie Essbereich verschmilzt. Angrenzend an die Küche befindet sich eine Speis bzw Abstellraumm von ca 4,5 m2. Über die Terrasse gelangt man in den südseitig ausgerichteten Garten von 156 m2.
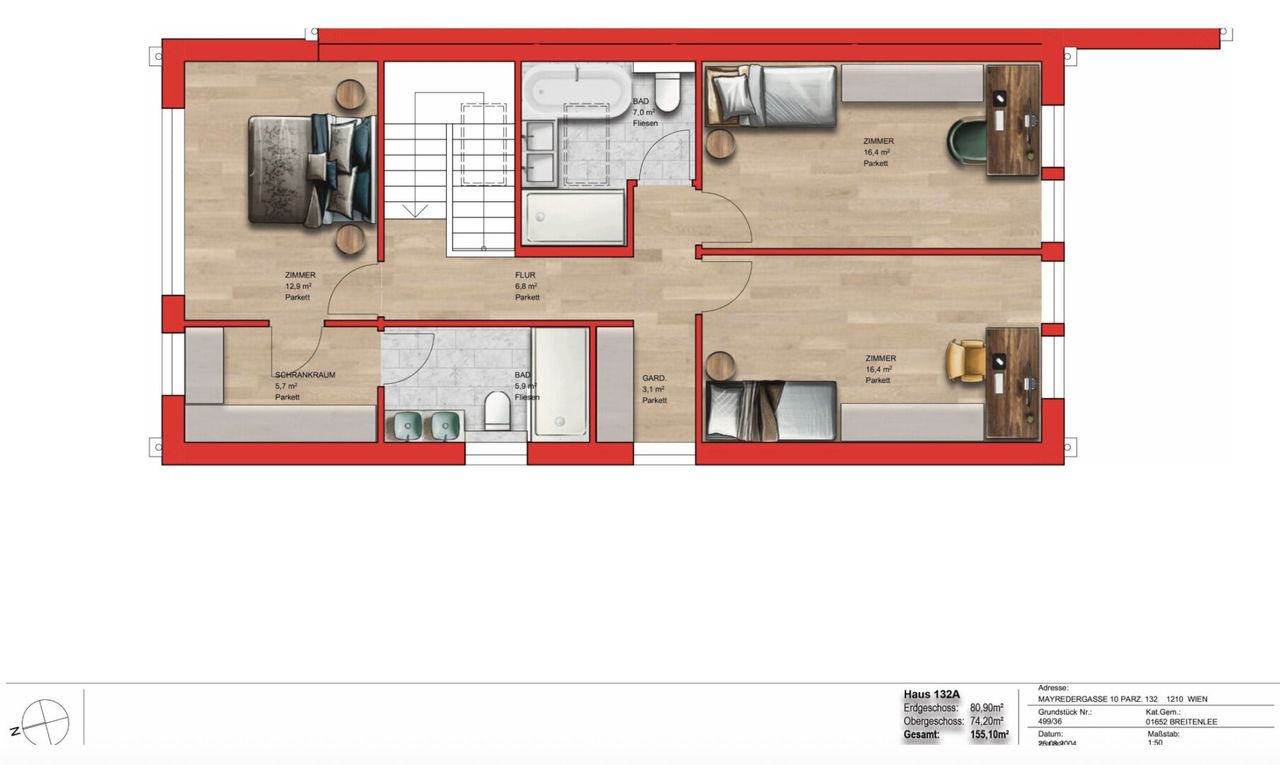
Obergeschoss:
Im Obergeschoss gelangen sie einerseits in den Masterbedroom mit angrenzendem Schrankraum sowie eigenem en-suite Bad & WC. Auf der anderen Seite erwarten Sie 2 helle gut geschnittene Zimmer mit jeweils über 16 m2 sowie ein weiteres Badezimmer mit Badewanne und WC.
Haus | 155 m2 Wohnfläche | 5-Zimmer | 156 m2 Gartenfläche | Terrasse 15 m2
Kaufpreis: auf Anfrage
Ausbaustufe: belagsfertig
Verfügbarkeit: sofort
Schlüsselfertige Variante: Gegen einen Aufpreis wird eine schlüsselfertige Endvariante mit individueller Ausstattung angeboten
Kosten:
Einschreibkosten ca 3500.- (einmalig)
jährliche Kosten ca 700.-
Highlights & Ausstattung
- EIGENTUM als eigenes Grundstück und eigener Einlagezahl im Grundbuch - kein Wohnungseigentum!
- familienfreundliche Siedlung in Breitenlee mit privatem Seezugang !
- Ziegel-Massiv Bauweise mit EPS-F Wärmeschutzfassade
- offene Wohnküche mit angrenzender Speis bzw Lagerraum
- Vorbereitung für Kücheninsel
- lichtdurchflutete Räume durch bodentiefe Fenster
- 3 Badezimmer und 3 WCs
- Masterschlafzimmer mit begehbarem Schrankraum sowie en-suite Badezimmer
- elektrisch betriebene Raffstores bzw. Rollläden bei Dachflächenfenstern
- Fussbodenheizung mit Möglichkeit zur Fußbodenkühlung in sämtlichen Räumen
- moderne Luft-Wasser Wärmepumpe mit Wasserspeicher
- südseitige Terrasse und Garten - genießen Sie die Sonne
- Vorbereitung Installation Alarmanlage und Klimaanlage
- Vorbereitung Installation Photovoltaik sowie E-Ladestation
- Blow Door Test - ausgezeichnete Werte
- Überwachung und Dokumentation sämtlicher Schritte durch externen Bausachverständigen
- 2x KFZ-Abstellplätze
Das Expose mit weiteren Fotos, Plänen sowie weiteren Detailauskünften zu dieser Immobilie erhalten Sie auf Anfrage!
Alle Angaben wurden uns direkt vom Eigentümer zur Verfügung gestellt, eine Haftung für deren Richtig- oder Vollständigkeit können wir daher nicht übernehmen.
Die abgebildeten Visualisierungen dienen lediglich zur besseren Veranschaulichung. Das tatsächliche Endprodukt kann von diesen Bildern abweichen. Das auf den Visualisierungen sichtbare Mobiliar ist nicht im Preis enthalten. Die tatsächliche Ausstattung entnehmen Sie bitte der Bau- und Ausstattungsbeschreibung. Die endgültigen Flächen entnehmen Sie den letzten Plänen. Abweichungen von maximal 2-3 % in den Flächen sind im Toleranzbereich.
Wir weisen darauf hin, dass zwischen dem Vermittler und dem zu vermittelnden Dritten ein familiäres oder wirtschaftliches Naheverhältnis besteht.
Der Vermittler ist als Doppelmakler tätig.
Infrastruktur / Entfernungen
Gesundheit
Arzt <1.000m
Apotheke <2.000m
Klinik <1.500m
Krankenhaus <4.000m
Kinder & Schulen
Schule <1.000m
Kindergarten <1.000m
Universität <2.000m
Höhere Schule <2.000m
Nahversorgung
Supermarkt <1.500m
Bäckerei <1.500m
Einkaufszentrum <4.000m
Sonstige
Geldautomat <2.000m
Bank <1.500m
Post <1.500m
Polizei <1.500m
Verkehr
Bus <500m
U-Bahn <500m
Straßenbahn <500m
Bahnhof <500m
Autobahnanschluss <3.500m
Angaben Entfernung Luftlinie / Quelle: OpenStreetMap
Objektdaten
Ausstattung
- Gäste-WC
- Bad mit Dusche
- Bad mit Badewanne
- Bad mit Fenster
- Fußbodenheizung
- Luftwärmepumpe
- Massiv Bauweise
Zustand
- Zustand
- ERSTBEZUG
- Baujahr
- 2025
- Alter
- NEUBAU
- HWB
- 42.9 kWh/m² pro Jahr
- Klasse HWB
- B
- fGEE
- 0.68
- Klasse fGEE
- A+
Flächen
- Anzahl der Zimmer
- 5.5
- Anzahl der Badezimmer
- 3
- Anzahl der sep. WCs
- 3
- Anzahl der Terrassen
- 1
- Stellplätze
- 2
- Nutzfläche
- 155m²
- Grundstücksfläche
- 320m²
- Gartenfläche
- 150m²
- Terrassenfläche
- 1m²
- Wohnfläche
- 155m²
Kosten
- Kaufpreis Brutto
- € 1.050.000,00
Häuser zum Kaufen in Österreich
- Bezirk Gemeindebezirk Donaustadt
- Bezirk Gemeindebezirk Donaustadt
- Bezirk Gemeindebezirk Donaustadt
- Bezirk Gemeindebezirk Floridsdorf
- Bezirk Gemeindebezirk Floridsdorf
- Bezirk Gemeindebezirk Floridsdorf
- Bezirk Gemeindebezirk Simmering
- Bezirk Gemeindebezirk Simmering
- Bezirk Gemeindebezirk Simmering
- Bezirk Gemeindebezirk Favoriten
Häuser zum Kaufen in Österreich
Andere Besucher suchen nach...
- Immobilien kaufen in 2601 Sollenau
- Immobilien in 4951 Polling im Innkreis, Oberösterreich
- Immobilien in 4742 Pram, Oberösterreich kaufen oder mieten
- Häuser kaufen in 2340 Mödling, Niederösterreich
- Häuser kaufen in 9421 Gemmersdorf, Kärnten
- Wohnungen / Eigentumswohnungen kaufen in 9431 St. Stefan, Kärnten
- Häuser kaufen in Bruck an der Leitha, Niederösterreich
- Immobilien mieten in Krems an der Donau, Niederösterreich
- Häuser zum Kaufen im Bezirk St. Pölten Land, Niederösterreich
- Büro / Praxen mieten in Rohrbach, Oberösterreich