Traumhaftes Wohngefühl - top ausgestattetes Haus mit gemütlicher Terrasse, Garten und 2 Autoabstellplätzen!
€ 407.000
€ 3.634 / m²
2604 Theresienfeld
-
ca. 2020
-
nach Absprache
Beschreibung
Wenn Sie sich auch den Traum von einem gemütlichen Eigenheim erfüllen möchten, dann ist diese Doppelhaushälfte bestimmt interessant für Sie! Diese moderne Doppelhaushälfte, mit einer ca. 112 m² Wohnfläche, bietet ein durchdachtes Raumkonzept, das sowohl Familien als auch Paare anspricht und wird Sie begeistern. Die offene Wohn-Essküche bildet das repräsentative Herzstück des Hauses und öffnet sich zur Terrasse sowie in den privaten Eigengarten – ein fließender Übergang zwischen Innen- und Außenraum. Eine Terrasse lädt zu gemütlichen Stunden im Freien ein. Der kleine, gepflegte Garten mit Gartenhütte bietet ausreichend Platz zum Entspannen, ohne dabei viel Pflegeaufwand zu verursachen. Dieses Doppelhaus vereint...
Wenn Sie sich auch den Traum von einem gemütlichen Eigenheim erfüllen möchten, dann ist diese Doppelhaushälfte bestimmt interessant für Sie!
Diese moderne Doppelhaushälfte, mit einer ca. 112 m² Wohnfläche, bietet ein durchdachtes Raumkonzept, das sowohl Familien als auch Paare anspricht und wird Sie begeistern.
Die offene Wohn-Essküche bildet das repräsentative Herzstück des Hauses und öffnet sich zur Terrasse sowie in den privaten Eigengarten – ein fließender Übergang zwischen Innen- und Außenraum.
Eine Terrasse lädt zu gemütlichen Stunden im Freien ein. Der kleine, gepflegte Garten mit Gartenhütte bietet ausreichend Platz zum Entspannen, ohne dabei viel Pflegeaufwand zu verursachen.
Dieses Doppelhaus vereint Großzügigkeit, Behaglichkeit und eine ruhige Lage. Ein idealer Rückzugsort für Alle, die das Besondere suchen.
DETAILS und HIGHLIGHTS:
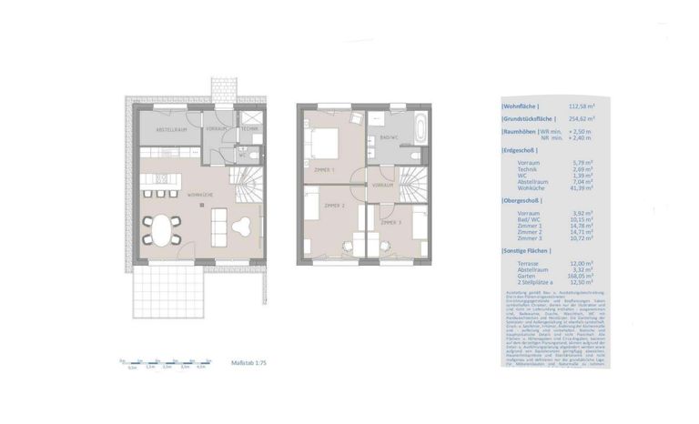
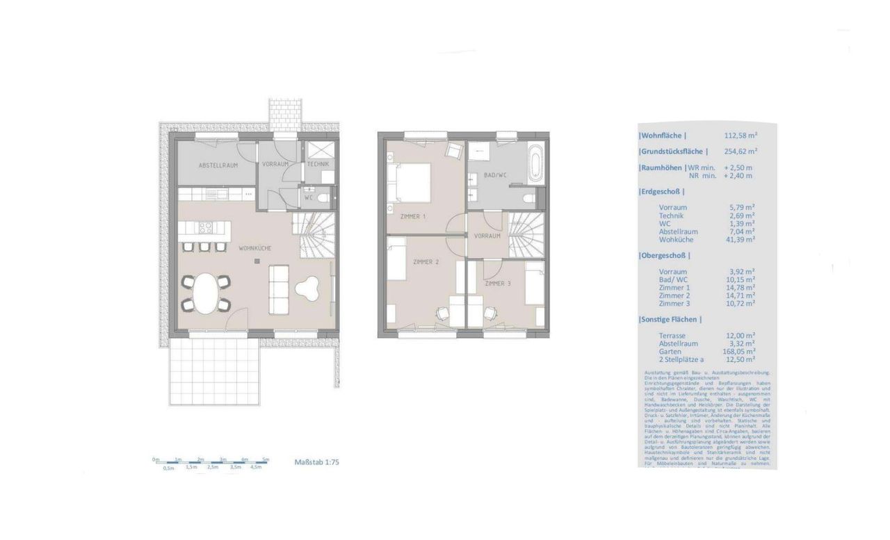
> Grundstücksfläche - ca. 254 m²
> Wohnfläche - ca. 112 m²
> ca. 168 m² Garten - südlich ausgerichtet
> Baujahr 2020
> insgesamt 4 Zimmer
> Terrasse – ca. 12 m²
> Gartenhütte
> 2 private PKW-Abstellplätze
AUSSTATTUNG:
> hochwertige maßgeschneiderte Küche vom Tischler mit Markengeräten
> hochwertige Möbel vom Tischler
> 3-fach verglaste Fenster
> alle Fenster sind mit über eine Fernbedienung steuerbaren Raffstores ausgestattet
> Heizung und WW-Aufbereitung mittels Luftwärmepumpe
> Fußbodenheizung im Erdgeschoss
> kontrollierte Wohnraumlüftung
> Vorrichtung für eine Photovoltaikanlage
> Vorbereitung auf Kühlung
> Wasser Entkalkungs- und Filteranlage für die Küche
> hochwertiges Parkett im ganzen Haus
RAUMAUFTEILUNG UND WOHNKOMFORT:
ERDGESCHOSS:
Das Erdgeschoss bildet den zentralen Wohnbereich des Hauses.
> Vorraum
> großzügiger Wohnbereich mit Küche und Zugang zur Terrasse und Garten
> separates WC
> Abstellraum - wird derzeit als Büro verwendet
> Technikraum mit Waschmaschinenanschluss
> Terrasse
OBERGESCHOSS:
Das Obergeschoss ist als privater Rückzugsort bestens geeignet.
> Vorraum
> 3 Zimmer
> Badezimmer mit Badewanne, Dusche und WC
LAGE:
Die Marktgemeinde Theresienfeld liegt im Bezirk Wiener Neustadt-Land.
Viele Möglichkeiten für Aktivitäten in der wunderschönen Natur machen Theresienfeld zu einem lebenswerten Ort.
Ob ausgedehnte Spaziergänge, Radtouren, Wanderungen oder entspannte Stunden im Grünen - hier beginnt die Erholung direkt vor der Haustür.
In Theresienfeld finden Sie Einkaufsmöglichkeiten, Kindergarten, Volksschule, Bank, Ärzte, Apotheke, Bahnhof, Bushaltestelle......
Die Anbindung an Wr. Neustadt ist hervorragend, sodass sowohl die Natur als auch städtische Annehmlichkeiten in greifbarer Nähe sind.
Verkehrsgünstige Lage - Nahe Wr. Neustadt!
Die Stadtgrenze Wien-Süd erreichen Sie in ca. 30 Autominuten.
Jetzt Besichtigungstermin vereinbaren und diese Immobilie vor Ort erleben!
Ich freue mich auf Sie!
Gerne kümmern wir uns um Ihre Finanzierung. Unsere Finanzexperten arbeiten mit verschiedenen Banken und können für Sie daher unverbindliche Angebote vorbereiten. Sprechen Sie Ihren Makler/in aktiv an.
Die Angaben zum Objekt basieren auf uns zur Verfügung gestellten Informationen.
Eine Haftung unsererseits ist hierfür ausgeschlossen. Detailfragen werden im Zuge von Besichtigungen besprochen, geklärt oder nachgereicht.
Wir bitten um Verständnis, dass wir aufgrund der Nachweispflicht gegenüber dem Eigentümer, nur Anfragen mit vollständigen Kontaktdaten (Name, Anschrift, TelefonNr., E-Mail) beantworten können.
Wir informieren Sie darüber, dass wir bei diesem Objekt eine Doppelmaklertätigkeit ausüben. (§ 5 Abs. 3 MaklerG).
Dieses Angebot ist unverbindlich und einer Zwischenverwertung vorbehalten.
Nebenkosten Kaufvertrag:
3 % vom Kaufpreis Provision zzgl. Mwst.
3,5 % Grunderwerbsteuer
1,1 % Grundbuchseintragungsgebühr
Kaufvertragserrichtung und Treuhandschaft lt. Tarifordnung des Vertragserrichters.
Der Vermittler ist als Doppelmakler tätig.
Diese moderne Doppelhaushälfte, mit einer ca. 112 m² Wohnfläche, bietet ein durchdachtes Raumkonzept, das sowohl Familien als auch Paare anspricht und wird Sie begeistern.
Die offene Wohn-Essküche bildet das repräsentative Herzstück des Hauses und öffnet sich zur Terrasse sowie in den privaten Eigengarten – ein fließender Übergang zwischen Innen- und Außenraum.
Eine Terrasse lädt zu gemütlichen Stunden im Freien ein. Der kleine, gepflegte Garten mit Gartenhütte bietet ausreichend Platz zum Entspannen, ohne dabei viel Pflegeaufwand zu verursachen.
Dieses Doppelhaus vereint Großzügigkeit, Behaglichkeit und eine ruhige Lage. Ein idealer Rückzugsort für Alle, die das Besondere suchen.
DETAILS und HIGHLIGHTS:
> Grundstücksfläche - ca. 254 m²
> Wohnfläche - ca. 112 m²
> ca. 168 m² Garten - südlich ausgerichtet
> Baujahr 2020
> insgesamt 4 Zimmer
> Terrasse – ca. 12 m²
> Gartenhütte
> 2 private PKW-Abstellplätze
AUSSTATTUNG:
> hochwertige maßgeschneiderte Küche vom Tischler mit Markengeräten
> hochwertige Möbel vom Tischler
> 3-fach verglaste Fenster
> alle Fenster sind mit über eine Fernbedienung steuerbaren Raffstores ausgestattet
> Heizung und WW-Aufbereitung mittels Luftwärmepumpe
> Fußbodenheizung im Erdgeschoss
> kontrollierte Wohnraumlüftung
> Vorrichtung für eine Photovoltaikanlage
> Vorbereitung auf Kühlung
> Wasser Entkalkungs- und Filteranlage für die Küche
> hochwertiges Parkett im ganzen Haus
RAUMAUFTEILUNG UND WOHNKOMFORT:
ERDGESCHOSS:
Das Erdgeschoss bildet den zentralen Wohnbereich des Hauses.
> Vorraum
> großzügiger Wohnbereich mit Küche und Zugang zur Terrasse und Garten
> separates WC
> Abstellraum - wird derzeit als Büro verwendet
> Technikraum mit Waschmaschinenanschluss
> Terrasse
OBERGESCHOSS:
Das Obergeschoss ist als privater Rückzugsort bestens geeignet.
> Vorraum
> 3 Zimmer
> Badezimmer mit Badewanne, Dusche und WC
LAGE:
Die Marktgemeinde Theresienfeld liegt im Bezirk Wiener Neustadt-Land.
Viele Möglichkeiten für Aktivitäten in der wunderschönen Natur machen Theresienfeld zu einem lebenswerten Ort.
Ob ausgedehnte Spaziergänge, Radtouren, Wanderungen oder entspannte Stunden im Grünen - hier beginnt die Erholung direkt vor der Haustür.
In Theresienfeld finden Sie Einkaufsmöglichkeiten, Kindergarten, Volksschule, Bank, Ärzte, Apotheke, Bahnhof, Bushaltestelle......
Die Anbindung an Wr. Neustadt ist hervorragend, sodass sowohl die Natur als auch städtische Annehmlichkeiten in greifbarer Nähe sind.
Verkehrsgünstige Lage - Nahe Wr. Neustadt!
Die Stadtgrenze Wien-Süd erreichen Sie in ca. 30 Autominuten.
Jetzt Besichtigungstermin vereinbaren und diese Immobilie vor Ort erleben!
Ich freue mich auf Sie!
Gerne kümmern wir uns um Ihre Finanzierung. Unsere Finanzexperten arbeiten mit verschiedenen Banken und können für Sie daher unverbindliche Angebote vorbereiten. Sprechen Sie Ihren Makler/in aktiv an.
Die Angaben zum Objekt basieren auf uns zur Verfügung gestellten Informationen.
Eine Haftung unsererseits ist hierfür ausgeschlossen. Detailfragen werden im Zuge von Besichtigungen besprochen, geklärt oder nachgereicht.
Wir bitten um Verständnis, dass wir aufgrund der Nachweispflicht gegenüber dem Eigentümer, nur Anfragen mit vollständigen Kontaktdaten (Name, Anschrift, TelefonNr., E-Mail) beantworten können.
Wir informieren Sie darüber, dass wir bei diesem Objekt eine Doppelmaklertätigkeit ausüben. (§ 5 Abs. 3 MaklerG).
Dieses Angebot ist unverbindlich und einer Zwischenverwertung vorbehalten.
Nebenkosten Kaufvertrag:
3 % vom Kaufpreis Provision zzgl. Mwst.
3,5 % Grunderwerbsteuer
1,1 % Grundbuchseintragungsgebühr
Kaufvertragserrichtung und Treuhandschaft lt. Tarifordnung des Vertragserrichters.
Der Vermittler ist als Doppelmakler tätig.
| Angaben gemäß gesetzlichem Erfordernis: | |||
| Klasse Heizwärmebedarf: | A | ||
| Klasse Faktor Gesamtenergieeffizienz: | A++ | ||
Objektdaten
Ausstattung
- Vollmöbliert
- Kabel/SAT-TV
- Zentralheizung
- Holz Bauweise
- Holz Bauweise
- Grüne Lage
- Kabel/SAT-TV
- Vollmöbliert
- Ländliche Lage
- Sonnige Lage
- Zentralheizung mit Wärmepumpe
- Holz Bauweise
- Kabel/SAT-TV
- Vollmöbliert
- Kabel/SAT-TV
- Luftwärmepumpe
- Holz Bauweise
- Kabel/SAT-TV
- Vollmöbliert
- Kabel/SAT-TV
Zustand
- Baujahr
- ca. 2020
Flächen
- Anzahl der Zimmer
- 4
- Anzahl der Badezimmer
- 1
- Anzahl der sep. WCs
- 2
- Anzahl der Terrassen
- 1
- Stellplätze
- 2
- Wohnfläche
- 112m²
- Grundstücksfläche
- 254m²
- Terrassenfläche
- 1m²
Kosten
- Kaufpreis
- € 407.000,00
Verwaltung
- Verfügbar ab
- nach Absprache
Häuser zum Kaufen im Umkreis von Theresienfeld
Häuser zum Kaufen in Österreich
Andere Besucher suchen nach...
- Immobilien kaufen in 2601 Sollenau
- Immobilien in 4951 Polling im Innkreis, Oberösterreich
- Immobilien in 4742 Pram, Oberösterreich kaufen oder mieten
- Häuser kaufen in 2340 Mödling, Niederösterreich
- Häuser kaufen in 9421 Gemmersdorf, Kärnten
- Wohnungen / Eigentumswohnungen kaufen in 9431 St. Stefan, Kärnten
- Häuser kaufen in Bruck an der Leitha, Niederösterreich
- Immobilien mieten in Krems an der Donau, Niederösterreich
- Häuser zum Kaufen im Bezirk St. Pölten Land, Niederösterreich
- Büro / Praxen mieten in Rohrbach, Oberösterreich