11.167 m² Betriebsbaugebiet - MB Widmung + . 2800 m² Nachbargrundstück-es gibt auch Planungsentwürfe KAUF ODER MIETE MÖGLICH
€ 3.351.650
4030 Linz
Beschreibung
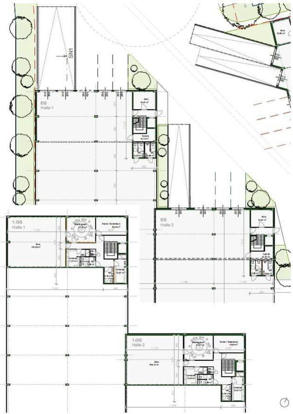
Die Projektliegenschaft befindet sich in Linz Süd, im Betriebsgebiet um den Franzosenhausweg mit perfekter Anbindung an das Linzer Stadtgebiet über A7 und an die Westautobahn A1 und umfasst 11167 m2. Das 2800 m2 große Nachbargrundstück wäre auch käuflich und hat auch MB Widmung. Es liegen Planungen für ein Projekt mit folgenden Parametern vor: Diese Planung könnte kostenfrei übernommen werden aber es ist natürlich kein Muss. Bauteil 1: Light Industrial / Logistics: 2.151 m² Office: 65 m² EG, 260 m² 1.OG - ges. 325 m² Bauteil 2: Light Industrial / Logistics: 1.140 m² Office: 65 m² EG, 258m2 1.OG - ges....
Die Projektliegenschaft befindet sich in Linz Süd, im Betriebsgebiet um den Franzosenhausweg mit perfekter Anbindung an das Linzer Stadtgebiet über A7 und an die Westautobahn A1 und umfasst 11167 m2. Das 2800 m2 große Nachbargrundstück wäre auch käuflich und hat auch MB Widmung.
Es liegen Planungen für ein Projekt mit folgenden Parametern vor: Diese Planung könnte kostenfrei übernommen werden aber es ist natürlich kein Muss.
Bauteil 1:
Light Industrial / Logistics: 2.151 m²
Office: 65 m² EG, 260 m² 1.OG - ges. 325 m²
Bauteil 2:
Light Industrial / Logistics: 1.140 m²
Office: 65 m² EG, 258m2 1.OG - ges. 323 m²
Bauteil 3:
Light Industrial / Logistics: 1.802 m²
Office: 121 m² EG, 232 - ges. 353 m²
Widmung: Gemischtes Baugebiet MB1 - für betriebliche Nutzung geeignet
Das Projekt kann in vorentwickeltem Zustand von einem Projektentwickler oder Eigennutzer erworben werden.
DAS GRUNDSTÜCK KANN ABER AUCH OHNE PLANUNG GEKAUFT WERDEN
Man könnte das Grundstück auf mieten
LEGEN SIE IHR ANGEBOT
Es liegen Planungen für ein Projekt mit folgenden Parametern vor: Diese Planung könnte kostenfrei übernommen werden aber es ist natürlich kein Muss.
Bauteil 1:
Light Industrial / Logistics: 2.151 m²
Office: 65 m² EG, 260 m² 1.OG - ges. 325 m²
Bauteil 2:
Light Industrial / Logistics: 1.140 m²
Office: 65 m² EG, 258m2 1.OG - ges. 323 m²
Bauteil 3:
Light Industrial / Logistics: 1.802 m²
Office: 121 m² EG, 232 - ges. 353 m²
Widmung: Gemischtes Baugebiet MB1 - für betriebliche Nutzung geeignet
Das Projekt kann in vorentwickeltem Zustand von einem Projektentwickler oder Eigennutzer erworben werden.
DAS GRUNDSTÜCK KANN ABER AUCH OHNE PLANUNG GEKAUFT WERDEN
Man könnte das Grundstück auf mieten
LEGEN SIE IHR ANGEBOT
Objektdaten
Flächen
- Grundstücksfläche
- 11.167m²
Kosten
- Kaufpreis
- € 3.351.650,00
Grundstücke zum Kaufen in Österreich
Grundstücke zum Kaufen in Österreich
Grundstücke zum Kaufen in Österreich
Andere Besucher suchen nach...
- Grundstücke kaufen in 3400 Weidlingbach
- Wohnungen kaufen in 4663 Laakirchen
- Häuser in 7471 Rechnitz
- Wohnungen in 2410 Hainburg an der Donau
- Häuser kaufen in 2432 Schwadorf
- Wohnungen kaufen in 3002 Purkersdorf
- Häuser in 3150 Wilhelmsburg
- Wohnungen kaufen in 3470 Engelmannsbrunn
- Grundstücke kaufen im Bezirk Mattersburg
- Grundstücke kaufen im Bezirk Gmunden