4 Zimmer - zentral begehbar - Balkon - vermietet bis 31.5.2028
-
1.6.28
Beschreibung
Die Wohnung im 5. Liftstock besticht durch das durchdachte Raumkonzept, das durch 4 getrennt begehbare Zimmer sowohl für Familien als auch für Wohngemeinschaften ideal geeignet ist.
Der Ostbalkon beschert bereits am Morgen die ersten Sonnenstrahlen, wo Sie Ihren Kaffee im Freien genießen und in den Tag starten können.
Zusätzlichen Komfort bieten die Badewanne, getrennte Toilette, getrennt begehbare Zimmer, der Personenaufzug uvm...
Die Wohnung befindet sich in einer gepflegten Wohnanlage, die 1974 errichtet wurde.
Im Jahr 2014 wurde eine thermische Sanierung der Fassade durchgeführt und sämtliche Fenster getauscht.
Die Wohnung selbst wurde 2020 generalsaniert und seitdem um netto 1.037,93 EUR...
Die Wohnung im 5. Liftstock besticht durch das durchdachte Raumkonzept, das durch 4 getrennt begehbare Zimmer sowohl für Familien als auch für Wohngemeinschaften ideal geeignet ist.
Der Ostbalkon beschert bereits am Morgen die ersten Sonnenstrahlen, wo Sie Ihren Kaffee im Freien genießen und in den Tag starten können.
Zusätzlichen Komfort bieten die Badewanne, getrennte Toilette, getrennt begehbare Zimmer, der Personenaufzug uvm...
Die Wohnung befindet sich in einer gepflegten Wohnanlage, die 1974 errichtet wurde.
Im Jahr 2014 wurde eine thermische Sanierung der Fassade durchgeführt und sämtliche Fenster getauscht.
Die Wohnung selbst wurde 2020 generalsaniert und seitdem um netto 1.037,93 EUR (exklusive BK, Heizkosten, Warmwasser) vermietet.
Monatliche Kosten (inklusive vorgeschriebener USt):
Betriebskosten 301,20 EUR
Heizkosten 121,94 EUR
Warmwasser 77,10 EUR
Reparaturrücklage 64,83 EUR
Das aufrechte Mietverhältnis ist befristet und endet am 31.5.2028. Danach können Sie erneut vermieten oder die Wohnung auch selbst nutzen.
Das Objekt unterliegt dem frei vereinbaren Hauptmietzins und ist daher in Bezug auf die Höhe der Miete keinen Beschränkungen unterworfen.
Die ersichtlichen Fotos sind aus dem Jahr 2020, also nach der Generalsanierung und vor der Vermietung.
Auch ein praktisches Kellerabteil ist vorhanden.
Auch ein Fahrrad- und Kinderwagenabstellraum ist vorhanden.
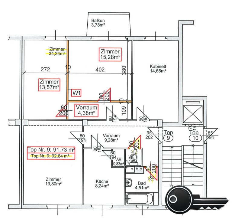
| Zimmer 1 | 14,65 m2 |
| - Vorraum 1 | 9,28 m2 |
| - Vorraum 2 | 4,38 m2 |
| - WC | 1,19 m2 |
| - Bad | 4,51 m2 |
| - Küche | 8,24 m2 |
| - Zimmer 2 | 19,8 m2 |
| - Zimmer 3 | 13,57 m2 |
| - Zimmer 4 | 15,28 m2 |
| - Abstellraum | 0,83 m2 |
| = Nutzfläche | 91,73 m2 |
| - Balkon | 3,78 m2 |
| - Kellerabteil | 8,85 m2 |
| = Gesamtfläche | 104,36 m2 |
Durch die Nähe zum Bahnhof Hernals (900m bzw. 13 Min zu Fuß oder 3 Min mit dem Fahrrad) ist die Wohnung sehr gut an das öffentliche Verkehrsnetz angeschlossen. Auch die Straßenbahn vor der Haustür bringt Sie über die Technische Universität Wien, die Äußere Mariahilfer Straße und den Westbahnhof ohne Umsteigen bis zum Volkstheater.
Aufgrund des aufrechten Mietverhältnisses müssen Besichtigungen mit den Mietern koordiniert werden und können daher nicht jederzeit spontan stattfinden.
Fragen Sie mich einfach nach dem nächst möglichen Besichtigungstermin, ich freue mich auf Ihre Kontaktaufnahme!
Noch nichts gefunden? Wir informieren Sie über geeignete Immobilienangebote noch vor allen anderen.
Legen Sie jetzt Ihren individuellen Suchagenten unter folgendem Link an. Wir schicken Ihnen passende Immobilien exklusiv vorab zu.
Suchagent anlegen - https://niki-ochsenhofer.service.immo/registrieren/de
Der Vermittler ist als Doppelmakler tätig.
Objektdaten
Ausstattung
- WG geeignet
- Rolladen
- Bad mit Badewanne
- Parkettboden
- Zentralheizung
- Befeuerung mit Gas
- Personen Fahrstuhl
- Ausrichtung Balkon/Terrasse - Ost
Dokumente / Links
Zustand
- Baujahr
- 1974
- HWB
- 28.7 kWh/m² pro Jahr
- Klasse HWB
- B
- fGEE
- 1.07
- Klasse fGEE
- B
Flächen
- Anzahl der Zimmer
- 4
- Anzahl der Badezimmer
- 1
- Anzahl der sep. WCs
- 1
- Anzahl der Balkone
- 1
- Wohnfläche
- 92m²
- Nutzfläche
- 96m²
- Gesamtfläche
- 104m²
- Kellerfläche
- 9m²
Kosten
- Kaufpreis Brutto
- € 329.000,00
- Betriebskosten
- € 273,82
- Heizkosten
- € 171,71
- Sonstige Kosten
- € 64,83
Verwaltung
- Verfügbar ab
- 1.6.28
Wohnungen zum Kaufen in Österreich
- Bezirk Gemeindebezirk Ottakring
- Bezirk Gemeindebezirk Ottakring
- Bezirk Gemeindebezirk Ottakring
- Bezirk Gemeindebezirk Penzing
- Bezirk Gemeindebezirk Penzing
- Bezirk Gemeindebezirk Penzing
- Bezirk Gemeindebezirk Hernals
- Bezirk Gemeindebezirk Hernals
- Bezirk Gemeindebezirk Hernals
- Bezirk Gemeindebezirk Währing
Wohnungen zum Kaufen in Österreich
Andere Besucher suchen nach...
- Immobilien kaufen in 2601 Sollenau
- Immobilien in 4951 Polling im Innkreis, Oberösterreich
- Immobilien in 4742 Pram, Oberösterreich kaufen oder mieten
- Häuser kaufen in 2340 Mödling, Niederösterreich
- Häuser kaufen in 9421 Gemmersdorf, Kärnten
- Wohnungen / Eigentumswohnungen kaufen in 9431 St. Stefan, Kärnten
- Häuser kaufen in Bruck an der Leitha, Niederösterreich
- Immobilien mieten in Krems an der Donau, Niederösterreich
- Häuser zum Kaufen im Bezirk St. Pölten Land, Niederösterreich
- Büro / Praxen mieten in Rohrbach, Oberösterreich