Auf den Spuren der Kaiserin - Das Geheimnis eines Erfolges - Landhaus mit Park
€ 7.499.000
€ 7.978 / m²
1230 Wien
Beschreibung
Das Geheimnis eines Erfolges - Hochwertiges Landhaus mit Park In Inzersdorf an der Liesing befindet sich das denkmalgeschützte Landhaus mit spätbiedermeierlich-frühhistorichen Formen, welches um ca.1840 bis 1850 errichtet wurde. Der Kern stammt aus der Mitte des 18.Jahrhunderts. Das freistehende, langgestreckte Gebäude liegt innerhalb des Parks. Die komplette Anlage ist in einem sehr guten Zustand, da sie ca.1989 komplett renoviert wurde und danach immer auf sehr hohen Niveau erhalten blieb. Objektdaten: Landhaus mit Park / Bürogebäude Nutzfläche: ca.940 m2 Grundstücksfläche: ca.3.500 m2 Baujahr: ca.1840-1850 Zustand: hervorragender Zustand Dieses Objekt bietet beste Verkehrsanbietung, A 23 Sterngasse in ca.3 Minuten, Buslinie 66a in...
Das Geheimnis eines Erfolges - Hochwertiges Landhaus mit Park
In Inzersdorf an der Liesing befindet sich das denkmalgeschützte Landhaus mit spätbiedermeierlich-frühhistorichen Formen, welches um ca.1840 bis 1850 errichtet wurde. Der Kern stammt aus der Mitte des 18.Jahrhunderts. Das freistehende, langgestreckte Gebäude liegt innerhalb des Parks. Die komplette Anlage ist in einem sehr guten Zustand, da sie ca.1989 komplett renoviert wurde und danach immer auf sehr hohen Niveau erhalten blieb.
Objektdaten:
Landhaus mit Park / Bürogebäude
Nutzfläche: ca.940 m2
Grundstücksfläche: ca.3.500 m2
Baujahr: ca.1840-1850
Zustand: hervorragender Zustand
Dieses Objekt bietet beste Verkehrsanbietung, A 23 Sterngasse in ca.3 Minuten, Buslinie 66a in ca.2 Minuten erreichbar.
Das Objekt verfügt über 16 schattige Parkplätze.
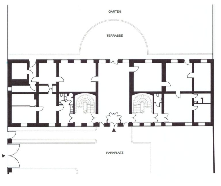
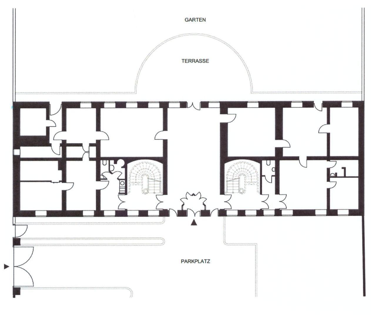
Dieses schlossähnliche Gebäude wird derzeit als Bürogebäude genutz. Es sind diverse Nebenräume, Toiletten, Bäder, Gastronomie sowie der exklusive Empfangsbereich verfügbar. Die Stockwerke sind mit zwei einzigartigen Treppenhäuser verbunden.
Sehr gerne steht Ihnen Herr Martin Wicho für weitere Informationen unter wicho@dimagimmobilien sowie unter 0660/1606000 zur Verfügung. Besichtigungen sind selbstverständlich sehr gerne möglich.
Vielen Dank.
In Inzersdorf an der Liesing befindet sich das denkmalgeschützte Landhaus mit spätbiedermeierlich-frühhistorichen Formen, welches um ca.1840 bis 1850 errichtet wurde. Der Kern stammt aus der Mitte des 18.Jahrhunderts. Das freistehende, langgestreckte Gebäude liegt innerhalb des Parks. Die komplette Anlage ist in einem sehr guten Zustand, da sie ca.1989 komplett renoviert wurde und danach immer auf sehr hohen Niveau erhalten blieb.
Objektdaten:
Landhaus mit Park / Bürogebäude
Nutzfläche: ca.940 m2
Grundstücksfläche: ca.3.500 m2
Baujahr: ca.1840-1850
Zustand: hervorragender Zustand
Dieses Objekt bietet beste Verkehrsanbietung, A 23 Sterngasse in ca.3 Minuten, Buslinie 66a in ca.2 Minuten erreichbar.
Das Objekt verfügt über 16 schattige Parkplätze.
Dieses schlossähnliche Gebäude wird derzeit als Bürogebäude genutz. Es sind diverse Nebenräume, Toiletten, Bäder, Gastronomie sowie der exklusive Empfangsbereich verfügbar. Die Stockwerke sind mit zwei einzigartigen Treppenhäuser verbunden.
Sehr gerne steht Ihnen Herr Martin Wicho für weitere Informationen unter wicho@dimagimmobilien sowie unter 0660/1606000 zur Verfügung. Besichtigungen sind selbstverständlich sehr gerne möglich.
Vielen Dank.
Objektdaten
Ausstattung
- WG geeignet
- Räume veränderbar
- Klimatisiert
- Gartennutzung
- Kabel/SAT-TV
- Wintergarten
- Alarmanlage
- Aussichtslage
- Aussichtslage Unverbaubar
- Bad
- Boden
- Bus
- Denkmalgeschützt
- Eisenbahn
- Geschirrspüler
- Sonstiges
- Glaskeramikfeld
- Grüne Lage
- Kabel/SAT-TV
- Küche
- Räume veränderbar
- Kabel/SAT-TV
- Schnellbahn
- Alarmanlage
- Sicherheitsdienst
- Sonnenschutz
- Sonnige Lage
- Stadtrand
- Straßenbahn
- Villengegend
- Wintergarten
Zustand
- Zustand
- GEPFLEGT
- Baujahr
- ca. 1850
- Altlasten
- Keine, lastenfreie Übergabe
- Alter
- ALTBAU
Flächen
- Anzahl der Zimmer
- 9
- Stellplätze
- 16
- Wohnfläche
- 940m²
- Nutzfläche
- 940m²
- Grundstücksfläche
- 3.500m²
Kosten
- Kaufpreis
- € 7.499.000,00
- Nebenkosten
- € 2.130,00
- Betriebskosten Brutto
- € 2.130,00
Verwaltung
- Verfügbar ab
- nach Vereinbarung
- Denkmalgeschützt
- Ja
- Zur gewerbl. Nutzung
- Ja
Häuser zum Kaufen in Österreich
Häuser zum Kaufen in Österreich
Andere Besucher suchen nach...
- Immobilien kaufen in 2601 Sollenau
- Immobilien in 4951 Polling im Innkreis, Oberösterreich
- Immobilien in 4742 Pram, Oberösterreich kaufen oder mieten
- Häuser kaufen in 2340 Mödling, Niederösterreich
- Häuser kaufen in 9421 Gemmersdorf, Kärnten
- Wohnungen / Eigentumswohnungen kaufen in 9431 St. Stefan, Kärnten
- Häuser kaufen in Bruck an der Leitha, Niederösterreich
- Immobilien mieten in Krems an der Donau, Niederösterreich
- Häuser zum Kaufen im Bezirk St. Pölten Land, Niederösterreich
- Büro / Praxen mieten in Rohrbach, Oberösterreich