baugrundstücke in katsdorf – erschließung fertig | baustart ab mai möglich | nur noch 3 verfügbar
Beschreibung
📍 die letzten 3 grundstücke in ruhstetten
in ruhstetten bei katsdorf ist ein wohngebiet entstanden, bei dem ein entscheidender schritt bereits abgeschlossen ist: die erschließung ist fertiggestellt, die straße ist befahrbar.
das bedeutet für käufer: einreichung und baustart sind ab mai realistisch möglich.
gleichzeitig zeigt sich aktuell eine entwicklung, die viele unterschätzen: die kosten im tiefbau und in der infrastruktur sind spürbar gestiegen – und werden sich auch bei zukünftigen projekten weiter auswirken.
hier kaufen sie kein projekt in planung, sondern ein grundstück, das bereits vorbereitet ist.
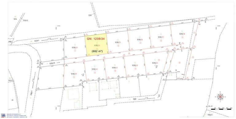
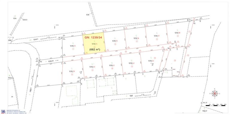
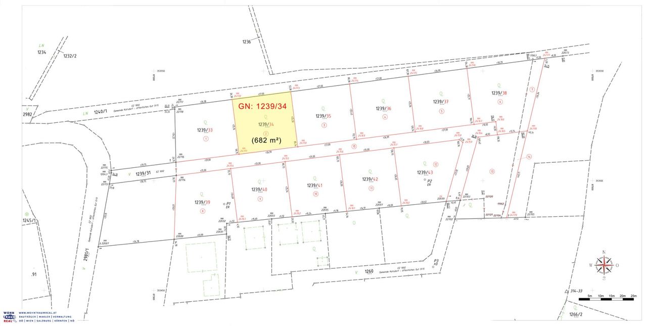
aktuell stehen nur noch die parzellen 1239/33, 1239/34 und 1239/35 zur verfügung.
ein...
📍 die letzten 3 grundstücke in ruhstetten
in ruhstetten bei katsdorf ist ein wohngebiet entstanden, bei dem ein entscheidender schritt bereits abgeschlossen ist:
die erschließung ist fertiggestellt, die straße ist befahrbar.
das bedeutet für käufer:
einreichung und baustart sind ab mai realistisch möglich.
gleichzeitig zeigt sich aktuell eine entwicklung, die viele unterschätzen:
die kosten im tiefbau und in der infrastruktur sind spürbar gestiegen – und werden sich auch bei zukünftigen projekten weiter auswirken.
hier kaufen sie kein projekt in planung, sondern ein grundstück, das bereits vorbereitet ist.
aktuell stehen nur noch die parzellen 1239/33, 1239/34 und 1239/35 zur verfügung.
ein weiterer wesentlicher punkt:
in ruhstetten sind für die nächsten 10 bis 15 jahre keine weiteren widmungen geplant.
die verfügbarkeit ist absehbar begrenzt.
sie entscheiden selbst, wie ihr zukünftiges zuhause aussehen soll.
☀️ „der beste zeitpunkt ein haus zu bauen war vor 20 jahren. der zweitbeste ist, wenn alles bereit ist.“
Der Vermittler ist als Doppelmakler tätig.
Infrastruktur / Entfernungen
Gesundheit
Arzt <3.500m
Apotheke <5.500m
Klinik <8.500m
Kinder & Schulen
Schule <3.000m
Kindergarten <3.000m
Höhere Schule <6.500m
Universität <6.500m
Nahversorgung
Supermarkt <3.000m
Bäckerei <3.000m
Einkaufszentrum <8.500m
Sonstige
Bank <3.000m
Geldautomat <3.000m
Post <3.500m
Polizei <5.000m
Verkehr
Bus <500m
Bahnhof <1.500m
Autobahnanschluss <6.000m
Angaben Entfernung Luftlinie / Quelle: OpenStreetMap
Objektdaten
Flächen
- Grundstücksfläche
- 682m²
Kosten
- Kaufpreis Brutto
- € 182.776,00
Grundstücke zum Kaufen im Umkreis von Katsdorf
Grundstücke zum Kaufen in Österreich
Andere Besucher suchen nach...
- Immobilien kaufen in 2601 Sollenau
- Immobilien in 4951 Polling im Innkreis, Oberösterreich
- Immobilien in 4742 Pram, Oberösterreich kaufen oder mieten
- Häuser kaufen in 2340 Mödling, Niederösterreich
- Häuser kaufen in 9421 Gemmersdorf, Kärnten
- Wohnungen / Eigentumswohnungen kaufen in 9431 St. Stefan, Kärnten
- Häuser kaufen in Bruck an der Leitha, Niederösterreich
- Immobilien mieten in Krems an der Donau, Niederösterreich
- Häuser zum Kaufen im Bezirk St. Pölten Land, Niederösterreich
- Büro / Praxen mieten in Rohrbach, Oberösterreich