Bergidyll- Ferienwohnungen Nähe Mayrhofen (Baubeginn erfolgt !)
-
Erstbezug
-
2024
Beschreibung
Hier gelangen Sie zur Homepage: https://bergidyll-zillertal.at
Hier gelangen Sie zur Outside-Tour: http://tour.partner4immo.at/ZCAL
Hier gelangen Sie zum Video: https://youtu.be/_0WMBLgRLH0v
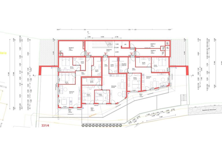
Auf halber Berghöhe gelegen, an der Zillertaler Höhenstraße, mit atemberaubender unverbaubarer Aussicht auf das Zillertal und das umliegende Bergpanorama, entsteht diese kleine Anlage mit insgesamt 8 Ferienimmobilien (kein By-to-let Modell oder Investorenmodell !!).
Das Appartementshaus wird als Neubau inmitten unverbauter Natur errichtet.
Die Einheiten umfassen 1 bis 2 Schlafzimmerappartements und zwei Maisonetten-Penthouseappartements mit Sichtdachstuhl in den zwei Dachgeschossen.
Alle Einheiten mit zwei Schlafzimmern verfügen über zwei Badezimmer.
Die Ferienwohnungen zeichnen sich durch eine...
Hier gelangen Sie zur Homepage: https://bergidyll-zillertal.at
Hier gelangen Sie zur Outside-Tour: http://tour.partner4immo.at/ZCAL
Hier gelangen Sie zum Video: https://youtu.be/_0WMBLgRLH0v
Auf halber Berghöhe gelegen, an der Zillertaler Höhenstraße, mit atemberaubender unverbaubarer Aussicht auf das Zillertal und das umliegende Bergpanorama, entsteht diese kleine Anlage mit insgesamt 8 Ferienimmobilien (kein By-to-let Modell oder Investorenmodell !!).
Das Appartementshaus wird als Neubau inmitten unverbauter Natur errichtet.
Die Einheiten umfassen 1 bis 2 Schlafzimmerappartements und zwei Maisonetten-Penthouseappartements mit Sichtdachstuhl in den zwei Dachgeschossen.
Alle Einheiten mit zwei Schlafzimmern verfügen über zwei Badezimmer.
Die Ferienwohnungen zeichnen sich durch eine sehr hochwertige Ausstattung aus. Holz-Alufenster, Vinyl- oder Parkettboden, elektrische Raffstore, hochwertige Fliesen, Internetanschluss in jedem Raum, sind nur einige der bereits im Kaufpreis inkludierten Standardfeatures.
Die schlüsselfertigen Appartements werden über eine Bodenheizung mittels Sole-Wasser-Wärmepumpe (Erdwärme) beheizt.
Zur Ausstattung gehören ebenfalls moderne Bäder mit eben begehbarer Regenwalddusche.
Ein moderner Skiraum mit Skischuhheizung, sowie ein Fahrradraum mit Vorrichtungen für E-Bikes sowie ein Personenaufzug über alle Etagen (ausser DG 2) runden das Angebot ab.
Weiters stehen Tiefgaragenabstellplätze auf zwei Etagen zur Verfügung. Diese müssen separat je nach Appartementgröße dazu gekauft werden.
Die Bus-/Skibushaltestelle befindet sich in unmittelbarer Nähe des Hauses.
Der in unmittelbarer Nachbarschaft gelegene Berggasthof sorgt für das leibliche Wohl Ihrer Gäste.
Die Appartements sind zur gewerblich touristischen Vermietung zugelassen!
Die Firma partner4immo betreut und begleitet Sie durch die komplette Kaufabwicklung, den Bauprozess und berät Sie in allen erforderlichen Belangen für die Vermietung.
Unser Netzwerk an professionellen Dienstleistern wie Steuerberater, Finanzierungsexperte, Einrichtungshaus und Vermietservice steht Ihnen auf Wunsch vollumfänglich zur Seite.
Unsere langjährige Erfahrung in diesem Segment, garantiert Ihnen ein sorgloses rundum Service, sowie eine sorgenfreie und erfolgreiche Vermietung mit hoher Rendite!
Hinweis: Bei diesem Modell handelt es sich um kein By-to-let-, Investoren-, oder Betreibermodell. Der Eigentümer behält immer die volle Kontrolle über seine Vermietung und kann selbst vermieten oder vermieten lassen, unabhängig von anderen Eigentümern im Haus!
Die Wohnungen verfügen über KEINE Freizeitwohnsitzgenehmigung!
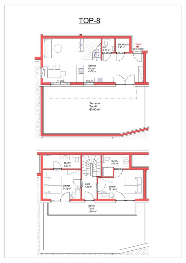
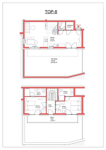
Dieses Maisonetten-Penthouse- Ferienappartement Top 08 bietet den ultimativen Ausblick, gepaart mit dem Gefühl eines Minihauses auf einem Haus und erstreckt sich über das erste und zweite Dachgeschoss. Es besteht aus einem großen Wohn- Küchenbereich, zwei Schlafzimmern für Doppelbett (beide mit en-suite-Bad) und zwei komplett ausgestatteten Badezimmern (lt. BAB) mit WC, Waschbecken, Waschbeckenunterschrank, LED Spiegel und eben begehbarer Rainshower-Dusche. Ein Gäste-WC sowie ein kleiner Abstellraum bieten höchsten Komfort.
Bodentiefe Fenster im Wohnzimmer sowie in beiden Schlafzimmern sorgen für ein atemberaubendes Bergpanorama.
Die 60m² große Terrasse, welche vom Wohnzimmer aus zugänglich ist, als auch der 12,80m² große Balkon für beide Schlafzimmer, sowie der Sichtdachstuhl in beiden Schlafzimmern und Treppenhaus, sorgen für erlesene Exclusivität. Die Terrasse im Wohngeschoss bietet genügend Platz für einen Speisetisch und Gartenmöbel, sowie statische Auslegung für einen 4-5 Personen Jacuzzi (500kg/m² max.).
Das Appartement besticht durch seine hochwertige Ausstattung und noch individuelle Mitgestaltungsmöglichkeit.
Der Aufzug bis zur unteren Etage bietet höchste Privatsphäre.
Ein großer Kellerraum auf der unteren Etage direkt hinter dem Appartement rundet das Angebot ab.
Es müssen 3 TG Plätze zum Preis von je 25.300 EUR netto zzgl. MwSt.zusätzlich miterworben werden.
Die angegebenen Verkaufspreise verstehen sich netto zzgl. gesetzlicher MwSt.
Die MwSt. kann durch die gewerbliche Nutzung wieder zurückerstattet werden.
Sämtliche Kaufnebenkosten werden vom Bruttokaufpreis (Netto-KP zzgl. MwSt.) berechnet.
Infrastruktur / Entfernungen
Gesundheit
Arzt <1.600m
Apotheke <1.475m
Klinik <4.825m
Kinder & Schulen
Schule <550m
Kindergarten <750m
Nahversorgung
Supermarkt <1.200m
Bäckerei <1.075m
Sonstige
Bank <1.150m
Geldautomat <1.150m
Post <1.225m
Polizei <4.125m
Verkehr
Bus <225m
Bahnhof <1.450m
Angaben Entfernung Luftlinie / Quelle: OpenStreetMap
Objektdaten
Ausstattung
- Fußbodenheizung
- Erdwärme
- Personen Fahrstuhl
- Massiv Bauweise
Dokumente / Links
Zustand
- Zustand
- ERSTBEZUG
- Baujahr
- 2024
- Alter
- NEUBAU
- HWB
- 49 kWh/m² pro Jahr
- Klasse HWB
- B
- fGEE
- 0.68
- Klasse fGEE
- A+
Flächen
- Anzahl der Zimmer
- 3
- Anzahl der Badezimmer
- 2
- Anzahl der sep. WCs
- 3
- Anzahl der Terrassen
- 2
- Wohnfläche
- 94m²
- Kellerfläche
- 15m²
- Terrassenfläche
- 2m²
Kosten
Verwaltung
- Ferienimmobilie
- Ja
Wohnungen zum Kaufen im Umkreis von Hippach
Wohnungen zum Kaufen in Österreich
Andere Besucher suchen nach...
- Immobilien kaufen in 2601 Sollenau
- Immobilien in 4951 Polling im Innkreis, Oberösterreich
- Immobilien in 4742 Pram, Oberösterreich kaufen oder mieten
- Häuser kaufen in 2340 Mödling, Niederösterreich
- Häuser kaufen in 9421 Gemmersdorf, Kärnten
- Wohnungen / Eigentumswohnungen kaufen in 9431 St. Stefan, Kärnten
- Häuser kaufen in Bruck an der Leitha, Niederösterreich
- Immobilien mieten in Krems an der Donau, Niederösterreich
- Häuser zum Kaufen im Bezirk St. Pölten Land, Niederösterreich
- Büro / Praxen mieten in Rohrbach, Oberösterreich