Erstbezug - Wohnung, Kleinstadtidylle im Umarmung des Wienerwaldes - Erdgeschoss
€ 648.000
€ 7.633 / m²
2380 Perchtoldsdorf
-
Erstbezug
Beschreibung
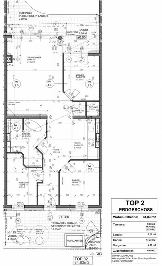
Diese einzigartige Erdgeschosswohnung bietet exklusiven Wohnkomfort in einer begehrten Lage. Mit einer Wohnfläche von ca. 84,83 m² befindet sich im Erstbezug, und garantiert modernsten Wohnluxus. Nachhaltigkeit und Qualität stehen hier im Mittelpunkt. Highlights: 4 Zimmer, 1 Badezimmer, 1 WC 1 Loggien und 2 Terrassen mit einer Gesamtfläche von ca. 34,78 m² Fußbodenheizung für behagliche Wärme Luft/Wasser Wärmepumpe für umweltfreundliche Heizung Energiewert: HWB 17,00 kWh/(m²·a) - Klasse A Lage und Infrastruktur Die Lage in Perchtoldsdorf, nur einen Schritt von Wien entfernt, ermöglicht eine ausgezeichnete Anbindung sowohl im öffentlichen Verkehr als auch im Individualverkehr. Die Bushaltestelle "Schweglergasse" und die Nähe zu verschiedenen...
Diese einzigartige Erdgeschosswohnung bietet exklusiven Wohnkomfort in einer begehrten Lage. Mit einer Wohnfläche von ca. 84,83 m² befindet sich im Erstbezug, und garantiert modernsten Wohnluxus. Nachhaltigkeit und Qualität stehen hier im Mittelpunkt.
Highlights:
4 Zimmer, 1 Badezimmer, 1 WC
1 Loggien und 2 Terrassen mit einer Gesamtfläche von ca. 34,78 m²
Fußbodenheizung für behagliche Wärme
Luft/Wasser Wärmepumpe für umweltfreundliche Heizung
Energiewert: HWB 17,00 kWh/(m²·a) - Klasse A
Lage und Infrastruktur
Die Lage in Perchtoldsdorf, nur einen Schritt von Wien entfernt, ermöglicht eine ausgezeichnete Anbindung sowohl im öffentlichen Verkehr als auch im Individualverkehr. Die Bushaltestelle "Schweglergasse" und die Nähe zu verschiedenen Buslinien (253, 256, 257, 258, 259) gewährleisten eine schnelle Verbindung zum Bahnhof Wien-Liesing (Südbahn) in 3-5 Fahrminuten.
Für Naturfreunde bieten sich nahegelegene Parks wie die Perchtoldsdorfer Heide oder der Karl Zechmeister-Teich an. Die Bundesstraßen 12, 13 und 13a sowie die Südautobahn A2 und Außenringautobahn A21 sind ebenfalls gut erreichbar.
Kaufbedingungen
Kaufpreis: 648.000 EUR.
Garagenplatz in der hauseigenen Tiefgarage: 28.000 EUR.
Die Käuferprovision beträgt 3% des Kaufpreises zuzüglich 20% Umsatzsteuer.
Entdecken Sie Ihren exklusiven Rückzugsort am Rande des Wienerwalds!
Highlights:
4 Zimmer, 1 Badezimmer, 1 WC
1 Loggien und 2 Terrassen mit einer Gesamtfläche von ca. 34,78 m²
Fußbodenheizung für behagliche Wärme
Luft/Wasser Wärmepumpe für umweltfreundliche Heizung
Energiewert: HWB 17,00 kWh/(m²·a) - Klasse A
Lage und Infrastruktur
Die Lage in Perchtoldsdorf, nur einen Schritt von Wien entfernt, ermöglicht eine ausgezeichnete Anbindung sowohl im öffentlichen Verkehr als auch im Individualverkehr. Die Bushaltestelle "Schweglergasse" und die Nähe zu verschiedenen Buslinien (253, 256, 257, 258, 259) gewährleisten eine schnelle Verbindung zum Bahnhof Wien-Liesing (Südbahn) in 3-5 Fahrminuten.
Für Naturfreunde bieten sich nahegelegene Parks wie die Perchtoldsdorfer Heide oder der Karl Zechmeister-Teich an. Die Bundesstraßen 12, 13 und 13a sowie die Südautobahn A2 und Außenringautobahn A21 sind ebenfalls gut erreichbar.
Kaufbedingungen
Kaufpreis: 648.000 EUR.
Garagenplatz in der hauseigenen Tiefgarage: 28.000 EUR.
Die Käuferprovision beträgt 3% des Kaufpreises zuzüglich 20% Umsatzsteuer.
Entdecken Sie Ihren exklusiven Rückzugsort am Rande des Wienerwalds!
| Angaben gemäß gesetzlichem Erfordernis: | |||
| Heizwärmebedarf: | 17.0 kWh/(m²a) | ||
| Klasse Heizwärmebedarf: | A | ||
Objektdaten
Ausstattung
- Gartennutzung
- Unterkellert
- Fußbodenheizung
- Personen Fahrstuhl
- Bus
- Fußbodenheizung
- Grüne Lage
- Sonstiges
- Ruhe Lage
- Sonnige Lage
- Stadtzentrum
- Waldrandlage
Zustand
- Zustand
- ERSTBEZUG
- Alter
- NEUBAU
Flächen
- Anzahl der Zimmer
- 4
- Anzahl der Schlafzimmer
- 3
- Anzahl der Badezimmer
- 1
- Anzahl der sep. WCs
- 1
- Anzahl der Terrassen
- 2
- Wohnfläche
- 85m²
- Gartenfläche
- 17m²
- Terrassenfläche
- 2m²
Kosten
- Kaufpreis
- € 648.000,00
Verwaltung
- Verfügbar ab
- Nach Vereinbarung
Wohnungen zum Kaufen in Österreich
Wohnungen zum Kaufen in Österreich
Wohnungen zum Kaufen in Österreich
Andere Besucher suchen nach...
- Grundstücke kaufen in 3400 Weidlingbach
- Wohnungen kaufen in 4663 Laakirchen
- Häuser in 7471 Rechnitz
- Wohnungen in 2410 Hainburg an der Donau
- Häuser kaufen in 2432 Schwadorf
- Wohnungen kaufen in 3002 Purkersdorf
- Häuser in 3150 Wilhelmsburg
- Wohnungen kaufen in 3470 Engelmannsbrunn
- Grundstücke kaufen im Bezirk Mattersburg
- Grundstücke kaufen im Bezirk Gmunden