Exquisite Wohnung in luxuriöser Anlage, großer Eigengarten, Wellness- und Fitnessraum, Outdoorpool !
Beschreibung
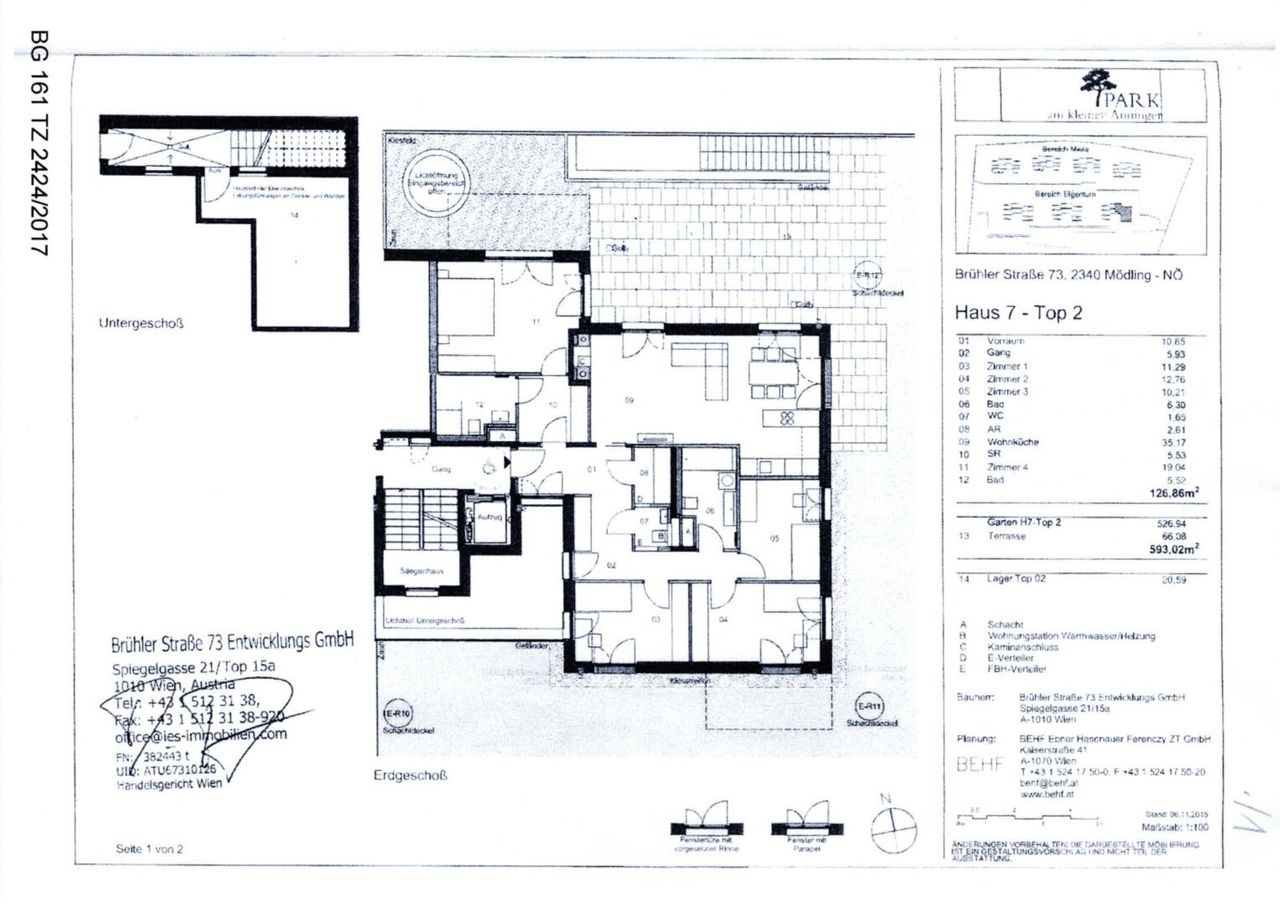
Die luxuröse Wohnung selbst ist barrierefrei, auch über die Garage gut zu erreichen und hochwertig bestens ausgestattet. Die geräumigen 4 Zimmer sind zentral begehbar; eine voll ausgestattete Vollholz-Tischler-Küche mit Miele-Geräten ist sehr charmant und wurde durch das Enfernen einer Zwischenwand an das großzügige Wohnzimmer angepasst bzw. vergrößert. Das somit rund 45,38m² große Wohnzimmer inkl. offener Küche ist aufgrund der Vielzahl an Fensterflächen und diversen Ausgänge auf die 66,08m2 große Terrasse und in den ca.526,64m2 großen eigenen Prachtgarten mit tollem Fern- und Grünblick mehr als einladend. Die beiden Schlafzimmer und der Arbeitsraum (Büro) sind vernünftig dimensioniert und mit abgestimmten Einbaumöbeln passend...
Die luxuröse Wohnung selbst ist barrierefrei, auch über die Garage gut zu erreichen und hochwertig bestens ausgestattet. Die geräumigen 4 Zimmer sind zentral begehbar; eine voll ausgestattete Vollholz-Tischler-Küche mit Miele-Geräten ist sehr charmant und wurde durch das Enfernen einer Zwischenwand an das großzügige Wohnzimmer angepasst bzw. vergrößert. Das somit rund 45,38m² große Wohnzimmer inkl. offener Küche ist aufgrund der Vielzahl an Fensterflächen und diversen Ausgänge auf die 66,08m2 große Terrasse und in den ca.526,64m2 großen eigenen Prachtgarten mit tollem Fern- und Grünblick mehr als einladend. Die beiden Schlafzimmer und der Arbeitsraum (Büro) sind vernünftig dimensioniert und mit abgestimmten Einbaumöbeln passend ausgestattet. Diese 3 Zimmer haben selbstverständlich auch einen direkten Ausgang in den Garten bzw. Terrasse und somit einen ruhigen Grün- und Waldblick. Komplettiert wird das Raumangebot mit zwei Badezimmern, jeweils mit Toilette, Badewanne. bzw. Dusche. Eine Gästetoilette ist zusätzlich und selbstverständlich. Weiters vom Vorraum begehbar besteht ein Abstellraum und ein großzügiger eigener Schrankraum zum Schlafzimmer. Ein eigener großer Lagerraum im Keller von mehr als 20,59m² mit Licht- und Stromanschluss steht ebenfalls zur Verfügung. Ein Tiefgaragenplatz mit Fernbedienung ist im Kaufpreis inkludiert.
Die allgemeinen Anlagen der exklusiven Anlagen sorgen für jeglichen Komfort. Geboten werden unter anderem:
- Outdoor-Poolanlage, Sauna, Infrarotkabine, Fitnessbereich
- Gemeinschaftsraum mit eigener Küche
- Generationenpark mit moderner Gartenarchitektur
- Aufladeanschluß für Elektro-Autos
- Fahrrad- und Kinderwagenabstellräume
Die Wiesen und Waldflächen des gesamten Areals sowie der Generationenpark können selbstverständlich mitgenutzt werden, Erholung somit garantiert.
Die Fußbodenheizung / -kühlung wird zentral mittels effizienter Kombination aus Gasheizung und Luftwärmepumpe versorgt, als Sonnen- und Sichtschutz dienen außenliegende, elektrische Raffstores.
Die Betriebskosten inkl. Heizkosten & Warm-Wasserkosten und USt. beträgt dzt. monatlich € 677.96
Ein KFZ-Stellplatz in der Tiefgarage kann selbstverständlich um € 35.000,00 als Eigentum mit erworben werden. (Elektroanschluss ist möglich)
Für weitere Informationen oder Besichtigungen senden Sie uns bitte vorab Ihre Anfrage per mail unter: office@fh-real.at. Weiterführend steht Ihnen gerne Herr Erwin Sedlacek +43 664 348 3399 zur Verfügung.
Wir bitten Sie um Verständnis, dass wir aufgrund der Nachweispflicht gegenüber dem Eigentümer nur Anfragen mit vollständiger Anschrift, Emailadresse und Telefonnummer beantworten dürfen. Vertrauliche Informationen können nur mit ausgefüllten Daten weitergegeben werden. Alle Objektinformationen basieren auf den Angaben des Abgebers.
Wir weisen darauf hin, dass zwischen dem Vermittler und dem zu vermittelnden Dritten ein familiäres oder wirtschaftliches Naheverhältnis besteht.
Der Vermittler ist als Doppelmakler tätig.
Infrastruktur / Entfernungen
Gesundheit
Arzt <500m
Klinik <2.500m
Apotheke <500m
Krankenhaus <1.000m
Kinder & Schulen
Schule <1.000m
Kindergarten <1.000m
Höhere Schule <3.000m
Universität <10.000m
Nahversorgung
Supermarkt <500m
Bäckerei <1.000m
Einkaufszentrum <3.500m
Sonstige
Bank <500m
Geldautomat <1.000m
Post <1.000m
Polizei <1.500m
Verkehr
Bus <500m
U-Bahn <6.500m
Bahnhof <3.500m
Straßenbahn <5.500m
Autobahnanschluss <2.000m
Angaben Entfernung Luftlinie / Quelle: OpenStreetMap
Objektdaten
Ausstattung
- Gartennutzung
- Rollstuhlgerecht
- Kabel/SAT-TV
- Barrierefrei
- Sauna
- Swimmingpool
- Sporteinrichtungen
- Wellnessbereich
- Fahrradraum
- Gäste-WC
- Seniorengerecht
- Bad mit Dusche
- Bad mit Badewanne
- Einbauküche
- Offene Küche
- Parkettboden
- Zentralheizung
- Fußbodenheizung
- Befeuerung mit Gas
- Luftwärmepumpe
- Personen Fahrstuhl
- Ausrichtung Balkon/Terrasse - Südost
- Kamera
- Mansarddach
- Massiv Bauweise
- Schlüsselfertig mit Keller
Zustand
- Zustand
- NEUWERTIG
- Baujahr
- 2016
- Alter
- NEUBAU
- HWB
- 46 kWh/m² pro Jahr
- Klasse HWB
- B
- fGEE
- 0.84
- Klasse fGEE
- A
Flächen
- Anzahl der Zimmer
- 4
- Anzahl der Badezimmer
- 2
- Anzahl der sep. WCs
- 3
- Anzahl der Terrassen
- 1
- Wohnfläche
- 127m²
- Gartenfläche
- 527m²
- Kellerfläche
- 21m²
- Terrassenfläche
- 1m²
Kosten
- Kaufpreis Brutto
- € 995.000,00
- Betriebskosten
- € 501,84
- Heizkosten
- € 106,75
Wohnungen zum Kaufen im Umkreis von Mödling
Wohnungen zum Kaufen in Österreich
Andere Besucher suchen nach...
- Immobilien kaufen in 2601 Sollenau
- Immobilien in 4951 Polling im Innkreis, Oberösterreich
- Immobilien in 4742 Pram, Oberösterreich kaufen oder mieten
- Häuser kaufen in 2340 Mödling, Niederösterreich
- Häuser kaufen in 9421 Gemmersdorf, Kärnten
- Wohnungen / Eigentumswohnungen kaufen in 9431 St. Stefan, Kärnten
- Häuser kaufen in Bruck an der Leitha, Niederösterreich
- Immobilien mieten in Krems an der Donau, Niederösterreich
- Häuser zum Kaufen im Bezirk St. Pölten Land, Niederösterreich
- Büro / Praxen mieten in Rohrbach, Oberösterreich