4-Zimmer-Wohnung in Frohnleiten | Optimale Lage | Tolle Infrastruktur
€ 360.680
€ 3.860 / m²
8130 Frohnleiten
-
Erstbezug
-
ca. 2025
-
Sommer 2026
Beschreibung
Lage und Projekt: In zentraler Lage - in der beliebten Stadt Frohnleiten wird eine schöne Wohnanlage mit 20 großzügigen Wohneinheiten und 32 Tiefgaragenparkplätzen errichtet. Leistbares Wohnen durch niedrige Betriebskosten wird durch die exzellente Bauweise und den Einsatz einer energieeffizienten Luft-/Wasserwärmepumpe sichergestellt. Das Gebäude wird in Ziegelmassivbauweise errichtet und verfügt über eine Tiefgarage und einen Lift, der in jedes Stockwerk führt. Somit sind alle Wohnungen barrierefrei erreichbar. Jede Wohnung verfügt über ein Kellerabteil. Raumkonzept dieser Wohnung: - Wohnen/Essen/Kochen (ca. 38,10 m²) - 3 Schlafzimmer (ca. 9,30-12,10 m²) - Bad/WC (ca. 5,20 m²) - Vorraum (ca. 5,20 m²) - Vorraum ( ca....
Lage und Projekt:
In zentraler Lage - in der beliebten Stadt Frohnleiten wird eine schöne Wohnanlage mit 20 großzügigen Wohneinheiten und 32 Tiefgaragenparkplätzen errichtet.
Leistbares Wohnen durch niedrige Betriebskosten wird durch die exzellente Bauweise und den Einsatz einer energieeffizienten Luft-/Wasserwärmepumpe sichergestellt.
Das Gebäude wird in Ziegelmassivbauweise errichtet und verfügt über eine Tiefgarage und einen Lift, der in jedes Stockwerk führt. Somit sind alle Wohnungen barrierefrei erreichbar. Jede Wohnung verfügt über ein Kellerabteil.
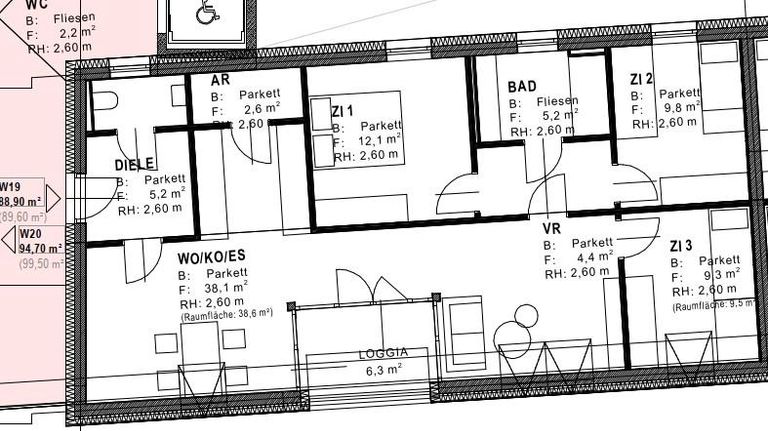
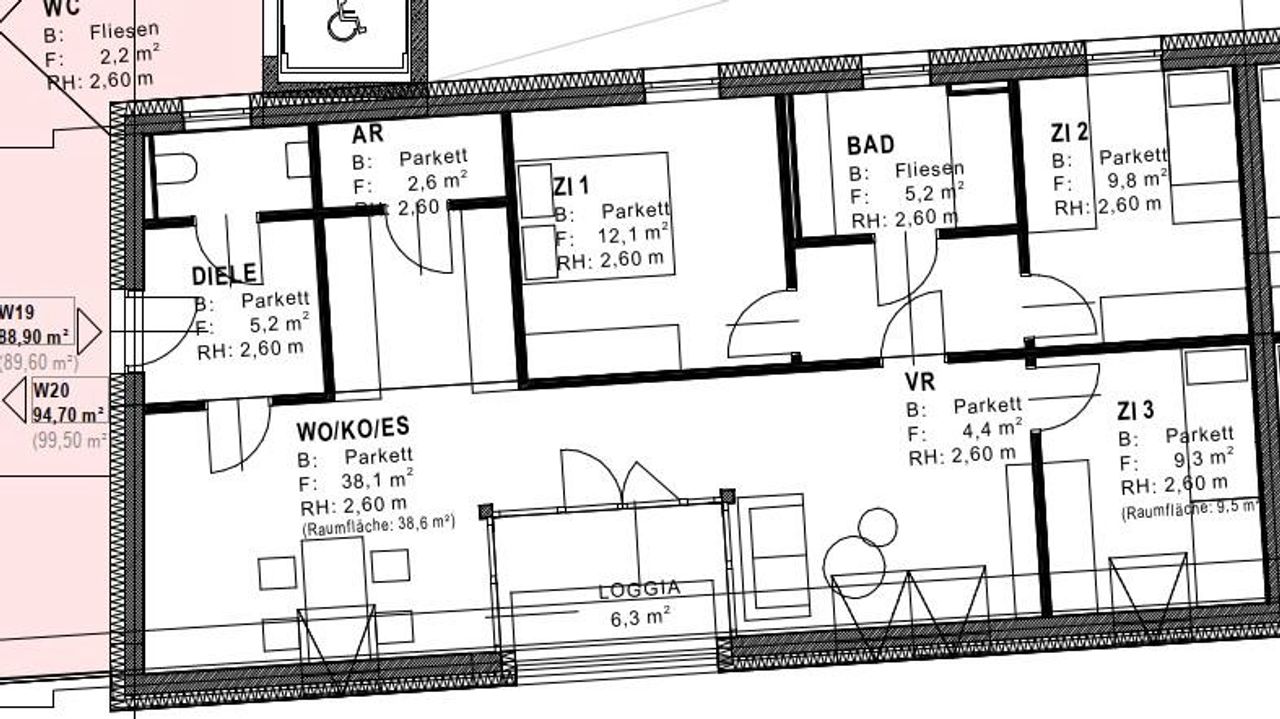
Raumkonzept dieser Wohnung:
- Wohnen/Essen/Kochen (ca. 38,10 m²)
- 3 Schlafzimmer (ca. 9,30-12,10 m²)
- Bad/WC (ca. 5,20 m²)
- Vorraum (ca. 5,20 m²)
- Vorraum ( ca. 4,40 m²)
- WC (ca. 2,2 m²)
- Loggia (ca. 6,30 m²)
Die Wohnungen begeistern durch ihr gut durchdachtes Raumkonzept. Hochwertige Innenausstattung wie z.B. Echtholz-Parkettböden in den Wohn- und Schlafräumen, großformatige Fliesen in Bädern und WCs, schöne große Loggien bzw. Balkone und vieles mehr zeichnen dieses Bauprojekt aus.
Das Wohnhaus wird in Massivbauweise mit Vollwärmeschutz und einem Satteldach mit Ziegeleindeckung errichtet. Die Fenster und Fenstertüren werden in Kunststoff mit 3-Scheiben-Isolierverglasung ausgeführt.
Durch die Lage der Gebäude und der planerischen Gestaltung wird ein ruhiges Wohnumfeld geschaffen.
Bei der Planung des Projektes wurde besonderer Wert auf großzügige, funktionierende Grundrisse und Energieeffizienz gelegt. Großzügige Belichtungsflächen verbinden den Wohnraum mit dem Außenbereich und schaffen so ein Wohlfühlambiente.
Es wird eine Tiefgarage mit 32 Stellplätzen errichtet. Ein Tiefgaragenparkplatz kostet € 24.000,--.
Im Zugangsbereich werden zusätzlich 5 Besucherparkplätze geschaffen.
- große Wohnungen mit toller Raumaufteilung
- sehr gute Verkehrsanbindung
- beste Infrastruktur (Schulen, Kindergärten, Ärzte und Nahversorger)
- niedrige Betriebskosten – Heizung erfolgt mittels Luftwärmepumpe
- alle Wohnungen verfügen über großzügige Freibereiche und Terrassen
- Massivbauweise
- barrierefreie Erreichbarkeit aller Wohnungen
Für weitere Informationen bzw. für die Vereinbarung eines Besichtigungstermins stehe ich Ihnen gerne zur Verfügung.
Bitte beachten Sie, dass wir aufgrund unserer Nachweispflicht dem Abgeber gegenüber nur Anfragen beantworten können, die Ihren Namen, die vollständige Anschrift und eine Telefonnummer enthalten.
In zentraler Lage - in der beliebten Stadt Frohnleiten wird eine schöne Wohnanlage mit 20 großzügigen Wohneinheiten und 32 Tiefgaragenparkplätzen errichtet.
Leistbares Wohnen durch niedrige Betriebskosten wird durch die exzellente Bauweise und den Einsatz einer energieeffizienten Luft-/Wasserwärmepumpe sichergestellt.
Das Gebäude wird in Ziegelmassivbauweise errichtet und verfügt über eine Tiefgarage und einen Lift, der in jedes Stockwerk führt. Somit sind alle Wohnungen barrierefrei erreichbar. Jede Wohnung verfügt über ein Kellerabteil.
Raumkonzept dieser Wohnung:
- Wohnen/Essen/Kochen (ca. 38,10 m²)
- 3 Schlafzimmer (ca. 9,30-12,10 m²)
- Bad/WC (ca. 5,20 m²)
- Vorraum (ca. 5,20 m²)
- Vorraum ( ca. 4,40 m²)
- WC (ca. 2,2 m²)
- Loggia (ca. 6,30 m²)
Die Wohnungen begeistern durch ihr gut durchdachtes Raumkonzept. Hochwertige Innenausstattung wie z.B. Echtholz-Parkettböden in den Wohn- und Schlafräumen, großformatige Fliesen in Bädern und WCs, schöne große Loggien bzw. Balkone und vieles mehr zeichnen dieses Bauprojekt aus.
Das Wohnhaus wird in Massivbauweise mit Vollwärmeschutz und einem Satteldach mit Ziegeleindeckung errichtet. Die Fenster und Fenstertüren werden in Kunststoff mit 3-Scheiben-Isolierverglasung ausgeführt.
Durch die Lage der Gebäude und der planerischen Gestaltung wird ein ruhiges Wohnumfeld geschaffen.
Bei der Planung des Projektes wurde besonderer Wert auf großzügige, funktionierende Grundrisse und Energieeffizienz gelegt. Großzügige Belichtungsflächen verbinden den Wohnraum mit dem Außenbereich und schaffen so ein Wohlfühlambiente.
Es wird eine Tiefgarage mit 32 Stellplätzen errichtet. Ein Tiefgaragenparkplatz kostet € 24.000,--.
Im Zugangsbereich werden zusätzlich 5 Besucherparkplätze geschaffen.
- große Wohnungen mit toller Raumaufteilung
- sehr gute Verkehrsanbindung
- beste Infrastruktur (Schulen, Kindergärten, Ärzte und Nahversorger)
- niedrige Betriebskosten – Heizung erfolgt mittels Luftwärmepumpe
- alle Wohnungen verfügen über großzügige Freibereiche und Terrassen
- Massivbauweise
- barrierefreie Erreichbarkeit aller Wohnungen
Für weitere Informationen bzw. für die Vereinbarung eines Besichtigungstermins stehe ich Ihnen gerne zur Verfügung.
Bitte beachten Sie, dass wir aufgrund unserer Nachweispflicht dem Abgeber gegenüber nur Anfragen beantworten können, die Ihren Namen, die vollständige Anschrift und eine Telefonnummer enthalten.
| Angaben gemäß gesetzlichem Erfordernis: | |||
| Heizwärmebedarf: | 45.0 kWh/(m²a) | ||
| Klasse Heizwärmebedarf: | B | ||
| Faktor Gesamtenergieeffizienz: | 0.73 | ||
| Klasse Faktor Gesamtenergieeffizienz: | A | ||
Objektdaten
Ausstattung
- Rollstuhlgerecht
- Kabel/SAT-TV
- Unterkellert
- Zentralheizung
- Erdwärme
- Personen Fahrstuhl
- Massiv Bauweise
- Niedrigenergie
- Neubaustandard
- Zeigelmassiv
- Bus
- Eisenbahn
- Kabel/SAT-TV
- Sonstiges
- Rollstuhlgerecht
- Schnellbahn
- Stadtzentrum
- Zentralheizung mit Wärmepumpe
- Kabel/SAT-TV
- Rollstuhlgerecht
Zustand
- Zustand
- ERSTBEZUG
- Baujahr
- ca. 2025
- Alter
- NEUBAU
Flächen
- Anzahl der Zimmer
- 4
- Anzahl der Schlafzimmer
- 3
- Anzahl der Badezimmer
- 1
- Anzahl der sep. WCs
- 1
- Stellplätze
- 1
- Wohnfläche
- 93m²
- Kellerfläche
- 2m²
Kosten
- Kaufpreis
- € 360.680,00
Verwaltung
- Verfügbar ab
- Sommer 2026
Wohnungen zum Kaufen in Österreich
Wohnungen zum Kaufen in Österreich
Wohnungen zum Kaufen in Österreich
Andere Besucher suchen nach...
- Grundstücke kaufen in 3400 Weidlingbach
- Wohnungen kaufen in 4663 Laakirchen
- Häuser in 7471 Rechnitz
- Wohnungen in 2410 Hainburg an der Donau
- Häuser kaufen in 2432 Schwadorf
- Wohnungen kaufen in 3002 Purkersdorf
- Häuser in 3150 Wilhelmsburg
- Wohnungen kaufen in 3470 Engelmannsbrunn
- Grundstücke kaufen im Bezirk Mattersburg
- Grundstücke kaufen im Bezirk Gmunden